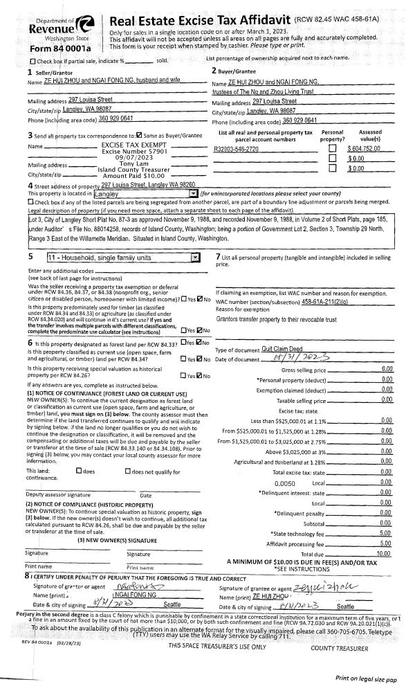
Property
Account |
| Property ID: | 800347 | Abbreviated Legal Description: | LOT 4 SP 16-94.23223.247-4280 V3 SP P223 AF#98022685 |
| Geographic ID: | R23223-248-4020 | Agent Code: | |
| Type: | Real | | |
| Tax Area: | 512 - APPRAISER-Stan/Cam Schl Dist, improved, greater than 1 acre | Land Use Code | 11 |
| Open Space: | N | DFL | N |
| Historic Property: | N | Remodel Property: | N |
| Multi-Family Redevelopment: | N | | |
| Township: | 32 | Section: | 23 |
| Range: | R2 |
Location |
| Address: | | Mapsco: | |
| Neighborhood: | North Camano | Map ID: | 555 |
| Neighborhood CD: | 06-C |
Owner |
| Name: | KINNUNEN, JAMES R | Owner ID: | 185497 |
| Mailing Address: | ELIZABETH A STAM 989 VALERIE DR CAMANO ISLAND, WA 98282-8692 | % Ownership: | 100.0000000000% |
| | | Exemptions: | |
Taxes and Assessment Details
Values
| (+) Improvement Homesite Value: | + | $0 | |
| (+) Improvement Non-Homesite Value: | + | $455,681 | |
| (+) Land Homesite Value: | + | $0 | |
| (+) Land Non-Homesite Value: | + | $305,000 | |
| (+) Curr Use (HS): | + | $0 | $0 |
| (+) Curr Use (NHS): | + | $0 | $0 |
| | | -------------------------- | |
| (=) Market Value: | = | $760,681 | |
| (–) Productivity Loss: | – | $0 | |
| | | -------------------------- | |
| (=) Subtotal: | = | $760,681 | |
| (+) Senior Appraised Value: | + | $0 | |
| (+) Non-Senior Appraised Value: | + | $760,681 | |
| | | -------------------------- | |
| (=) Total Appraised Value: | = | $760,681 | |
| (–) Senior Exemption Loss: | – | $0 | |
| (–) Exemption Loss: | – | $0 | |
| | | -------------------------- | |
| (=) Taxable Value: | = | $760,681 | |
Taxing Jurisdiction
| Owner: | KINNUNEN, JAMES R | | |
| % Ownership: | 100.0000000000% | | |
| Total Value: | $760,681 | | |
| Tax Area: | 512 - APPRAISER-Stan/Cam Schl Dist, improved, greater than 1 acre |
| CF | Conservation Futures | 0.0316035091 | $760,681 | $760,681 | $24.04 | | |
| EMS1 | Fire & Rescue Dist #1 Camano GEN (EMS) | 0.3677864386 | $760,681 | $760,681 | $279.77 | | |
| FIRE1 | Fire & Rescue Dist #1 Camano GEN | 1.2502910536 | $760,681 | $760,681 | $951.07 | | |
| FIRE1BOND | Fire & Rescue Dist #1 Camano BOND | 0.1570001679 | $760,681 | $760,681 | $119.43 | | |
| CE | County Current Expense | 0.3708482477 | $760,681 | $760,681 | $282.10 | | |
| CR | County Roads | 0.4584763726 | $760,681 | $760,681 | $348.75 | | |
| LCIB | Library Sno-Isle BOND (Camano Island) | 0.0396325772 | $760,681 | $760,681 | $30.15 | | |
| LIB | Library Sno-Isle GEN | 0.3153421757 | $760,681 | $760,681 | $239.87 | | |
| SCH205_401 | School 205-401 Enrichment | 1.2698420524 | $760,681 | $760,681 | $965.94 | | |
| SCH205BOND | School 205-401 BOND | 0.9396497583 | $760,681 | $760,681 | $714.77 | | |
| ST | State School | 1.3035497053 | $760,681 | $760,681 | $991.59 | | |
| ST2 | State School Part 2 | 0.8169543533 | $760,681 | $760,681 | $621.44 | | |
| | Total Tax Rate: | 7.3209764117 | | | | | |
| | | | | Taxes w/Current Exemptions: | $5,568.92 | | |
| | | | | Taxes w/o Exemptions: | $5,568.92 | | |
Improvement / Building
| Improvement #1: | RESIDENTIAL | State Code: | Y | 2044.0 sqft | Value: | $455,681 |
| Bathrooms: | 3 | Bedrooms: | 3 | | Ceiling: | DRYWALL PAINTED | Cooling: | HEAT PUMP/CONV/V | | Exterior Wall/Cover: | VINYL | Floor Covering: | COLORED CONCRETE | | Floor Structure: | WOOD W/SUBFLOOR | Foundation: | CONCRETE | | Interior Finish: | DRYWALL PAINT | Plumbing Fixture Cnt: | 12 | | Roof Slope: | 6" IN 12" | Roof Structure/Cover: | CJ ALUMINIUM HEAVY |
|
| | Type | Description | Class CD | Sub Class CD | Year Built | Area |
| | BAS | BASE/MAIN FLOOR | 4 | 0 | 2006 | 2044.0 |
| | OP4 | OPEN PORCH W/CEILING-ROOF | 4 | 0 | 2006 | 120.0 |
| | OP2 | OPEN PORCH W/STEPS | 4 | 0 | 2006 | 40.0 |
| | OP4 | OPEN PORCH W/CEILING-ROOF | 4 | 0 | 2006 | 200.0 |
Sketch
Property Image
Land
| 1 | 17 | AC (01.01-02.00) | 1.4700 | 64033.20 | 0.00 | 0.00 | 1.00 | $305,000 | $0 |
Roll Value History
| 2026 | N/A | N/A | N/A | N/A | N/A |
| 2025 | $455,681 | $305,000 | $0 | $760,681 | $760,681 |
| 2024 | $461,155 | $290,000 | $0 | $751,155 | $751,155 |
| 2023 | $466,628 | $290,000 | $0 | $756,628 | $756,628 |
| 2022 | $427,500 | $260,000 | $0 | $687,500 | $687,500 |
| 2021 | $376,059 | $230,000 | $0 | $606,059 | $606,059 |
| 2020 | $366,169 | $150,000 | $0 | $516,169 | $516,169 |
| 2019 | $273,902 | $180,000 | $0 | $453,902 | $453,902 |
| 2018 | $274,669 | $150,000 | $0 | $424,669 | $424,669 |
| 2017 | $276,204 | $120,000 | $0 | $396,204 | $396,204 |
| 2016 | $309,828 | $100,000 | $0 | $409,828 | $409,828 |
| 2015 | $313,310 | $64,000 | $0 | $377,310 | $377,310 |
| 2014 | $316,790 | $64,000 | $0 | $380,790 | $380,790 |
| 2013 | $320,273 | $64,000 | $0 | $384,273 | $384,273 |
| 2012 | $323,755 | $64,000 | $0 | $387,755 | $387,755 |
| 2011 | $327,235 | $80,000 | $0 | $407,235 | $407,235 |
| 2010 | $333,061 | $80,000 | $0 | $413,061 | $413,061 |
| 2009 | $346,883 | $100,000 | $0 | $446,883 | $446,883 |
| 2008 | $361,632 | $117,600 | $0 | $479,232 | $479,232 |
| 2007 | $361,661 | $117,600 | $0 | $479,261 | $479,261 |
Deed and Sales History
| 1 | 05/21/2001 | WD | Warranty Deed | J P LAND BUILDERS INC, | KINNUNEN, JAMES R | | | $62,000.00 | 11855 | 20033172 |
| 2 | 03/25/1999 | WD | Warranty Deed | Unknown | J P LAND BUILDERS INC, | | | $46,662.00 | 91113 | 99007531 |
Payout Agreement
| No payout information available.. |