Property
Account |
| Property ID: | 800389 | Abbreviated Legal Description: | LOT 1 SP 419-96.13112.191-5040 V3 SP P228 AF#98027212 |
| Geographic ID: | R13112-225-5020 | Agent Code: | |
| Type: | Real | | |
| Tax Area: | 312 - APPRAISER-Cpvl Schl Dist, outside Cpvl, improved, greater than 1 acre | Land Use Code | 11 |
| Open Space: | N | DFL | N |
| Historic Property: | N | Remodel Property: | N |
| Multi-Family Redevelopment: | N | | |
| Township: | 31 | Section: | 12 |
| Range: | R1 |
Location |
| Address: | 637 HILL HAVEN LN COUPEVILLE, WA 98239 | Mapsco: | |
| Neighborhood: | Cycle 2 | Map ID: | 55 |
| Neighborhood CD: | 2 |
Owner |
| Name: | WILSON, SHAUN LUCAS | Owner ID: | 313536 |
| Mailing Address: | JULIE ANN ROCKWELL WILSON PO BOX 22 COUPEVILLE, WA 98239 | % Ownership: | 100.0000000000% |
| | | Exemptions: | |
Taxes and Assessment Details
Values
| (+) Improvement Homesite Value: | + | $0 | |
| (+) Improvement Non-Homesite Value: | + | $129,080 | |
| (+) Land Homesite Value: | + | $0 | |
| (+) Land Non-Homesite Value: | + | $340,148 | |
| (+) Curr Use (HS): | + | $0 | $0 |
| (+) Curr Use (NHS): | + | $0 | $0 |
| | | -------------------------- | |
| (=) Market Value: | = | $469,228 | |
| (–) Productivity Loss: | – | $0 | |
| | | -------------------------- | |
| (=) Subtotal: | = | $469,228 | |
| (+) Senior Appraised Value: | + | $0 | |
| (+) Non-Senior Appraised Value: | + | $469,228 | |
| | | -------------------------- | |
| (=) Total Appraised Value: | = | $469,228 | |
| (–) Senior Exemption Loss: | – | $0 | |
| (–) Exemption Loss: | – | $0 | |
| | | -------------------------- | |
| (=) Taxable Value: | = | $469,228 | |
Taxing Jurisdiction
| Owner: | WILSON, SHAUN LUCAS | | |
| % Ownership: | 100.0000000000% | | |
| Total Value: | $469,228 | | |
| Tax Area: | 312 - APPRAISER-Cpvl Schl Dist, outside Cpvl, improved, greater than 1 acre |
| CF | Conservation Futures | 0.0316035091 | $469,228 | $469,228 | $14.83 | | |
| CEM2 | Cemetery #2 | 0.0095056933 | $469,228 | $469,228 | $4.46 | | |
| FIRE5 | Fire & Rescue Dist #5 C Whidbey GEN | 1.2008080668 | $469,228 | $469,228 | $563.45 | | |
| FIRE5BOND | Fire & Rescue Dist #5 C Whidbey BOND | 0.1400090713 | $469,228 | $469,228 | $65.70 | | |
| HOBOND | Hospital BOND | 0.1910887512 | $469,228 | $469,228 | $89.66 | | |
| HOGEN | Hospital GEN | 0.3902502903 | $469,228 | $469,228 | $183.12 | | |
| CE | County Current Expense | 0.3708482477 | $469,228 | $469,228 | $174.01 | | |
| CR | County Roads | 0.4584763726 | $469,228 | $469,228 | $215.13 | | |
| ISLANDEMS | Hospital GEN (EMS) | 0.5000000000 | $469,228 | $469,228 | $234.61 | | |
| LIB | Library Sno-Isle GEN | 0.3153421757 | $469,228 | $469,228 | $147.97 | | |
| LIBCAP | Library Sno-Isle BOND (Cap Fac Imp Area) | 0.0543427938 | $469,228 | $469,228 | $25.50 | | |
| POCOUP | Port of Coupeville GEN | 0.1093371703 | $469,228 | $469,228 | $51.30 | | |
| POCOUPIDD | Port of Coupeville IDD | 0.3409740022 | $469,228 | $469,228 | $159.99 | | |
| COUPSDTECH | School 204 CP (TECH) | 0.7545480007 | $469,228 | $469,228 | $354.06 | | |
| SCH204MO | School 204 Enrichment | 0.6716186034 | $469,228 | $469,228 | $315.14 | | |
| ST | State School | 1.3035497053 | $469,228 | $469,228 | $611.66 | | |
| ST2 | State School Part 2 | 0.8169543533 | $469,228 | $469,228 | $383.34 | | |
| | Total Tax Rate: | 7.6592568070 | | | | | |
| | | | | Taxes w/Current Exemptions: | $3,593.93 | | |
| | | | | Taxes w/o Exemptions: | $3,593.93 | | |
Improvement / Building
| Improvement #1: | MANUFACTURED HOME | State Code: | Y | 1404.0 sqft | Value: | $129,080 |
| Bathrooms: | 2 | Bedrooms: | 3 | | Ceiling: | PLASTER PAINTED | Cooling: | EVAP NO DUCT | | Exterior Wall/Cover: | VINYL | Floor Covering: | CARPET 100% | | Floor Structure: | SLAB ON GRADE | Foundation: | SLAB | | Heating: | FHA ELECTRIC | Interior Finish: | PLASTER | | Plumbing Fixture Cnt: | 1 | Roof Slope: | FLAT | | Roof Structure/Cover: | CJ ALUMINIUM HEAVY |   |   |
|
| | Type | Description | Class CD | Sub Class CD | Year Built | Area |
| | BAS | BASE/MAIN FLOOR | 4 | 0 | 2004 | 1404.0 |
| | OWP | OPEN WOOD PORCH W/STEPS | 4 | 0 | 2004 | 224.0 |
Sketch
Property Image
Land
| 1 | HS | HOMESITE | 1.0000 | 43560.00 | 0.00 | 0.00 | 1.00 | $220,000 | $0 |
| 2 | 91 | UNDEVELOPED LAND-METES AND BOUNDS | 4.0300 | 175546.80 | 0.00 | 0.00 | 1.00 | $120,148 | $0 |
Roll Value History
| 2026 | N/A | N/A | N/A | N/A | N/A |
| 2025 | $129,080 | $340,148 | $0 | $469,228 | $469,228 |
| 2024 | $128,851 | $300,000 | $0 | $428,851 | $428,851 |
| 2023 | $114,947 | $280,000 | $0 | $394,947 | $394,947 |
| 2022 | $93,805 | $260,000 | $0 | $353,805 | $353,805 |
| 2021 | $83,677 | $170,000 | $0 | $253,677 | $253,677 |
| 2020 | $83,292 | $160,000 | $0 | $243,292 | $243,292 |
| 2019 | $67,238 | $230,000 | $0 | $297,238 | $297,238 |
| 2018 | $59,500 | $200,000 | $0 | $259,500 | $259,500 |
| 2017 | $60,969 | $200,000 | $0 | $260,969 | $260,969 |
| 2016 | $62,438 | $140,000 | $0 | $202,438 | $202,438 |
| 2015 | $63,173 | $90,000 | $0 | $153,173 | $153,173 |
| 2014 | $63,908 | $90,000 | $0 | $153,908 | $153,908 |
| 2013 | $65,377 | $90,000 | $0 | $155,377 | $155,377 |
| 2012 | $66,111 | $90,000 | $0 | $156,111 | $156,111 |
| 2011 | $80,250 | $135,810 | $0 | $216,060 | $216,060 |
| 2010 | $85,344 | $135,810 | $0 | $221,154 | $221,154 |
| 2009 | $86,682 | $150,900 | $0 | $237,582 | $237,582 |
| 2008 | $87,586 | $168,505 | $0 | $256,091 | $256,091 |
| 2007 | $88,480 | $150,900 | $0 | $239,380 | $239,380 |
Deed and Sales History
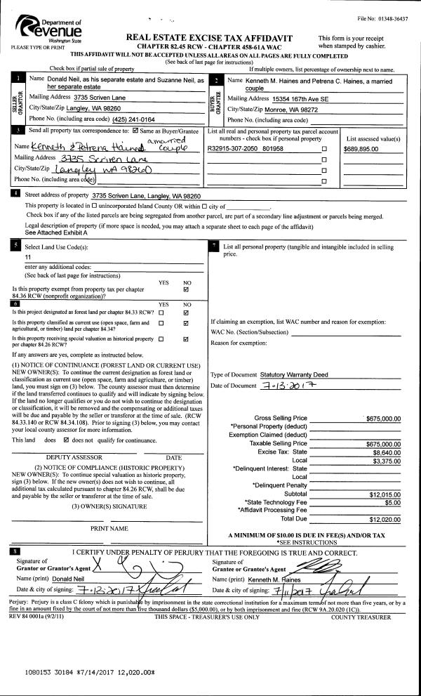
| 1 | 08/02/2024 | WD | Warranty Deed | GOFORTH, BARBARA JEAN | WILSON, SHAUN LUCAS | | | $510,000.00 | 60967 | 4575907 |
| 2 | 07/25/2024 | QCD | Quit Claim Deed | FEATHERS, ISAAC BENJAMIN | GOFORTH, BARBARA JEAN | | | $0.00 | 60966 | 4575906 |
| 3 | 03/25/2022 | WD | Warranty Deed | HATFIELD, JESSICA BRITTANY | GOFORTH, BARBARA JEAN | | | $483,000.00 | 52513 | 4542440 |
| 4 | 07/19/2021 | QCD | Quit Claim Deed | LASLEY, BRETT | HATFIELD, JESSICA BRITTANY | | | $0.00 | 49565 | 4526474 |
| 5 | 04/25/2017 | WD | Warranty Deed | LUKERT, BURDETTE | LASLEY, BRETT | | | $248,000.00 | 29247 | 4422352 |
| 6 | 04/13/2004 | WD | Warranty Deed | FARMER, ROBERT W | LUKERT, BURDETTE | | | $159,000.00 | 41635 | 4098016 |
| 7 | 01/17/2003 | TRUSTEED | Trustee's Deed | PAPENHEIM, PAUL J | FARMER, ROBERT W | | | $0.00 | 30241 | 4045047 |
| 8 | 01/04/2001 | WD | Warranty Deed | Unknown | PAPENHEIM, PAUL J | | | $56,500.00 | 10207 | 20023903 |
Payout Agreement
| No payout information available.. |