Property
Account |
| Property ID: | 800428 | Abbreviated Legal Description: | E/2 E/2 SE NW |
| Geographic ID: | R33030-329-2620 | Agent Code: | |
| Type: | Real | | |
| Tax Area: | 715 - S Whid Schl Dist, outside Langley, vacant, combined for Forest Protection | Land Use Code | 88 |
| Open Space: | N | DFL | Y |
| Historic Property: | N | Remodel Property: | N |
| Multi-Family Redevelopment: | N | | |
| Township: | 30 | Section: | 30 |
| Range: | R3 |
Location |
| Address: | LANGLEY, WA 98260 | Mapsco: | |
| Neighborhood: | Cycle 4 | Map ID: | 898 |
| Neighborhood CD: | 4 |
Owner |
| Name: | FREI HERITAGE TREE FARM LLC | Owner ID: | 197810 |
| Mailing Address: | PO BOX 1306 LANGLEY, WA 98260 | % Ownership: | 100.0000000000% |
| | | Exemptions: | |
Taxes and Assessment Details
Values
| (+) Improvement Homesite Value: | + | $0 | |
| (+) Improvement Non-Homesite Value: | + | $0 | |
| (+) Land Homesite Value: | + | $0 | |
| (+) Land Non-Homesite Value: | + | $0 | |
| (+) Curr Use (HS): | + | $0 | $0 |
| (+) Curr Use (NHS): | + | $330,000 | $1,490 |
| | | -------------------------- | |
| (=) Market Value: | = | $330,000 | |
| (–) Productivity Loss: | – | $328,510 | |
| | | -------------------------- | |
| (=) Subtotal: | = | $1,490 | |
| (+) Senior Appraised Value: | + | $0 | |
| (+) Non-Senior Appraised Value: | + | $1,490 | |
| | | -------------------------- | |
| (=) Total Appraised Value: | = | $1,490 | |
| (–) Senior Exemption Loss: | – | $0 | |
| (–) Exemption Loss: | – | $0 | |
| | | -------------------------- | |
| (=) Taxable Value: | = | $1,490 | |
Taxing Jurisdiction
| Owner: | FREI HERITAGE TREE FARM LLC | | |
| % Ownership: | 100.0000000000% | | |
| Total Value: | $330,000 | | |
| Tax Area: | 715 - S Whid Schl Dist, outside Langley, vacant, combined for Forest Protection |
| CF | Conservation Futures | 0.0316035091 | $1,490 | $1,490 | $0.05 | | |
| HOBOND | Hospital BOND | 0.1910887512 | $1,490 | $1,490 | $0.28 | | |
| HOGEN | Hospital GEN | 0.3902502903 | $1,490 | $1,490 | $0.58 | | |
| CE | County Current Expense | 0.3708482477 | $1,490 | $1,490 | $0.55 | | |
| CR | County Roads | 0.4584763726 | $1,490 | $1,490 | $0.68 | | |
| ISLANDEMS | Hospital GEN (EMS) | 0.5000000000 | $1,490 | $1,490 | $0.75 | | |
| LIB | Library Sno-Isle GEN | 0.3153421757 | $1,490 | $1,490 | $0.47 | | |
| PORTWHID | Port of S Whidbey GEN | 0.1094540357 | $1,490 | $1,490 | $0.16 | | |
| SCH206BOND | School 206 BOND | 0.3161759235 | $1,490 | $1,490 | $0.47 | | |
| SCH206MO | School 206 Enrichment | 0.4547169547 | $1,490 | $1,490 | $0.68 | | |
| ST | State School | 1.3035497053 | $1,490 | $1,490 | $1.94 | | |
| ST2 | State School Part 2 | 0.8169543533 | $1,490 | $1,490 | $1.22 | | |
| SWHIDPRBD | P & R S Whidbey BOND | 0.0152817568 | $1,490 | $1,490 | $0.02 | | |
| SWHIDPRBD2 | P & R S Whidbey BOND2 | 0.0138911264 | $1,490 | $1,490 | $0.02 | | |
| SWHIDPRMT | P & R S Whidbey GEN | 0.2053334452 | $1,490 | $1,490 | $0.31 | | |
| | Total Tax Rate: | 5.4929666475 | | | | | |
| | | | | Taxes w/Current Exemptions: | $8.18 | | |
| | | | | Taxes w/o Exemptions: | $8.18 | | |
Improvement / Building
Sketch
| No sketches available for this property. |
Property Image
Land
| 1 | 35 | AC (10.00-30.99) | 10.0000 | 435600.00 | 0.00 | 0.00 | 1.00 | $330,000 | $1,490 |
Roll Value History
| 2026 | N/A | N/A | N/A | N/A | N/A |
| 2025 | $0 | $330,000 | $1,490 | $1,490 | $1,490 |
| 2024 | $0 | $320,000 | $1,500 | $1,500 | $1,500 |
| 2023 | $0 | $280,000 | $1,440 | $1,440 | $1,440 |
| 2022 | $0 | $250,000 | $1,440 | $1,440 | $1,440 |
| 2021 | $0 | $190,000 | $1,440 | $1,440 | $1,440 |
| 2020 | $0 | $170,000 | $1,440 | $1,440 | $1,440 |
| 2019 | $0 | $170,000 | $1,390 | $1,390 | $1,390 |
| 2018 | $0 | $130,000 | $1,370 | $1,370 | $1,370 |
| 2017 | $0 | $130,000 | $1,370 | $1,370 | $1,370 |
| 2016 | $0 | $130,000 | $1,010 | $1,010 | $1,010 |
| 2015 | $0 | $130,000 | $1,010 | $1,010 | $1,010 |
| 2014 | $0 | $110,500 | $1,010 | $1,010 | $1,010 |
| 2013 | $0 | $110,500 | $1,010 | $1,010 | $1,010 |
| 2012 | $0 | $110,500 | $1,010 | $1,010 | $1,010 |
| 2011 | $0 | $130,000 | $1,010 | $1,010 | $1,010 |
| 2010 | $0 | $130,000 | $1,010 | $1,010 | $1,010 |
| 2009 | $0 | $200,000 | $1,010 | $1,010 | $1,010 |
| 2008 | $0 | $92,769 | $1,010 | $1,010 | $1,010 |
| 2007 | $0 | $92,769 | $1,010 | $1,010 | $1,010 |
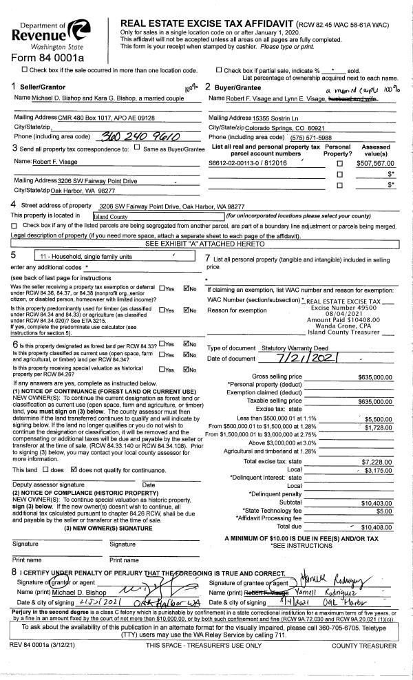
Deed and Sales History
| 1 | 09/30/2005 | QCD | Quit Claim Deed | FREI HERITAGE TREE FARM, | FREI JR ET AL, FRED E | | | $0.00 | 54999 | 4149654 |
| 2 | 09/30/2005 | QCD | Quit Claim Deed | FREI HERITAGE TREE FARM, | FREI HERITAGE TREE FARM, | | | $0.00 | 54998 | 4149655 |
| 3 | 02/05/1999 | SEG | DNU - Segregation | Unknown | FREI HERITAGE TREE FARM, | | | $0.00 | 68171 | 98001960 |
Payout Agreement
| No payout information available.. |