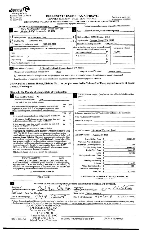
Property
Account |
| Property ID: | 800540 | Abbreviated Legal Description: | IN GL1: BG CM INTER OF SEC LN BETW SECS 26&35 & WLN J KINETH DLC N ALG SD WLN 27.14' N89*W71.17' N79*W90.32' N75*W103.32' TO LN 260'W OF SD CM MEAS ALG E-W LN BETW SECS 26&35 S ALG LN PERP/TO SD E-W LN 69.62' TO INTER/W SD E-W LN S100' S89*E ALG LN PARA/T |
| Geographic ID: | R13235-511-2230 | Agent Code: | |
| Type: | Real | | |
| Tax Area: | 319 - APPRAISER-Cpvl Schl Dist, outside Cpvl, vacant & 50 acres or less | Land Use Code | 91 |
| Open Space: | N | DFL | N |
| Historic Property: | N | Remodel Property: | N |
| Multi-Family Redevelopment: | N | | |
| Township: | 32 | Section: | 35 |
| Range: | R1 |
Location |
| Address: | | Mapsco: | |
| Neighborhood: | Cycle 2 | Map ID: | 183 |
| Neighborhood CD: | 2 |
Owner |
| Name: | NICOLE WHITTAKER, LLC | Owner ID: | 299507 |
| Mailing Address: | 400 LAKE SAMMAMISH PKWY SE BELLEVUE, WA 98008 | % Ownership: | 100.0000000000% |
| | | Exemptions: | |
Taxes and Assessment Details
Values
| (+) Improvement Homesite Value: | + | $0 | |
| (+) Improvement Non-Homesite Value: | + | $0 | |
| (+) Land Homesite Value: | + | $0 | |
| (+) Land Non-Homesite Value: | + | $116,057 | |
| (+) Curr Use (HS): | + | $0 | $0 |
| (+) Curr Use (NHS): | + | $0 | $0 |
| | | -------------------------- | |
| (=) Market Value: | = | $116,057 | |
| (–) Productivity Loss: | – | $0 | |
| | | -------------------------- | |
| (=) Subtotal: | = | $116,057 | |
| (+) Senior Appraised Value: | + | $0 | |
| (+) Non-Senior Appraised Value: | + | $116,057 | |
| | | -------------------------- | |
| (=) Total Appraised Value: | = | $116,057 | |
| (–) Senior Exemption Loss: | – | $0 | |
| (–) Exemption Loss: | – | $0 | |
| | | -------------------------- | |
| (=) Taxable Value: | = | $116,057 | |
Taxing Jurisdiction
| Owner: | NICOLE WHITTAKER, LLC | | |
| % Ownership: | 100.0000000000% | | |
| Total Value: | $116,057 | | |
| Tax Area: | 319 - APPRAISER-Cpvl Schl Dist, outside Cpvl, vacant & 50 acres or less |
| CF | Conservation Futures | 0.0316035091 | $116,057 | $116,057 | $3.67 | | |
| CEM2 | Cemetery #2 | 0.0095056933 | $116,057 | $116,057 | $1.10 | | |
| HOBOND | Hospital BOND | 0.1910887512 | $116,057 | $116,057 | $22.18 | | |
| HOGEN | Hospital GEN | 0.3902502903 | $116,057 | $116,057 | $45.29 | | |
| CE | County Current Expense | 0.3708482477 | $116,057 | $116,057 | $43.04 | | |
| CR | County Roads | 0.4584763726 | $116,057 | $116,057 | $53.21 | | |
| ISLANDEMS | Hospital GEN (EMS) | 0.5000000000 | $116,057 | $116,057 | $58.03 | | |
| LIB | Library Sno-Isle GEN | 0.3153421757 | $116,057 | $116,057 | $36.60 | | |
| LIBCAP | Library Sno-Isle BOND (Cap Fac Imp Area) | 0.0543427938 | $116,057 | $116,057 | $6.31 | | |
| POCOUP | Port of Coupeville GEN | 0.1093371703 | $116,057 | $116,057 | $12.69 | | |
| POCOUPIDD | Port of Coupeville IDD | 0.3409740022 | $116,057 | $116,057 | $39.57 | | |
| COUPSDTECH | School 204 CP (TECH) | 0.7545480007 | $116,057 | $116,057 | $87.57 | | |
| SCH204MO | School 204 Enrichment | 0.6716186034 | $116,057 | $116,057 | $77.95 | | |
| ST | State School | 1.3035497053 | $116,057 | $116,057 | $151.29 | | |
| ST2 | State School Part 2 | 0.8169543533 | $116,057 | $116,057 | $94.81 | | |
| | Total Tax Rate: | 6.3184396689 | | | | | |
| | | | | Taxes w/Current Exemptions: | $733.31 | | |
| | | | | Taxes w/o Exemptions: | $733.31 | | |
Improvement / Building
Sketch
| No sketches available for this property. |
Property Image
Land
| 1 | 91 | UNDEVELOPED LAND-METES AND BOUNDS | 1.9900 | 86684.40 | 0.00 | 0.00 | 1.00 | $116,057 | $0 |
Roll Value History
| 2026 | N/A | N/A | N/A | N/A | N/A |
| 2025 | $0 | $116,057 | $0 | $116,057 | $116,057 |
| 2024 | $0 | $120,000 | $0 | $120,000 | $120,000 |
| 2023 | $0 | $110,000 | $0 | $110,000 | $110,000 |
| 2022 | $0 | $110,000 | $0 | $110,000 | $110,000 |
| 2021 | $0 | $100,000 | $0 | $100,000 | $100,000 |
| 2020 | $0 | $100,000 | $0 | $100,000 | $100,000 |
| 2019 | $0 | $100,000 | $0 | $100,000 | $100,000 |
| 2018 | $0 | $75,000 | $0 | $75,000 | $75,000 |
| 2017 | $0 | $70,000 | $0 | $70,000 | $70,000 |
| 2016 | $0 | $70,000 | $0 | $70,000 | $70,000 |
| 2015 | $0 | $70,000 | $0 | $70,000 | $70,000 |
| 2014 | $0 | $70,000 | $0 | $70,000 | $70,000 |
| 2013 | $0 | $70,000 | $0 | $70,000 | $70,000 |
| 2012 | $0 | $85,000 | $0 | $85,000 | $85,000 |
| 2011 | $0 | $85,000 | $0 | $85,000 | $85,000 |
| 2010 | $0 | $85,000 | $0 | $85,000 | $85,000 |
| 2009 | $0 | $85,000 | $0 | $85,000 | $85,000 |
| 2008 | $0 | $100,000 | $0 | $100,000 | $100,000 |
| 2007 | $0 | $100,000 | $0 | $100,000 | $100,000 |
Deed and Sales History
| 1 | 03/04/2021 | WD | Warranty Deed | LARSON-GREEN, LLC | NICOLE WHITTAKER, LLC | | | $0.00 | 48376 | 4520060 |
| 2 | 02/14/2018 | QCD | Quit Claim Deed | GREEN, GARETH | LARSON-GREEN, LLC | | | $0.00 | 32999 | 4439481 |
| 3 | 01/04/2017 | WD | Warranty Deed | PICKARD FAMILY LLC ET AL | GREEN, GARETH | | | $65,000.00 | 27634 | 4414662 |
| 4 | 03/25/1999 | BLA | DNU - Boundary Line Adjustment | Unknown | PICKARD ET AL, HERBERT | | | $0.00 | 68212 | 98020512 |
| 5 | 01/25/1999 | QCD | Quit Claim Deed | PICKARD ET AL, HERBERT | PICKARD FAMILY LLC ET AL, | | | $0.00 | 90614 | 99004313 |
Payout Agreement
| No payout information available.. |