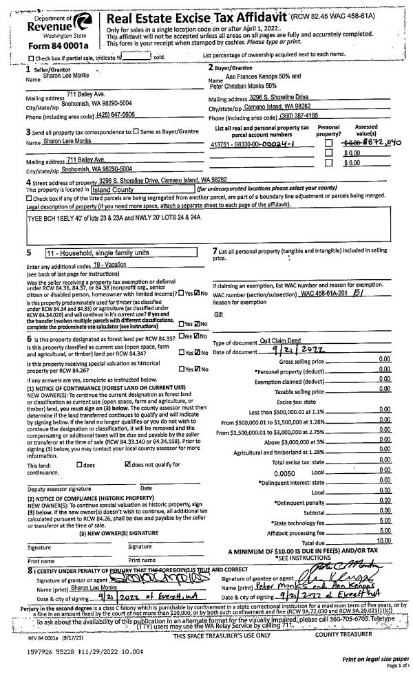
Property
Account |
| Property ID: | 800701 | Abbreviated Legal Description: | PT OF FOLL DESC LY ELY OF W CAMANO DR: TR 18 - N268' OF GL1 INCL ADJ TIDES |
| Geographic ID: | R33005-523-1720 | Agent Code: | |
| Type: | Real | | |
| Tax Area: | 542 - APPRAISER-Stan/Cam Schl Dist, Special Dist, improved, greater than 1 acre | Land Use Code | 11 |
| Open Space: | N | DFL | N |
| Historic Property: | N | Remodel Property: | N |
| Multi-Family Redevelopment: | N | | |
| Township: | 30 | Section: | 05 |
| Range: | R3 |
Location |
| Address: | 2415 SOUTH CAMANO DR CAMANO ISLAND, WA 98282 | Mapsco: | |
| Neighborhood: | Cycle 5 | Map ID: | 856 |
| Neighborhood CD: | 5 |
Owner |
| Name: | GRAHAM, DENNIS T | Owner ID: | 181163 |
| Mailing Address: | JUDY A GRAHAM 1992 ELGER BAY RD PMB 553 CAMANO ISLAND, WA 98282-8344 | % Ownership: | 100.0000000000% |
| | | Exemptions: | |
Taxes and Assessment Details
Values
| (+) Improvement Homesite Value: | + | $0 | |
| (+) Improvement Non-Homesite Value: | + | $157,044 | |
| (+) Land Homesite Value: | + | $0 | |
| (+) Land Non-Homesite Value: | + | $290,000 | |
| (+) Curr Use (HS): | + | $0 | $0 |
| (+) Curr Use (NHS): | + | $0 | $0 |
| | | -------------------------- | |
| (=) Market Value: | = | $447,044 | |
| (–) Productivity Loss: | – | $0 | |
| | | -------------------------- | |
| (=) Subtotal: | = | $447,044 | |
| (+) Senior Appraised Value: | + | $0 | |
| (+) Non-Senior Appraised Value: | + | $447,044 | |
| | | -------------------------- | |
| (=) Total Appraised Value: | = | $447,044 | |
| (–) Senior Exemption Loss: | – | $0 | |
| (–) Exemption Loss: | – | $0 | |
| | | -------------------------- | |
| (=) Taxable Value: | = | $447,044 | |
Taxing Jurisdiction
| Owner: | GRAHAM, DENNIS T | | |
| % Ownership: | 100.0000000000% | | |
| Total Value: | $447,044 | | |
| Tax Area: | 542 - APPRAISER-Stan/Cam Schl Dist, Special Dist, improved, greater than 1 acre |
| CF | Conservation Futures | 0.0316035091 | $447,044 | $447,044 | $14.13 | | |
| EMS1 | Fire & Rescue Dist #1 Camano GEN (EMS) | 0.3677864386 | $447,044 | $447,044 | $164.42 | | |
| FIRE1 | Fire & Rescue Dist #1 Camano GEN | 1.2502910536 | $447,044 | $447,044 | $558.94 | | |
| FIRE1BOND | Fire & Rescue Dist #1 Camano BOND | 0.1570001679 | $447,044 | $447,044 | $70.19 | | |
| CE | County Current Expense | 0.3708482477 | $447,044 | $447,044 | $165.79 | | |
| CR | County Roads | 0.4584763726 | $447,044 | $447,044 | $204.96 | | |
| LCIB | Library Sno-Isle BOND (Camano Island) | 0.0396325772 | $447,044 | $447,044 | $17.72 | | |
| LIB | Library Sno-Isle GEN | 0.3153421757 | $447,044 | $447,044 | $140.97 | | |
| SCH205_401 | School 205-401 Enrichment | 1.2698420524 | $447,044 | $447,044 | $567.68 | | |
| SCH205BOND | School 205-401 BOND | 0.9396497583 | $447,044 | $447,044 | $420.06 | | |
| ST | State School | 1.3035497053 | $447,044 | $447,044 | $582.74 | | |
| ST2 | State School Part 2 | 0.8169543533 | $447,044 | $447,044 | $365.21 | | |
| | Total Tax Rate: | 7.3209764117 | | | | | |
| | | | | Taxes w/Current Exemptions: | $3,272.81 | | |
| | | | | Taxes w/o Exemptions: | $3,272.81 | | |
Improvement / Building
| Improvement #1: | MANUFACTURED HOME | State Code: | Y | 1906.0 sqft | Value: | $157,044 |
| Bathrooms: | 2 | Bedrooms: | 3 | | Ceiling: | PLASTER PAINTED | Cooling: | EVAP NO DUCT | | Exterior Wall/Cover: | VINYL | Floor Covering: | CARPET 100% | | Floor Structure: | SLAB ON GRADE | Foundation: | SLAB | | Heating: | FHA ELECTRIC | Interior Finish: | PLASTER | | Plumbing Fixture Cnt: | 1 | Roof Slope: | FLAT | | Roof Structure/Cover: | CJ ALUMINIUM HEAVY |   |   |
|
| | Type | Description | Class CD | Sub Class CD | Year Built | Area |
| | BAS | BASE/MAIN FLOOR | 4 | 0 | 2004 | 1906.0 |
| | OWP | OPEN WOOD PORCH W/STEPS | 4 | 0 | 2004 | 0.0 |
Sketch
Property Image
Land
| 1 | 18 | AC (02.01-03.00) | 2.6800 | 116740.80 | 0.00 | 0.00 | 1.00 | $290,000 | $0 |
Roll Value History
| 2026 | N/A | N/A | N/A | N/A | N/A |
| 2025 | $157,044 | $290,000 | $0 | $447,044 | $447,044 |
| 2024 | $161,178 | $280,000 | $0 | $441,178 | $441,178 |
| 2023 | $144,005 | $220,000 | $0 | $364,005 | $364,005 |
| 2022 | $133,844 | $210,000 | $0 | $343,844 | $343,844 |
| 2021 | $110,131 | $180,000 | $0 | $290,131 | $290,131 |
| 2020 | $109,791 | $150,000 | $0 | $259,791 | $259,791 |
| 2019 | $89,486 | $200,000 | $0 | $289,486 | $289,486 |
| 2018 | $91,651 | $150,000 | $0 | $241,651 | $241,651 |
| 2017 | $93,815 | $135,000 | $0 | $228,815 | $228,815 |
| 2016 | $95,980 | $105,000 | $0 | $200,980 | $200,980 |
| 2015 | $97,062 | $50,000 | $0 | $147,062 | $147,062 |
| 2014 | $98,144 | $50,000 | $0 | $148,144 | $148,144 |
| 2013 | $105,168 | $50,000 | $0 | $155,168 | $155,168 |
| 2012 | $106,251 | $74,400 | $0 | $180,651 | $180,651 |
| 2011 | $108,415 | $93,000 | $0 | $201,415 | $201,415 |
| 2010 | $111,207 | $93,000 | $0 | $204,207 | $204,207 |
| 2009 | $113,771 | $120,000 | $0 | $233,771 | $233,771 |
| 2008 | $115,074 | $159,500 | $0 | $274,574 | $274,574 |
| 2007 | $116,321 | $159,500 | $0 | $275,821 | $275,821 |
Deed and Sales History
| 1 | 01/13/2005 | WD | Warranty Deed | BATES, MONTE A | GRAHAM, DENNIS T | | | $99,900.00 | 50243 | 4123699 |
| 2 | 08/02/2001 | ESTSEPPROP | Establish Separate Property | BATES, MONTE A | BATES, MONTE A | | | $0.00 | 12575 | 20036785 |
| 3 | 07/02/2001 | ESTSEPPROP | Establish Separate Property | Unknown | BATES, MONTE A | | | $0.00 | 12574 | 20036784 |
| 4 | 07/02/2001 | WD | Warranty Deed | JONES, GARY C | BATES, MONTE A | | | $40,000.00 | 12573 | 20036783 |
| 5 | 02/28/2000 | QCD | Quit Claim Deed | DEYOUNG, ROBERT | JONES, GARY C | | | $0.00 | 704 | 20003636 |
| 6 | 08/05/1999 | WD | Warranty Deed | JONES, GARY C | DEYOUNG, ROBERT | | | $47,000.00 | 93259 | 99018921 |
| 7 | 04/26/1999 | SEG | DNU - Segregation | Unknown | JONES, GARY C | | | $0.00 | 68240 | 0 |
Payout Agreement
| No payout information available.. |