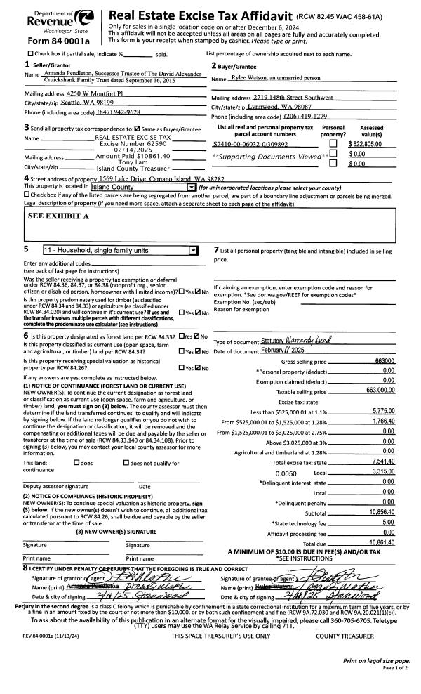
Property
Account |
| Property ID: | 800766 | Abbreviated Legal Description: | LOT 4 SP 88-96.23121.027-5320, .009-5190 & 23120.020-4470 V3 SP P230 AF#99000483 |
| Geographic ID: | R23120-019-4930 | Agent Code: | |
| Type: | Real | | |
| Tax Area: | 319 - APPRAISER-Cpvl Schl Dist, outside Cpvl, vacant & 50 acres or less | Land Use Code | 91 |
| Open Space: | N | DFL | N |
| Historic Property: | N | Remodel Property: | N |
| Multi-Family Redevelopment: | N | | |
| Township: | 31 | Section: | 20 |
| Range: | R2 |
Location |
| Address: | | Mapsco: | |
| Neighborhood: | Area 2 Waterfront Eastside Res | Map ID: | 498 |
| Neighborhood CD: | 2WFTE01R |
Owner |
| Name: | WYSOCKI, STEVEN J | Owner ID: | 281834 |
| Mailing Address: | KRISTI L WYSOCKI 760 LABRADOR LN COUPEVILLE, WA 98239 | % Ownership: | 100.0000000000% |
| | | Exemptions: | |
Taxes and Assessment Details
Values
| (+) Improvement Homesite Value: | + | $0 | |
| (+) Improvement Non-Homesite Value: | + | $0 | |
| (+) Land Homesite Value: | + | $0 | |
| (+) Land Non-Homesite Value: | + | $110,000 | |
| (+) Curr Use (HS): | + | $0 | $0 |
| (+) Curr Use (NHS): | + | $0 | $0 |
| | | -------------------------- | |
| (=) Market Value: | = | $110,000 | |
| (–) Productivity Loss: | – | $0 | |
| | | -------------------------- | |
| (=) Subtotal: | = | $110,000 | |
| (+) Senior Appraised Value: | + | $0 | |
| (+) Non-Senior Appraised Value: | + | $110,000 | |
| | | -------------------------- | |
| (=) Total Appraised Value: | = | $110,000 | |
| (–) Senior Exemption Loss: | – | $0 | |
| (–) Exemption Loss: | – | $0 | |
| | | -------------------------- | |
| (=) Taxable Value: | = | $110,000 | |
Taxing Jurisdiction
| Owner: | WYSOCKI, STEVEN J | | |
| % Ownership: | 100.0000000000% | | |
| Total Value: | $110,000 | | |
| Tax Area: | 319 - APPRAISER-Cpvl Schl Dist, outside Cpvl, vacant & 50 acres or less |
| CF | Conservation Futures | 0.0316035091 | $110,000 | $110,000 | $3.48 | | |
| CEM2 | Cemetery #2 | 0.0095056933 | $110,000 | $110,000 | $1.05 | | |
| HOBOND | Hospital BOND | 0.1910887512 | $110,000 | $110,000 | $21.02 | | |
| HOGEN | Hospital GEN | 0.3902502903 | $110,000 | $110,000 | $42.93 | | |
| CE | County Current Expense | 0.3708482477 | $110,000 | $110,000 | $40.79 | | |
| CR | County Roads | 0.4584763726 | $110,000 | $110,000 | $50.43 | | |
| ISLANDEMS | Hospital GEN (EMS) | 0.5000000000 | $110,000 | $110,000 | $55.00 | | |
| LIB | Library Sno-Isle GEN | 0.3153421757 | $110,000 | $110,000 | $34.69 | | |
| LIBCAP | Library Sno-Isle BOND (Cap Fac Imp Area) | 0.0543427938 | $110,000 | $110,000 | $5.98 | | |
| POCOUP | Port of Coupeville GEN | 0.1093371703 | $110,000 | $110,000 | $12.03 | | |
| POCOUPIDD | Port of Coupeville IDD | 0.3409740022 | $110,000 | $110,000 | $37.51 | | |
| COUPSDTECH | School 204 CP (TECH) | 0.7545480007 | $110,000 | $110,000 | $83.00 | | |
| SCH204MO | School 204 Enrichment | 0.6716186034 | $110,000 | $110,000 | $73.88 | | |
| ST | State School | 1.3035497053 | $110,000 | $110,000 | $143.39 | | |
| ST2 | State School Part 2 | 0.8169543533 | $110,000 | $110,000 | $89.86 | | |
| | Total Tax Rate: | 6.3184396689 | | | | | |
| | | | | Taxes w/Current Exemptions: | $695.04 | | |
| | | | | Taxes w/o Exemptions: | $695.04 | | |
Improvement / Building
Sketch
| No sketches available for this property. |
Property Image
Land
| 1 | MB | MEDIUM BANK | 4.9000 | 213444.00 | 350.00 | 0.00 | 1.00 | $110,000 | $0 |
Roll Value History
| 2026 | N/A | N/A | N/A | N/A | N/A |
| 2025 | $0 | $110,000 | $0 | $110,000 | $110,000 |
| 2024 | $0 | $110,000 | $0 | $110,000 | $110,000 |
| 2023 | $0 | $110,000 | $0 | $110,000 | $110,000 |
| 2022 | $0 | $110,000 | $0 | $110,000 | $110,000 |
| 2021 | $0 | $90,000 | $0 | $90,000 | $90,000 |
| 2020 | $0 | $19,600 | $0 | $19,600 | $19,600 |
| 2019 | $0 | $19,600 | $0 | $19,600 | $19,600 |
| 2018 | $0 | $19,600 | $0 | $19,600 | $19,600 |
| 2017 | $0 | $39,200 | $0 | $39,200 | $39,200 |
| 2016 | $0 | $39,200 | $0 | $39,200 | $39,200 |
| 2015 | $0 | $100,000 | $0 | $100,000 | $100,000 |
| 2014 | $0 | $150,000 | $0 | $150,000 | $150,000 |
| 2013 | $0 | $129,000 | $0 | $129,000 | $129,000 |
| 2012 | $0 | $129,000 | $0 | $129,000 | $129,000 |
| 2011 | $0 | $129,000 | $0 | $129,000 | $129,000 |
| 2010 | $0 | $129,000 | $0 | $129,000 | $129,000 |
| 2009 | $0 | $150,000 | $0 | $150,000 | $150,000 |
| 2008 | $0 | $374,832 | $0 | $374,832 | $374,832 |
| 2007 | $0 | $374,832 | $0 | $374,832 | $374,832 |
Deed and Sales History
| 1 | 09/06/2017 | WD | Warranty Deed | BRYAN TRUSTEE, EDITH L | WYSOCKI, STEVEN J | | | $1,300,000.00 | 31008 | 4429781 |
|   | |
| 2 | 01/31/2014 | TRUSTEED | Trustee's Deed | BRYAN 50% INT, KENDALL R | BRYAN TRUSTEE, EDITH L | | | $785,000.00 | 14277 | 4355435 |
|   | |
| 3 | 02/04/2014 | TRUSTEED | Trustee's Deed | BRYAN, EDITH L | BRYAN 50% INT, KENDALL R | | | $0.00 | 14276 | 4355434 |
| 4 | 09/22/2004 | WD | Warranty Deed | BRYAN, EDITH L | BRYAN, EDITH L | | | $0.00 | 44489 | 4113782 |
| 5 | 08/18/2004 | QCD | Quit Claim Deed | BRYAN, RICHARD G | BRYAN, EDITH L | | | $0.00 | 44461 | 4113542 |
| 6 | 12/21/1999 | WD | Warranty Deed | Unknown | BRYAN, RICHARD G | | | $694,070.00 | 95312 | 99029330 |
Payout Agreement
| No payout information available.. |