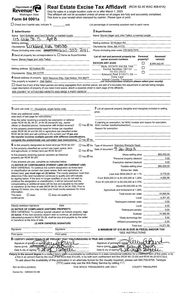
Property
Account |
| Property ID: | 800783 | Abbreviated Legal Description: | SHANNON FOREST #4 LOT 125 |
| Geographic ID: | S8152-04-00125-0 | Agent Code: | |
| Type: | Real | | |
| Tax Area: | 100 - APPRAISER-OH Schl Dist, in OH | Land Use Code | 11 |
| Open Space: | N | DFL | N |
| Historic Property: | N | Remodel Property: | N |
| Multi-Family Redevelopment: | N | | |
| Township: | | Section: | |
| Range: | |
Location |
| Address: | 711 SW OTTERCREST ST OAK HARBOR, WA 98277 | Mapsco: | |
| Neighborhood: | Cycle 1 | Map ID: | 92 |
| Neighborhood CD: | 1 |
Owner |
| Name: | WILLHOUSE, ASHLEY | Owner ID: | 301489 |
| Mailing Address: | 711 SW OTTERCREST ST OAK HARBOR, WA 98277 | % Ownership: | 100.0000000000% |
| | | Exemptions: | |
Taxes and Assessment Details
Values
| (+) Improvement Homesite Value: | + | $0 | |
| (+) Improvement Non-Homesite Value: | + | $276,717 | |
| (+) Land Homesite Value: | + | $0 | |
| (+) Land Non-Homesite Value: | + | $210,000 | |
| (+) Curr Use (HS): | + | $0 | $0 |
| (+) Curr Use (NHS): | + | $0 | $0 |
| | | -------------------------- | |
| (=) Market Value: | = | $486,717 | |
| (–) Productivity Loss: | – | $0 | |
| | | -------------------------- | |
| (=) Subtotal: | = | $486,717 | |
| (+) Senior Appraised Value: | + | $0 | |
| (+) Non-Senior Appraised Value: | + | $486,717 | |
| | | -------------------------- | |
| (=) Total Appraised Value: | = | $486,717 | |
| (–) Senior Exemption Loss: | – | $0 | |
| (–) Exemption Loss: | – | $0 | |
| | | -------------------------- | |
| (=) Taxable Value: | = | $486,717 | |
Taxing Jurisdiction
| Owner: | WILLHOUSE, ASHLEY | | |
| % Ownership: | 100.0000000000% | | |
| Total Value: | $486,717 | | |
| Tax Area: | 100 - APPRAISER-OH Schl Dist, in OH |
| CF | Conservation Futures | 0.0316035091 | $486,717 | $486,717 | $15.38 | | |
| CEM1 | Cemetery #1 | 0.0040320932 | $486,717 | $486,717 | $1.96 | | |
| COH | City of Oak Harbor | 2.3001546061 | $486,717 | $486,717 | $1,119.52 | | |
| OAKBOND | City of Oak Harbor BOND | 0.1926904192 | $486,717 | $486,717 | $93.79 | | |
| HOBOND | Hospital BOND | 0.1910887512 | $486,717 | $486,717 | $93.01 | | |
| HOGEN | Hospital GEN | 0.3902502903 | $486,717 | $486,717 | $189.94 | | |
| CE | County Current Expense | 0.3708482477 | $486,717 | $486,717 | $180.50 | | |
| ISLANDEMS | Hospital GEN (EMS) | 0.5000000000 | $486,717 | $486,717 | $243.36 | | |
| LIB | Library Sno-Isle GEN | 0.3153421757 | $486,717 | $486,717 | $153.48 | | |
| NWHIDPRMT | P & R N Whidbey GEN | 0.2004466701 | $486,717 | $486,717 | $97.56 | | |
| SCH201MO | School 201 Enrichment | 1.8559231640 | $486,717 | $486,717 | $903.31 | | |
| ST | State School | 1.3035497053 | $486,717 | $486,717 | $634.46 | | |
| ST2 | State School Part 2 | 0.8169543533 | $486,717 | $486,717 | $397.63 | | |
| | Total Tax Rate: | 8.4728839852 | | | | | |
| | | | | Taxes w/Current Exemptions: | $4,123.90 | | |
| | | | | Taxes w/o Exemptions: | $4,123.90 | | |
Improvement / Building
| Improvement #1: | RESIDENTIAL | State Code: | Y | 1566.5 sqft | Value: | $276,717 |
| Bathrooms: | 2.5 | Bedrooms: | 3 | | Ceiling: | DRYWALL PAINTED | Exterior Wall/Cover: | CEMENT FIBER | | Floor Covering: | CARPET/VINYL 60-40 | Floor Structure: | WOOD W/SUBFLOOR | | Foundation: | CONCRETE | Heating: | FHA GAS | | Interior Finish: | DRYWALL PAINT | Plumbing Fixture Cnt: | 11 | | Roof Slope: | 6" IN 12" | Roof Structure/Cover: | CJ ASPHALT |
|
| | Type | Description | Class CD | Sub Class CD | Year Built | Area |
| | BAS | BASE/MAIN FLOOR | 3 | 0 | 2000 | 884.1 |
| | OP1 | OPEN PORCH SLAB | 3 | 0 | 2000 | 300.0 |
| | BIG | BUILT IN GARAGE | 3 | 0 | 2000 | 497.3 |
| | UPS | UPPER STORY | 3 | 0 | 2000 | 682.4 |
| | OWC | OPEN WOOD PORCH W/STEPS/ROOF/C | 3 | 0 | 2000 | 135.6 |
Sketch
Property Image
Land
| 1 | 13 | SQ (06001-08000) | 0.0000 | 0.00 | 0.00 | 0.00 | 1.00 | $210,000 | $0 |
Roll Value History
| 2026 | N/A | N/A | N/A | N/A | N/A |
| 2025 | $276,717 | $210,000 | $0 | $486,717 | $486,717 |
| 2024 | $280,039 | $200,000 | $0 | $480,039 | $480,039 |
| 2023 | $283,363 | $190,000 | $0 | $473,363 | $473,363 |
| 2022 | $259,599 | $180,000 | $0 | $439,599 | $439,599 |
| 2021 | $220,498 | $120,000 | $0 | $340,498 | $340,498 |
| 2020 | $214,538 | $100,000 | $0 | $314,538 | $314,538 |
| 2019 | $155,046 | $150,000 | $0 | $305,046 | $305,046 |
| 2018 | $155,496 | $130,000 | $0 | $285,496 | $285,496 |
| 2017 | $153,428 | $110,000 | $0 | $263,428 | $263,428 |
| 2016 | $155,234 | $90,000 | $0 | $245,234 | $245,234 |
| 2015 | $157,039 | $70,000 | $0 | $227,039 | $227,039 |
| 2014 | $158,844 | $55,000 | $0 | $213,844 | $213,844 |
| 2013 | $160,649 | $55,000 | $0 | $215,649 | $215,649 |
| 2012 | $162,455 | $50,000 | $0 | $212,455 | $212,455 |
| 2011 | $161,535 | $50,000 | $0 | $211,535 | $211,535 |
| 2010 | $166,732 | $50,000 | $0 | $216,732 | $216,732 |
| 2009 | $173,853 | $75,000 | $0 | $248,853 | $248,853 |
| 2008 | $175,887 | $100,000 | $0 | $275,887 | $275,887 |
| 2007 | $176,108 | $100,000 | $0 | $276,108 | $276,108 |
Deed and Sales History
| 1 | 10/05/2021 | WD | Warranty Deed | FISHER, CAMERON W | WILLHOUSE, ASHLEY | | | $455,000.00 | 50363 | 4530871 |
| 2 | 12/30/2011 | WD | Warranty Deed | SABLAN, PATRICK C | FISHER, CAMERON W | | | $212,500.00 | 6563 | 4307621 |
| 3 | 05/23/2000 | WD | Warranty Deed | DBA KEY CONSTRUCTION, ELLSWORT | SABLAN, PATRICK C | | | $153,900.00 | 1929 | 20009324 |
| 4 | 05/23/2000 | WD | Warranty Deed | FORESIGHT INVESTMENTS INC, | DBA KEY CONSTRUCTION, ELLSWORT | | | $43,000.00 | 1928 | 20009323 |
| 5 | 01/01/1900 | OTHER | Other - Misc. Documents | Unknown | FORESIGHT INVESTMENTS INC, | | | $0.00 | 0 | 0 |
Payout Agreement
| No payout information available.. |