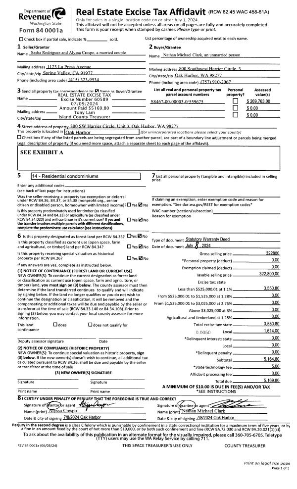
Property
Account |
| Property ID: | 800785 | Abbreviated Legal Description: | SHANNON FOREST #4 LOT 127 |
| Geographic ID: | S8152-04-00127-0 | Agent Code: | |
| Type: | Real | | |
| Tax Area: | 100 - APPRAISER-OH Schl Dist, in OH | Land Use Code | 11 |
| Open Space: | N | DFL | N |
| Historic Property: | N | Remodel Property: | N |
| Multi-Family Redevelopment: | N | | |
| Township: | | Section: | |
| Range: | |
Location |
| Address: | 741 SW OTTERCREST ST OAK HARBOR, WA 98277 | Mapsco: | |
| Neighborhood: | Cycle 1 | Map ID: | 92 |
| Neighborhood CD: | 1 |
Owner |
| Name: | VERDUZCO, DANIEL | Owner ID: | 183190 |
| Mailing Address: | JENNY VERDUZCO 741 SW OTTERCREST ST OAK HARBOR, WA 98277-7223 | % Ownership: | 100.0000000000% |
| | | Exemptions: | |
Taxes and Assessment Details
Values
| (+) Improvement Homesite Value: | + | $0 | |
| (+) Improvement Non-Homesite Value: | + | $294,211 | |
| (+) Land Homesite Value: | + | $0 | |
| (+) Land Non-Homesite Value: | + | $210,000 | |
| (+) Curr Use (HS): | + | $0 | $0 |
| (+) Curr Use (NHS): | + | $0 | $0 |
| | | -------------------------- | |
| (=) Market Value: | = | $504,211 | |
| (–) Productivity Loss: | – | $0 | |
| | | -------------------------- | |
| (=) Subtotal: | = | $504,211 | |
| (+) Senior Appraised Value: | + | $0 | |
| (+) Non-Senior Appraised Value: | + | $504,211 | |
| | | -------------------------- | |
| (=) Total Appraised Value: | = | $504,211 | |
| (–) Senior Exemption Loss: | – | $0 | |
| (–) Exemption Loss: | – | $0 | |
| | | -------------------------- | |
| (=) Taxable Value: | = | $504,211 | |
Taxing Jurisdiction
| Owner: | VERDUZCO, DANIEL | | |
| % Ownership: | 100.0000000000% | | |
| Total Value: | $504,211 | | |
| Tax Area: | 100 - APPRAISER-OH Schl Dist, in OH |
| CF | Conservation Futures | 0.0316035091 | $504,211 | $504,211 | $15.93 | | |
| CEM1 | Cemetery #1 | 0.0040320932 | $504,211 | $504,211 | $2.03 | | |
| COH | City of Oak Harbor | 2.3001546061 | $504,211 | $504,211 | $1,159.76 | | |
| OAKBOND | City of Oak Harbor BOND | 0.1926904192 | $504,211 | $504,211 | $97.16 | | |
| HOBOND | Hospital BOND | 0.1910887512 | $504,211 | $504,211 | $96.35 | | |
| HOGEN | Hospital GEN | 0.3902502903 | $504,211 | $504,211 | $196.77 | | |
| CE | County Current Expense | 0.3708482477 | $504,211 | $504,211 | $186.99 | | |
| ISLANDEMS | Hospital GEN (EMS) | 0.5000000000 | $504,211 | $504,211 | $252.11 | | |
| LIB | Library Sno-Isle GEN | 0.3153421757 | $504,211 | $504,211 | $159.00 | | |
| NWHIDPRMT | P & R N Whidbey GEN | 0.2004466701 | $504,211 | $504,211 | $101.07 | | |
| SCH201MO | School 201 Enrichment | 1.8559231640 | $504,211 | $504,211 | $935.78 | | |
| ST | State School | 1.3035497053 | $504,211 | $504,211 | $657.26 | | |
| ST2 | State School Part 2 | 0.8169543533 | $504,211 | $504,211 | $411.92 | | |
| | Total Tax Rate: | 8.4728839852 | | | | | |
| | | | | Taxes w/Current Exemptions: | $4,272.13 | | |
| | | | | Taxes w/o Exemptions: | $4,272.13 | | |
Improvement / Building
| Improvement #1: | RESIDENTIAL | State Code: | Y | 1559.1 sqft | Value: | $294,211 |
| Bathrooms: | 2 | Bedrooms: | 3 | | Ceiling: | DRYWALL PAINTED | Exterior Wall/Cover: | CEMENT FIBER | | Floor Covering: | HARDWOOD/CARP 60-40 | Floor Structure: | WOOD W/SUBFLOOR | | Foundation: | CONCRETE | Heating: | FHA GAS | | Interior Finish: | DRYWALL PAINT | Plumbing Fixture Cnt: | 9 | | Roof Slope: | 5" IN 12" | Roof Structure/Cover: | CJ ASPHALT |
|
| | Type | Description | Class CD | Sub Class CD | Year Built | Area |
| | BAS | BASE/MAIN FLOOR | 3 | 0 | 1999 | 1559.1 |
| | AGR | ATTACHED GARAGE | 3 | 0 | 1999 | 440.6 |
| | OWP | OPEN WOOD PORCH W/STEPS | 3 | 0 | 1999 | 499.2 |
| | OWC | OPEN WOOD PORCH W/STEPS/ROOF/C | 3 | 0 | 1999 | 112.8 |
Sketch
Property Image
Land
| 1 | 13 | SQ (06001-08000) | 0.0000 | 0.00 | 0.00 | 0.00 | 1.00 | $210,000 | $0 |
Roll Value History
| 2026 | N/A | N/A | N/A | N/A | N/A |
| 2025 | $294,211 | $210,000 | $0 | $504,211 | $504,211 |
| 2024 | $297,744 | $200,000 | $0 | $497,744 | $497,744 |
| 2023 | $294,211 | $190,000 | $0 | $484,211 | $484,211 |
| 2022 | $269,618 | $180,000 | $0 | $449,618 | $449,618 |
| 2021 | $237,232 | $120,000 | $0 | $357,232 | $357,232 |
| 2020 | $231,189 | $100,000 | $0 | $331,189 | $331,189 |
| 2019 | $168,969 | $150,000 | $0 | $318,969 | $318,969 |
| 2018 | $169,453 | $130,000 | $0 | $299,453 | $299,453 |
| 2017 | $161,273 | $110,000 | $0 | $271,273 | $271,273 |
| 2016 | $163,170 | $90,000 | $0 | $253,170 | $253,170 |
| 2015 | $165,067 | $70,000 | $0 | $235,067 | $235,067 |
| 2014 | $166,966 | $55,000 | $0 | $221,966 | $221,966 |
| 2013 | $168,863 | $55,000 | $0 | $223,863 | $223,863 |
| 2012 | $170,760 | $50,000 | $0 | $220,760 | $220,760 |
| 2011 | $175,699 | $50,000 | $0 | $225,699 | $225,699 |
| 2010 | $180,188 | $50,000 | $0 | $230,188 | $230,188 |
| 2009 | $187,909 | $75,000 | $0 | $262,909 | $262,909 |
| 2008 | $190,121 | $100,000 | $0 | $290,121 | $290,121 |
| 2007 | $192,324 | $100,000 | $0 | $292,324 | $292,324 |
Deed and Sales History
| 1 | 10/12/2006 | WD | Warranty Deed | INOUYE, TRAVIS T | VERDUZCO, DANIEL | | | $278,000.00 | 64493 | 4184636 |
| 2 | 09/24/2002 | WD | Warranty Deed | CONROE, JON W | INOUYE, TRAVIS T | | | $176,000.00 | 23940 | 4033099 |
| 3 | 04/28/2000 | WD | Warranty Deed | Unknown | CONROE, JON W | | | $159,000.00 | 1523 | 20007415 |
| 4 | 04/27/2000 | WD | Warranty Deed | Unknown | ELLSWORTH DEVELOPMENT INC, DBA | | | $43,000.00 | 1522 | 20007414 |
| 5 | 01/01/1900 | OTHER | Other - Misc. Documents | Unknown | FORESIGHT INVESTMENTS INC, | | | $0.00 | 0 | 0 |
Payout Agreement
| No payout information available.. |