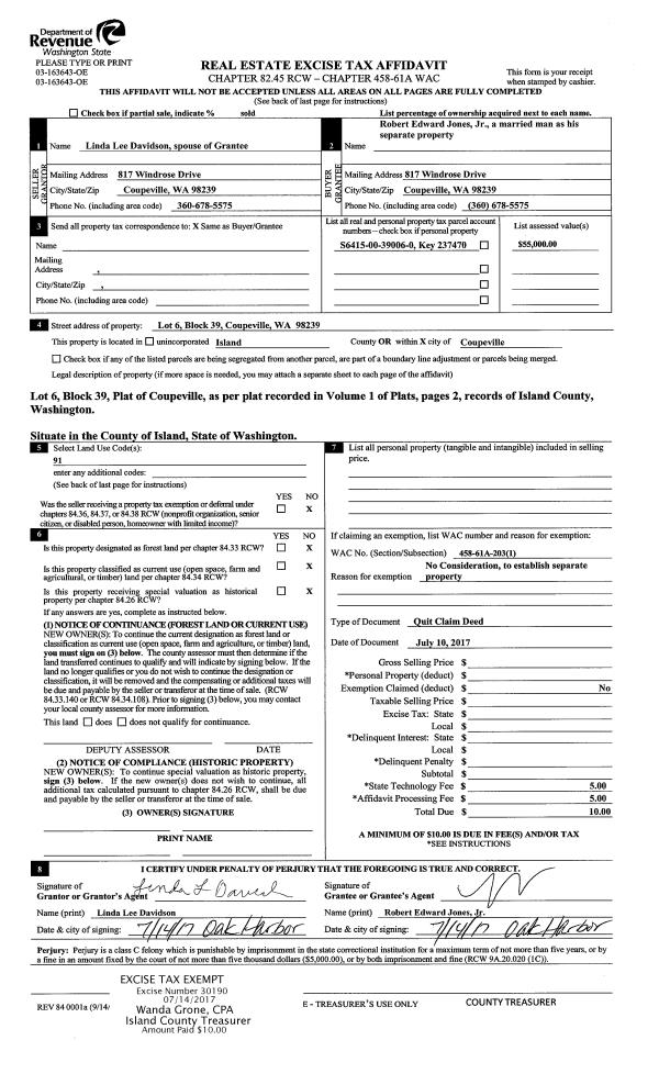
Property
Account |
| Property ID: | 800794 | Abbreviated Legal Description: | SHANNON FOREST #4 LOT 136 |
| Geographic ID: | S8152-04-00136-0 | Agent Code: | |
| Type: | Real | | |
| Tax Area: | 100 - APPRAISER-OH Schl Dist, in OH | Land Use Code | 11 |
| Open Space: | N | DFL | N |
| Historic Property: | N | Remodel Property: | N |
| Multi-Family Redevelopment: | N | | |
| Township: | | Section: | |
| Range: | |
Location |
| Address: | 729 SW ORCAS ST OAK HARBOR, WA 98277 | Mapsco: | |
| Neighborhood: | Cycle 1 | Map ID: | 92 |
| Neighborhood CD: | 1 |
Owner |
| Name: | CAMPBELL, SIRILAK S | Owner ID: | 279860 |
| Mailing Address: | 6620 ROOSEVELT WAY NE APT 611 SEATTLE, WA 98115-6783 | % Ownership: | 100.0000000000% |
| | | Exemptions: | |
Taxes and Assessment Details
Values
| (+) Improvement Homesite Value: | + | $0 | |
| (+) Improvement Non-Homesite Value: | + | $311,405 | |
| (+) Land Homesite Value: | + | $0 | |
| (+) Land Non-Homesite Value: | + | $210,000 | |
| (+) Curr Use (HS): | + | $0 | $0 |
| (+) Curr Use (NHS): | + | $0 | $0 |
| | | -------------------------- | |
| (=) Market Value: | = | $521,405 | |
| (–) Productivity Loss: | – | $0 | |
| | | -------------------------- | |
| (=) Subtotal: | = | $521,405 | |
| (+) Senior Appraised Value: | + | $0 | |
| (+) Non-Senior Appraised Value: | + | $521,405 | |
| | | -------------------------- | |
| (=) Total Appraised Value: | = | $521,405 | |
| (–) Senior Exemption Loss: | – | $0 | |
| (–) Exemption Loss: | – | $0 | |
| | | -------------------------- | |
| (=) Taxable Value: | = | $521,405 | |
Taxing Jurisdiction
| Owner: | CAMPBELL, SIRILAK S | | |
| % Ownership: | 100.0000000000% | | |
| Total Value: | $521,405 | | |
| Tax Area: | 100 - APPRAISER-OH Schl Dist, in OH |
| CF | Conservation Futures | 0.0316035091 | $521,405 | $521,405 | $16.48 | | |
| CEM1 | Cemetery #1 | 0.0040320932 | $521,405 | $521,405 | $2.10 | | |
| COH | City of Oak Harbor | 2.3001546061 | $521,405 | $521,405 | $1,199.31 | | |
| OAKBOND | City of Oak Harbor BOND | 0.1926904192 | $521,405 | $521,405 | $100.47 | | |
| HOBOND | Hospital BOND | 0.1910887512 | $521,405 | $521,405 | $99.63 | | |
| HOGEN | Hospital GEN | 0.3902502903 | $521,405 | $521,405 | $203.48 | | |
| CE | County Current Expense | 0.3708482477 | $521,405 | $521,405 | $193.36 | | |
| ISLANDEMS | Hospital GEN (EMS) | 0.5000000000 | $521,405 | $521,405 | $260.70 | | |
| LIB | Library Sno-Isle GEN | 0.3153421757 | $521,405 | $521,405 | $164.42 | | |
| NWHIDPRMT | P & R N Whidbey GEN | 0.2004466701 | $521,405 | $521,405 | $104.51 | | |
| SCH201MO | School 201 Enrichment | 1.8559231640 | $521,405 | $521,405 | $967.69 | | |
| ST | State School | 1.3035497053 | $521,405 | $521,405 | $679.68 | | |
| ST2 | State School Part 2 | 0.8169543533 | $521,405 | $521,405 | $425.96 | | |
| | Total Tax Rate: | 8.4728839852 | | | | | |
| | | | | Taxes w/Current Exemptions: | $4,417.79 | | |
| | | | | Taxes w/o Exemptions: | $4,417.79 | | |
Improvement / Building
| Improvement #1: | RESIDENTIAL | State Code: | Y | 1936.0 sqft | Value: | $311,405 |
| Bathrooms: | 2.5 | Bedrooms: | 3 | | Ceiling: | DRYWALL PAINTED | Exterior Wall/Cover: | PLY/HARDBOARD T-111 | | Floor Covering: | CARPET/VINYL 80-20 | Floor Structure: | WOOD W/SUBFLOOR | | Foundation: | CONCRETE | Heating: | FHA GAS | | Interior Finish: | DRYWALL PAINT | Plumbing Fixture Cnt: | 11 | | Roof Slope: | 5" IN 12" | Roof Structure/Cover: | CJ ASPHALT |
|
| | Type | Description | Class CD | Sub Class CD | Year Built | Area |
| | BAS | BASE/MAIN FLOOR | 3 | 0 | 1999 | 1036.0 |
| | OP4 | OPEN PORCH W/CEILING-ROOF | 3 | 0 | 1999 | 60.0 |
| | AGR | ATTACHED GARAGE | 3 | 0 | 1999 | 658.0 |
| | UPS | UPPER STORY | 3 | 0 | 1999 | 900.0 |
| | OP4 | OPEN PORCH W/CEILING-ROOF | 3 | 0 | 1999 | 150.0 |
| | OP1 | OPEN PORCH SLAB | 3 | 0 | 1999 | 724.0 |
Sketch
Property Image
Land
| 1 | 13 | SQ (06001-08000) | 0.0000 | 0.00 | 0.00 | 0.00 | 1.00 | $210,000 | $0 |
Roll Value History
| 2026 | N/A | N/A | N/A | N/A | N/A |
| 2025 | $311,405 | $210,000 | $0 | $521,405 | $521,405 |
| 2024 | $315,146 | $200,000 | $0 | $515,146 | $515,146 |
| 2023 | $311,405 | $190,000 | $0 | $501,405 | $501,405 |
| 2022 | $285,358 | $180,000 | $0 | $465,358 | $465,358 |
| 2021 | $251,078 | $120,000 | $0 | $371,078 | $371,078 |
| 2020 | $244,616 | $100,000 | $0 | $344,616 | $344,616 |
| 2019 | $184,213 | $150,000 | $0 | $334,213 | $334,213 |
| 2018 | $184,743 | $130,000 | $0 | $314,743 | $314,743 |
| 2017 | $179,699 | $110,000 | $0 | $289,699 | $289,699 |
| 2016 | $181,864 | $90,000 | $0 | $271,864 | $271,864 |
| 2015 | $184,029 | $70,000 | $0 | $254,029 | $254,029 |
| 2014 | $186,195 | $55,000 | $0 | $241,195 | $241,195 |
| 2013 | $188,359 | $55,000 | $0 | $243,359 | $243,359 |
| 2012 | $190,523 | $50,000 | $0 | $240,523 | $240,523 |
| 2011 | $188,700 | $50,000 | $0 | $238,700 | $238,700 |
| 2010 | $197,113 | $50,000 | $0 | $247,113 | $247,113 |
| 2009 | $205,539 | $75,000 | $0 | $280,539 | $280,539 |
| 2008 | $208,009 | $100,000 | $0 | $308,009 | $308,009 |
| 2007 | $210,439 | $100,000 | $0 | $310,439 | $310,439 |
Deed and Sales History
| 1 | 04/05/2017 | PRD | Personal Representatives Deed | CAMPBELL, JAMES F | CAMPBELL, SIRILAK S | | | $0.00 | 29257 | 4422385 |
| 2 | 02/02/2005 | WD | Warranty Deed | RINCK, ANTHONY J | CAMPBELL, JAMES F | | | $225,000.00 | 50489 | 4125161 |
| 3 | 08/07/2001 | DECREE | Divorce Decree/Legal Separation | RINCK, JR, ANTHONY J | RINCK, ANTHONY J | | | $0.00 | 13028 | 20039753 |
| 4 | 08/06/1999 | WD | Warranty Deed | WALDRON CONSTRUCTION INC, | RINCK, JR, ANTHONY J | | | $172,200.00 | 93248 | 99018771 |
| 5 | 05/06/1999 | WD | Warranty Deed | Unknown | WALDRON CONSTRUCTION INC, | | | $43,000.00 | 92125 | 99013154 |
Payout Agreement
| No payout information available.. |