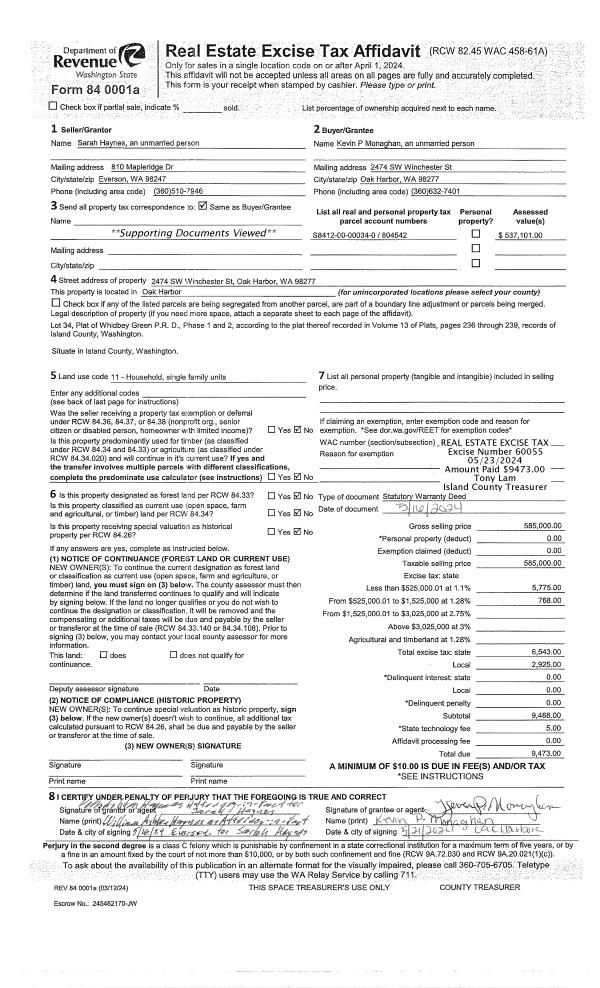
Property
Account |
| Property ID: | 800801 | Abbreviated Legal Description: | SHANNON FOREST #4 LOT 143 |
| Geographic ID: | S8152-04-00143-0 | Agent Code: | |
| Type: | Real | | |
| Tax Area: | 100 - APPRAISER-OH Schl Dist, in OH | Land Use Code | 11 |
| Open Space: | N | DFL | N |
| Historic Property: | N | Remodel Property: | N |
| Multi-Family Redevelopment: | N | | |
| Township: | | Section: | |
| Range: | |
Location |
| Address: | 724 SW ORCAS ST OAK HARBOR, WA 98277 | Mapsco: | |
| Neighborhood: | Cycle 1 | Map ID: | 92 |
| Neighborhood CD: | 1 |
Owner |
| Name: | TRACY, CHRSTIAN | Owner ID: | 312697 |
| Mailing Address: | 5984 CREEKSIDE CROSSING DR JACKSONVILLE, FL 32210 | % Ownership: | 100.0000000000% |
| | | Exemptions: | |
Taxes and Assessment Details
Values
| (+) Improvement Homesite Value: | + | $0 | |
| (+) Improvement Non-Homesite Value: | + | $257,989 | |
| (+) Land Homesite Value: | + | $0 | |
| (+) Land Non-Homesite Value: | + | $210,000 | |
| (+) Curr Use (HS): | + | $0 | $0 |
| (+) Curr Use (NHS): | + | $0 | $0 |
| | | -------------------------- | |
| (=) Market Value: | = | $467,989 | |
| (–) Productivity Loss: | – | $0 | |
| | | -------------------------- | |
| (=) Subtotal: | = | $467,989 | |
| (+) Senior Appraised Value: | + | $0 | |
| (+) Non-Senior Appraised Value: | + | $467,989 | |
| | | -------------------------- | |
| (=) Total Appraised Value: | = | $467,989 | |
| (–) Senior Exemption Loss: | – | $0 | |
| (–) Exemption Loss: | – | $0 | |
| | | -------------------------- | |
| (=) Taxable Value: | = | $467,989 | |
Taxing Jurisdiction
| Owner: | TRACY, CHRSTIAN | | |
| % Ownership: | 100.0000000000% | | |
| Total Value: | $467,989 | | |
| Tax Area: | 100 - APPRAISER-OH Schl Dist, in OH |
| CF | Conservation Futures | 0.0316035091 | $467,989 | $467,989 | $14.79 | | |
| CEM1 | Cemetery #1 | 0.0040320932 | $467,989 | $467,989 | $1.89 | | |
| COH | City of Oak Harbor | 2.3001546061 | $467,989 | $467,989 | $1,076.45 | | |
| OAKBOND | City of Oak Harbor BOND | 0.1926904192 | $467,989 | $467,989 | $90.18 | | |
| HOBOND | Hospital BOND | 0.1910887512 | $467,989 | $467,989 | $89.43 | | |
| HOGEN | Hospital GEN | 0.3902502903 | $467,989 | $467,989 | $182.63 | | |
| CE | County Current Expense | 0.3708482477 | $467,989 | $467,989 | $173.55 | | |
| ISLANDEMS | Hospital GEN (EMS) | 0.5000000000 | $467,989 | $467,989 | $233.99 | | |
| LIB | Library Sno-Isle GEN | 0.3153421757 | $467,989 | $467,989 | $147.58 | | |
| NWHIDPRMT | P & R N Whidbey GEN | 0.2004466701 | $467,989 | $467,989 | $93.81 | | |
| SCH201MO | School 201 Enrichment | 1.8559231640 | $467,989 | $467,989 | $868.55 | | |
| ST | State School | 1.3035497053 | $467,989 | $467,989 | $610.05 | | |
| ST2 | State School Part 2 | 0.8169543533 | $467,989 | $467,989 | $382.33 | | |
| | Total Tax Rate: | 8.4728839852 | | | | | |
| | | | | Taxes w/Current Exemptions: | $3,965.23 | | |
| | | | | Taxes w/o Exemptions: | $3,965.23 | | |
Improvement / Building
| Improvement #1: | RESIDENTIAL | State Code: | Y | 1302.2 sqft | Value: | $257,989 |
| Bathrooms: | 2 | Bedrooms: | 3 | | Ceiling: | DRYWALL PAINTED | Exterior Wall/Cover: | CEMENT FIBER | | Floor Covering: | CARPET/VINYL 80-20 | Floor Structure: | WOOD W/SUBFLOOR | | Foundation: | CONCRETE | Heating: | FHA GAS | | Interior Finish: | DRYWALL PAINT | Plumbing Fixture Cnt: | 9 | | Roof Slope: | 6" IN 12" | Roof Structure/Cover: | CJ ASPHALT |
|
| | Type | Description | Class CD | Sub Class CD | Year Built | Area |
| | BAS | BASE/MAIN FLOOR | 3 | 0 | 1999 | 1302.2 |
| | OP1 | OPEN PORCH SLAB | 3 | 0 | 1999 | 202.7 |
| | AGR | ATTACHED GARAGE | 3 | 0 | 1999 | 460.0 |
| | OWC | OPEN WOOD PORCH W/STEPS/ROOF/C | 3 | 0 | 1999 | 121.2 |
Sketch
Property Image
Land
| 1 | 14 | SQ (08001-12000) | 0.0000 | 0.00 | 0.00 | 0.00 | 1.00 | $210,000 | $0 |
Roll Value History
| 2026 | N/A | N/A | N/A | N/A | N/A |
| 2025 | $257,989 | $210,000 | $0 | $467,989 | $467,989 |
| 2024 | $261,015 | $200,000 | $0 | $461,015 | $461,015 |
| 2023 | $248,910 | $190,000 | $0 | $438,910 | $438,910 |
| 2022 | $228,138 | $180,000 | $0 | $408,138 | $408,138 |
| 2021 | $200,764 | $120,000 | $0 | $320,764 | $320,764 |
| 2020 | $195,374 | $100,000 | $0 | $295,374 | $295,374 |
| 2019 | $139,827 | $150,000 | $0 | $289,827 | $289,827 |
| 2018 | $140,232 | $130,000 | $0 | $270,232 | $270,232 |
| 2017 | $134,636 | $110,000 | $0 | $244,636 | $244,636 |
| 2016 | $136,259 | $90,000 | $0 | $226,259 | $226,259 |
| 2015 | $137,880 | $70,000 | $0 | $207,880 | $207,880 |
| 2014 | $139,503 | $55,000 | $0 | $194,503 | $194,503 |
| 2013 | $141,126 | $55,000 | $0 | $196,126 | $196,126 |
| 2012 | $142,747 | $50,000 | $0 | $192,747 | $192,747 |
| 2011 | $145,391 | $50,000 | $0 | $195,391 | $195,391 |
| 2010 | $147,765 | $50,000 | $0 | $197,765 | $197,765 |
| 2009 | $154,117 | $75,000 | $0 | $229,117 | $229,117 |
| 2008 | $155,968 | $100,000 | $0 | $255,968 | $255,968 |
| 2007 | $157,834 | $100,000 | $0 | $257,834 | $257,834 |
Deed and Sales History
| 1 | 06/04/2024 | WD | Warranty Deed | FOWLER III, DONALD WILLIAM | TRACY, CHRSTIAN | | | $455,000.00 | 60267 | 4573277 |
| 2 | 05/06/2013 | WD | Warranty Deed | HAWKINS, EFFIE ALICE | FOWLER III, DONALD WILLIAM | | | $201,000.00 | 11216 | 4339246 |
| 3 | 10/01/2004 | WD | Warranty Deed | JAMES, CODY L | HAWKINS, EFFIE ALICE | | | $175,900.00 | 44709 | 4114805 |
| 4 | 09/13/1999 | WD | Warranty Deed | , | JAMES, CODY L | | | $136,500.00 | 93845 | 99021461 |
| 5 | 08/25/1999 | WD | Warranty Deed | Unknown | , | | | $42,000.00 | 93844 | 99021460 |
Payout Agreement
| No payout information available.. |