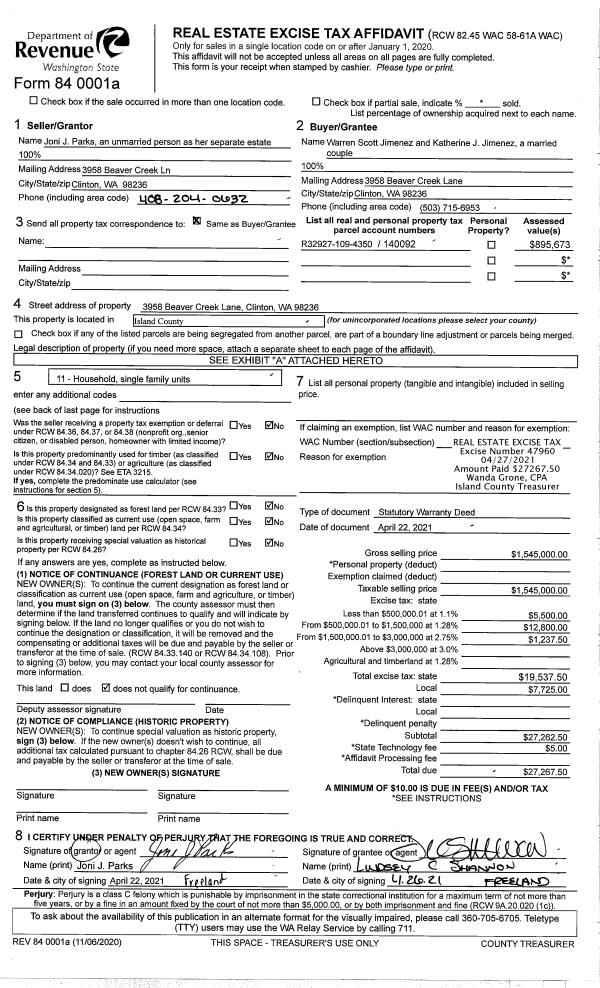
Property
Account |
| Property ID: | 800810 | Abbreviated Legal Description: | SOUTH WHIDBEY CO-HOUSING PRD LOT 1 |
| Geographic ID: | S8193-00-00001-0 | Agent Code: | |
| Type: | Real | | |
| Tax Area: | 710 - APPRAISER-S Whid Schl Dist, outside Langley, improved & 1 acre or less | Land Use Code | 11 |
| Open Space: | N | DFL | N |
| Historic Property: | N | Remodel Property: | N |
| Multi-Family Redevelopment: | N | | |
| Township: | | Section: | |
| Range: | |
Location |
| Address: | 6037 CASCARA WAY CLINTON, WA 98236 | Mapsco: | |
| Neighborhood: | Cycle 4 | Map ID: | 801 |
| Neighborhood CD: | 4 |
Owner |
| Name: | KOUBA, LEA | Owner ID: | 179987 |
| Mailing Address: | 6037 CASCARA WAY CLINTON, WA 98236-8636 | % Ownership: | 100.0000000000% |
| | | Exemptions: | |
Taxes and Assessment Details
Values
| (+) Improvement Homesite Value: | + | $0 | |
| (+) Improvement Non-Homesite Value: | + | $229,891 | |
| (+) Land Homesite Value: | + | $0 | |
| (+) Land Non-Homesite Value: | + | $240,000 | |
| (+) Curr Use (HS): | + | $0 | $0 |
| (+) Curr Use (NHS): | + | $0 | $0 |
| | | -------------------------- | |
| (=) Market Value: | = | $469,891 | |
| (–) Productivity Loss: | – | $0 | |
| | | -------------------------- | |
| (=) Subtotal: | = | $469,891 | |
| (+) Senior Appraised Value: | + | $0 | |
| (+) Non-Senior Appraised Value: | + | $469,891 | |
| | | -------------------------- | |
| (=) Total Appraised Value: | = | $469,891 | |
| (–) Senior Exemption Loss: | – | $0 | |
| (–) Exemption Loss: | – | $0 | |
| | | -------------------------- | |
| (=) Taxable Value: | = | $469,891 | |
Taxing Jurisdiction
| Owner: | KOUBA, LEA | | |
| % Ownership: | 100.0000000000% | | |
| Total Value: | $469,891 | | |
| Tax Area: | 710 - APPRAISER-S Whid Schl Dist, outside Langley, improved & 1 acre or less |
| CF | Conservation Futures | 0.0316035091 | $469,891 | $469,891 | $14.85 | | |
| FIRE3 | Fire & Rescue Dist #3 S Whidbey GEN | 1.2004855531 | $469,891 | $469,891 | $564.10 | | |
| HOBOND | Hospital BOND | 0.1910887512 | $469,891 | $469,891 | $89.79 | | |
| HOGEN | Hospital GEN | 0.3902502903 | $469,891 | $469,891 | $183.38 | | |
| CE | County Current Expense | 0.3708482477 | $469,891 | $469,891 | $174.26 | | |
| CR | County Roads | 0.4584763726 | $469,891 | $469,891 | $215.43 | | |
| ISLANDEMS | Hospital GEN (EMS) | 0.5000000000 | $469,891 | $469,891 | $234.95 | | |
| LIB | Library Sno-Isle GEN | 0.3153421757 | $469,891 | $469,891 | $148.18 | | |
| PORTWHID | Port of S Whidbey GEN | 0.1094540357 | $469,891 | $469,891 | $51.43 | | |
| SCH206BOND | School 206 BOND | 0.3161759235 | $469,891 | $469,891 | $148.57 | | |
| SCH206MO | School 206 Enrichment | 0.4547169547 | $469,891 | $469,891 | $213.67 | | |
| ST | State School | 1.3035497053 | $469,891 | $469,891 | $612.53 | | |
| ST2 | State School Part 2 | 0.8169543533 | $469,891 | $469,891 | $383.88 | | |
| SWHIDPRBD | P & R S Whidbey BOND | 0.0152817568 | $469,891 | $469,891 | $7.18 | | |
| SWHIDPRBD2 | P & R S Whidbey BOND2 | 0.0138911264 | $469,891 | $469,891 | $6.53 | | |
| SWHIDPRMT | P & R S Whidbey GEN | 0.2053334452 | $469,891 | $469,891 | $96.48 | | |
| | Total Tax Rate: | 6.6934522006 | | | | | |
| | | | | Taxes w/Current Exemptions: | $3,145.21 | | |
| | | | | Taxes w/o Exemptions: | $3,145.21 | | |
Improvement / Building
| Improvement #1: | RESIDENTIAL | State Code: | Y | 1463.0 sqft | Value: | $229,891 |
| Bathrooms: | 1 | Bedrooms: | 2 | | Ceiling: | PLASTER PAINTED | Exterior Wall/Cover: | STUCCO | | Floor Covering: | COLORED CONCRETE | Floor Structure: | SLAB ON GRADE | | Foundation: | SLAB | Heating: | RADIANT FLOOR | | Interior Finish: | PLASTER | Plumbing Fixture Cnt: | 5 | | Roof Slope: | 4" IN 12" | Roof Structure/Cover: | CJ ASPHALT |
|
| | Type | Description | Class CD | Sub Class CD | Year Built | Area |
| | BAS | BASE/MAIN FLOOR | 3 | 0 | 1999 | 1047.0 |
| | UPS | UPPER STORY | 3 | 0 | 1999 | 416.0 |
| | OWR | OPEN WOOD PORCH W/STEPS/ROOF | 3 | 0 | 1999 | 79.0 |
| | OWR | OPEN WOOD PORCH W/STEPS/ROOF | 3 | 0 | 1999 | 70.0 |
| | ENP | ENCLOSED PORCH | 3 | 0 | 1999 | 132.0 |
Sketch
Property Image
Land
| 1 | 14 | SQ (08001-12000) | 0.0000 | 0.00 | 0.00 | 0.00 | 1.00 | $240,000 | $0 |
Roll Value History
| 2026 | N/A | N/A | N/A | N/A | N/A |
| 2025 | $229,891 | $240,000 | $0 | $469,891 | $469,891 |
| 2024 | $232,721 | $240,000 | $0 | $472,721 | $472,721 |
| 2023 | $235,549 | $240,000 | $0 | $475,549 | $475,549 |
| 2022 | $215,857 | $210,000 | $0 | $425,857 | $425,857 |
| 2021 | $189,935 | $150,000 | $0 | $339,935 | $339,935 |
| 2020 | $171,619 | $135,000 | $0 | $306,619 | $306,619 |
| 2019 | $127,015 | $210,000 | $0 | $337,015 | $337,015 |
| 2018 | $127,387 | $170,000 | $0 | $297,387 | $297,387 |
| 2017 | $128,131 | $150,000 | $0 | $278,131 | $278,131 |
| 2016 | $129,622 | $120,000 | $0 | $249,622 | $249,622 |
| 2015 | $131,113 | $140,000 | $0 | $271,113 | $271,113 |
| 2014 | $123,712 | $140,000 | $0 | $263,712 | $263,712 |
| 2013 | $125,185 | $140,000 | $0 | $265,185 | $265,185 |
| 2012 | $126,657 | $140,250 | $0 | $266,907 | $266,907 |
| 2011 | $128,131 | $165,000 | $0 | $293,131 | $293,131 |
| 2010 | $132,583 | $175,000 | $0 | $307,583 | $307,583 |
| 2009 | $138,182 | $185,000 | $0 | $323,182 | $323,182 |
| 2008 | $94,849 | $110,050 | $0 | $204,899 | $204,899 |
| 2007 | $95,869 | $110,050 | $0 | $205,919 | $205,919 |
Deed and Sales History
| 1 | 08/07/1998 | QCD | Quit Claim Deed | SO WHIDBEY COHOUSING GROUP, | KOUBA, LEA | | | $0.00 | 83215 | 98016823 |
| 2 | 01/01/1900 | OTHER | Other - Misc. Documents | Unknown | SO WHIDBEY COHOUSING GROUP, | | | $0.00 | 0 | 0 |
Payout Agreement
| No payout information available.. |