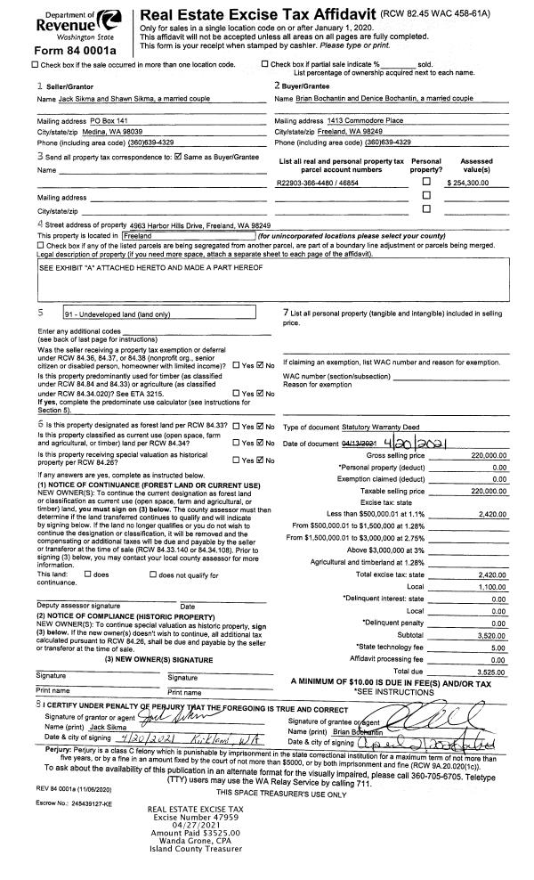
Property
Account |
| Property ID: | 800813 | Abbreviated Legal Description: | SOUTH WHIDBEY CO-HOUSING PRD LOT 4 |
| Geographic ID: | S8193-00-00004-0 | Agent Code: | |
| Type: | Real | | |
| Tax Area: | 710 - APPRAISER-S Whid Schl Dist, outside Langley, improved & 1 acre or less | Land Use Code | 11 |
| Open Space: | N | DFL | N |
| Historic Property: | N | Remodel Property: | N |
| Multi-Family Redevelopment: | N | | |
| Township: | | Section: | |
| Range: | |
Location |
| Address: | 6049 CASCARA WAY CLINTON, WA 98236 | Mapsco: | |
| Neighborhood: | Cycle 4 | Map ID: | 801 |
| Neighborhood CD: | 4 |
Owner |
| Name: | VALENZUELA, ANANDA | Owner ID: | 296376 |
| Mailing Address: | 6049 CASCARA WAY CLINTON, WA 98236 | % Ownership: | 100.0000000000% |
| | | Exemptions: | |
Taxes and Assessment Details
Values
| (+) Improvement Homesite Value: | + | $0 | |
| (+) Improvement Non-Homesite Value: | + | $139,973 | |
| (+) Land Homesite Value: | + | $0 | |
| (+) Land Non-Homesite Value: | + | $240,000 | |
| (+) Curr Use (HS): | + | $0 | $0 |
| (+) Curr Use (NHS): | + | $0 | $0 |
| | | -------------------------- | |
| (=) Market Value: | = | $379,973 | |
| (–) Productivity Loss: | – | $0 | |
| | | -------------------------- | |
| (=) Subtotal: | = | $379,973 | |
| (+) Senior Appraised Value: | + | $0 | |
| (+) Non-Senior Appraised Value: | + | $379,973 | |
| | | -------------------------- | |
| (=) Total Appraised Value: | = | $379,973 | |
| (–) Senior Exemption Loss: | – | $0 | |
| (–) Exemption Loss: | – | $0 | |
| | | -------------------------- | |
| (=) Taxable Value: | = | $379,973 | |
Taxing Jurisdiction
| Owner: | VALENZUELA, ANANDA | | |
| % Ownership: | 100.0000000000% | | |
| Total Value: | $379,973 | | |
| Tax Area: | 710 - APPRAISER-S Whid Schl Dist, outside Langley, improved & 1 acre or less |
| CF | Conservation Futures | 0.0316035091 | $379,973 | $379,973 | $12.01 | | |
| FIRE3 | Fire & Rescue Dist #3 S Whidbey GEN | 1.2004855531 | $379,973 | $379,973 | $456.15 | | |
| HOBOND | Hospital BOND | 0.1910887512 | $379,973 | $379,973 | $72.61 | | |
| HOGEN | Hospital GEN | 0.3902502903 | $379,973 | $379,973 | $148.28 | | |
| CE | County Current Expense | 0.3708482477 | $379,973 | $379,973 | $140.91 | | |
| CR | County Roads | 0.4584763726 | $379,973 | $379,973 | $174.21 | | |
| ISLANDEMS | Hospital GEN (EMS) | 0.5000000000 | $379,973 | $379,973 | $189.99 | | |
| LIB | Library Sno-Isle GEN | 0.3153421757 | $379,973 | $379,973 | $119.82 | | |
| PORTWHID | Port of S Whidbey GEN | 0.1094540357 | $379,973 | $379,973 | $41.59 | | |
| SCH206BOND | School 206 BOND | 0.3161759235 | $379,973 | $379,973 | $120.14 | | |
| SCH206MO | School 206 Enrichment | 0.4547169547 | $379,973 | $379,973 | $172.78 | | |
| ST | State School | 1.3035497053 | $379,973 | $379,973 | $495.31 | | |
| ST2 | State School Part 2 | 0.8169543533 | $379,973 | $379,973 | $310.42 | | |
| SWHIDPRBD | P & R S Whidbey BOND | 0.0152817568 | $379,973 | $379,973 | $5.81 | | |
| SWHIDPRBD2 | P & R S Whidbey BOND2 | 0.0138911264 | $379,973 | $379,973 | $5.28 | | |
| SWHIDPRMT | P & R S Whidbey GEN | 0.2053334452 | $379,973 | $379,973 | $78.02 | | |
| | Total Tax Rate: | 6.6934522006 | | | | | |
| | | | | Taxes w/Current Exemptions: | $2,543.33 | | |
| | | | | Taxes w/o Exemptions: | $2,543.33 | | |
Improvement / Building
| Improvement #1: | RESIDENTIAL | State Code: | Y | 901.4 sqft | Value: | $139,973 |
| Bathrooms: | 1 | Bedrooms: | 1 | | Ceiling: | DRYWALL PAINTED | Exterior Wall/Cover: | STUCCO | | Floor Covering: | COLORED CONCRETE | Floor Structure: | SLAB ON GRADE | | Foundation: | SLAB | Heating: | RADIANT FLOOR | | Interior Finish: | PLASTER | Plumbing Fixture Cnt: | 6 | | Roof Slope: | 5" IN 12" | Roof Structure/Cover: | CJ ALUMINIUM HEAVY |
|
| | Type | Description | Class CD | Sub Class CD | Year Built | Area |
| | BAS | BASE/MAIN FLOOR | 3 | 0 | 1999 | 589.4 |
| | LOF | LOFT | 3 | 0 | 1999 | 312.0 |
| | UTY | STORAGE/UTILITY | 3 | 0 | 1999 | 134.0 |
Sketch
Property Image
Land
| 1 | 15 | SQ (12001-21780) | 0.0000 | 0.00 | 0.00 | 0.00 | 1.00 | $240,000 | $0 |
Roll Value History
| 2026 | N/A | N/A | N/A | N/A | N/A |
| 2025 | $139,973 | $240,000 | $0 | $379,973 | $379,973 |
| 2024 | $141,696 | $240,000 | $0 | $381,696 | $381,696 |
| 2023 | $143,420 | $240,000 | $0 | $383,420 | $383,420 |
| 2022 | $131,425 | $210,000 | $0 | $341,425 | $341,425 |
| 2021 | $115,640 | $150,000 | $0 | $265,640 | $265,640 |
| 2020 | $90,887 | $135,000 | $0 | $225,887 | $225,887 |
| 2019 | $64,809 | $210,000 | $0 | $274,809 | $274,809 |
| 2018 | $64,992 | $170,000 | $0 | $234,992 | $234,992 |
| 2017 | $65,357 | $150,000 | $0 | $215,357 | $215,357 |
| 2016 | $66,089 | $120,000 | $0 | $186,089 | $186,089 |
| 2015 | $66,820 | $140,000 | $0 | $206,820 | $206,820 |
| 2014 | $61,864 | $140,000 | $0 | $201,864 | $201,864 |
| 2013 | $62,568 | $140,000 | $0 | $202,568 | $0 |
| 2012 | $63,272 | $140,250 | $0 | $203,522 | $0 |
| 2011 | $63,976 | $165,000 | $0 | $228,976 | $0 |
| 2010 | $64,776 | $170,000 | $0 | $234,776 | $0 |
| 2009 | $67,493 | $185,000 | $0 | $252,493 | $0 |
| 2008 | $46,566 | $102,950 | $0 | $149,516 | $0 |
| 2007 | $47,136 | $102,950 | $0 | $150,086 | $0 |
Deed and Sales History
| 1 | 09/30/2020 | WD | Warranty Deed | PINKENS, HENRIETTA M | VALENZUELA, ANANDA | | | $280,000.00 | 45040 | 4498309 |
| 2 | 04/29/2014 | WD | Warranty Deed | MOORE, MARGARET | PINKENS, HENRIETTA M | | | $160,000.00 | 15138 | 4358799 |
| 3 | 08/14/1998 | QCD | Quit Claim Deed | SO WHIDBEY COHOUSING GROUP, | MOORE, MARGARET | | | $0.00 | 83218 | 98016826 |
| 4 | 01/01/1900 | OTHER | Other - Misc. Documents | Unknown | SO WHIDBEY COHOUSING GROUP, | | | $0.00 | 0 | 0 |
Payout Agreement
| No payout information available.. |