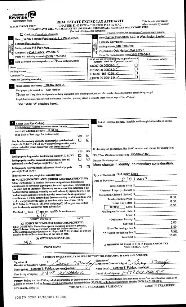
Property
Account |
| Property ID: | 800815 | Abbreviated Legal Description: | SOUTH WHIDBEY CO-HOUSING PRD LOT 6 |
| Geographic ID: | S8193-00-00006-0 | Agent Code: | |
| Type: | Real | | |
| Tax Area: | 710 - APPRAISER-S Whid Schl Dist, outside Langley, improved & 1 acre or less | Land Use Code | 11 |
| Open Space: | N | DFL | N |
| Historic Property: | N | Remodel Property: | N |
| Multi-Family Redevelopment: | N | | |
| Township: | | Section: | |
| Range: | |
Location |
| Address: | 6044 CASCARA WAY CLINTON, WA 98236 | Mapsco: | |
| Neighborhood: | Cycle 4 | Map ID: | 801 |
| Neighborhood CD: | 4 |
Owner |
| Name: | JEFFERSON-GLOOR, HEIDI | Owner ID: | 281674 |
| Mailing Address: | 6044 CASCARA WAY CLINTON, WA 98236 | % Ownership: | 100.0000000000% |
| | | Exemptions: | SNR/DSBL |
Taxes and Assessment Details
Values
| (+) Improvement Homesite Value: | + | $242,835 | |
| (+) Improvement Non-Homesite Value: | + | $0 | |
| (+) Land Homesite Value: | + | $240,000 | |
| (+) Land Non-Homesite Value: | + | $0 | |
| (+) Curr Use (HS): | + | $0 | $0 |
| (+) Curr Use (NHS): | + | $0 | $0 |
| | | -------------------------- | |
| (=) Market Value: | = | $482,835 | |
| (–) Productivity Loss: | – | $0 | |
| | | -------------------------- | |
| (=) Subtotal: | = | $482,835 | |
| (+) Senior Appraised Value: | + | $335,850 | |
| (+) Non-Senior Appraised Value: | + | $0 | |
| | | -------------------------- | |
| (=) Total Appraised Value: | = | $335,850 | |
| (–) Senior Exemption Loss: | – | $201,510 | |
| (–) Exemption Loss: | – | $0 | |
| | | -------------------------- | |
| (=) Taxable Value: | = | $134,340 | |
Taxing Jurisdiction
| Owner: | JEFFERSON-GLOOR, HEIDI | | |
| % Ownership: | 100.0000000000% | | |
| Total Value: | $482,835 | | |
| Tax Area: | 710 - APPRAISER-S Whid Schl Dist, outside Langley, improved & 1 acre or less |
| CF | Conservation Futures | 0.0316035091 | $482,835 | $134,340 | $4.25 | | |
| FIRE3 | Fire & Rescue Dist #3 S Whidbey GEN | 1.2004855531 | $482,835 | $134,340 | $161.27 | | |
| HOBOND | Hospital BOND | 0.0000000000 | $482,835 | $0 | $0.00 | | |
| HOGEN | Hospital GEN | 0.3902502903 | $482,835 | $134,340 | $52.43 | | |
| CE | County Current Expense | 0.3708482477 | $482,835 | $134,340 | $49.82 | | |
| CR | County Roads | 0.4584763726 | $482,835 | $134,340 | $61.59 | | |
| ISLANDEMS | Hospital GEN (EMS) | 0.5000000000 | $482,835 | $134,340 | $67.17 | | |
| LIB | Library Sno-Isle GEN | 0.3153421757 | $482,835 | $134,340 | $42.36 | | |
| PORTWHID | Port of S Whidbey GEN | 0.1094540357 | $482,835 | $134,340 | $14.70 | | |
| SCH206BOND | School 206 BOND | 0.3161759235 | $482,835 | $134,340 | $42.48 | | |
| SCH206MO | School 206 Enrichment | 0.0000000000 | $482,835 | $0 | $0.00 | | |
| ST | State School | 1.3035497053 | $482,835 | $134,340 | $175.12 | | |
| ST2 | State School Part 2 | 0.0000000000 | $482,835 | $0 | $0.00 | | |
| SWHIDPRBD | P & R S Whidbey BOND | 0.0000000000 | $482,835 | $0 | $0.00 | | |
| SWHIDPRBD2 | P & R S Whidbey BOND2 | 0.0000000000 | $482,835 | $0 | $0.00 | | |
| SWHIDPRMT | P & R S Whidbey GEN | 0.2053334452 | $482,835 | $134,340 | $27.58 | | |
| | Total Tax Rate: | 5.2015192582 | | | | | |
| | | | | Taxes w/Current Exemptions: | $698.77 | | |
| | | | | Taxes w/o Exemptions: | $3,231.84 | | |
Improvement / Building
| Improvement #1: | RESIDENTIAL | State Code: | Y | 1758.0 sqft | Value: | $242,835 |
| Bathrooms: | 1 | Bedrooms: | 2 | | Ceiling: | DRYWALL PAINTED | Exterior Wall/Cover: | STUCCO | | Floor Covering: | COLORED CONCRETE | Floor Structure: | SLAB ON GRADE | | Foundation: | SLAB | Heating: | RADIANT FLOOR | | Interior Finish: | DRYWALL PAINT | Plumbing Fixture Cnt: | 6 | | Roof Slope: | 12" IN 12" | Roof Structure/Cover: | CJ ASPHALT |
|
| | Type | Description | Class CD | Sub Class CD | Year Built | Area |
| | BAS | BASE/MAIN FLOOR | 4 | 0 | 1999 | 1056.8 |
| | UB8 | BASEMENT UNFINISHED 8" | 4 | 0 | 1999 | 120.0 |
| | UPS | UPPER STORY | 4 | 0 | 1999 | 363.5 |
| | LOF | LOFT | 4 | 0 | 1999 | 337.7 |
Sketch
Property Image
Land
| 1 | 15 | SQ (12001-21780) | 0.0000 | 0.00 | 0.00 | 0.00 | 1.00 | $240,000 | $0 |
Roll Value History
| 2026 | N/A | N/A | N/A | N/A | N/A |
| 2025 | $242,835 | $240,000 | $0 | $482,835 | $134,340 |
| 2024 | $245,824 | $240,000 | $0 | $485,824 | $134,340 |
| 2023 | $248,812 | $240,000 | $0 | $488,812 | $134,340 |
| 2022 | $228,010 | $210,000 | $0 | $438,010 | $134,340 |
| 2021 | $200,621 | $150,000 | $0 | $350,621 | $134,340 |
| 2020 | $167,251 | $135,000 | $0 | $302,251 | $120,900 |
| 2019 | $125,850 | $210,000 | $0 | $335,850 | $134,340 |
| 2018 | $126,224 | $170,000 | $0 | $296,224 | $296,224 |
| 2017 | $126,973 | $150,000 | $0 | $276,973 | $276,973 |
| 2016 | $128,471 | $120,000 | $0 | $248,471 | $248,471 |
| 2015 | $129,968 | $140,000 | $0 | $269,968 | $269,968 |
| 2014 | $77,454 | $140,000 | $0 | $217,454 | $217,454 |
| 2013 | $78,377 | $140,000 | $0 | $218,377 | $218,377 |
| 2012 | $79,299 | $140,250 | $0 | $219,549 | $219,549 |
| 2011 | $80,221 | $165,000 | $0 | $245,221 | $245,221 |
| 2010 | $78,457 | $170,000 | $0 | $248,457 | $248,457 |
| 2009 | $81,768 | $185,000 | $0 | $266,768 | $266,768 |
| 2008 | $82,669 | $102,950 | $0 | $185,619 | $185,619 |
| 2007 | $83,567 | $102,950 | $0 | $186,517 | $186,517 |
Deed and Sales History
| 1 | 08/22/2017 | WD | Warranty Deed | BAALKE, JOHN MARK | JEFFERSON-GLOOR, HEIDI | | | $310,000.00 | 30864 | 4429202 |
| 2 | 07/08/2013 | WD | Warranty Deed | JOSEPHS, AILENE | BAALKE, JOHN MARK | | | $240,000.00 | 12001 | 4344029 |
| 3 | 05/21/2008 | WD | Warranty Deed | MCELWAIN, JEANIE | JOSEPHS, AILENE | | | $292,500.00 | 81271 | 4229031 |
| 4 | 08/14/1998 | QCD | Quit Claim Deed | SO WHIDBEY COHOUSING GROUP, | MCELWAIN, JEANIE | | | $0.00 | 83221 | 98016828 |
| 5 | 01/01/1900 | OTHER | Other - Misc. Documents | Unknown | SO WHIDBEY COHOUSING GROUP, | | | $0.00 | 0 | 0 |
Payout Agreement
| No payout information available.. |