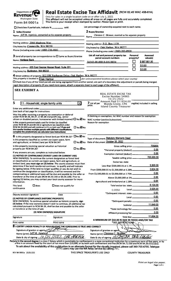
Property
Account |
| Property ID: | 800826 | Abbreviated Legal Description: | WHIDBEY COTTAGES CONDO PHASE 5 UNIT 18 2.7027% INT |
| Geographic ID: | S8408-00-00018-0 | Agent Code: | |
| Type: | Real | | |
| Tax Area: | 100 - APPRAISER-OH Schl Dist, in OH | Land Use Code | 14 |
| Open Space: | N | DFL | N |
| Historic Property: | N | Remodel Property: | N |
| Multi-Family Redevelopment: | N | | |
| Township: | | Section: | |
| Range: | |
Location |
| Address: | 161 W WHIDBEY AVE UNIT 18 OAK HARBOR, WA 98277 | Mapsco: | |
| Neighborhood: | 4B*OH-whidbey cot | Map ID: | 253 |
| Neighborhood CD: | 4B*OHwhdby |
Owner |
| Name: | MANN, BETTY G | Owner ID: | 304610 |
| Mailing Address: | 161 W. WHIDBEY AVE UNIT 18 OAK HARBOR, WA 98277 | % Ownership: | 100.0000000000% |
| | | Exemptions: | |
Taxes and Assessment Details
Values
| (+) Improvement Homesite Value: | + | $0 | |
| (+) Improvement Non-Homesite Value: | + | $229,589 | |
| (+) Land Homesite Value: | + | $0 | |
| (+) Land Non-Homesite Value: | + | $75,000 | |
| (+) Curr Use (HS): | + | $0 | $0 |
| (+) Curr Use (NHS): | + | $0 | $0 |
| | | -------------------------- | |
| (=) Market Value: | = | $304,589 | |
| (–) Productivity Loss: | – | $0 | |
| | | -------------------------- | |
| (=) Subtotal: | = | $304,589 | |
| (+) Senior Appraised Value: | + | $0 | |
| (+) Non-Senior Appraised Value: | + | $304,589 | |
| | | -------------------------- | |
| (=) Total Appraised Value: | = | $304,589 | |
| (–) Senior Exemption Loss: | – | $0 | |
| (–) Exemption Loss: | – | $0 | |
| | | -------------------------- | |
| (=) Taxable Value: | = | $304,589 | |
Taxing Jurisdiction
| Owner: | MANN, BETTY G | | |
| % Ownership: | 100.0000000000% | | |
| Total Value: | $304,589 | | |
| Tax Area: | 100 - APPRAISER-OH Schl Dist, in OH |
| CF | Conservation Futures | 0.0316035091 | $304,589 | $304,589 | $9.63 | | |
| CEM1 | Cemetery #1 | 0.0040320932 | $304,589 | $304,589 | $1.23 | | |
| COH | City of Oak Harbor | 2.3001546061 | $304,589 | $304,589 | $700.60 | | |
| OAKBOND | City of Oak Harbor BOND | 0.1926904192 | $304,589 | $304,589 | $58.69 | | |
| HOBOND | Hospital BOND | 0.1910887512 | $304,589 | $304,589 | $58.20 | | |
| HOGEN | Hospital GEN | 0.3902502903 | $304,589 | $304,589 | $118.87 | | |
| CE | County Current Expense | 0.3708482477 | $304,589 | $304,589 | $112.96 | | |
| ISLANDEMS | Hospital GEN (EMS) | 0.5000000000 | $304,589 | $304,589 | $152.29 | | |
| LIB | Library Sno-Isle GEN | 0.3153421757 | $304,589 | $304,589 | $96.05 | | |
| NWHIDPRMT | P & R N Whidbey GEN | 0.2004466701 | $304,589 | $304,589 | $61.05 | | |
| SCH201MO | School 201 Enrichment | 1.8559231640 | $304,589 | $304,589 | $565.29 | | |
| ST | State School | 1.3035497053 | $304,589 | $304,589 | $397.05 | | |
| ST2 | State School Part 2 | 0.8169543533 | $304,589 | $304,589 | $248.84 | | |
| | Total Tax Rate: | 8.4728839852 | | | | | |
| | | | | Taxes w/Current Exemptions: | $2,580.75 | | |
| | | | | Taxes w/o Exemptions: | $2,580.75 | | |
Improvement / Building
| Improvement #1: | RESIDENTIAL | State Code: | A1 | 1133.0 sqft | Value: | $229,589 |
| Bathrooms: | 2 | Bedrooms: | 2 | | Ceiling: | DRYWALL PAINTED | Exterior Wall/Cover: | PLY/HARDBOARD T-111 | | Floor Covering: | CARPET/VINYL 80-20 | Floor Structure: | WOOD W/SUBFLOOR | | Foundation: | CONCRETE | Heating: | FHA GAS | | Interior Finish: | DRYWALL PAINT | Plumbing Fixture Cnt: | 9 | | Roof Slope: | 8" IN 12" | Roof Structure/Cover: | CJ ASPHALT |
|
| | Type | Description | Class CD | Sub Class CD | Year Built | Area |
| | BAS | BASE/MAIN FLOOR | 3 | 0 | 1999 | 1133.0 |
| | OP4 | OPEN PORCH W/CEILING-ROOF | 3 | 0 | 1999 | 75.0 |
| | AGR | ATTACHED GARAGE | 3 | 0 | 1999 | 400.0 |
| | oSTR | STRUCTURE/OTHER FEAT | 3 | 0 | 1999 | 0.0 |
Sketch
Property Image
Land
| 1 | 61 | MULTIPLE RESIDENCES | 0.0000 | 4794.00 | 0.00 | 0.00 | 1.00 | $75,000 | $0 |
Roll Value History
| 2026 | N/A | N/A | N/A | N/A | N/A |
| 2025 | $229,589 | $75,000 | $0 | $304,589 | $304,589 |
| 2024 | $232,284 | $75,000 | $0 | $307,284 | $307,284 |
| 2023 | $234,978 | $60,000 | $0 | $294,978 | $294,978 |
| 2022 | $216,215 | $60,000 | $0 | $276,215 | $276,215 |
| 2021 | $191,518 | $50,000 | $0 | $241,518 | $241,518 |
| 2020 | $202,783 | $45,000 | $0 | $247,783 | $247,783 |
| 2019 | $144,750 | $70,000 | $0 | $214,750 | $214,750 |
| 2018 | $145,172 | $65,000 | $0 | $210,172 | $210,172 |
| 2017 | $146,019 | $15,000 | $0 | $161,019 | $161,019 |
| 2016 | $147,710 | $15,000 | $0 | $162,710 | $162,710 |
| 2015 | $123,472 | $15,000 | $0 | $138,472 | $138,472 |
| 2014 | $113,249 | $23,347 | $0 | $136,596 | $136,596 |
| 2013 | $114,508 | $23,347 | $0 | $137,855 | $137,855 |
| 2012 | $117,028 | $23,347 | $0 | $140,375 | $140,375 |
| 2011 | $117,028 | $23,347 | $0 | $140,375 | $140,375 |
| 2010 | $119,889 | $36,482 | $0 | $156,371 | $156,371 |
| 2009 | $147,678 | $52,734 | $0 | $200,412 | $200,412 |
| 2008 | $149,282 | $43,146 | $0 | $192,428 | $192,428 |
| 2007 | $150,873 | $43,146 | $0 | $194,019 | $194,019 |
Deed and Sales History
| 1 | 05/20/2022 | WD | Warranty Deed | AASLAND, MAURICE A | MANN, BETTY G | | | $281,000.00 | 53358 | 4546276 |
| 2 | 04/06/2015 | WD | Warranty Deed | VANCICELLI, WANDA | AASLAND, MAURICE A | | | $150,000.00 | 19104 | 4376411 |
| 3 | 06/05/2014 | CCOMPROP | Create Community Property | VANICELLI, FLAVIO | VANCICELLI, WANDA | | | $0.00 | 16957 | 4366131 |
| 4 | 08/11/2004 | WD | Warranty Deed | MCGINNIS, MERLIN R | VANICELLI, FLAVIO | | | $149,000.00 | 43860 | 4410526 |
| 5 | 05/18/1999 | WD | Warranty Deed | Unknown | MCGINNIS, MERLIN R | | | $119,950.00 | 91931 | 99012213 |
Payout Agreement
| No payout information available.. |