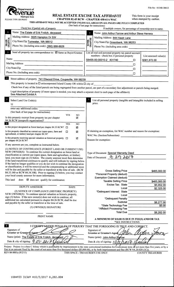
Property
Account |
| Property ID: | 800835 | Abbreviated Legal Description: | MADRONA HEIGHTS CONDO PH IV UNIT K4 2.45% INT |
| Geographic ID: | S7446-04-000K4-0 | Agent Code: | |
| Type: | Real | | |
| Tax Area: | 100 - APPRAISER-OH Schl Dist, in OH | Land Use Code | 14 |
| Open Space: | N | DFL | N |
| Historic Property: | N | Remodel Property: | N |
| Multi-Family Redevelopment: | N | | |
| Township: | | Section: | |
| Range: | |
Location |
| Address: | 30875 SR20 UNIT K4 OAK HARBOR, WA 98277 | Mapsco: | |
| Neighborhood: | 11*OH-madrona hgt | Map ID: | 91 |
| Neighborhood CD: | 11*OHmdhgt |
Owner |
| Name: | AITES, EDWARD | Owner ID: | 298103 |
| Mailing Address: | LORNA AITES 30875 SR 20 UNIT K4 OAK HARBOR, WA 98277 | % Ownership: | 100.0000000000% |
| | | Exemptions: | |
Taxes and Assessment Details
Values
| (+) Improvement Homesite Value: | + | $0 | |
| (+) Improvement Non-Homesite Value: | + | $225,383 | |
| (+) Land Homesite Value: | + | $0 | |
| (+) Land Non-Homesite Value: | + | $100,000 | |
| (+) Curr Use (HS): | + | $0 | $0 |
| (+) Curr Use (NHS): | + | $0 | $0 |
| | | -------------------------- | |
| (=) Market Value: | = | $325,383 | |
| (–) Productivity Loss: | – | $0 | |
| | | -------------------------- | |
| (=) Subtotal: | = | $325,383 | |
| (+) Senior Appraised Value: | + | $0 | |
| (+) Non-Senior Appraised Value: | + | $325,383 | |
| | | -------------------------- | |
| (=) Total Appraised Value: | = | $325,383 | |
| (–) Senior Exemption Loss: | – | $0 | |
| (–) Exemption Loss: | – | $0 | |
| | | -------------------------- | |
| (=) Taxable Value: | = | $325,383 | |
Taxing Jurisdiction
| Owner: | AITES, EDWARD | | |
| % Ownership: | 100.0000000000% | | |
| Total Value: | $325,383 | | |
| Tax Area: | 100 - APPRAISER-OH Schl Dist, in OH |
| CF | Conservation Futures | 0.0316035091 | $325,383 | $325,383 | $10.28 | | |
| CEM1 | Cemetery #1 | 0.0040320932 | $325,383 | $325,383 | $1.31 | | |
| COH | City of Oak Harbor | 2.3001546061 | $325,383 | $325,383 | $748.43 | | |
| OAKBOND | City of Oak Harbor BOND | 0.1926904192 | $325,383 | $325,383 | $62.70 | | |
| HOBOND | Hospital BOND | 0.1910887512 | $325,383 | $325,383 | $62.18 | | |
| HOGEN | Hospital GEN | 0.3902502903 | $325,383 | $325,383 | $126.98 | | |
| CE | County Current Expense | 0.3708482477 | $325,383 | $325,383 | $120.67 | | |
| ISLANDEMS | Hospital GEN (EMS) | 0.5000000000 | $325,383 | $325,383 | $162.69 | | |
| LIB | Library Sno-Isle GEN | 0.3153421757 | $325,383 | $325,383 | $102.61 | | |
| NWHIDPRMT | P & R N Whidbey GEN | 0.2004466701 | $325,383 | $325,383 | $65.22 | | |
| SCH201MO | School 201 Enrichment | 1.8559231640 | $325,383 | $325,383 | $603.89 | | |
| ST | State School | 1.3035497053 | $325,383 | $325,383 | $424.15 | | |
| ST2 | State School Part 2 | 0.8169543533 | $325,383 | $325,383 | $265.82 | | |
| | Total Tax Rate: | 8.4728839852 | | | | | |
| | | | | Taxes w/Current Exemptions: | $2,756.93 | | |
| | | | | Taxes w/o Exemptions: | $2,756.93 | | |
Improvement / Building
| Improvement #1: | RESIDENTIAL | State Code: | Y | 1221.0 sqft | Value: | $225,383 |
| Bathrooms: | 2.5 | Bedrooms: | 2 | | Ceiling: | DRYWALL PAINTED | Exterior Wall/Cover: | CEMENT FIBER | | Floor Covering: | CARPET/VINYL 80-20 | Floor Structure: | WOOD W/SUBFLOOR | | Foundation: | CONCRETE | Heating: | FHA GAS | | Interior Finish: | DRYWALL PAINT | Plumbing Fixture Cnt: | 11 | | Roof Slope: | 5" IN 12" | Roof Structure/Cover: | CJ ASPHALT |
|
| | Type | Description | Class CD | Sub Class CD | Year Built | Area |
| | BAS | BASE/MAIN FLOOR | 3 | 0 | 1999 | 576.0 |
| | OP3 | OPEN PORCH W/ROOF | 3 | 0 | 1999 | 36.0 |
| | BIG | BUILT IN GARAGE | 3 | 0 | 1999 | 576.0 |
| | UPS | UPPER STORY | 3 | 0 | 1999 | 645.0 |
| | OWP | OPEN WOOD PORCH W/STEPS | 3 | 0 | 1999 | 96.0 |
| | OWP | OPEN WOOD PORCH W/STEPS | 3 | 0 | 1999 | 72.0 |
| | oPV1 | PV/ASPH 2" | 3 | 0 | 1999 | 0.0 |
Sketch
Property Image
Land
| 1 | 61 | MULTIPLE RESIDENCES | 0.0000 | 2963.00 | 0.00 | 0.00 | 1.00 | $100,000 | $0 |
Roll Value History
| 2026 | N/A | N/A | N/A | N/A | N/A |
| 2025 | $225,383 | $100,000 | $0 | $325,383 | $325,383 |
| 2024 | $228,150 | $100,000 | $0 | $328,150 | $328,150 |
| 2023 | $219,849 | $100,000 | $0 | $319,849 | $319,849 |
| 2022 | $201,632 | $100,000 | $0 | $301,632 | $301,632 |
| 2021 | $177,589 | $70,000 | $0 | $247,589 | $247,589 |
| 2020 | $172,471 | $45,000 | $0 | $217,471 | $217,471 |
| 2019 | $120,016 | $90,000 | $0 | $210,016 | $210,016 |
| 2018 | $120,374 | $65,000 | $0 | $185,374 | $185,374 |
| 2017 | $152,894 | $8,600 | $0 | $161,494 | $161,494 |
| 2016 | $154,777 | $8,600 | $0 | $163,377 | $163,377 |
| 2015 | $132,557 | $8,600 | $0 | $141,157 | $141,157 |
| 2014 | $100,001 | $8,600 | $0 | $108,601 | $108,601 |
| 2013 | $101,189 | $8,600 | $0 | $109,789 | $109,789 |
| 2012 | $133,632 | $8,600 | $0 | $142,232 | $142,232 |
| 2011 | $133,632 | $19,348 | $0 | $152,980 | $152,980 |
| 2010 | $144,080 | $19,348 | $0 | $163,428 | $163,428 |
| 2009 | $150,256 | $41,482 | $0 | $191,738 | $191,738 |
| 2008 | $152,069 | $50,371 | $0 | $202,440 | $202,440 |
| 2007 | $153,876 | $59,260 | $0 | $213,136 | $213,136 |
Deed and Sales History
| 1 | 02/10/2021 | WD | Warranty Deed | HAMADA, MICHIKO | AITES, EDWARD | | | $274,000.00 | 46926 | 4510775 |
| 2 | 03/20/2018 | WD | Warranty Deed | TUCKERMAN, WILLIAM B | HAMADA, MICHIKO | | | $207,500.00 | 33402 | 4441367 |
| 3 | 10/10/2006 | WD | Warranty Deed | PETRIK, DRAY A | TUCKERMAN, WILLIAM B | | | $200,000.00 | 64489 | 4184626 |
| 4 | 06/19/2004 | QCD | Quit Claim Deed | PETRIK, ROGER D | PETRIK, DRAY A | | | $48,000.00 | 43058 | 4106355 |
| 5 | 05/12/2003 | WD | Warranty Deed | THOMPSON, JEFFERY D | PETRIK, ROGER D | | | $132,500.00 | 31999 | 4058731 |
| 6 | 11/12/1999 | WD | Warranty Deed | MANOR PROPERTIES II LLC, | THOMPSON, JEFFERY D | | | $126,000.00 | 94881 | 99027284 |
| 7 | 01/01/1900 | OTHER | Other - Misc. Documents | Unknown | MANOR PROPERTIES II LLC, | | | $0.00 | 0 | 0 |
Payout Agreement
| No payout information available.. |