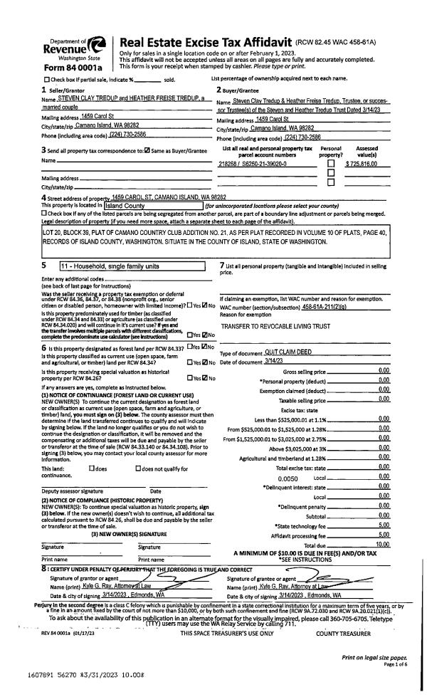
Property
Account |
| Property ID: | 800847 | Abbreviated Legal Description: | BRENTWOOD #2 - PRD LOT 26 |
| Geographic ID: | S6164-02-00026-0 | Agent Code: | |
| Type: | Real | | |
| Tax Area: | 510 - APPRAISER-Stan/Cam Schl Dist, improved & 1 acre or less | Land Use Code | 11 |
| Open Space: | N | DFL | N |
| Historic Property: | N | Remodel Property: | N |
| Multi-Family Redevelopment: | N | | |
| Township: | | Section: | |
| Range: | |
Location |
| Address: | 1039 KINGSWOOD DR CAMANO ISLAND, WA 98282 | Mapsco: | |
| Neighborhood: | North Camano | Map ID: | 557 |
| Neighborhood CD: | 06-C |
Owner |
| Name: | ANDERSON, MARSHALL W | Owner ID: | 187308 |
| Mailing Address: | BEVERLY A ANDERSON 1039 KINGSWOOD DR CAMANO ISLAND, WA 98282-6680 | % Ownership: | 100.0000000000% |
| | | Exemptions: | |
Taxes and Assessment Details
Values
| (+) Improvement Homesite Value: | + | $0 | |
| (+) Improvement Non-Homesite Value: | + | $594,244 | |
| (+) Land Homesite Value: | + | $0 | |
| (+) Land Non-Homesite Value: | + | $670,000 | |
| (+) Curr Use (HS): | + | $0 | $0 |
| (+) Curr Use (NHS): | + | $0 | $0 |
| | | -------------------------- | |
| (=) Market Value: | = | $1,264,244 | |
| (–) Productivity Loss: | – | $0 | |
| | | -------------------------- | |
| (=) Subtotal: | = | $1,264,244 | |
| (+) Senior Appraised Value: | + | $0 | |
| (+) Non-Senior Appraised Value: | + | $1,264,244 | |
| | | -------------------------- | |
| (=) Total Appraised Value: | = | $1,264,244 | |
| (–) Senior Exemption Loss: | – | $0 | |
| (–) Exemption Loss: | – | $0 | |
| | | -------------------------- | |
| (=) Taxable Value: | = | $1,264,244 | |
Taxing Jurisdiction
| Owner: | ANDERSON, MARSHALL W | | |
| % Ownership: | 100.0000000000% | | |
| Total Value: | $1,264,244 | | |
| Tax Area: | 510 - APPRAISER-Stan/Cam Schl Dist, improved & 1 acre or less |
| CF | Conservation Futures | 0.0316035091 | $1,264,244 | $1,264,244 | $39.95 | | |
| EMS1 | Fire & Rescue Dist #1 Camano GEN (EMS) | 0.3677864386 | $1,264,244 | $1,264,244 | $464.97 | | |
| FIRE1 | Fire & Rescue Dist #1 Camano GEN | 1.2502910536 | $1,264,244 | $1,264,244 | $1,580.67 | | |
| FIRE1BOND | Fire & Rescue Dist #1 Camano BOND | 0.1570001679 | $1,264,244 | $1,264,244 | $198.49 | | |
| CE | County Current Expense | 0.3708482477 | $1,264,244 | $1,264,244 | $468.84 | | |
| CR | County Roads | 0.4584763726 | $1,264,244 | $1,264,244 | $579.63 | | |
| LCIB | Library Sno-Isle BOND (Camano Island) | 0.0396325772 | $1,264,244 | $1,264,244 | $50.11 | | |
| LIB | Library Sno-Isle GEN | 0.3153421757 | $1,264,244 | $1,264,244 | $398.67 | | |
| SCH205_401 | School 205-401 Enrichment | 1.2698420524 | $1,264,244 | $1,264,244 | $1,605.39 | | |
| SCH205BOND | School 205-401 BOND | 0.9396497583 | $1,264,244 | $1,264,244 | $1,187.95 | | |
| ST | State School | 1.3035497053 | $1,264,244 | $1,264,244 | $1,648.00 | | |
| ST2 | State School Part 2 | 0.8169543533 | $1,264,244 | $1,264,244 | $1,032.83 | | |
| | Total Tax Rate: | 7.3209764117 | | | | | |
| | | | | Taxes w/Current Exemptions: | $9,255.50 | | |
| | | | | Taxes w/o Exemptions: | $9,255.50 | | |
Improvement / Building
| Improvement #1: | RESIDENTIAL | State Code: | Y | 2536.1 sqft | Value: | $594,244 |
| Bathrooms: | 2.5 | Bedrooms: | 3 | | Ceiling: | DRYWALL PAINTED | Cooling: | HEAT PUMP/CONV/V | | Exterior Wall/Cover: | WOOD SIDING | Floor Covering: | HARDWOOD/CARP 20-80 | | Floor Structure: | WOOD W/SUBFLOOR | Foundation: | CONCRETE | | Heating: | (NONE) | Interior Finish: | DRYWALL PAINT | | Plumbing Fixture Cnt: | 14 | Roof Slope: | 8" IN 12" | | Roof Structure/Cover: | CJ ASPHALT |   |   |
|
| | Type | Description | Class CD | Sub Class CD | Year Built | Area |
| | BAS | BASE/MAIN FLOOR | 4 | 0 | 2000 | 2536.1 |
| | OP1 | OPEN PORCH SLAB | 4 | 0 | 2000 | 139.8 |
| | AGR | ATTACHED GARAGE | 4 | 0 | 2000 | 904.1 |
| | OWP | OPEN WOOD PORCH W/STEPS | 4 | 0 | 2000 | 225.8 |
| | OP4 | OPEN PORCH W/CEILING-ROOF | 4 | 0 | 2000 | 64.0 |
Sketch
Property Image
Land
| 1 | 15 | SQ (12001-21780) | 0.0000 | 0.00 | 0.00 | 0.00 | 1.00 | $670,000 | $0 |
Roll Value History
| 2026 | N/A | N/A | N/A | N/A | N/A |
| 2025 | $594,244 | $670,000 | $0 | $1,264,244 | $1,264,244 |
| 2024 | $601,056 | $675,000 | $0 | $1,276,056 | $1,276,056 |
| 2023 | $607,867 | $675,000 | $0 | $1,282,867 | $1,282,867 |
| 2022 | $531,925 | $450,000 | $0 | $981,925 | $981,925 |
| 2021 | $467,892 | $220,000 | $0 | $687,892 | $687,892 |
| 2020 | $455,802 | $220,000 | $0 | $675,802 | $675,802 |
| 2019 | $343,084 | $290,000 | $0 | $633,084 | $633,084 |
| 2018 | $344,044 | $250,000 | $0 | $594,044 | $594,044 |
| 2017 | $345,953 | $180,000 | $0 | $525,953 | $525,953 |
| 2016 | $337,681 | $175,000 | $0 | $512,681 | $512,681 |
| 2015 | $337,006 | $150,000 | $0 | $487,006 | $487,006 |
| 2014 | $340,795 | $150,000 | $0 | $490,795 | $490,795 |
| 2013 | $344,582 | $150,000 | $0 | $494,582 | $494,582 |
| 2012 | $348,366 | $152,000 | $0 | $500,366 | $500,366 |
| 2011 | $352,154 | $190,000 | $0 | $542,154 | $542,154 |
| 2010 | $355,552 | $240,000 | $0 | $595,552 | $595,552 |
| 2009 | $370,641 | $300,000 | $0 | $670,641 | $670,641 |
| 2008 | $374,913 | $300,000 | $0 | $674,913 | $674,913 |
| 2007 | $375,267 | $300,000 | $0 | $675,267 | $675,267 |
Deed and Sales History
| 1 | 04/05/2005 | WD | Warranty Deed | BOTTEM, COLIN | ANDERSON, MARSHALL W | | | $649,950.00 | 51363 | 4130120 |
| 2 | 02/13/2002 | WD | Warranty Deed | MUELLER, ERIK | BOTTEM, COLIN | | | $384,000.00 | 20628 | 4011890 |
| 3 | 03/22/2000 | WD | Warranty Deed | CREC 401(K) PROFIT SHARING, | MUELLER, ERIK | | | $124,800.00 | 1155 | 20005645 |
| 4 | 01/01/1900 | OTHER | Other - Misc. Documents | Unknown | CREC 401(K) PROFIT SHARING, | | | $0.00 | 0 | 0 |
Payout Agreement
| No payout information available.. |