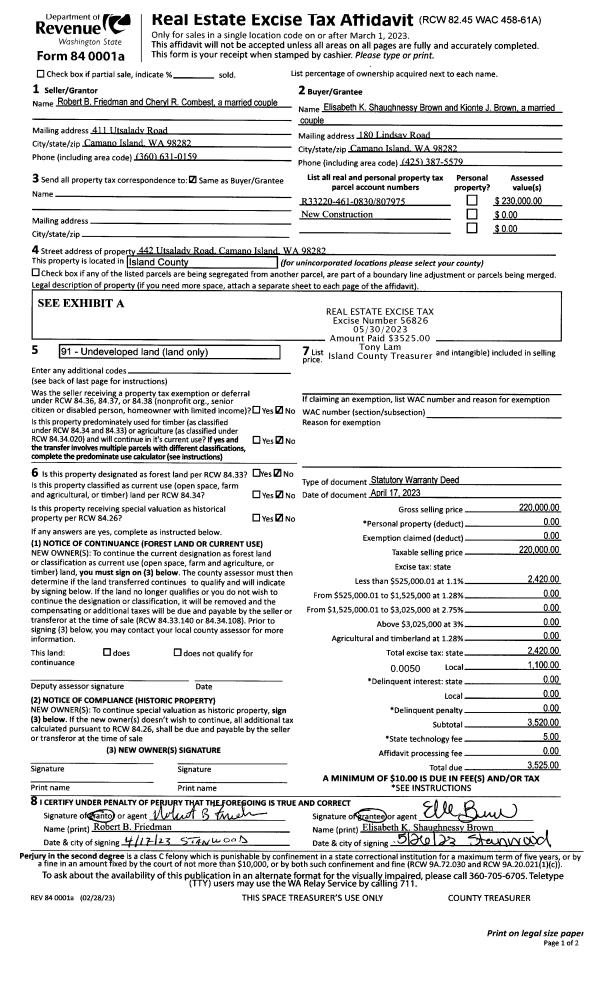
Property
Account |
| Property ID: | 800852 | Abbreviated Legal Description: | BRENTWOOD #2 - PRD LOT 31 |
| Geographic ID: | S6164-02-00031-0 | Agent Code: | |
| Type: | Real | | |
| Tax Area: | 510 - APPRAISER-Stan/Cam Schl Dist, improved & 1 acre or less | Land Use Code | 11 |
| Open Space: | N | DFL | N |
| Historic Property: | N | Remodel Property: | N |
| Multi-Family Redevelopment: | N | | |
| Township: | | Section: | |
| Range: | |
Location |
| Address: | 428 BRENTWOOD DR CAMANO ISLAND, WA 98282 | Mapsco: | |
| Neighborhood: | North Camano | Map ID: | 557 |
| Neighborhood CD: | 06-C |
Owner |
| Name: | GILMORE, JEFFREY D | Owner ID: | 281318 |
| Mailing Address: | LAURIE A HEYDEN 428 BRENTWOOD DR CAMANO ISLAND, WA 98282 | % Ownership: | 100.0000000000% |
| | | Exemptions: | |
Taxes and Assessment Details
Values
| (+) Improvement Homesite Value: | + | $0 | |
| (+) Improvement Non-Homesite Value: | + | $836,915 | |
| (+) Land Homesite Value: | + | $0 | |
| (+) Land Non-Homesite Value: | + | $360,000 | |
| (+) Curr Use (HS): | + | $0 | $0 |
| (+) Curr Use (NHS): | + | $0 | $0 |
| | | -------------------------- | |
| (=) Market Value: | = | $1,196,915 | |
| (–) Productivity Loss: | – | $0 | |
| | | -------------------------- | |
| (=) Subtotal: | = | $1,196,915 | |
| (+) Senior Appraised Value: | + | $0 | |
| (+) Non-Senior Appraised Value: | + | $1,196,915 | |
| | | -------------------------- | |
| (=) Total Appraised Value: | = | $1,196,915 | |
| (–) Senior Exemption Loss: | – | $0 | |
| (–) Exemption Loss: | – | $0 | |
| | | -------------------------- | |
| (=) Taxable Value: | = | $1,196,915 | |
Taxing Jurisdiction
| Owner: | GILMORE, JEFFREY D | | |
| % Ownership: | 100.0000000000% | | |
| Total Value: | $1,196,915 | | |
| Tax Area: | 510 - APPRAISER-Stan/Cam Schl Dist, improved & 1 acre or less |
| CF | Conservation Futures | 0.0316035091 | $1,196,915 | $1,196,915 | $37.83 | | |
| EMS1 | Fire & Rescue Dist #1 Camano GEN (EMS) | 0.3677864386 | $1,196,915 | $1,196,915 | $440.21 | | |
| FIRE1 | Fire & Rescue Dist #1 Camano GEN | 1.2502910536 | $1,196,915 | $1,196,915 | $1,496.49 | | |
| FIRE1BOND | Fire & Rescue Dist #1 Camano BOND | 0.1570001679 | $1,196,915 | $1,196,915 | $187.92 | | |
| CE | County Current Expense | 0.3708482477 | $1,196,915 | $1,196,915 | $443.87 | | |
| CR | County Roads | 0.4584763726 | $1,196,915 | $1,196,915 | $548.76 | | |
| LCIB | Library Sno-Isle BOND (Camano Island) | 0.0396325772 | $1,196,915 | $1,196,915 | $47.44 | | |
| LIB | Library Sno-Isle GEN | 0.3153421757 | $1,196,915 | $1,196,915 | $377.44 | | |
| SCH205_401 | School 205-401 Enrichment | 1.2698420524 | $1,196,915 | $1,196,915 | $1,519.89 | | |
| SCH205BOND | School 205-401 BOND | 0.9396497583 | $1,196,915 | $1,196,915 | $1,124.68 | | |
| ST | State School | 1.3035497053 | $1,196,915 | $1,196,915 | $1,560.24 | | |
| ST2 | State School Part 2 | 0.8169543533 | $1,196,915 | $1,196,915 | $977.82 | | |
| | Total Tax Rate: | 7.3209764117 | | | | | |
| | | | | Taxes w/Current Exemptions: | $8,762.59 | | |
| | | | | Taxes w/o Exemptions: | $8,762.59 | | |
Improvement / Building
| Improvement #1: | RESIDENTIAL | State Code: | Y | 3320.0 sqft | Value: | $836,915 |
| Bathrooms: | 2.5 | Bedrooms: | 3 | | Ceiling: | DRYWALL PAINTED | Cooling: | HEAT PUMP/CONV/V | | Exterior Wall/Cover: | CEMENT FIBER | Floor Covering: | HARDWOOD/CARP 60-40 | | Floor Structure: | WOOD W/SUBFLOOR | Foundation: | CONCRETE | | Interior Finish: | DRYWALL PAINT | Plumbing Fixture Cnt: | 14 | | Roof Slope: | 8" IN 12" | Roof Structure/Cover: | CJ ASPHALT |
|
| | Type | Description | Class CD | Sub Class CD | Year Built | Area |
| | BAS | BASE/MAIN FLOOR | 5 | 0 | 2016 | 2872.0 |
| | AGR | ATTACHED GARAGE | 5 | 0 | 2016 | 1040.0 |
| | UPS | UPPER STORY | 5 | 0 | 2016 | 448.0 |
| | OP4 | OPEN PORCH W/CEILING-ROOF | 5 | 0 | 2016 | 366.0 |
| | OP4 | OPEN PORCH W/CEILING-ROOF | 5 | 0 | 2016 | 56.0 |
Sketch
Property Image
Land
| 1 | 15 | SQ (12001-21780) | 0.0000 | 0.00 | 0.00 | 0.00 | 1.00 | $360,000 | $0 |
Roll Value History
| 2026 | N/A | N/A | N/A | N/A | N/A |
| 2025 | $836,915 | $360,000 | $0 | $1,196,915 | $1,196,915 |
| 2024 | $843,556 | $360,000 | $0 | $1,203,556 | $1,203,556 |
| 2023 | $852,413 | $360,000 | $0 | $1,212,413 | $1,212,413 |
| 2022 | $751,828 | $300,000 | $0 | $1,051,828 | $1,051,828 |
| 2021 | $658,967 | $210,000 | $0 | $868,967 | $868,967 |
| 2020 | $640,241 | $190,000 | $0 | $830,241 | $830,241 |
| 2019 | $558,977 | $230,000 | $0 | $788,977 | $788,977 |
| 2018 | $560,400 | $200,000 | $0 | $760,400 | $760,400 |
| 2017 | $568,933 | $150,000 | $0 | $718,933 | $718,933 |
| 2016 | $164,244 | $115,000 | $0 | $279,244 | $279,244 |
| 2015 | $0 | $85,000 | $0 | $85,000 | $85,000 |
| 2014 | $0 | $85,000 | $0 | $85,000 | $85,000 |
| 2013 | $0 | $85,000 | $0 | $85,000 | $85,000 |
| 2012 | $0 | $95,000 | $0 | $95,000 | $95,000 |
| 2011 | $0 | $95,000 | $0 | $95,000 | $95,000 |
| 2010 | $0 | $95,000 | $0 | $95,000 | $95,000 |
| 2009 | $0 | $100,000 | $0 | $100,000 | $100,000 |
| 2008 | $0 | $189,000 | $0 | $189,000 | $189,000 |
| 2007 | $0 | $189,000 | $0 | $189,000 | $189,000 |
Deed and Sales History
| 1 | 07/31/2017 | WD | Warranty Deed | OLSEN, REGAN | GILMORE, JEFFREY D | | | $800,000.00 | 30524 | 4427721 |
| 2 | 07/13/2015 | WD | Warranty Deed | MUELLER, GERALD | OLSEN, REGAN | | | $81,500.00 | 20457 | 4382122 |
| 3 | 02/26/2015 | WD | Warranty Deed | BUCHANAN, SCOT J | MUELLER, GERALD | | | $67,000.00 | 18637 | 4374109 |
| 4 | 12/04/2014 | DECREE | Divorce Decree/Legal Separation | BUCHANAN, SCOT | BUCHANAN, SCOT J | | | $0.00 | 17946 | 4370353 |
| 5 | 11/04/2004 | WD | Warranty Deed | CREC 401(K) PROFIT SHARING, | BUCHANAN, SCOT | | | $159,900.00 | 45357 | 4118092 |
| 6 | 01/01/1900 | OTHER | Other - Misc. Documents | Unknown | CREC 401(K) PROFIT SHARING, | | | $0.00 | 0 | 0 |
Payout Agreement
| No payout information available.. |