Property
Account |
| Property ID: | 800861 | Abbreviated Legal Description: | BRENTWOOD #2 - PRD LOT 41 |
| Geographic ID: | S6164-02-00041-0 | Agent Code: | |
| Type: | Real | | |
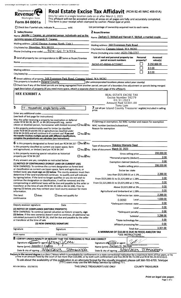
| Tax Area: | 510 - APPRAISER-Stan/Cam Schl Dist, improved & 1 acre or less | Land Use Code | 11 |
| Open Space: | N | DFL | N |
| Historic Property: | N | Remodel Property: | N |
| Multi-Family Redevelopment: | N | | |
| Township: | | Section: | |
| Range: | |
Location |
| Address: | 1096 STRATFORD LN CAMANO ISLAND, WA 98282 | Mapsco: | |
| Neighborhood: | North Camano | Map ID: | 557 |
| Neighborhood CD: | 06-C |
Owner |
| Name: | KENNARD, LARRY E | Owner ID: | 188843 |
| Mailing Address: | MARJORIE KENNARD 1096 STRATFORD LN CAMANO ISLAND, WA 98282-6678 | % Ownership: | 100.0000000000% |
| | | Exemptions: | |
Taxes and Assessment Details
Values
| (+) Improvement Homesite Value: | + | $0 | |
| (+) Improvement Non-Homesite Value: | + | $680,399 | |
| (+) Land Homesite Value: | + | $0 | |
| (+) Land Non-Homesite Value: | + | $670,000 | |
| (+) Curr Use (HS): | + | $0 | $0 |
| (+) Curr Use (NHS): | + | $0 | $0 |
| | | -------------------------- | |
| (=) Market Value: | = | $1,350,399 | |
| (–) Productivity Loss: | – | $0 | |
| | | -------------------------- | |
| (=) Subtotal: | = | $1,350,399 | |
| (+) Senior Appraised Value: | + | $0 | |
| (+) Non-Senior Appraised Value: | + | $1,350,399 | |
| | | -------------------------- | |
| (=) Total Appraised Value: | = | $1,350,399 | |
| (–) Senior Exemption Loss: | – | $0 | |
| (–) Exemption Loss: | – | $0 | |
| | | -------------------------- | |
| (=) Taxable Value: | = | $1,350,399 | |
Taxing Jurisdiction
| Owner: | KENNARD, LARRY E | | |
| % Ownership: | 100.0000000000% | | |
| Total Value: | $1,350,399 | | |
| Tax Area: | 510 - APPRAISER-Stan/Cam Schl Dist, improved & 1 acre or less |
| CF | Conservation Futures | 0.0316035091 | $1,350,399 | $1,350,399 | $42.68 | | |
| EMS1 | Fire & Rescue Dist #1 Camano GEN (EMS) | 0.3677864386 | $1,350,399 | $1,350,399 | $496.66 | | |
| FIRE1 | Fire & Rescue Dist #1 Camano GEN | 1.2502910536 | $1,350,399 | $1,350,399 | $1,688.39 | | |
| FIRE1BOND | Fire & Rescue Dist #1 Camano BOND | 0.1570001679 | $1,350,399 | $1,350,399 | $212.01 | | |
| CE | County Current Expense | 0.3708482477 | $1,350,399 | $1,350,399 | $500.79 | | |
| CR | County Roads | 0.4584763726 | $1,350,399 | $1,350,399 | $619.13 | | |
| LCIB | Library Sno-Isle BOND (Camano Island) | 0.0396325772 | $1,350,399 | $1,350,399 | $53.52 | | |
| LIB | Library Sno-Isle GEN | 0.3153421757 | $1,350,399 | $1,350,399 | $425.84 | | |
| SCH205_401 | School 205-401 Enrichment | 1.2698420524 | $1,350,399 | $1,350,399 | $1,714.79 | | |
| SCH205BOND | School 205-401 BOND | 0.9396497583 | $1,350,399 | $1,350,399 | $1,268.90 | | |
| ST | State School | 1.3035497053 | $1,350,399 | $1,350,399 | $1,760.31 | | |
| ST2 | State School Part 2 | 0.8169543533 | $1,350,399 | $1,350,399 | $1,103.21 | | |
| | Total Tax Rate: | 7.3209764117 | | | | | |
| | | | | Taxes w/Current Exemptions: | $9,886.23 | | |
| | | | | Taxes w/o Exemptions: | $9,886.23 | | |
Improvement / Building
| Improvement #1: | RESIDENTIAL | State Code: | Y | 3522.1 sqft | Value: | $680,399 |
| Bathrooms: | 3 | Bedrooms: | 2 | | Ceiling: | DRYWALL PAINTED | Cooling: | HEAT PUMP/CONV/V | | Exterior Wall/Cover: | CEMENT FIBER | Floor Covering: | HARDWOOD/CARP 80-20 | | Floor Structure: | WOOD W/SUBFLOOR | Foundation: | CONCRETE | | Interior Finish: | DRYWALL PAINT | Plumbing Fixture Cnt: | 16 | | Roof Slope: | 6" IN 12" | Roof Structure/Cover: | CJ ASPHALT |
|
| | Type | Description | Class CD | Sub Class CD | Year Built | Area |
| | BAS | BASE/MAIN FLOOR | 5 | 0 | 2005 | 2459.9 |
| | OP4 | OPEN PORCH W/CEILING-ROOF | 5 | 0 | 2005 | 86.2 |
| | AGR | ATTACHED GARAGE | 5 | 0 | 2005 | 305.5 |
| | BGR | BASEMENT GARAGE | 5 | 0 | 2005 | 676.0 |
| | OWP | OPEN WOOD PORCH W/STEPS | 5 | 0 | 2005 | 455.8 |
| | LOF | LOFT | 5 | 0 | 2005 | 538.3 |
| | DWN | DOWNSTAIRS LIVING AREA | 5 | 0 | 2005 | 523.9 |
Sketch
Property Image
Land
| 1 | 15 | SQ (12001-21780) | 0.0000 | 0.00 | 0.00 | 0.00 | 1.00 | $670,000 | $0 |
Roll Value History
| 2026 | N/A | N/A | N/A | N/A | N/A |
| 2025 | $680,399 | $670,000 | $0 | $1,350,399 | $1,350,399 |
| 2024 | $688,108 | $675,000 | $0 | $1,363,108 | $1,363,108 |
| 2023 | $693,891 | $675,000 | $0 | $1,368,891 | $1,368,891 |
| 2022 | $602,161 | $450,000 | $0 | $1,052,161 | $1,052,161 |
| 2021 | $529,681 | $220,000 | $0 | $749,681 | $749,681 |
| 2020 | $516,272 | $220,000 | $0 | $736,272 | $736,272 |
| 2019 | $439,165 | $290,000 | $0 | $729,165 | $729,165 |
| 2018 | $440,394 | $250,000 | $0 | $690,394 | $690,394 |
| 2017 | $421,855 | $180,000 | $0 | $601,855 | $601,855 |
| 2016 | $416,382 | $150,000 | $0 | $566,382 | $566,382 |
| 2015 | $421,112 | $150,000 | $0 | $571,112 | $571,112 |
| 2014 | $425,844 | $150,000 | $0 | $575,844 | $575,844 |
| 2013 | $430,577 | $150,000 | $0 | $580,577 | $580,577 |
| 2012 | $435,307 | $152,000 | $0 | $587,307 | $587,307 |
| 2011 | $440,040 | $190,000 | $0 | $630,040 | $630,040 |
| 2010 | $441,447 | $190,000 | $0 | $631,447 | $631,447 |
| 2009 | $455,118 | $200,000 | $0 | $655,118 | $655,118 |
| 2008 | $459,916 | $300,000 | $0 | $759,916 | $759,916 |
| 2007 | $464,740 | $300,000 | $0 | $764,740 | $764,740 |
Deed and Sales History
| 1 | 09/27/2002 | WD | Warranty Deed | KENNARD, LARRY E | KENNARD, LARRY E | | | $0.00 | 24287 | 4035521 |
| 2 | 09/27/2002 | WD | Warranty Deed | CREC 401(K) PROFIT SHARING, | KENNARD, LARRY E | | | $179,900.00 | 24092 | 4034100 |
| 3 | 01/01/1900 | OTHER | Other - Misc. Documents | Unknown | CREC 401(K) PROFIT SHARING, | | | $0.00 | 0 | 0 |
Payout Agreement
| No payout information available.. |