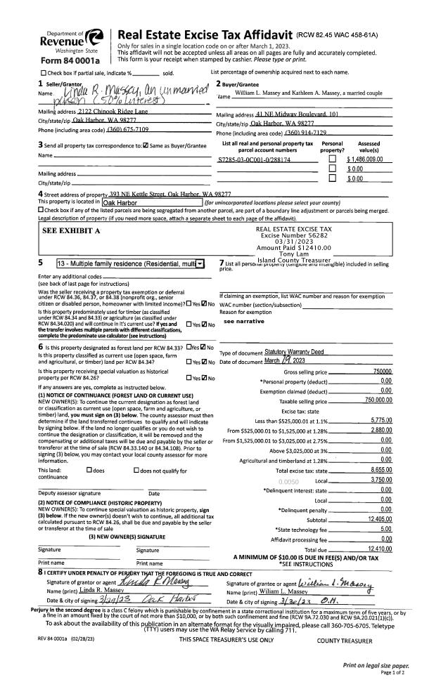
Property
Account |
| Property ID: | 800863 | Abbreviated Legal Description: | BRENTWOOD #2 - PRD LOT 44 |
| Geographic ID: | S6164-02-00044-0 | Agent Code: | |
| Type: | Real | | |
| Tax Area: | 510 - APPRAISER-Stan/Cam Schl Dist, improved & 1 acre or less | Land Use Code | 11 |
| Open Space: | N | DFL | N |
| Historic Property: | N | Remodel Property: | N |
| Multi-Family Redevelopment: | N | | |
| Township: | | Section: | |
| Range: | |
Location |
| Address: | 504 BRENTWOOD DR CAMANO ISLAND, WA 98282 | Mapsco: | |
| Neighborhood: | North Camano | Map ID: | 557 |
| Neighborhood CD: | 06-C |
Owner |
| Name: | GIANUNZIO, MICHAEL J | Owner ID: | 183975 |
| Mailing Address: | JACQUELYN B GIANUNZIO 504 BRENTWOOD DR CAMANO ISLAND, WA 98282 | % Ownership: | 100.0000000000% |
| | | Exemptions: | |
Taxes and Assessment Details
Values
| (+) Improvement Homesite Value: | + | $0 | |
| (+) Improvement Non-Homesite Value: | + | $907,358 | |
| (+) Land Homesite Value: | + | $0 | |
| (+) Land Non-Homesite Value: | + | $670,000 | |
| (+) Curr Use (HS): | + | $0 | $0 |
| (+) Curr Use (NHS): | + | $0 | $0 |
| | | -------------------------- | |
| (=) Market Value: | = | $1,577,358 | |
| (–) Productivity Loss: | – | $0 | |
| | | -------------------------- | |
| (=) Subtotal: | = | $1,577,358 | |
| (+) Senior Appraised Value: | + | $0 | |
| (+) Non-Senior Appraised Value: | + | $1,577,358 | |
| | | -------------------------- | |
| (=) Total Appraised Value: | = | $1,577,358 | |
| (–) Senior Exemption Loss: | – | $0 | |
| (–) Exemption Loss: | – | $0 | |
| | | -------------------------- | |
| (=) Taxable Value: | = | $1,577,358 | |
Taxing Jurisdiction
| Owner: | GIANUNZIO, MICHAEL J | | |
| % Ownership: | 100.0000000000% | | |
| Total Value: | $1,577,358 | | |
| Tax Area: | 510 - APPRAISER-Stan/Cam Schl Dist, improved & 1 acre or less |
| CF | Conservation Futures | 0.0316035091 | $1,577,358 | $1,577,358 | $49.85 | | |
| EMS1 | Fire & Rescue Dist #1 Camano GEN (EMS) | 0.3677864386 | $1,577,358 | $1,577,358 | $580.13 | | |
| FIRE1 | Fire & Rescue Dist #1 Camano GEN | 1.2502910536 | $1,577,358 | $1,577,358 | $1,972.16 | | |
| FIRE1BOND | Fire & Rescue Dist #1 Camano BOND | 0.1570001679 | $1,577,358 | $1,577,358 | $247.65 | | |
| CE | County Current Expense | 0.3708482477 | $1,577,358 | $1,577,358 | $584.96 | | |
| CR | County Roads | 0.4584763726 | $1,577,358 | $1,577,358 | $723.18 | | |
| LCIB | Library Sno-Isle BOND (Camano Island) | 0.0396325772 | $1,577,358 | $1,577,358 | $62.51 | | |
| LIB | Library Sno-Isle GEN | 0.3153421757 | $1,577,358 | $1,577,358 | $497.41 | | |
| SCH205_401 | School 205-401 Enrichment | 1.2698420524 | $1,577,358 | $1,577,358 | $2,003.00 | | |
| SCH205BOND | School 205-401 BOND | 0.9396497583 | $1,577,358 | $1,577,358 | $1,482.16 | | |
| ST | State School | 1.3035497053 | $1,577,358 | $1,577,358 | $2,056.16 | | |
| ST2 | State School Part 2 | 0.8169543533 | $1,577,358 | $1,577,358 | $1,288.63 | | |
| | Total Tax Rate: | 7.3209764117 | | | | | |
| | | | | Taxes w/Current Exemptions: | $11,547.80 | | |
| | | | | Taxes w/o Exemptions: | $11,547.80 | | |
Improvement / Building
| Improvement #1: | RESIDENTIAL | State Code: | Y | 3337.4 sqft | Value: | $907,358 |
| Bathrooms: | 3 | Bedrooms: | 3 | | Ceiling: | DRYWALL PAINTED | Exterior Wall/Cover: | STUCCO | | Floor Covering: | HARDWOOD/CARP 80-20 | Floor Structure: | WOOD W/SUBFLOOR | | Foundation: | CONCRETE | Heating: | FHA GAS | | Interior Finish: | DRYWALL PAINT | Plumbing Fixture Cnt: | 15 | | Roof Slope: | 4" IN 12" | Roof Structure/Cover: | CJ CLAY TILE |
|
| | Type | Description | Class CD | Sub Class CD | Year Built | Area |
| | BAS | BASE/MAIN FLOOR | 5 | 0 | 2004 | 2857.4 |
| | UB8 | BASEMENT UNFINISHED 8" | 5 | 0 | 2004 | 1800.0 |
| | OP4 | OPEN PORCH W/CEILING-ROOF | 5 | 0 | 2004 | 92.0 |
| | AGR | ATTACHED GARAGE | 5 | 0 | 2004 | 624.5 |
| | BGR | BASEMENT GARAGE | 5 | 0 | 2004 | 144.0 |
| | UPS | UPPER STORY | 5 | 0 | 2004 | 480.0 |
| | OWP | OPEN WOOD PORCH W/STEPS | 5 | 0 | 2004 | 921.1 |
| | OP1 | OPEN PORCH SLAB | 5 | 0 | 2004 | 852.0 |
Sketch
Property Image
Land
| 1 | 15 | SQ (12001-21780) | 0.0000 | 0.00 | 0.00 | 0.00 | 1.00 | $670,000 | $0 |
Roll Value History
| 2026 | N/A | N/A | N/A | N/A | N/A |
| 2025 | $907,358 | $670,000 | $0 | $1,577,358 | $1,577,358 |
| 2024 | $917,758 | $675,000 | $0 | $1,592,758 | $1,592,758 |
| 2023 | $928,158 | $675,000 | $0 | $1,603,158 | $1,603,158 |
| 2022 | $793,357 | $450,000 | $0 | $1,243,357 | $1,243,357 |
| 2021 | $698,077 | $220,000 | $0 | $918,077 | $918,077 |
| 2020 | $680,870 | $220,000 | $0 | $900,870 | $900,870 |
| 2019 | $583,455 | $290,000 | $0 | $873,455 | $873,455 |
| 2018 | $585,126 | $250,000 | $0 | $835,126 | $835,126 |
| 2017 | $588,207 | $180,000 | $0 | $768,207 | $768,207 |
| 2016 | $566,486 | $175,000 | $0 | $741,486 | $741,486 |
| 2015 | $572,997 | $150,000 | $0 | $722,997 | $722,997 |
| 2014 | $579,510 | $150,000 | $0 | $729,510 | $729,510 |
| 2013 | $586,020 | $150,000 | $0 | $736,020 | $736,020 |
| 2012 | $592,531 | $160,000 | $0 | $752,531 | $752,531 |
| 2011 | $599,041 | $200,000 | $0 | $799,041 | $799,041 |
| 2010 | $580,530 | $242,000 | $0 | $822,530 | $822,530 |
| 2009 | $611,032 | $300,000 | $0 | $911,032 | $911,032 |
| 2008 | $611,239 | $300,000 | $0 | $911,239 | $911,239 |
| 2007 | $617,693 | $300,000 | $0 | $917,693 | $917,693 |
Deed and Sales History
| 1 | 08/26/2000 | WD | Warranty Deed | CREC 401(K) PROFIT SHARING, | GIANUNZIO, MICHAEL J | | | $169,900.00 | 3323 | 20015519 |
| 2 | 01/01/1900 | OTHER | Other - Misc. Documents | Unknown | CREC 401(K) PROFIT SHARING, | | | $0.00 | 0 | 0 |
Payout Agreement
| No payout information available.. |