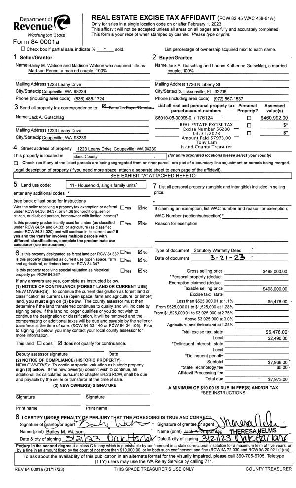
Property
Account |
| Property ID: | 800873 | Abbreviated Legal Description: | BRENTWOOD #2 - PRD LOT 42 |
| Geographic ID: | S6164-02-00042-0 | Agent Code: | |
| Type: | Real | | |
| Tax Area: | 510 - APPRAISER-Stan/Cam Schl Dist, improved & 1 acre or less | Land Use Code | 11 |
| Open Space: | N | DFL | N |
| Historic Property: | N | Remodel Property: | N |
| Multi-Family Redevelopment: | N | | |
| Township: | | Section: | |
| Range: | |
Location |
| Address: | 1101 STRATFORD LN CAMANO ISLAND, WA 98282 | Mapsco: | |
| Neighborhood: | North Camano | Map ID: | 557 |
| Neighborhood CD: | 06-C |
Owner |
| Name: | WEBSTER, MARIE D | Owner ID: | 182209 |
| Mailing Address: | 1101 STRATFORD LN CAMANO ISLAND, WA 98282-6670 | % Ownership: | 100.0000000000% |
| | | Exemptions: | |
Taxes and Assessment Details
Values
| (+) Improvement Homesite Value: | + | $0 | |
| (+) Improvement Non-Homesite Value: | + | $738,909 | |
| (+) Land Homesite Value: | + | $0 | |
| (+) Land Non-Homesite Value: | + | $670,000 | |
| (+) Curr Use (HS): | + | $0 | $0 |
| (+) Curr Use (NHS): | + | $0 | $0 |
| | | -------------------------- | |
| (=) Market Value: | = | $1,408,909 | |
| (–) Productivity Loss: | – | $0 | |
| | | -------------------------- | |
| (=) Subtotal: | = | $1,408,909 | |
| (+) Senior Appraised Value: | + | $0 | |
| (+) Non-Senior Appraised Value: | + | $1,408,909 | |
| | | -------------------------- | |
| (=) Total Appraised Value: | = | $1,408,909 | |
| (–) Senior Exemption Loss: | – | $0 | |
| (–) Exemption Loss: | – | $0 | |
| | | -------------------------- | |
| (=) Taxable Value: | = | $1,408,909 | |
Taxing Jurisdiction
| Owner: | WEBSTER, MARIE D | | |
| % Ownership: | 100.0000000000% | | |
| Total Value: | $1,408,909 | | |
| Tax Area: | 510 - APPRAISER-Stan/Cam Schl Dist, improved & 1 acre or less |
| CF | Conservation Futures | 0.0316035091 | $1,408,909 | $1,408,909 | $44.53 | | |
| EMS1 | Fire & Rescue Dist #1 Camano GEN (EMS) | 0.3677864386 | $1,408,909 | $1,408,909 | $518.18 | | |
| FIRE1 | Fire & Rescue Dist #1 Camano GEN | 1.2502910536 | $1,408,909 | $1,408,909 | $1,761.55 | | |
| FIRE1BOND | Fire & Rescue Dist #1 Camano BOND | 0.1570001679 | $1,408,909 | $1,408,909 | $221.20 | | |
| CE | County Current Expense | 0.3708482477 | $1,408,909 | $1,408,909 | $522.49 | | |
| CR | County Roads | 0.4584763726 | $1,408,909 | $1,408,909 | $645.95 | | |
| LCIB | Library Sno-Isle BOND (Camano Island) | 0.0396325772 | $1,408,909 | $1,408,909 | $55.84 | | |
| LIB | Library Sno-Isle GEN | 0.3153421757 | $1,408,909 | $1,408,909 | $444.29 | | |
| SCH205_401 | School 205-401 Enrichment | 1.2698420524 | $1,408,909 | $1,408,909 | $1,789.09 | | |
| SCH205BOND | School 205-401 BOND | 0.9396497583 | $1,408,909 | $1,408,909 | $1,323.88 | | |
| ST | State School | 1.3035497053 | $1,408,909 | $1,408,909 | $1,836.58 | | |
| ST2 | State School Part 2 | 0.8169543533 | $1,408,909 | $1,408,909 | $1,151.01 | | |
| | Total Tax Rate: | 7.3209764117 | | | | | |
| | | | | Taxes w/Current Exemptions: | $10,314.59 | | |
| | | | | Taxes w/o Exemptions: | $10,314.59 | | |
Improvement / Building
| Improvement #1: | RESIDENTIAL | State Code: | Y | 4342.0 sqft | Value: | $738,909 |
| Bathrooms: | 3 | Bedrooms: | 3 | | Ceiling: | DRYWALL PAINTED | Cooling: | HEAT PUMP/CONV/V | | Exterior Wall/Cover: | STUCCO | Floor Covering: | HARDWOOD/CARP 60-40 | | Floor Structure: | WOOD W/SUBFLOOR | Foundation: | CONCRETE | | Heating: | (NONE) | Interior Finish: | DRYWALL PAINT | | Plumbing Fixture Cnt: | 14 | Roof Slope: | 4" IN 12" | | Roof Structure/Cover: | TILE CONC WOOD JOIST |   |   |
|
| | Type | Description | Class CD | Sub Class CD | Year Built | Area |
| | BAS | BASE/MAIN FLOOR | 5 | 0 | 2001 | 3236.1 |
| | OP4 | OPEN PORCH W/CEILING-ROOF | 5 | 0 | 2001 | 60.0 |
| | AGR | ATTACHED GARAGE | 5 | 0 | 2001 | 750.0 |
| | OWP | OPEN WOOD PORCH W/STEPS | 5 | 0 | 2001 | 394.9 |
| | OWP | OPEN WOOD PORCH W/STEPS | 5 | 0 | 2001 | 152.0 |
| | DWN | DOWNSTAIRS LIVING AREA | 5 | 0 | 2001 | 1105.9 |
| | OP1 | OPEN PORCH SLAB | 5 | 0 | 2001 | 194.5 |
Sketch
Property Image
Land
| 1 | 16 | AC (00.51-01.00) | 0.0000 | 0.00 | 0.00 | 0.00 | 1.00 | $670,000 | $0 |
Roll Value History
| 2026 | N/A | N/A | N/A | N/A | N/A |
| 2025 | $738,909 | $670,000 | $0 | $1,408,909 | $1,408,909 |
| 2024 | $747,785 | $675,000 | $0 | $1,422,785 | $1,422,785 |
| 2023 | $756,661 | $675,000 | $0 | $1,431,661 | $1,431,661 |
| 2022 | $748,857 | $450,000 | $0 | $1,198,857 | $1,198,857 |
| 2021 | $659,018 | $220,000 | $0 | $879,018 | $879,018 |
| 2020 | $643,980 | $220,000 | $0 | $863,980 | $863,980 |
| 2019 | $579,562 | $290,000 | $0 | $869,562 | $869,562 |
| 2018 | $581,243 | $250,000 | $0 | $831,243 | $831,243 |
| 2017 | $584,602 | $180,000 | $0 | $764,602 | $764,602 |
| 2016 | $573,025 | $175,000 | $0 | $748,025 | $748,025 |
| 2015 | $572,523 | $150,000 | $0 | $722,523 | $722,523 |
| 2014 | $579,258 | $150,000 | $0 | $729,258 | $729,258 |
| 2013 | $585,993 | $150,000 | $0 | $735,993 | $735,993 |
| 2012 | $592,729 | $160,000 | $0 | $752,729 | $752,729 |
| 2011 | $599,465 | $200,000 | $0 | $799,465 | $799,465 |
| 2010 | $606,970 | $200,000 | $0 | $806,970 | $806,970 |
| 2009 | $632,451 | $250,000 | $0 | $882,451 | $882,451 |
| 2008 | $632,608 | $300,000 | $0 | $932,608 | $932,608 |
| 2007 | $639,457 | $300,000 | $0 | $939,457 | $939,457 |
Deed and Sales History
| 1 | 10/16/1999 | WD | Warranty Deed | CREC 401(K) PROFIT SHARING, | WEBSTER, MARIE D | | | $189,950.00 | 94395 | 99023979 |
| 2 | 01/01/1900 | OTHER | Other - Misc. Documents | Unknown | CREC 401(K) PROFIT SHARING, | | | $0.00 | 0 | 0 |
Payout Agreement
| No payout information available.. |