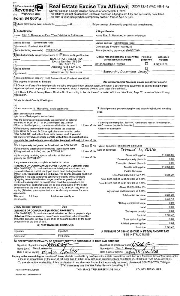
Property
Account |
| Property ID: | 800890 | Abbreviated Legal Description: | HIGHLANDS WEST #6 LOT 6 |
| Geographic ID: | S7132-06-00006-0 | Agent Code: | |
| Type: | Real | | |
| Tax Area: | 100 - APPRAISER-OH Schl Dist, in OH | Land Use Code | 11 |
| Open Space: | N | DFL | N |
| Historic Property: | N | Remodel Property: | N |
| Multi-Family Redevelopment: | N | | |
| Township: | | Section: | |
| Range: | |
Location |
| Address: | 351 SW STROOPS DR OAK HARBOR, WA 98277 | Mapsco: | |
| Neighborhood: | Cycle 1 | Map ID: | 97 |
| Neighborhood CD: | 1 |
Owner |
| Name: | RETTUS II, MICHAEL STEVEN | Owner ID: | 257748 |
| Mailing Address: | LISA ANN RETTUS 351 SW STROOPS DR OAK HARBOR, WA 98277 | % Ownership: | 100.0000000000% |
| | | Exemptions: | |
Taxes and Assessment Details
Values
| (+) Improvement Homesite Value: | + | $0 | |
| (+) Improvement Non-Homesite Value: | + | $308,640 | |
| (+) Land Homesite Value: | + | $0 | |
| (+) Land Non-Homesite Value: | + | $210,000 | |
| (+) Curr Use (HS): | + | $0 | $0 |
| (+) Curr Use (NHS): | + | $0 | $0 |
| | | -------------------------- | |
| (=) Market Value: | = | $518,640 | |
| (–) Productivity Loss: | – | $0 | |
| | | -------------------------- | |
| (=) Subtotal: | = | $518,640 | |
| (+) Senior Appraised Value: | + | $0 | |
| (+) Non-Senior Appraised Value: | + | $518,640 | |
| | | -------------------------- | |
| (=) Total Appraised Value: | = | $518,640 | |
| (–) Senior Exemption Loss: | – | $0 | |
| (–) Exemption Loss: | – | $0 | |
| | | -------------------------- | |
| (=) Taxable Value: | = | $518,640 | |
Taxing Jurisdiction
| Owner: | RETTUS II, MICHAEL STEVEN | | |
| % Ownership: | 100.0000000000% | | |
| Total Value: | $518,640 | | |
| Tax Area: | 100 - APPRAISER-OH Schl Dist, in OH |
| CF | Conservation Futures | 0.0316035091 | $518,640 | $518,640 | $16.39 | | |
| CEM1 | Cemetery #1 | 0.0040320932 | $518,640 | $518,640 | $2.09 | | |
| COH | City of Oak Harbor | 2.3001546061 | $518,640 | $518,640 | $1,192.95 | | |
| OAKBOND | City of Oak Harbor BOND | 0.1926904192 | $518,640 | $518,640 | $99.94 | | |
| HOBOND | Hospital BOND | 0.1910887512 | $518,640 | $518,640 | $99.11 | | |
| HOGEN | Hospital GEN | 0.3902502903 | $518,640 | $518,640 | $202.40 | | |
| CE | County Current Expense | 0.3708482477 | $518,640 | $518,640 | $192.34 | | |
| ISLANDEMS | Hospital GEN (EMS) | 0.5000000000 | $518,640 | $518,640 | $259.32 | | |
| LIB | Library Sno-Isle GEN | 0.3153421757 | $518,640 | $518,640 | $163.55 | | |
| NWHIDPRMT | P & R N Whidbey GEN | 0.2004466701 | $518,640 | $518,640 | $103.96 | | |
| SCH201MO | School 201 Enrichment | 1.8559231640 | $518,640 | $518,640 | $962.56 | | |
| ST | State School | 1.3035497053 | $518,640 | $518,640 | $676.07 | | |
| ST2 | State School Part 2 | 0.8169543533 | $518,640 | $518,640 | $423.71 | | |
| | Total Tax Rate: | 8.4728839852 | | | | | |
| | | | | Taxes w/Current Exemptions: | $4,394.39 | | |
| | | | | Taxes w/o Exemptions: | $4,394.39 | | |
Improvement / Building
| Improvement #1: | RESIDENTIAL | State Code: | Y | 1714.6 sqft | Value: | $308,640 |
| Bathrooms: | 2.5 | Bedrooms: | 4 | | Ceiling: | DRYWALL PAINTED | Exterior Wall/Cover: | CEMENT FIBER | | Floor Covering: | CARPET/VINYL 60-40 | Floor Structure: | WOOD W/SUBFLOOR | | Foundation: | CONCRETE | Heating: | FHA GAS | | Interior Finish: | DRYWALL PAINT | Plumbing Fixture Cnt: | 12 | | Roof Slope: | 6" IN 12" | Roof Structure/Cover: | CJ ASPHALT |
|
| | Type | Description | Class CD | Sub Class CD | Year Built | Area |
| | BAS | BASE/MAIN FLOOR | 3 | 0 | 2000 | 999.8 |
| | AGR | ATTACHED GARAGE | 3 | 0 | 2000 | 587.5 |
| | UPS | UPPER STORY | 3 | 0 | 2000 | 714.8 |
| | OWP | OPEN WOOD PORCH W/STEPS | 3 | 0 | 2000 | 55.0 |
| | OWP | OPEN WOOD PORCH W/STEPS | 3 | 0 | 2000 | 120.0 |
Sketch
Property Image
Land
| 1 | 14 | SQ (08001-12000) | 0.0000 | 0.00 | 0.00 | 0.00 | 1.00 | $210,000 | $0 |
Roll Value History
| 2026 | N/A | N/A | N/A | N/A | N/A |
| 2025 | $308,640 | $210,000 | $0 | $518,640 | $518,640 |
| 2024 | $312,346 | $190,000 | $0 | $502,346 | $502,346 |
| 2023 | $301,225 | $190,000 | $0 | $491,225 | $491,225 |
| 2022 | $276,113 | $180,000 | $0 | $456,113 | $456,113 |
| 2021 | $243,031 | $120,000 | $0 | $363,031 | $363,031 |
| 2020 | $236,508 | $100,000 | $0 | $336,508 | $336,508 |
| 2019 | $172,019 | $150,000 | $0 | $322,019 | $322,019 |
| 2018 | $172,523 | $130,000 | $0 | $302,523 | $302,523 |
| 2017 | $161,452 | $110,000 | $0 | $271,452 | $271,452 |
| 2016 | $163,422 | $90,000 | $0 | $253,422 | $253,422 |
| 2015 | $165,392 | $70,000 | $0 | $235,392 | $235,392 |
| 2014 | $167,359 | $55,000 | $0 | $222,359 | $222,359 |
| 2013 | $169,330 | $55,000 | $0 | $224,330 | $224,330 |
| 2012 | $171,299 | $68,000 | $0 | $239,299 | $239,299 |
| 2011 | $173,499 | $68,000 | $0 | $241,499 | $241,499 |
| 2010 | $179,598 | $68,000 | $0 | $247,598 | $247,598 |
| 2009 | $187,200 | $75,000 | $0 | $262,200 | $262,200 |
| 2008 | $189,324 | $100,000 | $0 | $289,324 | $289,324 |
| 2007 | $189,464 | $100,000 | $0 | $289,464 | $289,464 |
Deed and Sales History
| 1 | 05/20/2012 | WD | Warranty Deed | TAYLOR, JASON S | RETTUS II, MICHAEL STEVEN | | | $237,000.00 | 7792 | 4316149 |
| 2 | 08/06/2003 | 5 | DNU - Marriage License/Name Change | TAYLOR, JASON S | TAYLOR, JASON S | | | $0.00 | 33640 | 4071728 |
| 3 | 03/27/2002 | WD | Warranty Deed | WYMORE, KIRK R | TAYLOR, JASON S | | | $196,000.00 | 21163 | 4015394 |
| 4 | 05/25/2000 | WD | Warranty Deed | CONST, INC, E BAY | WYMORE, KIRK R | | | $179,000.00 | 2163 | 20010333 |
| 5 | 09/20/1999 | WD | Warranty Deed | K & E INVESTORS INC, | CONST, INC, E BAY | | | $45,000.00 | 93921 | 99021843 |
| 6 | 01/01/1900 | OTHER | Other - Misc. Documents | Unknown | K & E INVESTORS INC, | | | $0.00 | 0 | 0 |
Payout Agreement
| No payout information available.. |