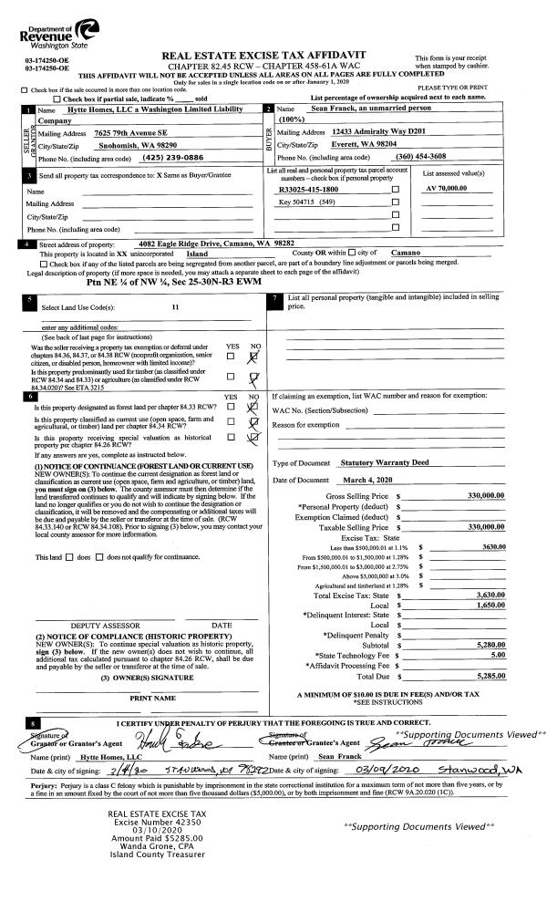
Property
Account |
| Property ID: | 800933 | Abbreviated Legal Description: | LOT 1 SP 110-96.23006.410-4490 & .410-4491 V3 SP P231-2 AF#99001864 ALTERATION LOT 1 SP ALTERATION 209-11.23006-410-4490 AF#4314376 |
| Geographic ID: | R23006-414-3870 | Agent Code: | |
| Type: | Real | | |
| Tax Area: | 312 - APPRAISER-Cpvl Schl Dist, outside Cpvl, improved, greater than 1 acre | Land Use Code | 11 |
| Open Space: | N | DFL | N |
| Historic Property: | N | Remodel Property: | N |
| Multi-Family Redevelopment: | N | | |
| Township: | 30 | Section: | 06 |
| Range: | R2 |
Location |
| Address: | 2476 AVALON LN COUPEVILLE, WA 98239 | Mapsco: | |
| Neighborhood: | Cycle 2 | Map ID: | 360 |
| Neighborhood CD: | 2 |
Owner |
| Name: | OLIVER TTEE, PATRICIA WEBB | Owner ID: | 292259 |
| Mailing Address: | 2476 AVALON LN COUPEVILLE, WA 98239 | % Ownership: | 100.0000000000% |
| | | Exemptions: | |
Taxes and Assessment Details
Values
| (+) Improvement Homesite Value: | + | $0 | |
| (+) Improvement Non-Homesite Value: | + | $791,552 | |
| (+) Land Homesite Value: | + | $0 | |
| (+) Land Non-Homesite Value: | + | $800,000 | |
| (+) Curr Use (HS): | + | $0 | $0 |
| (+) Curr Use (NHS): | + | $0 | $0 |
| | | -------------------------- | |
| (=) Market Value: | = | $1,591,552 | |
| (–) Productivity Loss: | – | $0 | |
| | | -------------------------- | |
| (=) Subtotal: | = | $1,591,552 | |
| (+) Senior Appraised Value: | + | $0 | |
| (+) Non-Senior Appraised Value: | + | $1,591,552 | |
| | | -------------------------- | |
| (=) Total Appraised Value: | = | $1,591,552 | |
| (–) Senior Exemption Loss: | – | $0 | |
| (–) Exemption Loss: | – | $0 | |
| | | -------------------------- | |
| (=) Taxable Value: | = | $1,591,552 | |
Taxing Jurisdiction
| Owner: | OLIVER TTEE, PATRICIA WEBB | | |
| % Ownership: | 100.0000000000% | | |
| Total Value: | $1,591,552 | | |
| Tax Area: | 312 - APPRAISER-Cpvl Schl Dist, outside Cpvl, improved, greater than 1 acre |
| CF | Conservation Futures | 0.0316035091 | $1,591,552 | $1,591,552 | $50.30 | | |
| CEM2 | Cemetery #2 | 0.0095056933 | $1,591,552 | $1,591,552 | $15.13 | | |
| FIRE5 | Fire & Rescue Dist #5 C Whidbey GEN | 1.2008080668 | $1,591,552 | $1,591,552 | $1,911.15 | | |
| FIRE5BOND | Fire & Rescue Dist #5 C Whidbey BOND | 0.1400090713 | $1,591,552 | $1,591,552 | $222.83 | | |
| HOBOND | Hospital BOND | 0.1910887512 | $1,591,552 | $1,591,552 | $304.13 | | |
| HOGEN | Hospital GEN | 0.3902502903 | $1,591,552 | $1,591,552 | $621.10 | | |
| CE | County Current Expense | 0.3708482477 | $1,591,552 | $1,591,552 | $590.22 | | |
| CR | County Roads | 0.4584763726 | $1,591,552 | $1,591,552 | $729.69 | | |
| ISLANDEMS | Hospital GEN (EMS) | 0.5000000000 | $1,591,552 | $1,591,552 | $795.78 | | |
| LIB | Library Sno-Isle GEN | 0.3153421757 | $1,591,552 | $1,591,552 | $501.88 | | |
| LIBCAP | Library Sno-Isle BOND (Cap Fac Imp Area) | 0.0543427938 | $1,591,552 | $1,591,552 | $86.49 | | |
| POCOUP | Port of Coupeville GEN | 0.1093371703 | $1,591,552 | $1,591,552 | $174.02 | | |
| POCOUPIDD | Port of Coupeville IDD | 0.3409740022 | $1,591,552 | $1,591,552 | $542.68 | | |
| COUPSDTECH | School 204 CP (TECH) | 0.7545480007 | $1,591,552 | $1,591,552 | $1,200.90 | | |
| SCH204MO | School 204 Enrichment | 0.6716186034 | $1,591,552 | $1,591,552 | $1,068.92 | | |
| ST | State School | 1.3035497053 | $1,591,552 | $1,591,552 | $2,074.67 | | |
| ST2 | State School Part 2 | 0.8169543533 | $1,591,552 | $1,591,552 | $1,300.23 | | |
| | Total Tax Rate: | 7.6592568070 | | | | | |
| | | | | Taxes w/Current Exemptions: | $12,190.12 | | |
| | | | | Taxes w/o Exemptions: | $12,190.12 | | |
Improvement / Building
| Improvement #1: | RESIDENTIAL | State Code: | Y | 2848.8 sqft | Value: | $640,258 |
| Bathrooms: | 2.5 | Bedrooms: | 3 | | Ceiling: | DRYWALL PAINTED | Exterior Wall/Cover: | SHINGLE | | Floor Covering: | HARDWOOD 100% | Floor Structure: | WOOD W/SUBFLOOR | | Foundation: | CONCRETE | Heating: | RAD HOT WATER-OIL | | Interior Finish: | DRYWALL PAINT | Plumbing Fixture Cnt: | 11 | | Roof Slope: | 6" IN 12" | Roof Structure/Cover: | CJ ASPHALT |
|
| | Type | Description | Class CD | Sub Class CD | Year Built | Area |
| | BAS | BASE/MAIN FLOOR | 4 | 0 | 1998 | 1906.9 |
| | OP2 | OPEN PORCH W/STEPS | 4 | 0 | 1998 | 51.0 |
| | AGR | ATTACHED GARAGE | 4 | 0 | 1998 | 787.5 |
| | OWP | OPEN WOOD PORCH W/STEPS | 4 | 0 | 1998 | 499.9 |
| | ENP | ENCLOSED PORCH | 4 | 0 | 1998 | 240.0 |
| | DWN | DOWNSTAIRS LIVING AREA | 4 | 0 | 1998 | 941.9 |
| | DGR | DETACHED GARAGE | 4 | 0 | 1998 | 780.0 |
| | DGR | DETACHED GARAGE | 4 | 0 | 1998 | 640.2 |
| Improvement #2: | RESIDENTIAL | State Code: | Y | 767.0 sqft | Value: | $151,294 |
| Bathrooms: | 1 | Bedrooms: | 1 | | Ceiling: | DRYWALL PAINTED | Exterior Wall/Cover: | SHINGLE | | Floor Covering: | CARPET/VINYL 80-20 | Floor Structure: | WOOD W/SUBFLOOR | | Foundation: | CONCRETE | Heating: | FHA ELECTRIC | | Interior Finish: | DRYWALL PAINT | Plumbing Fixture Cnt: | 6 | | Roof Slope: | 6" IN 12" | Roof Structure/Cover: | CJ ASPHALT |
|
| | Type | Description | Class CD | Sub Class CD | Year Built | Area |
| | BAS | BASE/MAIN FLOOR | 3 | 0 | 1989 | 767.0 |
| | OWP | OPEN WOOD PORCH W/STEPS | 3 | 0 | 1989 | 414.2 |
| | OWC | OPEN WOOD PORCH W/STEPS/ROOF/C | 3 | 0 | 1989 | 34.6 |
Sketch
| No sketches available for this property. |
Property Image
Land
| 1 | HB | HIGH BLUFF | 2.0100 | 87555.60 | 158.00 | 0.00 | 1.00 | $800,000 | $0 |
Roll Value History
| 2026 | N/A | N/A | N/A | N/A | N/A |
| 2025 | $791,552 | $800,000 | $0 | $1,591,552 | $1,591,552 |
| 2024 | $729,656 | $800,000 | $0 | $1,529,656 | $1,529,656 |
| 2023 | $738,949 | $775,000 | $0 | $1,513,949 | $1,513,949 |
| 2022 | $677,540 | $650,000 | $0 | $1,327,540 | $1,327,540 |
| 2021 | $596,492 | $550,000 | $0 | $1,146,492 | $1,146,492 |
| 2020 | $582,278 | $500,000 | $0 | $1,082,278 | $1,082,278 |
| 2019 | $443,079 | $525,000 | $0 | $968,079 | $968,079 |
| 2018 | $382,827 | $500,000 | $0 | $882,827 | $882,827 |
| 2017 | $381,164 | $500,000 | $0 | $881,164 | $881,164 |
| 2016 | $385,799 | $500,000 | $0 | $885,799 | $885,799 |
| 2015 | $390,438 | $500,000 | $0 | $890,438 | $890,438 |
| 2014 | $395,071 | $500,000 | $0 | $895,071 | $895,071 |
| 2013 | $423,808 | $417,764 | $0 | $841,572 | $841,572 |
| 2012 | $428,505 | $417,764 | $0 | $846,269 | $846,269 |
| 2011 | $433,206 | $502,375 | $0 | $935,581 | $935,581 |
| 2010 | $443,568 | $502,375 | $0 | $945,943 | $945,943 |
| 2009 | $461,630 | $669,834 | $0 | $1,131,464 | $1,131,464 |
| 2008 | $466,121 | $670,760 | $0 | $1,136,881 | $1,136,881 |
| 2007 | $457,417 | $451,501 | $0 | $908,918 | $908,918 |
Deed and Sales History
| 1 | 10/16/2019 | WD | Warranty Deed | BOWEN, RICHARD G | OLIVER TTEE, PATRICIA WEBB | | | $1,150,000.00 | 40733 | 4473602 |
| 2 | 01/01/1900 | OTHER | Other - Misc. Documents | Unknown | BOWEN, RICHARD G | | | $0.00 | 0 | 0 |
Payout Agreement
| No payout information available.. |