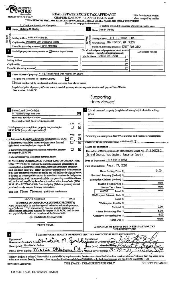
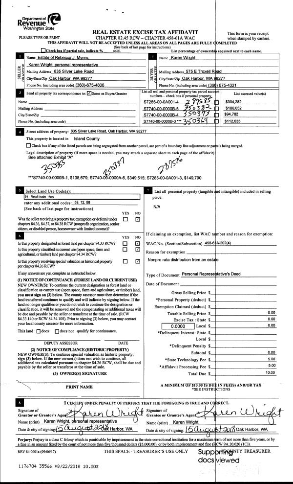
Property
Account |
| Property ID: | 800934 | Abbreviated Legal Description: | LOT 2 SP 110-96.23006.410-4490 & .410-4491 V3 SP P231-2 AF#99001864 ALTERATION LOT 2 SP ALTERATION 209-11.23006-410-4490 AF#4314376 |
| Geographic ID: | R23006-399-3890 | Agent Code: | |
| Type: | Real | | |
| Tax Area: | 312 - APPRAISER-Cpvl Schl Dist, outside Cpvl, improved, greater than 1 acre | Land Use Code | 11 |
| Open Space: | N | DFL | N |
| Historic Property: | N | Remodel Property: | N |
| Multi-Family Redevelopment: | N | | |
| Township: | 30 | Section: | 06 |
| Range: | R2 |
Location |
| Address: | 2480 AVALON LN COUPEVILLE, WA 98239 | Mapsco: | |
| Neighborhood: | Cycle 2 | Map ID: | 360 |
| Neighborhood CD: | 2 |
Owner |
| Name: | PRICE TTEE, SCOTT A | Owner ID: | 297347 |
| Mailing Address: | KAREN A PRICE TTEE 2480 AVALON LN COUPEVILLE, WA 98239 | % Ownership: | 100.0000000000% |
| | | Exemptions: | |
Taxes and Assessment Details
Values
| (+) Improvement Homesite Value: | + | $0 | |
| (+) Improvement Non-Homesite Value: | + | $615,973 | |
| (+) Land Homesite Value: | + | $0 | |
| (+) Land Non-Homesite Value: | + | $750,000 | |
| (+) Curr Use (HS): | + | $0 | $0 |
| (+) Curr Use (NHS): | + | $0 | $0 |
| | | -------------------------- | |
| (=) Market Value: | = | $1,365,973 | |
| (–) Productivity Loss: | – | $0 | |
| | | -------------------------- | |
| (=) Subtotal: | = | $1,365,973 | |
| (+) Senior Appraised Value: | + | $0 | |
| (+) Non-Senior Appraised Value: | + | $1,365,973 | |
| | | -------------------------- | |
| (=) Total Appraised Value: | = | $1,365,973 | |
| (–) Senior Exemption Loss: | – | $0 | |
| (–) Exemption Loss: | – | $0 | |
| | | -------------------------- | |
| (=) Taxable Value: | = | $1,365,973 | |
Taxing Jurisdiction
| Owner: | PRICE TTEE, SCOTT A | | |
| % Ownership: | 100.0000000000% | | |
| Total Value: | $1,365,973 | | |
| Tax Area: | 312 - APPRAISER-Cpvl Schl Dist, outside Cpvl, improved, greater than 1 acre |
| CF | Conservation Futures | 0.0316035091 | $1,365,973 | $1,365,973 | $43.17 | | |
| CEM2 | Cemetery #2 | 0.0095056933 | $1,365,973 | $1,365,973 | $12.98 | | |
| FIRE5 | Fire & Rescue Dist #5 C Whidbey GEN | 1.2008080668 | $1,365,973 | $1,365,973 | $1,640.27 | | |
| FIRE5BOND | Fire & Rescue Dist #5 C Whidbey BOND | 0.1400090713 | $1,365,973 | $1,365,973 | $191.25 | | |
| HOBOND | Hospital BOND | 0.1910887512 | $1,365,973 | $1,365,973 | $261.02 | | |
| HOGEN | Hospital GEN | 0.3902502903 | $1,365,973 | $1,365,973 | $533.07 | | |
| CE | County Current Expense | 0.3708482477 | $1,365,973 | $1,365,973 | $506.57 | | |
| CR | County Roads | 0.4584763726 | $1,365,973 | $1,365,973 | $626.27 | | |
| ISLANDEMS | Hospital GEN (EMS) | 0.5000000000 | $1,365,973 | $1,365,973 | $682.99 | | |
| LIB | Library Sno-Isle GEN | 0.3153421757 | $1,365,973 | $1,365,973 | $430.75 | | |
| LIBCAP | Library Sno-Isle BOND (Cap Fac Imp Area) | 0.0543427938 | $1,365,973 | $1,365,973 | $74.23 | | |
| POCOUP | Port of Coupeville GEN | 0.1093371703 | $1,365,973 | $1,365,973 | $149.35 | | |
| POCOUPIDD | Port of Coupeville IDD | 0.3409740022 | $1,365,973 | $1,365,973 | $465.76 | | |
| COUPSDTECH | School 204 CP (TECH) | 0.7545480007 | $1,365,973 | $1,365,973 | $1,030.69 | | |
| SCH204MO | School 204 Enrichment | 0.6716186034 | $1,365,973 | $1,365,973 | $917.41 | | |
| ST | State School | 1.3035497053 | $1,365,973 | $1,365,973 | $1,780.61 | | |
| ST2 | State School Part 2 | 0.8169543533 | $1,365,973 | $1,365,973 | $1,115.94 | | |
| | Total Tax Rate: | 7.6592568070 | | | | | |
| | | | | Taxes w/Current Exemptions: | $10,462.33 | | |
| | | | | Taxes w/o Exemptions: | $10,462.33 | | |
Improvement / Building
| Improvement #1: | RESIDENTIAL | State Code: | Y | 3065.9 sqft | Value: | $615,973 |
| Bathrooms: | 2.5 | Bedrooms: | 3 | | Ceiling: | DRYWALL PAINTED | Exterior Wall/Cover: | CEMENT FIBER | | Floor Covering: | CERAMIC TILE/HWD 40/60 | Floor Structure: | WOOD W/SUBFLOOR | | Foundation: | CONCRETE | Heating: | RADIANT FLOOR | | Interior Finish: | DRYWALL PAINT | Plumbing Fixture Cnt: | 11 | | Roof Slope: | 5" IN 12" | Roof Structure/Cover: | CJ ALUMINIUM HEAVY |
|
| | Type | Description | Class CD | Sub Class CD | Year Built | Area |
| | BAS | BASE/MAIN FLOOR | 4 | 0 | 2018 | 986.0 |
| | UPS | UPPER STORY | 4 | 0 | 2018 | 1730.9 |
| | BIG | BUILT IN GARAGE | 4 | 0 | 2018 | 676.0 |
| | DWN | DOWNSTAIRS LIVING AREA | 4 | 0 | 2018 | 349.0 |
| | OP1 | OPEN PORCH SLAB | 4 | 0 | 2018 | 200.0 |
| | OP4 | OPEN PORCH W/CEILING-ROOF | 4 | 0 | 2018 | 72.0 |
Sketch
Property Image
Land
| 1 | HB | HIGH BLUFF | 1.6000 | 69696.00 | 142.00 | 0.00 | 1.00 | $750,000 | $0 |
Roll Value History
| 2026 | N/A | N/A | N/A | N/A | N/A |
| 2025 | $615,973 | $750,000 | $0 | $1,365,973 | $1,365,973 |
| 2024 | $612,308 | $750,000 | $0 | $1,362,308 | $1,362,308 |
| 2023 | $617,246 | $725,000 | $0 | $1,342,246 | $1,342,246 |
| 2022 | $563,413 | $600,000 | $0 | $1,163,413 | $1,163,413 |
| 2021 | $504,863 | $550,000 | $0 | $1,054,863 | $1,054,863 |
| 2020 | $491,760 | $500,000 | $0 | $991,760 | $991,760 |
| 2019 | $384,630 | $525,000 | $0 | $909,630 | $909,630 |
| 2018 | $257,785 | $500,000 | $0 | $757,785 | $757,785 |
| 2017 | $0 | $300,000 | $0 | $300,000 | $300,000 |
| 2016 | $0 | $300,000 | $0 | $300,000 | $300,000 |
| 2015 | $0 | $300,000 | $0 | $300,000 | $300,000 |
| 2014 | $0 | $300,000 | $0 | $300,000 | $300,000 |
| 2013 | $0 | $289,971 | $0 | $289,971 | $289,971 |
| 2012 | $0 | $289,971 | $0 | $289,971 | $289,971 |
| 2011 | $0 | $110,739 | $62 | $62 | $62 |
| 2010 | $0 | $110,739 | $62 | $62 | $62 |
| 2009 | $0 | $152,318 | $62 | $62 | $0 |
| 2008 | $0 | $94,698 | $62 | $62 | $62 |
| 2007 | $0 | $62 | $21 | $62 | $62 |
Deed and Sales History
| 1 | 06/10/2020 | WD | Warranty Deed | PRICE, SCOTT | PRICE TTEE, SCOTT A | | | $0.00 | 46004 | 4504567 |
| 2 | 05/25/2012 | WD | Warranty Deed | BOWEN, RICHARD G | PRICE, SCOTT | | | $600,000.00 | 7830 | 4316414 |
|   | |
Payout Agreement
| No payout information available.. |