Property
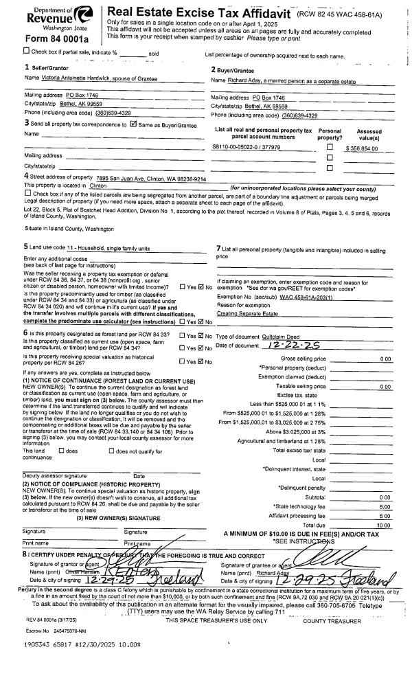
Account |
| Property ID: | 800947 | Abbreviated Legal Description: | SEACREST LOT 14 TGW EZ AF#84004194 COMB 5/99 FR 00014-1 & 00014-2 |
| Geographic ID: | S8125-00-00014-0 | Agent Code: | |
| Type: | Real | | |
| Tax Area: | 310 - APPRAISER-Cpvl Schl Dist, outside Cpvl, improved & 1 acre or less | Land Use Code | 11 |
| Open Space: | N | DFL | N |
| Historic Property: | N | Remodel Property: | N |
| Multi-Family Redevelopment: | N | | |
| Township: | | Section: | |
| Range: | |
Location |
| Address: | 1642 SEACREST LN COUPEVILLE, WA 98239 | Mapsco: | |
| Neighborhood: | Cycle 2 | Map ID: | 522 |
| Neighborhood CD: | 2 |
Owner |
| Name: | BACH TTEE, JONATHAN S | Owner ID: | 304886 |
| Mailing Address: | MICHELLE R. BACH 1642 SEACREST LANE COUPEVILLE, WA 98239 | % Ownership: | 100.0000000000% |
| | | Exemptions: | |
Taxes and Assessment Details
Values
| (+) Improvement Homesite Value: | + | $0 | |
| (+) Improvement Non-Homesite Value: | + | $774,859 | |
| (+) Land Homesite Value: | + | $0 | |
| (+) Land Non-Homesite Value: | + | $550,000 | |
| (+) Curr Use (HS): | + | $0 | $0 |
| (+) Curr Use (NHS): | + | $0 | $0 |
| | | -------------------------- | |
| (=) Market Value: | = | $1,324,859 | |
| (–) Productivity Loss: | – | $0 | |
| | | -------------------------- | |
| (=) Subtotal: | = | $1,324,859 | |
| (+) Senior Appraised Value: | + | $0 | |
| (+) Non-Senior Appraised Value: | + | $1,324,859 | |
| | | -------------------------- | |
| (=) Total Appraised Value: | = | $1,324,859 | |
| (–) Senior Exemption Loss: | – | $0 | |
| (–) Exemption Loss: | – | $0 | |
| | | -------------------------- | |
| (=) Taxable Value: | = | $1,324,859 | |
Taxing Jurisdiction
| Owner: | BACH TTEE, JONATHAN S | | |
| % Ownership: | 100.0000000000% | | |
| Total Value: | $1,324,859 | | |
| Tax Area: | 310 - APPRAISER-Cpvl Schl Dist, outside Cpvl, improved & 1 acre or less |
| CF | Conservation Futures | 0.0316035091 | $1,324,859 | $1,324,859 | $41.87 | | |
| CEM2 | Cemetery #2 | 0.0095056933 | $1,324,859 | $1,324,859 | $12.59 | | |
| FIRE5 | Fire & Rescue Dist #5 C Whidbey GEN | 1.2008080668 | $1,324,859 | $1,324,859 | $1,590.90 | | |
| FIRE5BOND | Fire & Rescue Dist #5 C Whidbey BOND | 0.1400090713 | $1,324,859 | $1,324,859 | $185.49 | | |
| HOBOND | Hospital BOND | 0.1910887512 | $1,324,859 | $1,324,859 | $253.17 | | |
| HOGEN | Hospital GEN | 0.3902502903 | $1,324,859 | $1,324,859 | $517.03 | | |
| CE | County Current Expense | 0.3708482477 | $1,324,859 | $1,324,859 | $491.32 | | |
| CR | County Roads | 0.4584763726 | $1,324,859 | $1,324,859 | $607.42 | | |
| ISLANDEMS | Hospital GEN (EMS) | 0.5000000000 | $1,324,859 | $1,324,859 | $662.43 | | |
| LIB | Library Sno-Isle GEN | 0.3153421757 | $1,324,859 | $1,324,859 | $417.78 | | |
| LIBCAP | Library Sno-Isle BOND (Cap Fac Imp Area) | 0.0543427938 | $1,324,859 | $1,324,859 | $72.00 | | |
| POCOUP | Port of Coupeville GEN | 0.1093371703 | $1,324,859 | $1,324,859 | $144.86 | | |
| POCOUPIDD | Port of Coupeville IDD | 0.3409740022 | $1,324,859 | $1,324,859 | $451.74 | | |
| COUPSDTECH | School 204 CP (TECH) | 0.7545480007 | $1,324,859 | $1,324,859 | $999.67 | | |
| SCH204MO | School 204 Enrichment | 0.6716186034 | $1,324,859 | $1,324,859 | $889.80 | | |
| ST | State School | 1.3035497053 | $1,324,859 | $1,324,859 | $1,727.02 | | |
| ST2 | State School Part 2 | 0.8169543533 | $1,324,859 | $1,324,859 | $1,082.35 | | |
| | Total Tax Rate: | 7.6592568070 | | | | | |
| | | | | Taxes w/Current Exemptions: | $10,147.44 | | |
| | | | | Taxes w/o Exemptions: | $10,147.44 | | |
Improvement / Building
| Improvement #1: | RESIDENTIAL | State Code: | Y | 3384.0 sqft | Value: | $774,859 |
| Bathrooms: | 3.5 | Bedrooms: | 3 | | Ceiling: | DRYWALL PAINTED | Cooling: | HEAT PUMP/CONV/V | | Exterior Wall/Cover: | SHINGLE | Floor Covering: | HARDWOOD 100% | | Floor Structure: | WOOD W/SUBFLOOR | Foundation: | CONCRETE | | Interior Finish: | DRYWALL PAINT | Plumbing Fixture Cnt: | 16 | | Roof Slope: | 6" IN 12" | Roof Structure/Cover: | CJ ASPHALT |
|
| | Type | Description | Class CD | Sub Class CD | Year Built | Area |
| | BAS | BASE/MAIN FLOOR | 4 | 0 | 2009 | 1855.5 |
| | OP4 | OPEN PORCH W/CEILING-ROOF | 4 | 0 | 2009 | 88.0 |
| | UPS | UPPER STORY | 4 | 0 | 2009 | 1528.5 |
| | OWP | OPEN WOOD PORCH W/STEPS | 4 | 0 | 2009 | 25.0 |
| | OWP | OPEN WOOD PORCH W/STEPS | 4 | 0 | 2009 | 101.5 |
| | OWC | OPEN WOOD PORCH W/STEPS/ROOF/C | 4 | 0 | 2009 | 50.0 |
| | OWP | OPEN WOOD PORCH W/STEPS | 4 | 0 | 2009 | 517.5 |
| | OWC | OPEN WOOD PORCH W/STEPS/ROOF/C | 4 | 0 | 2009 | 176.0 |
| | CPD | OPEN CARPORT DIRT FLOOR | 4 | 0 | 2009 | 130.0 |
| | BIG | BUILT IN GARAGE | 4 | 0 | 2009 | 684.0 |
Sketch
Property Image
Land
| 1 | HB | HIGH BLUFF | 0.7800 | 33976.80 | 100.00 | 0.00 | 1.00 | $550,000 | $0 |
Roll Value History
| 2026 | N/A | N/A | N/A | N/A | N/A |
| 2025 | $774,859 | $550,000 | $0 | $1,324,859 | $1,324,859 |
| 2024 | $742,008 | $525,000 | $0 | $1,267,008 | $1,267,008 |
| 2023 | $750,418 | $500,000 | $0 | $1,250,418 | $1,250,418 |
| 2022 | $685,233 | $450,000 | $0 | $1,135,233 | $1,135,233 |
| 2021 | $554,191 | $400,000 | $0 | $954,191 | $954,191 |
| 2020 | $540,569 | $400,000 | $0 | $940,569 | $940,569 |
| 2019 | $432,917 | $425,000 | $0 | $857,917 | $857,917 |
| 2018 | $434,228 | $300,000 | $0 | $734,228 | $734,228 |
| 2017 | $436,533 | $300,000 | $0 | $736,533 | $736,533 |
| 2016 | $441,331 | $300,000 | $0 | $741,331 | $741,331 |
| 2015 | $446,129 | $300,000 | $0 | $746,129 | $746,129 |
| 2014 | $450,928 | $300,000 | $0 | $750,928 | $750,928 |
| 2013 | $455,723 | $300,000 | $0 | $755,723 | $755,723 |
| 2012 | $449,034 | $291,068 | $0 | $740,102 | $740,102 |
| 2011 | $480,478 | $332,650 | $0 | $813,128 | $813,128 |
| 2010 | $487,299 | $332,650 | $0 | $819,949 | $819,949 |
| 2009 | $507,438 | $390,771 | $0 | $898,209 | $898,209 |
| 2008 | $4,000 | $390,771 | $0 | $394,771 | $394,771 |
| 2007 | $4,000 | $349,963 | $0 | $353,963 | $353,963 |
Deed and Sales History
| 1 | 06/13/2022 | QCD | Quit Claim Deed | BACH, JONATHAN STUART | BACH TTEE, JONATHAN S | | | $0.00 | 53586 | 4547177 |
| 2 | 07/06/2021 | WD | Warranty Deed | SCHRICKER, KARL | BACH, JONATHAN STUART | | | $1,275,000.00 | 49413 | 4525718 |
| 3 | 08/13/2007 | WD | Warranty Deed | BOONE TTEE, JOHN LEIGH | SCHRICKER, KARL | | | $390,000.00 | 72822 | 4209893 |
| 4 | 03/08/2007 | QCD | Quit Claim Deed | BOONE, JOHN LEIGH | BOONE TTEE, JOHN LEIGH | | | $0.00 | 70832 | 4196293 |
| 5 | 03/31/2000 | WD | Warranty Deed | JEFFERDS, PETER/LIGA | BOONE, JOHN LEIGH | | | $199,000.00 | 1252 | 20006199 |
| 6 | 05/17/1999 | BLA | DNU - Boundary Line Adjustment | Unknown | JEFFERDS, PETER/LIGA | | | $0.00 | 68252 | 99002022 |
Payout Agreement
| No payout information available.. |