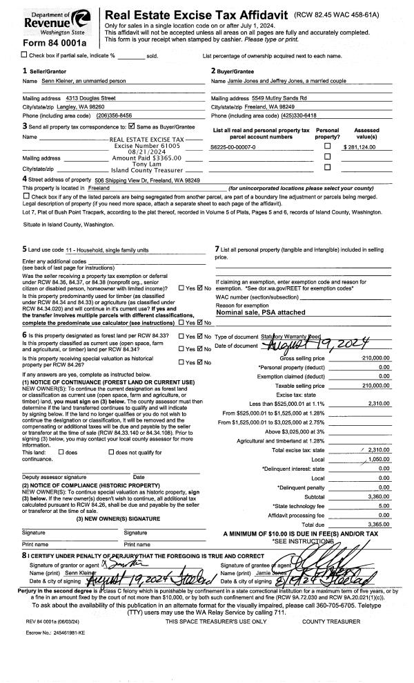
Property
Account |
| Property ID: | 800951 | Abbreviated Legal Description: | SWANTOWN RIDGE #2 LOT 1 |
| Geographic ID: | S8287-02-00001-0 | Agent Code: | |
| Type: | Real | | |
| Tax Area: | 100 - APPRAISER-OH Schl Dist, in OH | Land Use Code | 11 |
| Open Space: | N | DFL | N |
| Historic Property: | N | Remodel Property: | N |
| Multi-Family Redevelopment: | N | | |
| Township: | | Section: | |
| Range: | |
Location |
| Address: | 1800 SW SUNNYSIDE AVE OAK HARBOR, WA 98277 | Mapsco: | |
| Neighborhood: | Cycle 1 | Map ID: | 97 |
| Neighborhood CD: | 1 |
Owner |
| Name: | RAILING, LORETTA | Owner ID: | 293485 |
| Mailing Address: | 1800 SW SUNNYSIDE AVE OAK HARBOR, WA 98277 | % Ownership: | 100.0000000000% |
| | | Exemptions: | |
Taxes and Assessment Details
Values
| (+) Improvement Homesite Value: | + | $0 | |
| (+) Improvement Non-Homesite Value: | + | $276,621 | |
| (+) Land Homesite Value: | + | $0 | |
| (+) Land Non-Homesite Value: | + | $200,000 | |
| (+) Curr Use (HS): | + | $0 | $0 |
| (+) Curr Use (NHS): | + | $0 | $0 |
| | | -------------------------- | |
| (=) Market Value: | = | $476,621 | |
| (–) Productivity Loss: | – | $0 | |
| | | -------------------------- | |
| (=) Subtotal: | = | $476,621 | |
| (+) Senior Appraised Value: | + | $0 | |
| (+) Non-Senior Appraised Value: | + | $476,621 | |
| | | -------------------------- | |
| (=) Total Appraised Value: | = | $476,621 | |
| (–) Senior Exemption Loss: | – | $0 | |
| (–) Exemption Loss: | – | $0 | |
| | | -------------------------- | |
| (=) Taxable Value: | = | $476,621 | |
Taxing Jurisdiction
| Owner: | RAILING, LORETTA | | |
| % Ownership: | 100.0000000000% | | |
| Total Value: | $476,621 | | |
| Tax Area: | 100 - APPRAISER-OH Schl Dist, in OH |
| CF | Conservation Futures | 0.0316035091 | $476,621 | $476,621 | $15.06 | | |
| CEM1 | Cemetery #1 | 0.0040320932 | $476,621 | $476,621 | $1.92 | | |
| COH | City of Oak Harbor | 2.3001546061 | $476,621 | $476,621 | $1,096.30 | | |
| OAKBOND | City of Oak Harbor BOND | 0.1926904192 | $476,621 | $476,621 | $91.84 | | |
| HOBOND | Hospital BOND | 0.1910887512 | $476,621 | $476,621 | $91.08 | | |
| HOGEN | Hospital GEN | 0.3902502903 | $476,621 | $476,621 | $186.00 | | |
| CE | County Current Expense | 0.3708482477 | $476,621 | $476,621 | $176.75 | | |
| ISLANDEMS | Hospital GEN (EMS) | 0.5000000000 | $476,621 | $476,621 | $238.31 | | |
| LIB | Library Sno-Isle GEN | 0.3153421757 | $476,621 | $476,621 | $150.30 | | |
| NWHIDPRMT | P & R N Whidbey GEN | 0.2004466701 | $476,621 | $476,621 | $95.54 | | |
| SCH201MO | School 201 Enrichment | 1.8559231640 | $476,621 | $476,621 | $884.57 | | |
| ST | State School | 1.3035497053 | $476,621 | $476,621 | $621.30 | | |
| ST2 | State School Part 2 | 0.8169543533 | $476,621 | $476,621 | $389.38 | | |
| | Total Tax Rate: | 8.4728839852 | | | | | |
| | | | | Taxes w/Current Exemptions: | $4,038.35 | | |
| | | | | Taxes w/o Exemptions: | $4,038.35 | | |
Improvement / Building
| Improvement #1: | RESIDENTIAL | State Code: | Y | 1532.3 sqft | Value: | $276,621 |
| Bathrooms: | 2 | Bedrooms: | 3 | | Ceiling: | DRYWALL PAINTED | Exterior Wall/Cover: | CEMENT FIBER | | Floor Covering: | HARDWOOD/CARP 60-40 | Floor Structure: | WOOD W/SUBFLOOR | | Foundation: | CONCRETE | Heating: | FHA GAS | | Interior Finish: | DRYWALL PAINT | Plumbing Fixture Cnt: | 9 | | Roof Slope: | 8" IN 12" | Roof Structure/Cover: | CJ ASPHALT |
|
| | Type | Description | Class CD | Sub Class CD | Year Built | Area |
| | BAS | BASE/MAIN FLOOR | 3 | 0 | 2000 | 1094.3 |
| | AGR | ATTACHED GARAGE | 3 | 0 | 2000 | 390.0 |
| | UPS | UPPER STORY | 3 | 0 | 2000 | 438.0 |
| | OWC | OPEN WOOD PORCH W/STEPS/ROOF/C | 3 | 0 | 2000 | 72.0 |
Sketch
Property Image
Land
| 1 | 13 | SQ (06001-08000) | 0.0000 | 0.00 | 0.00 | 0.00 | 1.00 | $200,000 | $0 |
Roll Value History
| 2026 | N/A | N/A | N/A | N/A | N/A |
| 2025 | $276,621 | $200,000 | $0 | $476,621 | $476,621 |
| 2024 | $279,984 | $190,000 | $0 | $469,984 | $469,984 |
| 2023 | $273,257 | $190,000 | $0 | $463,257 | $463,257 |
| 2022 | $250,485 | $190,000 | $0 | $440,485 | $440,485 |
| 2021 | $220,461 | $125,000 | $0 | $345,461 | $345,461 |
| 2020 | $214,914 | $120,000 | $0 | $334,914 | $334,914 |
| 2019 | $156,930 | $140,000 | $0 | $296,930 | $296,930 |
| 2018 | $157,390 | $130,000 | $0 | $287,390 | $287,390 |
| 2017 | $147,965 | $120,000 | $0 | $267,965 | $267,965 |
| 2016 | $149,748 | $90,000 | $0 | $239,748 | $239,748 |
| 2015 | $151,532 | $65,000 | $0 | $216,532 | $216,532 |
| 2014 | $153,314 | $55,000 | $0 | $208,314 | $208,314 |
| 2013 | $155,096 | $55,000 | $0 | $210,096 | $210,096 |
| 2012 | $156,879 | $50,000 | $0 | $206,879 | $206,879 |
| 2011 | $166,544 | $50,000 | $0 | $216,544 | $216,544 |
| 2010 | $173,856 | $50,000 | $0 | $223,856 | $223,856 |
| 2009 | $181,155 | $75,000 | $0 | $256,155 | $256,155 |
| 2008 | $181,244 | $90,000 | $0 | $271,244 | $271,244 |
| 2007 | $183,228 | $90,000 | $0 | $273,228 | $273,228 |
Deed and Sales History
| 1 | 03/13/2020 | OTHER | Other - Misc. Documents | RAILING, HAROLD L | RAILING, LORETTA | | | | 88323 | |
| 2 | 10/14/1999 | WD | Warranty Deed | HOMESTEAD NW DEV CO, | RAILING, HAROLD L | | | $159,640.00 | 94333 | 99023634 |
| 3 | 01/01/1900 | OTHER | Other - Misc. Documents | Unknown | HOMESTEAD NW DEV CO, | | | $0.00 | 0 | 0 |
Payout Agreement
| No payout information available.. |