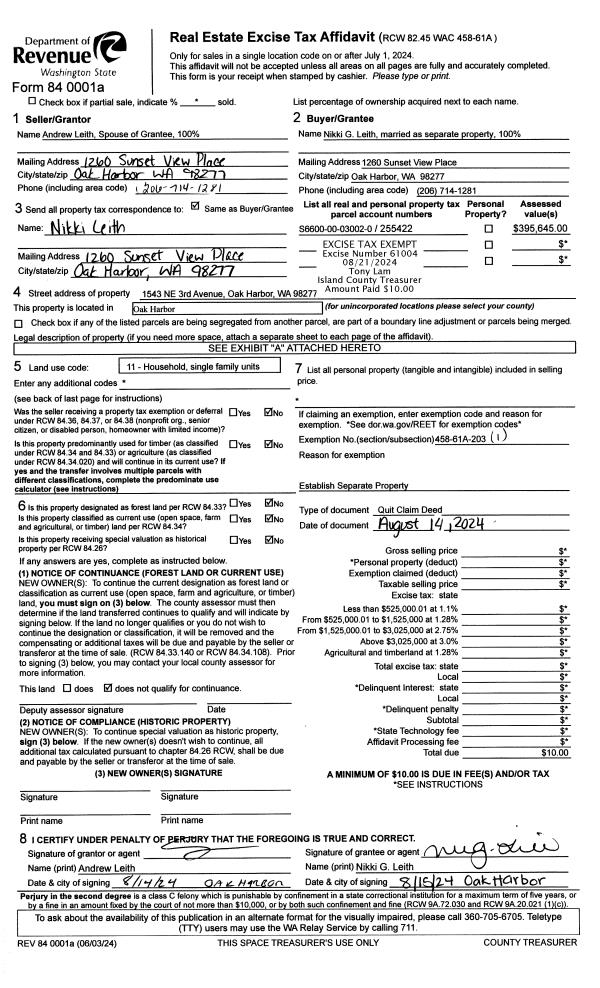
Property
Account |
| Property ID: | 800953 | Abbreviated Legal Description: | SWANTOWN RIDGE #2 LOT 3 |
| Geographic ID: | S8287-02-00003-0 | Agent Code: | |
| Type: | Real | | |
| Tax Area: | 100 - APPRAISER-OH Schl Dist, in OH | Land Use Code | 11 |
| Open Space: | N | DFL | N |
| Historic Property: | N | Remodel Property: | N |
| Multi-Family Redevelopment: | N | | |
| Township: | | Section: | |
| Range: | |
Location |
| Address: | 1850 SW SUNNYSIDE AVE OAK HARBOR, WA 98277 | Mapsco: | |
| Neighborhood: | Cycle 1 | Map ID: | 97 |
| Neighborhood CD: | 1 |
Owner |
| Name: | OPLE, MAUREEN NICOLLE | Owner ID: | 303132 |
| Mailing Address: | 141 SW ROEDER DR OAK HARBOR, WA 98277 | % Ownership: | 100.0000000000% |
| | | Exemptions: | |
Taxes and Assessment Details
Values
| (+) Improvement Homesite Value: | + | $0 | |
| (+) Improvement Non-Homesite Value: | + | $258,929 | |
| (+) Land Homesite Value: | + | $0 | |
| (+) Land Non-Homesite Value: | + | $200,000 | |
| (+) Curr Use (HS): | + | $0 | $0 |
| (+) Curr Use (NHS): | + | $0 | $0 |
| | | -------------------------- | |
| (=) Market Value: | = | $458,929 | |
| (–) Productivity Loss: | – | $0 | |
| | | -------------------------- | |
| (=) Subtotal: | = | $458,929 | |
| (+) Senior Appraised Value: | + | $0 | |
| (+) Non-Senior Appraised Value: | + | $458,929 | |
| | | -------------------------- | |
| (=) Total Appraised Value: | = | $458,929 | |
| (–) Senior Exemption Loss: | – | $0 | |
| (–) Exemption Loss: | – | $0 | |
| | | -------------------------- | |
| (=) Taxable Value: | = | $458,929 | |
Taxing Jurisdiction
| Owner: | OPLE, MAUREEN NICOLLE | | |
| % Ownership: | 100.0000000000% | | |
| Total Value: | $458,929 | | |
| Tax Area: | 100 - APPRAISER-OH Schl Dist, in OH |
| CF | Conservation Futures | 0.0316035091 | $458,929 | $458,929 | $14.50 | | |
| CEM1 | Cemetery #1 | 0.0040320932 | $458,929 | $458,929 | $1.85 | | |
| COH | City of Oak Harbor | 2.3001546061 | $458,929 | $458,929 | $1,055.61 | | |
| OAKBOND | City of Oak Harbor BOND | 0.1926904192 | $458,929 | $458,929 | $88.43 | | |
| HOBOND | Hospital BOND | 0.1910887512 | $458,929 | $458,929 | $87.70 | | |
| HOGEN | Hospital GEN | 0.3902502903 | $458,929 | $458,929 | $179.10 | | |
| CE | County Current Expense | 0.3708482477 | $458,929 | $458,929 | $170.19 | | |
| ISLANDEMS | Hospital GEN (EMS) | 0.5000000000 | $458,929 | $458,929 | $229.46 | | |
| LIB | Library Sno-Isle GEN | 0.3153421757 | $458,929 | $458,929 | $144.72 | | |
| NWHIDPRMT | P & R N Whidbey GEN | 0.2004466701 | $458,929 | $458,929 | $91.99 | | |
| SCH201MO | School 201 Enrichment | 1.8559231640 | $458,929 | $458,929 | $851.74 | | |
| ST | State School | 1.3035497053 | $458,929 | $458,929 | $598.24 | | |
| ST2 | State School Part 2 | 0.8169543533 | $458,929 | $458,929 | $374.92 | | |
| | Total Tax Rate: | 8.4728839852 | | | | | |
| | | | | Taxes w/Current Exemptions: | $3,888.45 | | |
| | | | | Taxes w/o Exemptions: | $3,888.45 | | |
Improvement / Building
| Improvement #1: | RESIDENTIAL | State Code: | Y | 1345.1 sqft | Value: | $258,929 |
| Bathrooms: | 2 | Bedrooms: | 3 | | Ceiling: | DRYWALL PAINTED | Exterior Wall/Cover: | CEMENT FIBER | | Floor Covering: | HARDWOOD/CARP 20-80 | Floor Structure: | WOOD W/SUBFLOOR | | Foundation: | CONCRETE | Heating: | FHA GAS | | Interior Finish: | DRYWALL PAINT | Plumbing Fixture Cnt: | 10 | | Roof Slope: | 6" IN 12" | Roof Structure/Cover: | CJ ASPHALT |
|
| | Type | Description | Class CD | Sub Class CD | Year Built | Area |
| | BAS | BASE/MAIN FLOOR | 3 | 0 | 2001 | 1345.1 |
| | AGR | ATTACHED GARAGE | 3 | 0 | 2001 | 406.0 |
| | OWC | OPEN WOOD PORCH W/STEPS/ROOF/C | 3 | 0 | 2001 | 159.9 |
Sketch
Property Image
Land
| 1 | 13 | SQ (06001-08000) | 0.0000 | 0.00 | 0.00 | 0.00 | 1.00 | $200,000 | $0 |
Roll Value History
| 2026 | N/A | N/A | N/A | N/A | N/A |
| 2025 | $258,929 | $200,000 | $0 | $458,929 | $458,929 |
| 2024 | $262,078 | $190,000 | $0 | $452,078 | $452,078 |
| 2023 | $265,225 | $190,000 | $0 | $455,225 | $455,225 |
| 2022 | $234,462 | $190,000 | $0 | $424,462 | $424,462 |
| 2021 | $206,356 | $125,000 | $0 | $331,356 | $331,356 |
| 2020 | $200,729 | $120,000 | $0 | $320,729 | $320,729 |
| 2019 | $143,580 | $140,000 | $0 | $283,580 | $283,580 |
| 2018 | $144,000 | $130,000 | $0 | $274,000 | $274,000 |
| 2017 | $130,070 | $120,000 | $0 | $250,070 | $250,070 |
| 2016 | $131,636 | $90,000 | $0 | $221,636 | $221,636 |
| 2015 | $133,206 | $65,000 | $0 | $198,206 | $198,206 |
| 2014 | $134,772 | $55,000 | $0 | $189,772 | $189,772 |
| 2013 | $136,338 | $55,000 | $0 | $191,338 | $191,338 |
| 2012 | $137,907 | $50,000 | $0 | $187,907 | $187,907 |
| 2011 | $145,164 | $50,000 | $0 | $195,164 | $195,164 |
| 2010 | $151,647 | $50,000 | $0 | $201,647 | $201,647 |
| 2009 | $153,363 | $75,000 | $0 | $228,363 | $228,363 |
| 2008 | $153,588 | $90,000 | $0 | $243,588 | $243,588 |
| 2007 | $155,401 | $90,000 | $0 | $245,401 | $245,401 |
Deed and Sales History
| 1 | 02/04/2022 | WD | Warranty Deed | CRAGER, DEBBIE S | OPLE, MAUREEN NICOLLE | | | $455,000.00 | 51961 | 4539745 |
| 2 | 01/29/2004 | WD | Warranty Deed | CAULK, CRAIG E | CRAGER, DEBBIE S | | | $170,000.00 | 40376 | 4089899 |
| 3 | 03/05/2001 | WD | Warranty Deed | HOMESTEAD, | CAULK, CRAIG E | | | $149,950.00 | 10689 | 20026603 |
| 4 | 03/05/2001 | OTHER | Other - Misc. Documents | Unknown | HOMESTEAD, | | | $0.00 | 10689 | 20026603 |
Payout Agreement
| No payout information available.. |