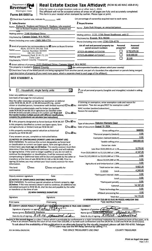
Property
Account |
| Property ID: | 800959 | Abbreviated Legal Description: | SWANTOWN RIDGE #2 LOT 9 |
| Geographic ID: | S8287-02-00009-0 | Agent Code: | |
| Type: | Real | | |
| Tax Area: | 100 - APPRAISER-OH Schl Dist, in OH | Land Use Code | 11 |
| Open Space: | N | DFL | N |
| Historic Property: | N | Remodel Property: | N |
| Multi-Family Redevelopment: | N | | |
| Township: | | Section: | |
| Range: | |
Location |
| Address: | 1990 SW SUNNYSIDE AVE OAK HARBOR, WA 98277 | Mapsco: | |
| Neighborhood: | Cycle 1 | Map ID: | 97 |
| Neighborhood CD: | 1 |
Owner |
| Name: | DAVIS, KEVIN | Owner ID: | 270383 |
| Mailing Address: | JENNIFER DAVIS 1990 SW SUNNYSIDE AVE OAK HARBOR, WA 98277 | % Ownership: | 100.0000000000% |
| | | Exemptions: | |
Taxes and Assessment Details
Values
| (+) Improvement Homesite Value: | + | $0 | |
| (+) Improvement Non-Homesite Value: | + | $341,769 | |
| (+) Land Homesite Value: | + | $0 | |
| (+) Land Non-Homesite Value: | + | $200,000 | |
| (+) Curr Use (HS): | + | $0 | $0 |
| (+) Curr Use (NHS): | + | $0 | $0 |
| | | -------------------------- | |
| (=) Market Value: | = | $541,769 | |
| (–) Productivity Loss: | – | $0 | |
| | | -------------------------- | |
| (=) Subtotal: | = | $541,769 | |
| (+) Senior Appraised Value: | + | $0 | |
| (+) Non-Senior Appraised Value: | + | $541,769 | |
| | | -------------------------- | |
| (=) Total Appraised Value: | = | $541,769 | |
| (–) Senior Exemption Loss: | – | $0 | |
| (–) Exemption Loss: | – | $0 | |
| | | -------------------------- | |
| (=) Taxable Value: | = | $541,769 | |
Taxing Jurisdiction
| Owner: | DAVIS, KEVIN | | |
| % Ownership: | 100.0000000000% | | |
| Total Value: | $541,769 | | |
| Tax Area: | 100 - APPRAISER-OH Schl Dist, in OH |
| CF | Conservation Futures | 0.0316035091 | $541,769 | $541,769 | $17.12 | | |
| CEM1 | Cemetery #1 | 0.0040320932 | $541,769 | $541,769 | $2.18 | | |
| COH | City of Oak Harbor | 2.3001546061 | $541,769 | $541,769 | $1,246.15 | | |
| OAKBOND | City of Oak Harbor BOND | 0.1926904192 | $541,769 | $541,769 | $104.39 | | |
| HOBOND | Hospital BOND | 0.1910887512 | $541,769 | $541,769 | $103.53 | | |
| HOGEN | Hospital GEN | 0.3902502903 | $541,769 | $541,769 | $211.43 | | |
| CE | County Current Expense | 0.3708482477 | $541,769 | $541,769 | $200.91 | | |
| ISLANDEMS | Hospital GEN (EMS) | 0.5000000000 | $541,769 | $541,769 | $270.88 | | |
| LIB | Library Sno-Isle GEN | 0.3153421757 | $541,769 | $541,769 | $170.84 | | |
| NWHIDPRMT | P & R N Whidbey GEN | 0.2004466701 | $541,769 | $541,769 | $108.60 | | |
| SCH201MO | School 201 Enrichment | 1.8559231640 | $541,769 | $541,769 | $1,005.48 | | |
| ST | State School | 1.3035497053 | $541,769 | $541,769 | $706.22 | | |
| ST2 | State School Part 2 | 0.8169543533 | $541,769 | $541,769 | $442.60 | | |
| | Total Tax Rate: | 8.4728839852 | | | | | |
| | | | | Taxes w/Current Exemptions: | $4,590.33 | | |
| | | | | Taxes w/o Exemptions: | $4,590.33 | | |
Improvement / Building
| Improvement #1: | RESIDENTIAL | State Code: | Y | 2369.6 sqft | Value: | $341,769 |
| Bathrooms: | 2.5 | Bedrooms: | 4 | | Ceiling: | DRYWALL PAINTED | Exterior Wall/Cover: | CEMENT FIBER | | Floor Covering: | CARPET/VINYL 80-20 | Floor Structure: | WOOD W/SUBFLOOR | | Foundation: | CONCRETE | Heating: | FHA GAS | | Interior Finish: | DRYWALL PAINT | Plumbing Fixture Cnt: | 14 | | Roof Slope: | 6" IN 12" | Roof Structure/Cover: | CJ ASPHALT |
|
| | Type | Description | Class CD | Sub Class CD | Year Built | Area |
| | BAS | BASE/MAIN FLOOR | 3 | 0 | 1999 | 1216.0 |
| | OWP | OPEN WOOD PORCH W/STEPS | 3 | 0 | 1999 | 324.0 |
| | AGR | ATTACHED GARAGE | 3 | 0 | 1999 | 400.0 |
| | UPS | UPPER STORY | 3 | 0 | 1999 | 1153.6 |
| | OWC | OPEN WOOD PORCH W/STEPS/ROOF/C | 3 | 0 | 1999 | 100.0 |
Sketch
Property Image
Land
| 1 | 13 | SQ (06001-08000) | 0.0000 | 0.00 | 0.00 | 0.00 | 1.00 | $200,000 | $0 |
Roll Value History
| 2026 | N/A | N/A | N/A | N/A | N/A |
| 2025 | $341,769 | $200,000 | $0 | $541,769 | $541,769 |
| 2024 | $345,924 | $190,000 | $0 | $535,924 | $535,924 |
| 2023 | $337,614 | $190,000 | $0 | $527,614 | $527,614 |
| 2022 | $309,481 | $190,000 | $0 | $499,481 | $499,481 |
| 2021 | $272,396 | $125,000 | $0 | $397,396 | $397,396 |
| 2020 | $265,423 | $120,000 | $0 | $385,423 | $385,423 |
| 2019 | $203,155 | $140,000 | $0 | $343,155 | $343,155 |
| 2018 | $203,752 | $130,000 | $0 | $333,752 | $333,752 |
| 2017 | $190,745 | $120,000 | $0 | $310,745 | $310,745 |
| 2016 | $192,962 | $90,000 | $0 | $282,962 | $282,962 |
| 2015 | $195,175 | $65,000 | $0 | $260,175 | $260,175 |
| 2014 | $182,735 | $55,000 | $0 | $237,735 | $237,735 |
| 2013 | $184,909 | $55,000 | $0 | $239,909 | $239,909 |
| 2012 | $187,080 | $50,000 | $0 | $237,080 | $237,080 |
| 2011 | $191,850 | $50,000 | $0 | $241,850 | $241,850 |
| 2010 | $197,742 | $50,000 | $0 | $247,742 | $247,742 |
| 2009 | $206,237 | $75,000 | $0 | $281,237 | $281,237 |
| 2008 | $208,779 | $90,000 | $0 | $298,779 | $298,779 |
| 2007 | $211,301 | $90,000 | $0 | $301,301 | $301,301 |
Deed and Sales History
| 1 | 05/26/2015 | WD | Warranty Deed | FIELDS, DAVID B | DAVIS, KEVIN | | | $269,000.00 | 19741 | 4379159 |
| 2 | 10/31/2002 | QCD | Quit Claim Deed | FIELDS, DAVID B | FIELDS, DAVID B | | | $0.00 | 24358 | 4036042 |
| 3 | 08/13/1999 | WD | Warranty Deed | HOMESTEAD NW DEV CO, | FIELDS, DAVID B | | | $178,335.00 | 93345 | 99019181 |
| 4 | 01/01/1900 | OTHER | Other - Misc. Documents | Unknown | HOMESTEAD NW DEV CO, | | | $0.00 | 0 | 0 |
Payout Agreement
| No payout information available.. |