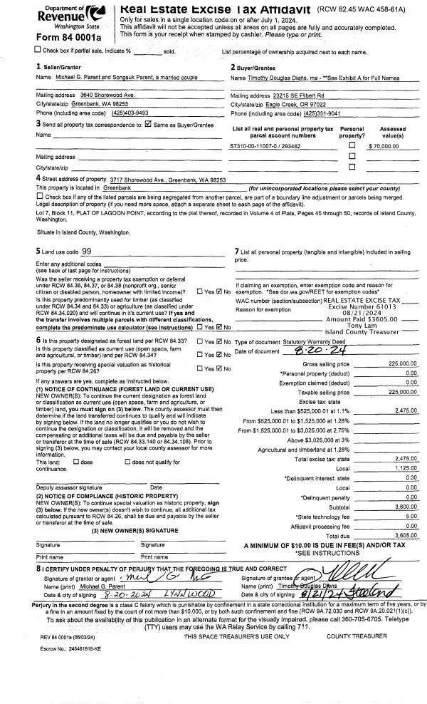
Property
Account |
| Property ID: | 800974 | Abbreviated Legal Description: | SWANTOWN RIDGE #2 LOT 71 |
| Geographic ID: | S8287-02-00071-0 | Agent Code: | |
| Type: | Real | | |
| Tax Area: | 100 - APPRAISER-OH Schl Dist, in OH | Land Use Code | 11 |
| Open Space: | N | DFL | N |
| Historic Property: | N | Remodel Property: | N |
| Multi-Family Redevelopment: | N | | |
| Township: | | Section: | |
| Range: | |
Location |
| Address: | 970 SW SILVERBERRY ST OAK HARBOR, WA 98277 | Mapsco: | |
| Neighborhood: | Cycle 1 | Map ID: | 97 |
| Neighborhood CD: | 1 |
Owner |
| Name: | MATHIS, MICHAEL S | Owner ID: | 269968 |
| Mailing Address: | EUSTRALBERTA MATHIS 970 SW SILVERBERRY ST OAK HARBOR, WA 98277 | % Ownership: | 100.0000000000% |
| | | Exemptions: | |
Taxes and Assessment Details
Values
| (+) Improvement Homesite Value: | + | $0 | |
| (+) Improvement Non-Homesite Value: | + | $271,560 | |
| (+) Land Homesite Value: | + | $0 | |
| (+) Land Non-Homesite Value: | + | $200,000 | |
| (+) Curr Use (HS): | + | $0 | $0 |
| (+) Curr Use (NHS): | + | $0 | $0 |
| | | -------------------------- | |
| (=) Market Value: | = | $471,560 | |
| (–) Productivity Loss: | – | $0 | |
| | | -------------------------- | |
| (=) Subtotal: | = | $471,560 | |
| (+) Senior Appraised Value: | + | $0 | |
| (+) Non-Senior Appraised Value: | + | $471,560 | |
| | | -------------------------- | |
| (=) Total Appraised Value: | = | $471,560 | |
| (–) Senior Exemption Loss: | – | $0 | |
| (–) Exemption Loss: | – | $0 | |
| | | -------------------------- | |
| (=) Taxable Value: | = | $471,560 | |
Taxing Jurisdiction
| Owner: | MATHIS, MICHAEL S | | |
| % Ownership: | 100.0000000000% | | |
| Total Value: | $471,560 | | |
| Tax Area: | 100 - APPRAISER-OH Schl Dist, in OH |
| CF | Conservation Futures | 0.0316035091 | $471,560 | $471,560 | $14.90 | | |
| CEM1 | Cemetery #1 | 0.0040320932 | $471,560 | $471,560 | $1.90 | | |
| COH | City of Oak Harbor | 2.3001546061 | $471,560 | $471,560 | $1,084.66 | | |
| OAKBOND | City of Oak Harbor BOND | 0.1926904192 | $471,560 | $471,560 | $90.87 | | |
| HOBOND | Hospital BOND | 0.1910887512 | $471,560 | $471,560 | $90.11 | | |
| HOGEN | Hospital GEN | 0.3902502903 | $471,560 | $471,560 | $184.03 | | |
| CE | County Current Expense | 0.3708482477 | $471,560 | $471,560 | $174.88 | | |
| ISLANDEMS | Hospital GEN (EMS) | 0.5000000000 | $471,560 | $471,560 | $235.78 | | |
| LIB | Library Sno-Isle GEN | 0.3153421757 | $471,560 | $471,560 | $148.70 | | |
| NWHIDPRMT | P & R N Whidbey GEN | 0.2004466701 | $471,560 | $471,560 | $94.52 | | |
| SCH201MO | School 201 Enrichment | 1.8559231640 | $471,560 | $471,560 | $875.18 | | |
| ST | State School | 1.3035497053 | $471,560 | $471,560 | $614.70 | | |
| ST2 | State School Part 2 | 0.8169543533 | $471,560 | $471,560 | $385.24 | | |
| | Total Tax Rate: | 8.4728839852 | | | | | |
| | | | | Taxes w/Current Exemptions: | $3,995.47 | | |
| | | | | Taxes w/o Exemptions: | $3,995.47 | | |
Improvement / Building
| Improvement #1: | RESIDENTIAL | State Code: | Y | 1350.5 sqft | Value: | $271,560 |
| Bathrooms: | 2 | Bedrooms: | 3 | | Ceiling: | DRYWALL PAINTED | Exterior Wall/Cover: | CEMENT FIBER | | Floor Covering: | HARDWOOD/CARP 20-80 | Floor Structure: | WOOD W/SUBFLOOR | | Foundation: | CONCRETE | Heating: | FHA GAS | | Interior Finish: | DRYWALL PAINT | Plumbing Fixture Cnt: | 9 | | Roof Slope: | 6" IN 12" | Roof Structure/Cover: | CJ ASPHALT |
|
| | Type | Description | Class CD | Sub Class CD | Year Built | Area |
| | BAS | BASE/MAIN FLOOR | 3 | 0 | 2000 | 1350.5 |
| | OP3 | OPEN PORCH W/ROOF | 3 | 0 | 2000 | 150.0 |
| | AGR | ATTACHED GARAGE | 3 | 0 | 2000 | 600.0 |
| | OWC | OPEN WOOD PORCH W/STEPS/ROOF/C | 3 | 0 | 2000 | 108.0 |
Sketch
Property Image
Land
| 1 | 13 | SQ (06001-08000) | 0.0000 | 0.00 | 0.00 | 0.00 | 1.00 | $200,000 | $0 |
Roll Value History
| 2026 | N/A | N/A | N/A | N/A | N/A |
| 2025 | $271,560 | $200,000 | $0 | $471,560 | $471,560 |
| 2024 | $274,862 | $190,000 | $0 | $464,862 | $464,862 |
| 2023 | $268,259 | $190,000 | $0 | $458,259 | $458,259 |
| 2022 | $245,906 | $190,000 | $0 | $435,906 | $435,906 |
| 2021 | $216,437 | $125,000 | $0 | $341,437 | $341,437 |
| 2020 | $210,721 | $120,000 | $0 | $330,721 | $330,721 |
| 2019 | $151,660 | $140,000 | $0 | $291,660 | $291,660 |
| 2018 | $152,106 | $130,000 | $0 | $282,106 | $282,106 |
| 2017 | $127,990 | $120,000 | $0 | $247,990 | $247,990 |
| 2016 | $129,552 | $90,000 | $0 | $219,552 | $219,552 |
| 2015 | $131,114 | $65,000 | $0 | $196,114 | $196,114 |
| 2014 | $132,674 | $55,000 | $0 | $187,674 | $187,674 |
| 2013 | $136,928 | $55,000 | $0 | $191,928 | $191,928 |
| 2012 | $138,521 | $50,000 | $0 | $188,521 | $188,521 |
| 2011 | $142,244 | $50,000 | $0 | $192,244 | $192,244 |
| 2010 | $148,437 | $50,000 | $0 | $198,437 | $198,437 |
| 2009 | $154,857 | $75,000 | $0 | $229,857 | $229,857 |
| 2008 | $156,859 | $90,000 | $0 | $246,859 | $246,859 |
| 2007 | $157,212 | $90,000 | $0 | $247,212 | $247,212 |
Deed and Sales History
| 1 | 04/23/2015 | WD | Warranty Deed | STEADMAN, ANTHONY R | MATHIS, MICHAEL S | | | $250,000.00 | 19319 | 4377316 |
| 2 | 02/05/2013 | WD | Warranty Deed | BARKER, CHRISTOPHER C | STEADMAN, ANTHONY R | | | $175,000.00 | 10405 | 4333438 |
| 3 | 03/17/2003 | WD | Warranty Deed | KUFFNER, MICHAEL R | BARKER, CHRISTOPHER C | | | $168,500.00 | 31450 | 40554374 |
| 4 | 08/01/2000 | WD | Warranty Deed | HOMESTEAD NW DEV CO, | KUFFNER, MICHAEL R | | | $151,307.00 | 2907 | 20013675 |
| 5 | 01/01/1900 | OTHER | Other - Misc. Documents | Unknown | HOMESTEAD NW DEV CO, | | | $0.00 | 0 | 0 |
Payout Agreement
| No payout information available.. |