Property
Account |
| Property ID: | 801004 | Abbreviated Legal Description: | LOT 2 SP 148-97.13219.476-0580 V3 SP P235 AF#99003456 |
| Geographic ID: | R13219-471-0860 | Agent Code: | |
| Type: | Real | | |
| Tax Area: | 119 - APPRAISER-OH Schl Dist, outside OH, vacant & 50 acres or less | Land Use Code | 91 |
| Open Space: | N | DFL | N |
| Historic Property: | N | Remodel Property: | N |
| Multi-Family Redevelopment: | N | | |
| Township: | 32 | Section: | 19 |
| Range: | R1 |
Location |
| Address: | | Mapsco: | |
| Neighborhood: | Cycle 2 | Map ID: | 143 |
| Neighborhood CD: | 2 |
Owner |
| Name: | MATROS, JOHN A | Owner ID: | 191890 |
| Mailing Address: | 1150 OLSON RD COUPEVILLE, WA 98239-3116 | % Ownership: | 100.0000000000% |
| | | Exemptions: | |
Taxes and Assessment Details
Values
| (+) Improvement Homesite Value: | + | $0 | |
| (+) Improvement Non-Homesite Value: | + | $0 | |
| (+) Land Homesite Value: | + | $0 | |
| (+) Land Non-Homesite Value: | + | $161,138 | |
| (+) Curr Use (HS): | + | $0 | $0 |
| (+) Curr Use (NHS): | + | $0 | $0 |
| | | -------------------------- | |
| (=) Market Value: | = | $161,138 | |
| (–) Productivity Loss: | – | $0 | |
| | | -------------------------- | |
| (=) Subtotal: | = | $161,138 | |
| (+) Senior Appraised Value: | + | $0 | |
| (+) Non-Senior Appraised Value: | + | $161,138 | |
| | | -------------------------- | |
| (=) Total Appraised Value: | = | $161,138 | |
| (–) Senior Exemption Loss: | – | $0 | |
| (–) Exemption Loss: | – | $0 | |
| | | -------------------------- | |
| (=) Taxable Value: | = | $161,138 | |
Taxing Jurisdiction
| Owner: | MATROS, JOHN A | | |
| % Ownership: | 100.0000000000% | | |
| Total Value: | $161,138 | | |
| Tax Area: | 119 - APPRAISER-OH Schl Dist, outside OH, vacant & 50 acres or less |
| CF | Conservation Futures | 0.0316035091 | $161,138 | $161,138 | $5.09 | | |
| CEM1 | Cemetery #1 | 0.0040320932 | $161,138 | $161,138 | $0.65 | | |
| HOBOND | Hospital BOND | 0.1910887512 | $161,138 | $161,138 | $30.79 | | |
| HOGEN | Hospital GEN | 0.3902502903 | $161,138 | $161,138 | $62.88 | | |
| CE | County Current Expense | 0.3708482477 | $161,138 | $161,138 | $59.76 | | |
| CR | County Roads | 0.4584763726 | $161,138 | $161,138 | $73.88 | | |
| ISLANDEMS | Hospital GEN (EMS) | 0.5000000000 | $161,138 | $161,138 | $80.57 | | |
| LIB | Library Sno-Isle GEN | 0.3153421757 | $161,138 | $161,138 | $50.81 | | |
| NWHIDPRMT | P & R N Whidbey GEN | 0.2004466701 | $161,138 | $161,138 | $32.30 | | |
| SCH201MO | School 201 Enrichment | 1.8559231640 | $161,138 | $161,138 | $299.06 | | |
| ST | State School | 1.3035497053 | $161,138 | $161,138 | $210.05 | | |
| ST2 | State School Part 2 | 0.8169543533 | $161,138 | $161,138 | $131.64 | | |
| | Total Tax Rate: | 6.4385153325 | | | | | |
| | | | | Taxes w/Current Exemptions: | $1,037.48 | | |
| | | | | Taxes w/o Exemptions: | $1,037.48 | | |
Improvement / Building
Sketch
| No sketches available for this property. |
Property Image
Land
| 1 | 91 | UNDEVELOPED LAND-METES AND BOUNDS | 5.8200 | 0.00 | 0.00 | 0.00 | 1.00 | $161,138 | $0 |
Roll Value History
| 2026 | N/A | N/A | N/A | N/A | N/A |
| 2025 | $0 | $161,138 | $0 | $161,138 | $161,138 |
| 2024 | $0 | $150,000 | $0 | $150,000 | $150,000 |
| 2023 | $0 | $140,000 | $0 | $140,000 | $140,000 |
| 2022 | $0 | $135,000 | $0 | $135,000 | $135,000 |
| 2021 | $0 | $130,000 | $0 | $130,000 | $130,000 |
| 2020 | $0 | $120,000 | $0 | $120,000 | $120,000 |
| 2019 | $0 | $150,000 | $0 | $150,000 | $150,000 |
| 2018 | $0 | $170,000 | $0 | $170,000 | $170,000 |
| 2017 | $0 | $170,000 | $0 | $170,000 | $170,000 |
| 2016 | $0 | $130,000 | $0 | $130,000 | $130,000 |
| 2015 | $0 | $100,000 | $0 | $100,000 | $100,000 |
| 2014 | $0 | $100,000 | $0 | $100,000 | $100,000 |
| 2013 | $0 | $91,400 | $0 | $91,400 | $91,400 |
| 2012 | $0 | $91,400 | $0 | $91,400 | $91,400 |
| 2011 | $0 | $91,400 | $0 | $91,400 | $91,400 |
| 2010 | $0 | $91,400 | $0 | $91,400 | $91,400 |
| 2009 | $0 | $131,388 | $0 | $131,388 | $131,388 |
| 2008 | $0 | $117,821 | $0 | $117,821 | $117,821 |
| 2007 | $0 | $88,520 | $0 | $88,520 | $88,520 |
Deed and Sales History
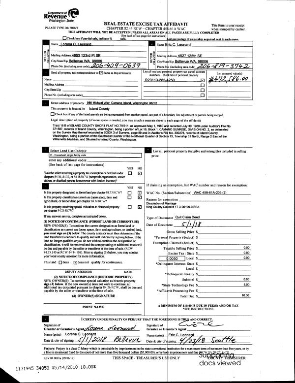
| 1 | 01/16/2004 | ESTSEPPROP | Establish Separate Property | MATROS, MICHELE L/JOHN A | MATROS, JOHN A | | | $0.00 | 40209 | 4088761 |
| 2 | 01/01/1900 | OTHER | Other - Misc. Documents | Unknown | MATROS, MICHELE L/JOHN A | | | $0.00 | 0 | 0 |
Payout Agreement
| No payout information available.. |