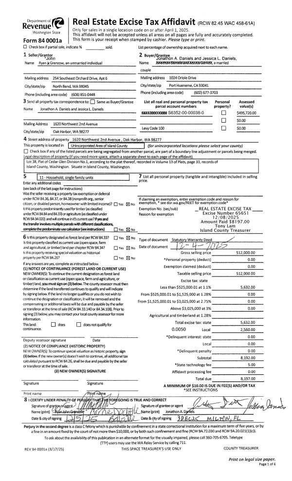
Property
Account |
| Property ID: | 801012 | Abbreviated Legal Description: | LOT 3 SP 426-95.23118.304-0960 & .338-0850 V3 SP P236 AF#99003674 |
| Geographic ID: | R23118-304-1230 | Agent Code: | |
| Type: | Real | | |
| Tax Area: | 312 - APPRAISER-Cpvl Schl Dist, outside Cpvl, improved, greater than 1 acre | Land Use Code | 11 |
| Open Space: | N | DFL | N |
| Historic Property: | N | Remodel Property: | N |
| Multi-Family Redevelopment: | N | | |
| Township: | 31 | Section: | 18 |
| Range: | R2 |
Location |
| Address: | 16606 SR20 COUPEVILLE, WA 98239 | Mapsco: | |
| Neighborhood: | Cycle 2 | Map ID: | 491 |
| Neighborhood CD: | 2 |
Owner |
| Name: | VIDONI, JON | Owner ID: | 182962 |
| Mailing Address: | KATHLEEN D VIDONI 16606 STATE ROUTE 20 COUPEVILLE, WA 98239-9635 | % Ownership: | 100.0000000000% |
| | | Exemptions: | |
Taxes and Assessment Details
Values
| (+) Improvement Homesite Value: | + | $0 | |
| (+) Improvement Non-Homesite Value: | + | $131,796 | |
| (+) Land Homesite Value: | + | $0 | |
| (+) Land Non-Homesite Value: | + | $340,000 | |
| (+) Curr Use (HS): | + | $0 | $0 |
| (+) Curr Use (NHS): | + | $0 | $0 |
| | | -------------------------- | |
| (=) Market Value: | = | $471,796 | |
| (–) Productivity Loss: | – | $0 | |
| | | -------------------------- | |
| (=) Subtotal: | = | $471,796 | |
| (+) Senior Appraised Value: | + | $0 | |
| (+) Non-Senior Appraised Value: | + | $471,796 | |
| | | -------------------------- | |
| (=) Total Appraised Value: | = | $471,796 | |
| (–) Senior Exemption Loss: | – | $0 | |
| (–) Exemption Loss: | – | $0 | |
| | | -------------------------- | |
| (=) Taxable Value: | = | $471,796 | |
Taxing Jurisdiction
| Owner: | VIDONI, JON | | |
| % Ownership: | 100.0000000000% | | |
| Total Value: | $471,796 | | |
| Tax Area: | 312 - APPRAISER-Cpvl Schl Dist, outside Cpvl, improved, greater than 1 acre |
| CF | Conservation Futures | 0.0316035091 | $471,796 | $471,796 | $14.91 | | |
| CEM2 | Cemetery #2 | 0.0095056933 | $471,796 | $471,796 | $4.48 | | |
| FIRE5 | Fire & Rescue Dist #5 C Whidbey GEN | 1.2008080668 | $471,796 | $471,796 | $566.54 | | |
| FIRE5BOND | Fire & Rescue Dist #5 C Whidbey BOND | 0.1400090713 | $471,796 | $471,796 | $66.06 | | |
| HOBOND | Hospital BOND | 0.1910887512 | $471,796 | $471,796 | $90.15 | | |
| HOGEN | Hospital GEN | 0.3902502903 | $471,796 | $471,796 | $184.12 | | |
| CE | County Current Expense | 0.3708482477 | $471,796 | $471,796 | $174.96 | | |
| CR | County Roads | 0.4584763726 | $471,796 | $471,796 | $216.31 | | |
| ISLANDEMS | Hospital GEN (EMS) | 0.5000000000 | $471,796 | $471,796 | $235.90 | | |
| LIB | Library Sno-Isle GEN | 0.3153421757 | $471,796 | $471,796 | $148.78 | | |
| LIBCAP | Library Sno-Isle BOND (Cap Fac Imp Area) | 0.0543427938 | $471,796 | $471,796 | $25.64 | | |
| POCOUP | Port of Coupeville GEN | 0.1093371703 | $471,796 | $471,796 | $51.58 | | |
| POCOUPIDD | Port of Coupeville IDD | 0.3409740022 | $471,796 | $471,796 | $160.87 | | |
| COUPSDTECH | School 204 CP (TECH) | 0.7545480007 | $471,796 | $471,796 | $355.99 | | |
| SCH204MO | School 204 Enrichment | 0.6716186034 | $471,796 | $471,796 | $316.87 | | |
| ST | State School | 1.3035497053 | $471,796 | $471,796 | $615.01 | | |
| ST2 | State School Part 2 | 0.8169543533 | $471,796 | $471,796 | $385.44 | | |
| | Total Tax Rate: | 7.6592568070 | | | | | |
| | | | | Taxes w/Current Exemptions: | $3,613.61 | | |
| | | | | Taxes w/o Exemptions: | $3,613.61 | | |
Improvement / Building
| Improvement #1: | MANUFACTURED HOME | State Code: | Y | 1809.0 sqft | Value: | $131,796 |
| Bathrooms: | 0 | Bedrooms: | 0 | | Ceiling: | PLASTER PAINTED | Cooling: | EVAP NO DUCT | | Exterior Wall/Cover: | VINYL | Floor Covering: | CARPET 100% | | Floor Structure: | SLAB ON GRADE | Foundation: | SLAB | | Heating: | FHA ELECTRIC | Interior Finish: | PLASTER | | Plumbing Fixture Cnt: | 1 | Roof Slope: | FLAT | | Roof Structure/Cover: | CJ ALUMINIUM HEAVY |   |   |
|
| | Type | Description | Class CD | Sub Class CD | Year Built | Area |
| | BAS | BASE/MAIN FLOOR | 4 | 0 | 2000 | 1809.0 |
| | OWP | OPEN WOOD PORCH W/STEPS | 4 | 0 | 2000 | 60.0 |
| | UTY | STORAGE/UTILITY | 4 | 0 | 2000 | 192.0 |
Sketch
Property Image
Land
| 1 | HS | HOMESITE | 1.0000 | 43560.00 | 0.00 | 0.00 | 1.00 | $220,000 | $0 |
| 2 | 91 | UNDEVELOPED LAND-METES AND BOUNDS | 4.0000 | 174240.00 | 0.00 | 0.00 | 1.00 | $120,000 | $0 |
Roll Value History
| 2026 | N/A | N/A | N/A | N/A | N/A |
| 2025 | $131,796 | $340,000 | $0 | $471,796 | $471,796 |
| 2024 | $124,265 | $300,000 | $0 | $424,265 | $424,265 |
| 2023 | $111,340 | $280,000 | $0 | $391,340 | $391,340 |
| 2022 | $103,783 | $260,000 | $0 | $363,783 | $363,783 |
| 2021 | $92,828 | $170,000 | $0 | $262,828 | $262,828 |
| 2020 | $91,360 | $160,000 | $0 | $251,360 | $251,360 |
| 2019 | $73,941 | $230,000 | $0 | $303,941 | $303,941 |
| 2018 | $73,378 | $200,000 | $0 | $273,378 | $273,378 |
| 2017 | $75,247 | $200,000 | $0 | $275,247 | $275,247 |
| 2016 | $77,116 | $140,000 | $0 | $217,116 | $217,116 |
| 2015 | $78,985 | $121,500 | $0 | $200,485 | $200,485 |
| 2014 | $80,854 | $121,500 | $0 | $202,354 | $202,354 |
| 2013 | $82,723 | $121,500 | $0 | $204,223 | $204,223 |
| 2012 | $84,592 | $121,500 | $0 | $206,092 | $206,092 |
| 2011 | $85,527 | $135,000 | $0 | $220,527 | $220,527 |
| 2010 | $90,741 | $135,000 | $0 | $225,741 | $225,741 |
| 2009 | $94,404 | $150,000 | $0 | $244,404 | $244,404 |
| 2008 | $95,478 | $167,500 | $0 | $262,978 | $262,978 |
| 2007 | $96,547 | $150,000 | $0 | $246,547 | $246,547 |
Deed and Sales History
| 1 | 08/28/2002 | WD | Warranty Deed | WINKEL-APODACA, JANETTE J | VIDONI, JON | | | $180,000.00 | 23578 | 4030642 |
| 2 | 09/19/2001 | DECREE | Divorce Decree/Legal Separation | APODACA, M JOAQUIN | WINKEL-APODACA, JANETTE J | | | $0.00 | 13743 | 20044122 |
| 3 | 03/20/2000 | WD | Warranty Deed | COUPEVILLE GOOD SHEPHERD ASSEM | APODACA, M JOAQUIN | | | $50,000.00 | 1062 | 20005117 |
| 4 | 03/22/1999 | WD | Warranty Deed | METSELAAR, CORNELIS | COUPEVILLE GOOD SHEPHERD ASSEM | | | $39,150.00 | 91110 | 99007505 |
| 5 | 01/01/1900 | OTHER | Other - Misc. Documents | Unknown | METSELAAR, CORNELIS | | | $0.00 | 0 | 0 |
Payout Agreement
| No payout information available.. |