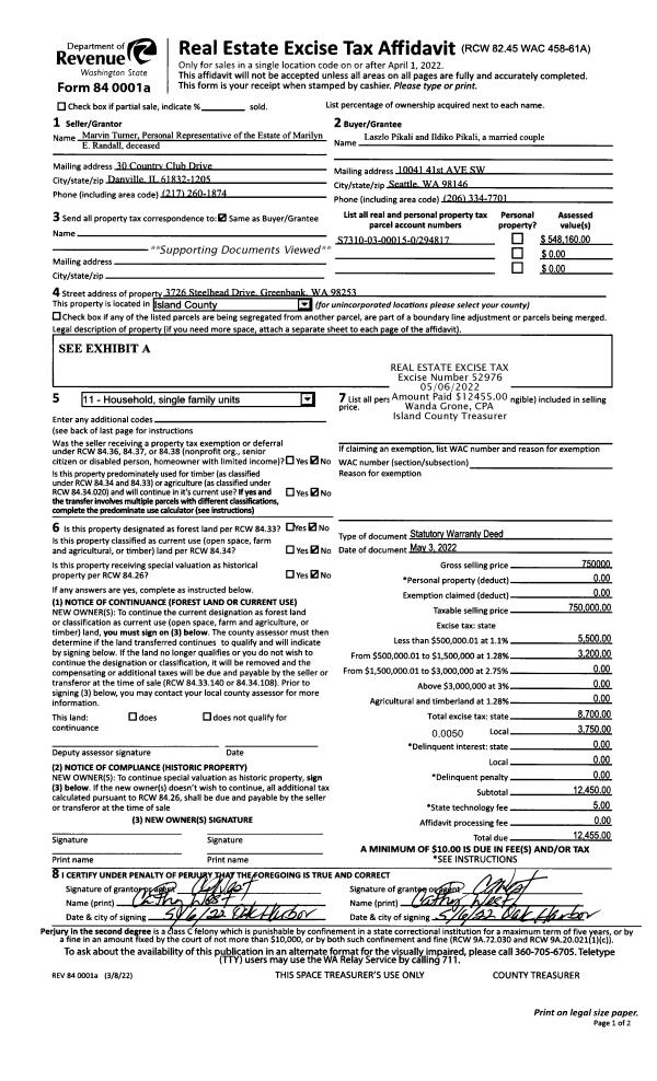
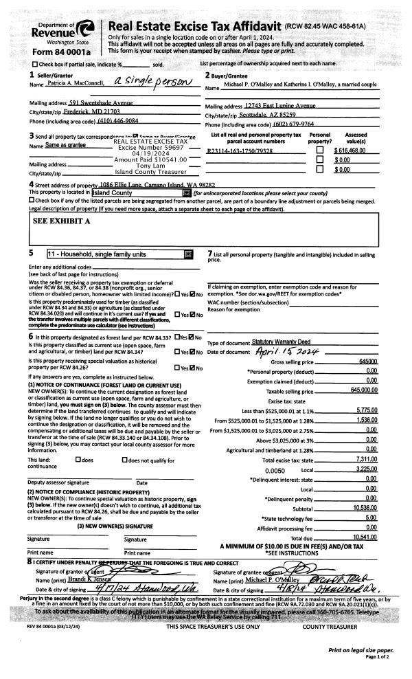
Property
Account |
| Property ID: | 801039 | Abbreviated Legal Description: | WOODGLEN ESTATES PRD LOT 4 |
| Geographic ID: | S8488-00-00004-0 | Agent Code: | |
| Type: | Real | | |
| Tax Area: | 110 - APPRAISER-OH Schl Dist, outside OH, improved & 1 acre or less | Land Use Code | 11 |
| Open Space: | N | DFL | N |
| Historic Property: | N | Remodel Property: | N |
| Multi-Family Redevelopment: | N | | |
| Township: | | Section: | |
| Range: | |
Location |
| Address: | 1688 SPUR LN OAK HARBOR, WA 98277 | Mapsco: | |
| Neighborhood: | Cycle 1 | Map ID: | 105 |
| Neighborhood CD: | 1 |
Owner |
| Name: | WEDEKIND, JACOB LEE | Owner ID: | 315956 |
| Mailing Address: | ANN WEDEKIND 1688 SPUR LN OAK HARBOR, WA 98277 | % Ownership: | 100.0000000000% |
| | | Exemptions: | |
Taxes and Assessment Details
Values
| (+) Improvement Homesite Value: | + | $0 | |
| (+) Improvement Non-Homesite Value: | + | $338,538 | |
| (+) Land Homesite Value: | + | $0 | |
| (+) Land Non-Homesite Value: | + | $190,000 | |
| (+) Curr Use (HS): | + | $0 | $0 |
| (+) Curr Use (NHS): | + | $0 | $0 |
| | | -------------------------- | |
| (=) Market Value: | = | $528,538 | |
| (–) Productivity Loss: | – | $0 | |
| | | -------------------------- | |
| (=) Subtotal: | = | $528,538 | |
| (+) Senior Appraised Value: | + | $0 | |
| (+) Non-Senior Appraised Value: | + | $528,538 | |
| | | -------------------------- | |
| (=) Total Appraised Value: | = | $528,538 | |
| (–) Senior Exemption Loss: | – | $0 | |
| (–) Exemption Loss: | – | $0 | |
| | | -------------------------- | |
| (=) Taxable Value: | = | $528,538 | |
Taxing Jurisdiction
| Owner: | WEDEKIND, JACOB LEE | | |
| % Ownership: | 100.0000000000% | | |
| Total Value: | $528,538 | | |
| Tax Area: | 110 - APPRAISER-OH Schl Dist, outside OH, improved & 1 acre or less |
| CF | Conservation Futures | 0.0316035091 | $528,538 | $528,538 | $16.70 | | |
| CEM1 | Cemetery #1 | 0.0040320932 | $528,538 | $528,538 | $2.13 | | |
| FIRE2 | Fire & Rescue Dist #2 N Whidbey GEN | 0.5475949600 | $528,538 | $528,538 | $289.42 | | |
| HOBOND | Hospital BOND | 0.1910887512 | $528,538 | $528,538 | $101.00 | | |
| HOGEN | Hospital GEN | 0.3902502903 | $528,538 | $528,538 | $206.26 | | |
| CE | County Current Expense | 0.3708482477 | $528,538 | $528,538 | $196.01 | | |
| CR | County Roads | 0.4584763726 | $528,538 | $528,538 | $242.32 | | |
| ISLANDEMS | Hospital GEN (EMS) | 0.5000000000 | $528,538 | $528,538 | $264.27 | | |
| LIB | Library Sno-Isle GEN | 0.3153421757 | $528,538 | $528,538 | $166.67 | | |
| NWHIDPRMT | P & R N Whidbey GEN | 0.2004466701 | $528,538 | $528,538 | $105.94 | | |
| SCH201MO | School 201 Enrichment | 1.8559231640 | $528,538 | $528,538 | $980.93 | | |
| ST | State School | 1.3035497053 | $528,538 | $528,538 | $688.98 | | |
| ST2 | State School Part 2 | 0.8169543533 | $528,538 | $528,538 | $431.79 | | |
| | Total Tax Rate: | 6.9861102925 | | | | | |
| | | | | Taxes w/Current Exemptions: | $3,692.42 | | |
| | | | | Taxes w/o Exemptions: | $3,692.42 | | |
Improvement / Building
| Improvement #1: | RESIDENTIAL | State Code: | Y | 1790.5 sqft | Value: | $338,538 |
| Bathrooms: | 2 | Bedrooms: | 3 | | Ceiling: | DRYWALL PAINTED | Exterior Wall/Cover: | CEMENT FIBER | | Floor Covering: | VINYL 100% | Floor Structure: | WOOD W/SUBFLOOR | | Foundation: | CONCRETE | Heating: | FHA GAS | | Interior Finish: | DRYWALL PAINT | Plumbing Fixture Cnt: | 10 | | Roof Slope: | 8" IN 12" | Roof Structure/Cover: | CJ ASPHALT |
|
| | Type | Description | Class CD | Sub Class CD | Year Built | Area |
| | BAS | BASE/MAIN FLOOR | 3 | 0 | 2002 | 1790.5 |
| | AGR | ATTACHED GARAGE | 3 | 0 | 2002 | 546.0 |
| | OWP | OPEN WOOD PORCH W/STEPS | 3 | 0 | 2002 | 355.4 |
| | OWC | OPEN WOOD PORCH W/STEPS/ROOF/C | 3 | 0 | 2002 | 31.5 |
Sketch
Property Image
Land
| 1 | 14 | SQ (08001-12000) | 0.0000 | 0.00 | 0.00 | 0.00 | 1.00 | $190,000 | $0 |
Roll Value History
| 2026 | N/A | N/A | N/A | N/A | N/A |
| 2025 | $338,538 | $190,000 | $0 | $528,538 | $528,538 |
| 2024 | $342,509 | $200,000 | $0 | $542,509 | $542,509 |
| 2023 | $322,851 | $200,000 | $0 | $522,851 | $522,851 |
| 2022 | $295,866 | $200,000 | $0 | $495,866 | $495,866 |
| 2021 | $261,220 | $120,000 | $0 | $381,220 | $381,220 |
| 2020 | $254,588 | $100,000 | $0 | $354,588 | $135,701 |
| 2019 | $189,253 | $150,000 | $0 | $339,253 | $269,253 |
| 2018 | $188,182 | $130,000 | $0 | $318,182 | $318,182 |
| 2017 | $173,948 | $110,000 | $0 | $283,948 | $283,948 |
| 2016 | $176,020 | $100,000 | $0 | $276,020 | $276,020 |
| 2015 | $178,090 | $75,000 | $0 | $253,090 | $253,090 |
| 2014 | $180,162 | $51,000 | $0 | $231,162 | $231,162 |
| 2013 | $182,232 | $51,000 | $0 | $233,232 | $233,232 |
| 2012 | $184,304 | $51,000 | $0 | $235,304 | $235,304 |
| 2011 | $191,276 | $60,000 | $0 | $251,276 | $251,276 |
| 2010 | $201,357 | $60,000 | $0 | $261,357 | $261,357 |
| 2009 | $207,732 | $85,000 | $0 | $292,732 | $292,732 |
| 2008 | $210,287 | $85,000 | $0 | $295,287 | $295,287 |
| 2007 | $214,942 | $57,240 | $0 | $272,182 | $272,182 |
Deed and Sales History
| 1 | 03/25/2025 | WD | Warranty Deed | COCKRELL, BRELAND DOUGLAS | WEDEKIND, JACOB LEE | | | $575,000.00 | 62956 | 4583795 |
| 2 | 12/20/2021 | WD | Warranty Deed | HALBERT, CATHY A | COCKRELL, BRELAND DOUGLAS | | | $495,000.00 | 51590 | 4537444 |
| 3 | 09/12/2018 | WD | Warranty Deed | BOCKMAN, JAMES A | HALBERT, CATHY A | | | $355,000.00 | 35889 | 4451706 |
| 4 | 03/26/2002 | WD | Warranty Deed | CAVE, KENNETH L | BOCKMAN, JAMES A | | | $185,000.00 | 21150 | 4015379 |
| 5 | 03/26/2002 | 5 | DNU - Marriage License/Name Change | Unknown | CAVE, KENNETH L | | | $0.00 | 21149 | 4015378 |
Payout Agreement
| No payout information available.. |