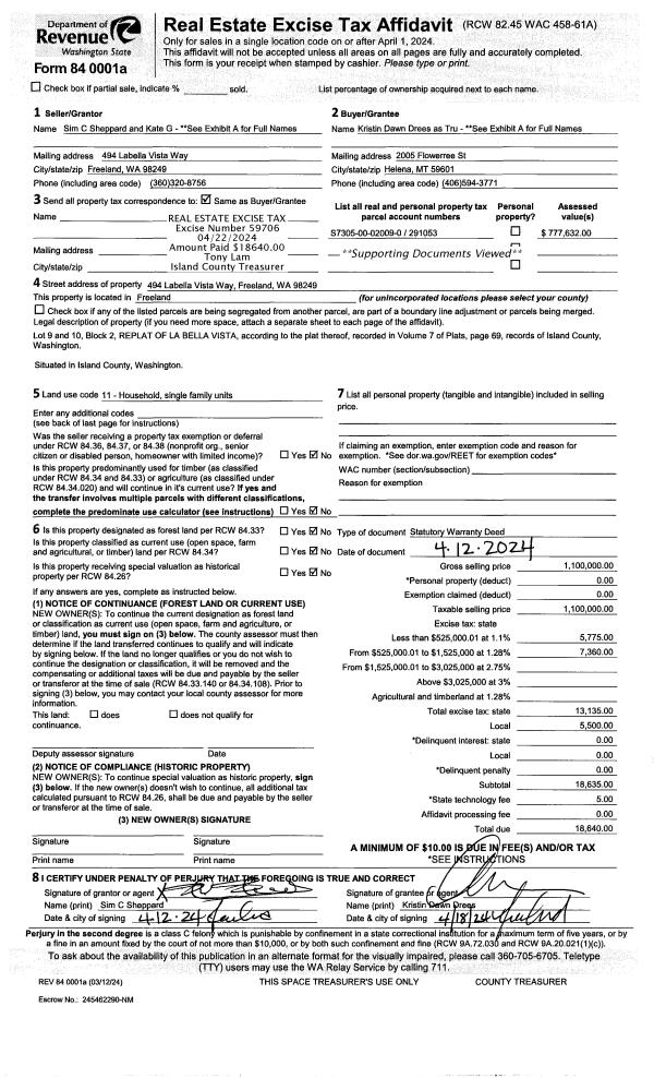
Property
Account |
| Property ID: | 801047 | Abbreviated Legal Description: | WOODGLEN ESTATES PRD LOT 13 |
| Geographic ID: | S8488-00-00013-0 | Agent Code: | |
| Type: | Real | | |
| Tax Area: | 110 - APPRAISER-OH Schl Dist, outside OH, improved & 1 acre or less | Land Use Code | 11 |
| Open Space: | N | DFL | N |
| Historic Property: | N | Remodel Property: | N |
| Multi-Family Redevelopment: | N | | |
| Township: | | Section: | |
| Range: | |
Location |
| Address: | 2063 DOE DR OAK HARBOR, WA 98277 | Mapsco: | |
| Neighborhood: | Cycle 1 | Map ID: | 105 |
| Neighborhood CD: | 1 |
Owner |
| Name: | SEBASTIAN TTEE, IAN R | Owner ID: | 304301 |
| Mailing Address: | CYNTHIA L SEBASTIAN TTEE 2063 DOE DR OAK HARBOR, WA 98277 | % Ownership: | 100.0000000000% |
| | | Exemptions: | |
Taxes and Assessment Details
Values
| (+) Improvement Homesite Value: | + | $0 | |
| (+) Improvement Non-Homesite Value: | + | $314,830 | |
| (+) Land Homesite Value: | + | $0 | |
| (+) Land Non-Homesite Value: | + | $190,000 | |
| (+) Curr Use (HS): | + | $0 | $0 |
| (+) Curr Use (NHS): | + | $0 | $0 |
| | | -------------------------- | |
| (=) Market Value: | = | $504,830 | |
| (–) Productivity Loss: | – | $0 | |
| | | -------------------------- | |
| (=) Subtotal: | = | $504,830 | |
| (+) Senior Appraised Value: | + | $0 | |
| (+) Non-Senior Appraised Value: | + | $504,830 | |
| | | -------------------------- | |
| (=) Total Appraised Value: | = | $504,830 | |
| (–) Senior Exemption Loss: | – | $0 | |
| (–) Exemption Loss: | – | $0 | |
| | | -------------------------- | |
| (=) Taxable Value: | = | $504,830 | |
Taxing Jurisdiction
| Owner: | SEBASTIAN TTEE, IAN R | | |
| % Ownership: | 100.0000000000% | | |
| Total Value: | $504,830 | | |
| Tax Area: | 110 - APPRAISER-OH Schl Dist, outside OH, improved & 1 acre or less |
| CF | Conservation Futures | 0.0316035091 | $504,830 | $504,830 | $15.95 | | |
| CEM1 | Cemetery #1 | 0.0040320932 | $504,830 | $504,830 | $2.04 | | |
| FIRE2 | Fire & Rescue Dist #2 N Whidbey GEN | 0.5475949600 | $504,830 | $504,830 | $276.44 | | |
| HOBOND | Hospital BOND | 0.1910887512 | $504,830 | $504,830 | $96.47 | | |
| HOGEN | Hospital GEN | 0.3902502903 | $504,830 | $504,830 | $197.01 | | |
| CE | County Current Expense | 0.3708482477 | $504,830 | $504,830 | $187.22 | | |
| CR | County Roads | 0.4584763726 | $504,830 | $504,830 | $231.45 | | |
| ISLANDEMS | Hospital GEN (EMS) | 0.5000000000 | $504,830 | $504,830 | $252.42 | | |
| LIB | Library Sno-Isle GEN | 0.3153421757 | $504,830 | $504,830 | $159.19 | | |
| NWHIDPRMT | P & R N Whidbey GEN | 0.2004466701 | $504,830 | $504,830 | $101.19 | | |
| SCH201MO | School 201 Enrichment | 1.8559231640 | $504,830 | $504,830 | $936.93 | | |
| ST | State School | 1.3035497053 | $504,830 | $504,830 | $658.07 | | |
| ST2 | State School Part 2 | 0.8169543533 | $504,830 | $504,830 | $412.42 | | |
| | Total Tax Rate: | 6.9861102925 | | | | | |
| | | | | Taxes w/Current Exemptions: | $3,526.80 | | |
| | | | | Taxes w/o Exemptions: | $3,526.80 | | |
Improvement / Building
| Improvement #1: | RESIDENTIAL | State Code: | Y | 1879.3 sqft | Value: | $314,830 |
| Bathrooms: | 2.5 | Bedrooms: | 3 | | Ceiling: | DRYWALL PAINTED | Exterior Wall/Cover: | CEMENT FIBER | | Floor Covering: | CARPET/VINYL 80-20 | Floor Structure: | WOOD W/SUBFLOOR | | Foundation: | CONCRETE | Heating: | FHA GAS | | Interior Finish: | DRYWALL PAINT | Plumbing Fixture Cnt: | 11 | | Roof Slope: | 12" IN 12" | Roof Structure/Cover: | CJ ASPHALT |
|
| | Type | Description | Class CD | Sub Class CD | Year Built | Area |
| | BAS | BASE/MAIN FLOOR | 3 | 0 | 2003 | 1087.2 |
| | OP1 | OPEN PORCH SLAB | 3 | 0 | 2003 | 216.0 |
| | OP4 | OPEN PORCH W/CEILING-ROOF | 3 | 0 | 2003 | 42.2 |
| | BIG | BUILT IN GARAGE | 3 | 0 | 2003 | 473.0 |
| | UPS | UPPER STORY | 3 | 0 | 2003 | 792.1 |
Sketch
Property Image
Land
| 1 | 14 | SQ (08001-12000) | 0.0000 | 0.00 | 0.00 | 0.00 | 1.00 | $190,000 | $0 |
Roll Value History
| 2026 | N/A | N/A | N/A | N/A | N/A |
| 2025 | $314,830 | $190,000 | $0 | $504,830 | $504,830 |
| 2024 | $318,704 | $200,000 | $0 | $518,704 | $518,704 |
| 2023 | $327,386 | $200,000 | $0 | $527,386 | $527,386 |
| 2022 | $292,096 | $200,000 | $0 | $492,096 | $492,096 |
| 2021 | $257,049 | $120,000 | $0 | $377,049 | $377,049 |
| 2020 | $250,508 | $100,000 | $0 | $350,508 | $350,508 |
| 2019 | $187,617 | $150,000 | $0 | $337,617 | $337,617 |
| 2018 | $188,161 | $130,000 | $0 | $318,161 | $318,161 |
| 2017 | $165,411 | $110,000 | $0 | $275,411 | $275,411 |
| 2016 | $167,357 | $100,000 | $0 | $267,357 | $267,357 |
| 2015 | $169,301 | $75,000 | $0 | $244,301 | $244,301 |
| 2014 | $171,249 | $51,000 | $0 | $222,249 | $222,249 |
| 2013 | $173,195 | $51,000 | $0 | $224,195 | $224,195 |
| 2012 | $175,143 | $51,000 | $0 | $226,143 | $226,143 |
| 2011 | $186,270 | $60,000 | $0 | $246,270 | $246,270 |
| 2010 | $194,224 | $60,000 | $0 | $254,224 | $254,224 |
| 2009 | $202,633 | $85,000 | $0 | $287,633 | $287,633 |
| 2008 | $207,312 | $85,000 | $0 | $292,312 | $292,312 |
| 2007 | $208,067 | $57,240 | $0 | $265,307 | $265,307 |
Deed and Sales History
| 1 | 05/11/2022 | WD | Warranty Deed | BAUER TRUSTEE, ROBERT B | SEBASTIAN TTEE, IAN R | | | $559,000.00 | 53139 | 4545258 |
| 2 | 02/18/2004 | WD | Warranty Deed | SIGLER, DENNIS L | BAUER TRUSTEE, ROBERT B | | | $225,000.00 | 40682 | 4092226 |
| 3 | 03/25/2003 | WD | Warranty Deed | JOKEN DEVELOPMENT INC, | SIGLER, DENNIS L | | | $42,500.00 | 31900 | 4053117 |
| 4 | 01/01/1900 | OTHER | Other - Misc. Documents | Unknown | JOKEN DEVELOPMENT INC, | | | $0.00 | 0 | 0 |
Payout Agreement
| No payout information available.. |