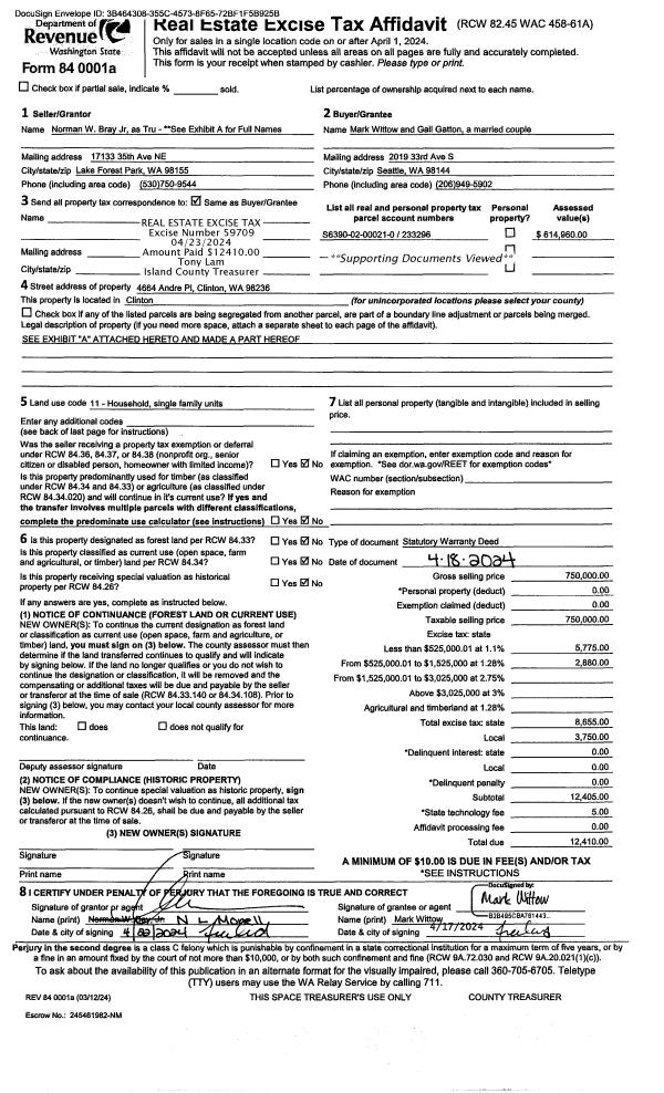
Property
Account |
| Property ID: | 801048 | Abbreviated Legal Description: | WOODGLEN ESTATES PRD LOT 16 EX: BG NECR LOT 16 ALG ELY LN SD LOT 16 S27*E144.25' TO SECR SD LOT 16 S49*W ALG SLN SD LOT 16 2.60' N34*W81.40' N15*W65.61' TPB |
| Geographic ID: | S8488-00-00016-0 | Agent Code: | |
| Type: | Real | | |
| Tax Area: | 110 - APPRAISER-OH Schl Dist, outside OH, improved & 1 acre or less | Land Use Code | 11 |
| Open Space: | N | DFL | N |
| Historic Property: | N | Remodel Property: | N |
| Multi-Family Redevelopment: | N | | |
| Township: | | Section: | |
| Range: | |
Location |
| Address: | 2049 DOE DR OAK HARBOR, WA 98277 | Mapsco: | |
| Neighborhood: | Cycle 1 | Map ID: | 105 |
| Neighborhood CD: | 1 |
Owner |
| Name: | ANDERSON, GARY | Owner ID: | 253795 |
| Mailing Address: | 2049 DOE DR OAK HARBOR, WA 98277 | % Ownership: | 100.0000000000% |
| | | Exemptions: | |
Taxes and Assessment Details
Values
| (+) Improvement Homesite Value: | + | $0 | |
| (+) Improvement Non-Homesite Value: | + | $299,140 | |
| (+) Land Homesite Value: | + | $0 | |
| (+) Land Non-Homesite Value: | + | $190,000 | |
| (+) Curr Use (HS): | + | $0 | $0 |
| (+) Curr Use (NHS): | + | $0 | $0 |
| | | -------------------------- | |
| (=) Market Value: | = | $489,140 | |
| (–) Productivity Loss: | – | $0 | |
| | | -------------------------- | |
| (=) Subtotal: | = | $489,140 | |
| (+) Senior Appraised Value: | + | $0 | |
| (+) Non-Senior Appraised Value: | + | $489,140 | |
| | | -------------------------- | |
| (=) Total Appraised Value: | = | $489,140 | |
| (–) Senior Exemption Loss: | – | $0 | |
| (–) Exemption Loss: | – | $0 | |
| | | -------------------------- | |
| (=) Taxable Value: | = | $489,140 | |
Taxing Jurisdiction
| Owner: | ANDERSON, GARY | | |
| % Ownership: | 100.0000000000% | | |
| Total Value: | $489,140 | | |
| Tax Area: | 110 - APPRAISER-OH Schl Dist, outside OH, improved & 1 acre or less |
| CF | Conservation Futures | 0.0316035091 | $489,140 | $489,140 | $15.46 | | |
| CEM1 | Cemetery #1 | 0.0040320932 | $489,140 | $489,140 | $1.97 | | |
| FIRE2 | Fire & Rescue Dist #2 N Whidbey GEN | 0.5475949600 | $489,140 | $489,140 | $267.85 | | |
| HOBOND | Hospital BOND | 0.1910887512 | $489,140 | $489,140 | $93.47 | | |
| HOGEN | Hospital GEN | 0.3902502903 | $489,140 | $489,140 | $190.89 | | |
| CE | County Current Expense | 0.3708482477 | $489,140 | $489,140 | $181.40 | | |
| CR | County Roads | 0.4584763726 | $489,140 | $489,140 | $224.26 | | |
| ISLANDEMS | Hospital GEN (EMS) | 0.5000000000 | $489,140 | $489,140 | $244.57 | | |
| LIB | Library Sno-Isle GEN | 0.3153421757 | $489,140 | $489,140 | $154.25 | | |
| NWHIDPRMT | P & R N Whidbey GEN | 0.2004466701 | $489,140 | $489,140 | $98.05 | | |
| SCH201MO | School 201 Enrichment | 1.8559231640 | $489,140 | $489,140 | $907.81 | | |
| ST | State School | 1.3035497053 | $489,140 | $489,140 | $637.62 | | |
| ST2 | State School Part 2 | 0.8169543533 | $489,140 | $489,140 | $399.61 | | |
| | Total Tax Rate: | 6.9861102925 | | | | | |
| | | | | Taxes w/Current Exemptions: | $3,417.21 | | |
| | | | | Taxes w/o Exemptions: | $3,417.21 | | |
Improvement / Building
| Improvement #1: | RESIDENTIAL | State Code: | Y | 1535.1 sqft | Value: | $299,140 |
| Bathrooms: | 2 | Bedrooms: | 3 | | Ceiling: | DRYWALL PAINTED | Exterior Wall/Cover: | CEMENT FIBER | | Floor Covering: | CARPET/VINYL 20-80 | Floor Structure: | WOOD W/SUBFLOOR | | Foundation: | CONCRETE | Heating: | FHA GAS | | Interior Finish: | DRYWALL PAINT | Plumbing Fixture Cnt: | 9 | | Roof Slope: | 8" IN 12" | Roof Structure/Cover: | CJ ASPHALT |
|
| | Type | Description | Class CD | Sub Class CD | Year Built | Area |
| | BAS | BASE/MAIN FLOOR | 3 | 0 | 2003 | 1535.1 |
| | AGR | ATTACHED GARAGE | 3 | 0 | 2003 | 535.2 |
| | OWP | OPEN WOOD PORCH W/STEPS | 3 | 0 | 2003 | 144.0 |
| | OWC | OPEN WOOD PORCH W/STEPS/ROOF/C | 3 | 0 | 2003 | 148.7 |
Sketch
Property Image
Land
| 1 | 14 | SQ (08001-12000) | 0.0000 | 0.00 | 0.00 | 0.00 | 1.00 | $190,000 | $0 |
Roll Value History
| 2026 | N/A | N/A | N/A | N/A | N/A |
| 2025 | $299,140 | $190,000 | $0 | $489,140 | $489,140 |
| 2024 | $302,733 | $200,000 | $0 | $502,733 | $502,733 |
| 2023 | $302,733 | $200,000 | $0 | $502,733 | $502,733 |
| 2022 | $277,387 | $200,000 | $0 | $477,387 | $477,387 |
| 2021 | $244,042 | $120,000 | $0 | $364,042 | $364,042 |
| 2020 | $237,739 | $100,000 | $0 | $337,739 | $337,739 |
| 2019 | $173,317 | $150,000 | $0 | $323,317 | $323,317 |
| 2018 | $173,808 | $130,000 | $0 | $303,808 | $303,808 |
| 2017 | $159,515 | $110,000 | $0 | $269,515 | $269,515 |
| 2016 | $161,390 | $100,000 | $0 | $261,390 | $261,390 |
| 2015 | $163,267 | $75,000 | $0 | $238,267 | $238,267 |
| 2014 | $165,144 | $51,000 | $0 | $216,144 | $216,144 |
| 2013 | $167,020 | $51,000 | $0 | $218,020 | $218,020 |
| 2012 | $168,897 | $51,000 | $0 | $219,897 | $219,897 |
| 2011 | $171,741 | $60,000 | $0 | $231,741 | $231,741 |
| 2010 | $175,454 | $60,000 | $0 | $235,454 | $235,454 |
| 2009 | $182,850 | $85,000 | $0 | $267,850 | $267,850 |
| 2008 | $186,771 | $85,000 | $0 | $271,771 | $271,771 |
| 2007 | $186,904 | $57,240 | $0 | $244,144 | $244,144 |
Deed and Sales History
| 1 | 02/22/2011 | QCD | Quit Claim Deed | SECRETARY OF VETERANS AFFAIRS | ANDERSON, GARY | | | $200,900.00 | 3905 | 4292399 |
| 2 | 11/09/2010 | TRUSTEED | Trustee's Deed | BANK OF AMERICA | SECRETARY OF VETERANS AFFAIRS | | | | 1943 | 4278424 |
| 3 | 07/01/2010 | TRUSTEED | Trustee's Deed | PARADISE, SUSAN A | BANK OF AMERICA, | | | $0.00 | 1647 | 4276615 |
| 4 | 03/14/2007 | WD | Warranty Deed | CARROLL, RAYMOND R | PARADISE, SUSAN A | | | $288,000.00 | 70993 | 4197635 |
| 5 | 04/07/2004 | BLA | DNU - Boundary Line Adjustment | SELLGREN AND CARYL CUSTOM BUIL | SELLGREN & CARYL CUSTOM BUILDE | | | $0.00 | 70207 | 4031395 |
| 6 | 05/08/2003 | WD | Warranty Deed | SELLGREN & CARYL CUSTOM BUILDE | CARROLL, RAYMOND R | | | $179,500.00 | 31979 | 4058644 |
| 7 | 01/11/2002 | WD | Warranty Deed | Unknown | SELLGREN AND CARYL CUSTOM BUIL | | | $40,000.00 | 20183 | 4008445 |
Payout Agreement
| No payout information available.. |