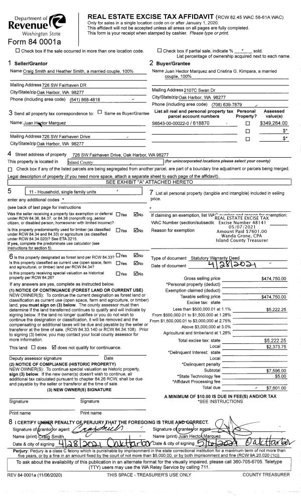
Property
Account |
| Property ID: | 801109 | Abbreviated Legal Description: | LOT 1 SP 149-97.32914.047-4130 V3 SP P247 AF#99010670 |
| Geographic ID: | R32914-026-4070 | Agent Code: | |
| Type: | Real | | |
| Tax Area: | 712 - APPRAISER-S Whid Schl Dist, outside Langley, improved, greater than 1 acre | Land Use Code | 11 |
| Open Space: | N | DFL | N |
| Historic Property: | N | Remodel Property: | N |
| Multi-Family Redevelopment: | N | | |
| Township: | 29 | Section: | 14 |
| Range: | R3 |
Location |
| Address: | 5754 BOB GALBREATH RD CLINTON, WA 98236 | Mapsco: | |
| Neighborhood: | Cycle 4 | Map ID: | 767 |
| Neighborhood CD: | 4 |
Owner |
| Name: | GEORGIANA WHITE LIVING TRUST | Owner ID: | 269990 |
| Mailing Address: | 881 TARTARIAN WAY SUNNYVALE, CA 94087 | % Ownership: | 100.0000000000% |
| | | Exemptions: | |
Taxes and Assessment Details
Values
| (+) Improvement Homesite Value: | + | $0 | |
| (+) Improvement Non-Homesite Value: | + | $56,659 | |
| (+) Land Homesite Value: | + | $0 | |
| (+) Land Non-Homesite Value: | + | $370,000 | |
| (+) Curr Use (HS): | + | $0 | $0 |
| (+) Curr Use (NHS): | + | $0 | $0 |
| | | -------------------------- | |
| (=) Market Value: | = | $426,659 | |
| (–) Productivity Loss: | – | $0 | |
| | | -------------------------- | |
| (=) Subtotal: | = | $426,659 | |
| (+) Senior Appraised Value: | + | $0 | |
| (+) Non-Senior Appraised Value: | + | $426,659 | |
| | | -------------------------- | |
| (=) Total Appraised Value: | = | $426,659 | |
| (–) Senior Exemption Loss: | – | $0 | |
| (–) Exemption Loss: | – | $0 | |
| | | -------------------------- | |
| (=) Taxable Value: | = | $426,659 | |
Taxing Jurisdiction
| Owner: | GEORGIANA WHITE LIVING TRUST | | |
| % Ownership: | 100.0000000000% | | |
| Total Value: | $426,659 | | |
| Tax Area: | 712 - APPRAISER-S Whid Schl Dist, outside Langley, improved, greater than 1 acre |
| CF | Conservation Futures | 0.0316035091 | $426,659 | $426,659 | $13.48 | | |
| FIRE3 | Fire & Rescue Dist #3 S Whidbey GEN | 1.2004855531 | $426,659 | $426,659 | $512.20 | | |
| HOBOND | Hospital BOND | 0.1910887512 | $426,659 | $426,659 | $81.53 | | |
| HOGEN | Hospital GEN | 0.3902502903 | $426,659 | $426,659 | $166.50 | | |
| CE | County Current Expense | 0.3708482477 | $426,659 | $426,659 | $158.23 | | |
| CR | County Roads | 0.4584763726 | $426,659 | $426,659 | $195.61 | | |
| ISLANDEMS | Hospital GEN (EMS) | 0.5000000000 | $426,659 | $426,659 | $213.33 | | |
| LIB | Library Sno-Isle GEN | 0.3153421757 | $426,659 | $426,659 | $134.54 | | |
| PORTWHID | Port of S Whidbey GEN | 0.1094540357 | $426,659 | $426,659 | $46.70 | | |
| SCH206BOND | School 206 BOND | 0.3161759235 | $426,659 | $426,659 | $134.90 | | |
| SCH206MO | School 206 Enrichment | 0.4547169547 | $426,659 | $426,659 | $194.01 | | |
| ST | State School | 1.3035497053 | $426,659 | $426,659 | $556.17 | | |
| ST2 | State School Part 2 | 0.8169543533 | $426,659 | $426,659 | $348.56 | | |
| SWHIDPRBD | P & R S Whidbey BOND | 0.0152817568 | $426,659 | $426,659 | $6.52 | | |
| SWHIDPRBD2 | P & R S Whidbey BOND2 | 0.0138911264 | $426,659 | $426,659 | $5.93 | | |
| SWHIDPRMT | P & R S Whidbey GEN | 0.2053334452 | $426,659 | $426,659 | $87.61 | | |
| | Total Tax Rate: | 6.6934522006 | | | | | |
| | | | | Taxes w/Current Exemptions: | $2,855.82 | | |
| | | | | Taxes w/o Exemptions: | $2,855.82 | | |
Improvement / Building
| Improvement #1: | MANUFACTURED HOME | State Code: | Y | 1488.0 sqft | Value: | $56,659 |
| Bathrooms: | 2 | Bedrooms: | 3 | | Ceiling: | PLASTER PAINTED | Cooling: | EVAP NO DUCT | | Exterior Wall/Cover: | VINYL | Floor Covering: | CARPET 100% | | Floor Structure: | SLAB ON GRADE | Foundation: | SLAB | | Heating: | FHA ELECTRIC | Interior Finish: | PLASTER | | Plumbing Fixture Cnt: | 1 | Roof Slope: | FLAT | | Roof Structure/Cover: | CJ ALUMINIUM HEAVY |   |   |
|
| | Type | Description | Class CD | Sub Class CD | Year Built | Area |
| | BAS | BASE/MAIN FLOOR | 4 | 0 | 1979 | 1488.0 |
| | DGR | DETACHED GARAGE | 4 | 0 | 1979 | 674.7 |
| | OWP | OPEN WOOD PORCH W/STEPS | 4 | 0 | 1979 | 334.8 |
| | UTY | STORAGE/UTILITY | 4 | 0 | 1979 | 340.0 |
Sketch
Property Image
Land
| 1 | 32 | AC (03.01-09.99) | 5.5000 | 0.00 | 0.00 | 0.00 | 1.00 | $370,000 | $0 |
Roll Value History
| 2026 | N/A | N/A | N/A | N/A | N/A |
| 2025 | $56,659 | $370,000 | $0 | $426,659 | $426,659 |
| 2024 | $60,706 | $350,000 | $0 | $410,706 | $410,706 |
| 2023 | $54,546 | $330,000 | $0 | $384,546 | $384,546 |
| 2022 | $52,578 | $280,000 | $0 | $332,578 | $332,578 |
| 2021 | $48,491 | $230,000 | $0 | $278,491 | $278,491 |
| 2020 | $49,318 | $190,000 | $0 | $239,318 | $239,318 |
| 2019 | $41,488 | $250,000 | $0 | $291,488 | $291,488 |
| 2018 | $43,387 | $210,000 | $0 | $253,387 | $253,387 |
| 2017 | $45,288 | $190,000 | $0 | $235,288 | $235,288 |
| 2016 | $47,187 | $165,000 | $0 | $212,187 | $212,187 |
| 2015 | $49,086 | $150,000 | $0 | $199,086 | $199,086 |
| 2014 | $43,009 | $148,000 | $0 | $191,009 | $191,009 |
| 2013 | $49,110 | $148,500 | $0 | $197,610 | $197,610 |
| 2012 | $50,237 | $148,500 | $0 | $198,737 | $198,737 |
| 2011 | $58,762 | $148,500 | $0 | $207,262 | $207,262 |
| 2010 | $57,643 | $148,500 | $0 | $206,143 | $206,143 |
| 2009 | $59,471 | $242,000 | $0 | $301,471 | $301,471 |
| 2008 | $47,253 | $211,200 | $0 | $258,453 | $258,453 |
| 2007 | $49,082 | $211,200 | $0 | $260,282 | $260,282 |
Deed and Sales History
| 1 | 04/28/2015 | TRUSTEED | Trustee's Deed | WHITE, GEORGIANA S | GEORGIANA WHITE LIVING TRUST | | | $0.00 | 19348 | 4377408 |
| 2 | 02/23/2015 | QCD | Quit Claim Deed | SCHAITEL JTWROS, SEAN | WHITE, GEORGIANA S | | | $0.00 | 18666 | 4374319 |
| 3 | 09/21/2012 | WD | Warranty Deed | RATEKIN, KENT O | SCHAITEL JTWROS, SEAN | | | $250,000.00 | 8970 | 4323873 |
| 4 | 06/05/2006 | WD | Warranty Deed | GREENE, LINDA A | RATEKIN, KENT O | | | $240,000.00 | 62483 | 4172559 |
| 5 | 11/14/1999 | REC | Real Estate Contract | GREENE, MARK J | GREENE, LINDA A | | | $0.00 | 94735 | 99026448 |
| 6 | 01/01/1900 | OTHER | Other - Misc. Documents | Unknown | GREENE, MARK J | | | $0.00 | 0 | 0 |
Payout Agreement
| No payout information available.. |