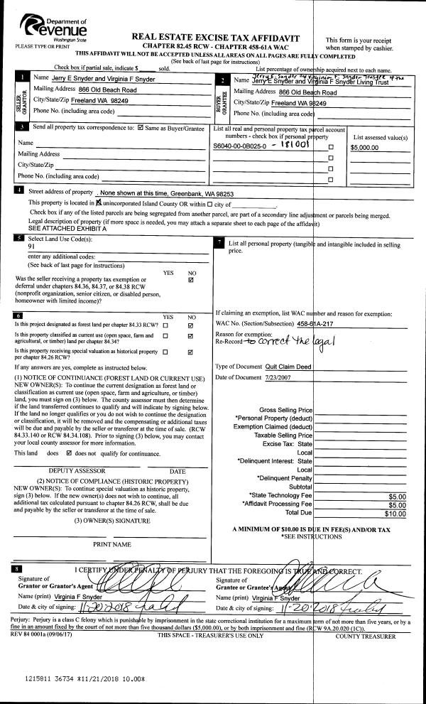
Property
Account |
| Property ID: | 801110 | Abbreviated Legal Description: | LOT 2 SP 149-97.32914.047-4130 V3 SP P247 AF#99010670 |
| Geographic ID: | R32914-062-4170 | Agent Code: | |
| Type: | Real | | |
| Tax Area: | 712 - APPRAISER-S Whid Schl Dist, outside Langley, improved, greater than 1 acre | Land Use Code | 11 |
| Open Space: | N | DFL | N |
| Historic Property: | N | Remodel Property: | N |
| Multi-Family Redevelopment: | N | | |
| Township: | 29 | Section: | 14 |
| Range: | R3 |
Location |
| Address: | 5742 BOB GALBREATH RD CLINTON, WA 98236 | Mapsco: | |
| Neighborhood: | Cycle 4 | Map ID: | 767 |
| Neighborhood CD: | 4 |
Owner |
| Name: | ULLMANN, GORDON S | Owner ID: | 288408 |
| Mailing Address: | TOBEY A NELSON 5742 BOB GALBREATH RD CLINTON, WA 98236 | % Ownership: | 100.0000000000% |
| | | Exemptions: | |
Taxes and Assessment Details
Values
| (+) Improvement Homesite Value: | + | $0 | |
| (+) Improvement Non-Homesite Value: | + | $154,056 | |
| (+) Land Homesite Value: | + | $0 | |
| (+) Land Non-Homesite Value: | + | $370,000 | |
| (+) Curr Use (HS): | + | $0 | $0 |
| (+) Curr Use (NHS): | + | $0 | $0 |
| | | -------------------------- | |
| (=) Market Value: | = | $524,056 | |
| (–) Productivity Loss: | – | $0 | |
| | | -------------------------- | |
| (=) Subtotal: | = | $524,056 | |
| (+) Senior Appraised Value: | + | $0 | |
| (+) Non-Senior Appraised Value: | + | $524,056 | |
| | | -------------------------- | |
| (=) Total Appraised Value: | = | $524,056 | |
| (–) Senior Exemption Loss: | – | $0 | |
| (–) Exemption Loss: | – | $0 | |
| | | -------------------------- | |
| (=) Taxable Value: | = | $524,056 | |
Taxing Jurisdiction
| Owner: | ULLMANN, GORDON S | | |
| % Ownership: | 100.0000000000% | | |
| Total Value: | $524,056 | | |
| Tax Area: | 712 - APPRAISER-S Whid Schl Dist, outside Langley, improved, greater than 1 acre |
| CF | Conservation Futures | 0.0316035091 | $524,056 | $524,056 | $16.56 | | |
| FIRE3 | Fire & Rescue Dist #3 S Whidbey GEN | 1.2004855531 | $524,056 | $524,056 | $629.12 | | |
| HOBOND | Hospital BOND | 0.1910887512 | $524,056 | $524,056 | $100.14 | | |
| HOGEN | Hospital GEN | 0.3902502903 | $524,056 | $524,056 | $204.51 | | |
| CE | County Current Expense | 0.3708482477 | $524,056 | $524,056 | $194.35 | | |
| CR | County Roads | 0.4584763726 | $524,056 | $524,056 | $240.27 | | |
| ISLANDEMS | Hospital GEN (EMS) | 0.5000000000 | $524,056 | $524,056 | $262.03 | | |
| LIB | Library Sno-Isle GEN | 0.3153421757 | $524,056 | $524,056 | $165.26 | | |
| PORTWHID | Port of S Whidbey GEN | 0.1094540357 | $524,056 | $524,056 | $57.36 | | |
| SCH206BOND | School 206 BOND | 0.3161759235 | $524,056 | $524,056 | $165.69 | | |
| SCH206MO | School 206 Enrichment | 0.4547169547 | $524,056 | $524,056 | $238.30 | | |
| ST | State School | 1.3035497053 | $524,056 | $524,056 | $683.13 | | |
| ST2 | State School Part 2 | 0.8169543533 | $524,056 | $524,056 | $428.13 | | |
| SWHIDPRBD | P & R S Whidbey BOND | 0.0152817568 | $524,056 | $524,056 | $8.01 | | |
| SWHIDPRBD2 | P & R S Whidbey BOND2 | 0.0138911264 | $524,056 | $524,056 | $7.28 | | |
| SWHIDPRMT | P & R S Whidbey GEN | 0.2053334452 | $524,056 | $524,056 | $107.61 | | |
| | Total Tax Rate: | 6.6934522006 | | | | | |
| | | | | Taxes w/Current Exemptions: | $3,507.75 | | |
| | | | | Taxes w/o Exemptions: | $3,507.75 | | |
Improvement / Building
| Improvement #1: | MANUFACTURED HOME | State Code: | Y | 1508.0 sqft | Value: | $154,056 |
| Bathrooms: | 0 | Bedrooms: | 0 | | Ceiling: | PLASTER PAINTED | Cooling: | EVAP NO DUCT | | Exterior Wall/Cover: | VINYL | Floor Covering: | CARPET 100% | | Floor Structure: | SLAB ON GRADE | Foundation: | SLAB | | Heating: | FHA ELECTRIC | Interior Finish: | PLASTER | | Plumbing Fixture Cnt: | 1 | Roof Slope: | FLAT | | Roof Structure/Cover: | CJ ALUMINIUM HEAVY |   |   |
|
| | Type | Description | Class CD | Sub Class CD | Year Built | Area |
| | BAS | BASE/MAIN FLOOR | 4 | 0 | 2007 | 1508.0 |
| | DGR | DETACHED GARAGE | 4 | 0 | 2007 | 300.0 |
| | OWP | OPEN WOOD PORCH W/STEPS | 4 | 0 | 2007 | 96.0 |
| | OWP | OPEN WOOD PORCH W/STEPS | 4 | 0 | 2007 | 112.0 |
Sketch
Property Image
Land
| 1 | 32 | AC (03.01-09.99) | 5.3800 | 0.00 | 0.00 | 0.00 | 1.00 | $370,000 | $0 |
Roll Value History
| 2026 | N/A | N/A | N/A | N/A | N/A |
| 2025 | $154,056 | $370,000 | $0 | $524,056 | $524,056 |
| 2024 | $157,769 | $350,000 | $0 | $507,769 | $507,769 |
| 2023 | $138,808 | $330,000 | $0 | $468,808 | $468,808 |
| 2022 | $127,151 | $280,000 | $0 | $407,151 | $407,151 |
| 2021 | $113,110 | $230,000 | $0 | $343,110 | $343,110 |
| 2020 | $85,895 | $190,000 | $0 | $275,895 | $275,895 |
| 2019 | $70,845 | $250,000 | $0 | $320,845 | $320,845 |
| 2018 | $71,584 | $210,000 | $0 | $281,584 | $281,584 |
| 2017 | $72,324 | $190,000 | $0 | $262,324 | $262,324 |
| 2016 | $73,803 | $165,000 | $0 | $238,803 | $238,803 |
| 2015 | $74,541 | $150,000 | $0 | $224,541 | $224,541 |
| 2014 | $75,373 | $148,000 | $0 | $223,373 | $223,373 |
| 2013 | $81,868 | $145,260 | $0 | $227,128 | $227,128 |
| 2012 | $82,595 | $145,260 | $0 | $227,855 | $227,855 |
| 2011 | $84,050 | $145,260 | $0 | $229,310 | $229,310 |
| 2010 | $88,945 | $145,260 | $0 | $234,205 | $234,205 |
| 2009 | $92,992 | $236,720 | $0 | $329,712 | $329,712 |
| 2008 | $91,955 | $112,389 | $0 | $204,344 | $204,344 |
| 2007 | $0 | $112,980 | $0 | $112,980 | $112,980 |
Deed and Sales History
| 1 | 12/23/2018 | QCD | Quit Claim Deed | ULLMAN, GORDON S | ULLMANN, GORDON S | | | $0.00 | 37169 | 4457344 |
| 2 | 01/12/2007 | WD | Warranty Deed | GREENE, MARK J | ULLMAN, GORDON S | | | $225,975.00 | 70120 | 4191529 |
| 3 | 11/14/1999 | ESTSEPPROP | Establish Separate Property | GREENE, MARK J | GREENE, MARK J | | | $0.00 | 94736 | 99026449 |
| 4 | 01/01/1900 | OTHER | Other - Misc. Documents | Unknown | GREENE, MARK J | | | $0.00 | 0 | 0 |
Payout Agreement
| No payout information available.. |