Property
Account |
| Property ID: | 801174 | Abbreviated Legal Description: | PT OF FOLL DESC LY WLY OF COUNTY RD R/W DESC 35D120: 79 - N 40AC OF GL4 LY E OF BAILEYS BAY RD EX N600' EX: BG S600' FR NECR GL4 S165' S87*W1129' TO CLN CO RD N24*E180.2' N87*E1058.4' TPB EX S 5AC TGW UNDIV 1/17TH INT IN TRACTS A, B, C, D & E POSSESSION P |
| Geographic ID: | R32814-463-3420 | Agent Code: | |
| Type: | Real | | |
| Tax Area: | 712 - APPRAISER-S Whid Schl Dist, outside Langley, improved, greater than 1 acre | Land Use Code | 11 |
| Open Space: | N | DFL | N |
| Historic Property: | N | Remodel Property: | N |
| Multi-Family Redevelopment: | N | | |
| Township: | 28 | Section: | 14 |
| Range: | R3 |
Location |
| Address: | 4255 VICKERS LN CLINTON, WA 98236 | Mapsco: | |
| Neighborhood: | Cycle 4 | Map ID: | 711 |
| Neighborhood CD: | 4 |
Owner |
| Name: | OLSON, JOHN E | Owner ID: | 193038 |
| Mailing Address: | KAREN M OLSON 4255 VICKERS LN CLINTON, WA 98236-8918 | % Ownership: | 100.0000000000% |
| | | Exemptions: | |
Taxes and Assessment Details
Values
| (+) Improvement Homesite Value: | + | $0 | |
| (+) Improvement Non-Homesite Value: | + | $899,773 | |
| (+) Land Homesite Value: | + | $0 | |
| (+) Land Non-Homesite Value: | + | $360,000 | |
| (+) Curr Use (HS): | + | $0 | $0 |
| (+) Curr Use (NHS): | + | $0 | $0 |
| | | -------------------------- | |
| (=) Market Value: | = | $1,259,773 | |
| (–) Productivity Loss: | – | $0 | |
| | | -------------------------- | |
| (=) Subtotal: | = | $1,259,773 | |
| (+) Senior Appraised Value: | + | $0 | |
| (+) Non-Senior Appraised Value: | + | $1,259,773 | |
| | | -------------------------- | |
| (=) Total Appraised Value: | = | $1,259,773 | |
| (–) Senior Exemption Loss: | – | $0 | |
| (–) Exemption Loss: | – | $0 | |
| | | -------------------------- | |
| (=) Taxable Value: | = | $1,259,773 | |
Taxing Jurisdiction
| Owner: | OLSON, JOHN E | | |
| % Ownership: | 100.0000000000% | | |
| Total Value: | $1,259,773 | | |
| Tax Area: | 712 - APPRAISER-S Whid Schl Dist, outside Langley, improved, greater than 1 acre |
| CF | Conservation Futures | 0.0316035091 | $1,259,773 | $1,259,773 | $39.81 | | |
| FIRE3 | Fire & Rescue Dist #3 S Whidbey GEN | 1.2004855531 | $1,259,773 | $1,259,773 | $1,512.34 | | |
| HOBOND | Hospital BOND | 0.1910887512 | $1,259,773 | $1,259,773 | $240.73 | | |
| HOGEN | Hospital GEN | 0.3902502903 | $1,259,773 | $1,259,773 | $491.63 | | |
| CE | County Current Expense | 0.3708482477 | $1,259,773 | $1,259,773 | $467.18 | | |
| CR | County Roads | 0.4584763726 | $1,259,773 | $1,259,773 | $577.58 | | |
| ISLANDEMS | Hospital GEN (EMS) | 0.5000000000 | $1,259,773 | $1,259,773 | $629.89 | | |
| LIB | Library Sno-Isle GEN | 0.3153421757 | $1,259,773 | $1,259,773 | $397.26 | | |
| PORTWHID | Port of S Whidbey GEN | 0.1094540357 | $1,259,773 | $1,259,773 | $137.89 | | |
| SCH206BOND | School 206 BOND | 0.3161759235 | $1,259,773 | $1,259,773 | $398.31 | | |
| SCH206MO | School 206 Enrichment | 0.4547169547 | $1,259,773 | $1,259,773 | $572.84 | | |
| ST | State School | 1.3035497053 | $1,259,773 | $1,259,773 | $1,642.18 | | |
| ST2 | State School Part 2 | 0.8169543533 | $1,259,773 | $1,259,773 | $1,029.18 | | |
| SWHIDPRBD | P & R S Whidbey BOND | 0.0152817568 | $1,259,773 | $1,259,773 | $19.25 | | |
| SWHIDPRBD2 | P & R S Whidbey BOND2 | 0.0138911264 | $1,259,773 | $1,259,773 | $17.50 | | |
| SWHIDPRMT | P & R S Whidbey GEN | 0.2053334452 | $1,259,773 | $1,259,773 | $258.67 | | |
| | Total Tax Rate: | 6.6934522006 | | | | | |
| | | | | Taxes w/Current Exemptions: | $8,432.24 | | |
| | | | | Taxes w/o Exemptions: | $8,432.24 | | |
Improvement / Building
| Improvement #1: | RESIDENTIAL | State Code: | Y | 5181.5 sqft | Value: | $899,773 |
| Bathrooms: | 2.5 | Bedrooms: | 4 | | Ceiling: | DRYWALL PAINTED | Exterior Wall/Cover: | WOOD SIDING | | Floor Covering: | HARDWOOD 100% | Floor Structure: | WOOD W/SUBFLOOR | | Foundation: | CONCRETE | Heating: | FHA GAS | | Interior Finish: | DRYWALL PAINT | Plumbing Fixture Cnt: | 14 | | Roof Slope: | 12" IN 12" | Roof Structure/Cover: | CJ ASPHALT |
|
| | Type | Description | Class CD | Sub Class CD | Year Built | Area |
| | BAS | BASE/MAIN FLOOR | 4 | 0 | 2005 | 2780.6 |
| | OP4 | OPEN PORCH W/CEILING-ROOF | 4 | 0 | 2005 | 90.0 |
| | AGR | ATTACHED GARAGE | 4 | 0 | 2005 | 939.7 |
| | DWN | DOWNSTAIRS LIVING AREA | 4 | 0 | 2005 | 2400.9 |
| | UTY | STORAGE/UTILITY | 4 | 0 | 2005 | 1296.0 |
| | OWC | OPEN WOOD PORCH W/STEPS/ROOF/C | 4 | 0 | 2005 | 469.6 |
Sketch
| No sketches available for this property. |
Property Image
Land
| 1 | 32 | AC (03.01-09.99) | 3.4700 | 151153.20 | 0.00 | 0.00 | 1.00 | $360,000 | $0 |
Roll Value History
| 2026 | N/A | N/A | N/A | N/A | N/A |
| 2025 | $899,773 | $360,000 | $0 | $1,259,773 | $1,259,773 |
| 2024 | $909,951 | $340,000 | $0 | $1,249,951 | $1,249,951 |
| 2023 | $917,599 | $330,000 | $0 | $1,247,599 | $1,247,599 |
| 2022 | $838,291 | $280,000 | $0 | $1,118,291 | $1,118,291 |
| 2021 | $734,571 | $230,000 | $0 | $964,571 | $964,571 |
| 2020 | $657,679 | $190,000 | $0 | $847,679 | $847,679 |
| 2019 | $588,035 | $220,000 | $0 | $808,035 | $808,035 |
| 2018 | $589,464 | $210,000 | $0 | $799,464 | $799,464 |
| 2017 | $592,188 | $165,000 | $0 | $757,188 | $757,188 |
| 2016 | $597,898 | $165,000 | $0 | $762,898 | $762,898 |
| 2015 | $603,610 | $150,000 | $0 | $753,610 | $753,610 |
| 2014 | $601,666 | $150,000 | $0 | $751,666 | $751,666 |
| 2013 | $607,592 | $113,560 | $0 | $721,152 | $721,152 |
| 2012 | $613,520 | $113,560 | $0 | $727,080 | $727,080 |
| 2011 | $619,446 | $113,560 | $0 | $733,006 | $733,006 |
| 2010 | $666,051 | $113,560 | $0 | $779,611 | $779,611 |
| 2009 | $686,881 | $146,960 | $0 | $833,841 | $833,841 |
| 2008 | $695,339 | $167,000 | $0 | $862,339 | $862,339 |
| 2007 | $703,879 | $140,280 | $0 | $844,159 | $844,159 |
Deed and Sales History
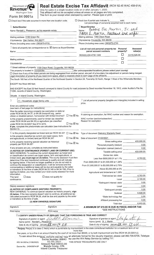
| 1 | 01/22/2021 | EZ | Easement | OLSON, JOHN E | PUGET SOUND ENERGY | | | $1,573.00 | 46885 | 4510448 |
| 2 | 07/13/2004 | WD | Warranty Deed | SWANSON, TERRY | OLSON, JOHN E | | | $140,000.00 | 43166 | 4106908 |
| 3 | 07/08/1999 | SEG | DNU - Segregation | Unknown | SWANSON, TERRY | | | $0.00 | 68357 | 0 |
| 4 | 05/04/1999 | QCD | Quit Claim Deed | SWANSON, TERRY | SWANSON, TERRY | | | $0.00 | 176 | 20000972 |
Payout Agreement
| No payout information available.. |