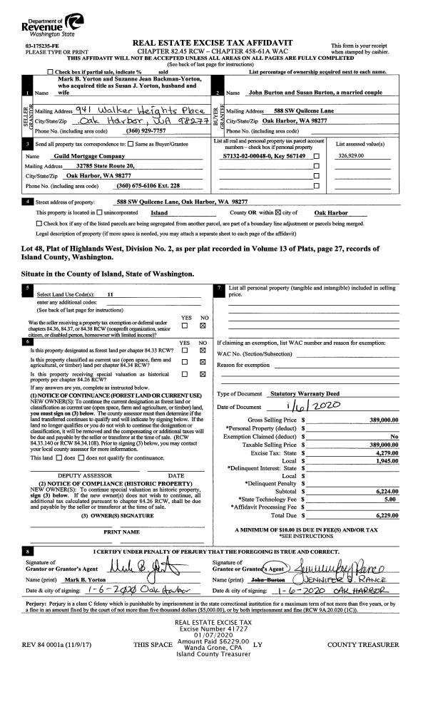
Property
Account |
| Property ID: | 801182 | Abbreviated Legal Description: | LOT 1 SP 356-97.13113.212-1120 V3 SP P254 AF#99014875 |
| Geographic ID: | R13113-188-1100 | Agent Code: | |
| Type: | Real | | |
| Tax Area: | 312 - APPRAISER-Cpvl Schl Dist, outside Cpvl, improved, greater than 1 acre | Land Use Code | 11 |
| Open Space: | N | DFL | N |
| Historic Property: | N | Remodel Property: | N |
| Multi-Family Redevelopment: | N | | |
| Township: | 31 | Section: | 13 |
| Range: | R1 |
Location |
| Address: | 15203 SR20 COUPEVILLE, WA 98239 | Mapsco: | |
| Neighborhood: | Cycle 2 | Map ID: | 58 |
| Neighborhood CD: | 2 |
Owner |
| Name: | SWANSON, STEPHEN L | Owner ID: | 181535 |
| Mailing Address: | SANDRA J SWANSON 15203 STATE ROUTE 20 COUPEVILLE, WA 98239-4506 | % Ownership: | 100.0000000000% |
| | | Exemptions: | |
Taxes and Assessment Details
Values
| (+) Improvement Homesite Value: | + | $0 | |
| (+) Improvement Non-Homesite Value: | + | $787,712 | |
| (+) Land Homesite Value: | + | $0 | |
| (+) Land Non-Homesite Value: | + | $375,129 | |
| (+) Curr Use (HS): | + | $0 | $0 |
| (+) Curr Use (NHS): | + | $0 | $0 |
| | | -------------------------- | |
| (=) Market Value: | = | $1,162,841 | |
| (–) Productivity Loss: | – | $0 | |
| | | -------------------------- | |
| (=) Subtotal: | = | $1,162,841 | |
| (+) Senior Appraised Value: | + | $0 | |
| (+) Non-Senior Appraised Value: | + | $1,162,841 | |
| | | -------------------------- | |
| (=) Total Appraised Value: | = | $1,162,841 | |
| (–) Senior Exemption Loss: | – | $0 | |
| (–) Exemption Loss: | – | $0 | |
| | | -------------------------- | |
| (=) Taxable Value: | = | $1,162,841 | |
Taxing Jurisdiction
| Owner: | SWANSON, STEPHEN L | | |
| % Ownership: | 100.0000000000% | | |
| Total Value: | $1,162,841 | | |
| Tax Area: | 312 - APPRAISER-Cpvl Schl Dist, outside Cpvl, improved, greater than 1 acre |
| CF | Conservation Futures | 0.0316035091 | $1,162,841 | $1,162,841 | $36.75 | | |
| CEM2 | Cemetery #2 | 0.0095056933 | $1,162,841 | $1,162,841 | $11.05 | | |
| FIRE5 | Fire & Rescue Dist #5 C Whidbey GEN | 1.2008080668 | $1,162,841 | $1,162,841 | $1,396.35 | | |
| FIRE5BOND | Fire & Rescue Dist #5 C Whidbey BOND | 0.1400090713 | $1,162,841 | $1,162,841 | $162.81 | | |
| HOBOND | Hospital BOND | 0.1910887512 | $1,162,841 | $1,162,841 | $222.21 | | |
| HOGEN | Hospital GEN | 0.3902502903 | $1,162,841 | $1,162,841 | $453.80 | | |
| CE | County Current Expense | 0.3708482477 | $1,162,841 | $1,162,841 | $431.24 | | |
| CR | County Roads | 0.4584763726 | $1,162,841 | $1,162,841 | $533.14 | | |
| ISLANDEMS | Hospital GEN (EMS) | 0.5000000000 | $1,162,841 | $1,162,841 | $581.42 | | |
| LIB | Library Sno-Isle GEN | 0.3153421757 | $1,162,841 | $1,162,841 | $366.69 | | |
| LIBCAP | Library Sno-Isle BOND (Cap Fac Imp Area) | 0.0543427938 | $1,162,841 | $1,162,841 | $63.19 | | |
| POCOUP | Port of Coupeville GEN | 0.1093371703 | $1,162,841 | $1,162,841 | $127.14 | | |
| POCOUPIDD | Port of Coupeville IDD | 0.3409740022 | $1,162,841 | $1,162,841 | $396.50 | | |
| COUPSDTECH | School 204 CP (TECH) | 0.7545480007 | $1,162,841 | $1,162,841 | $877.42 | | |
| SCH204MO | School 204 Enrichment | 0.6716186034 | $1,162,841 | $1,162,841 | $780.99 | | |
| ST | State School | 1.3035497053 | $1,162,841 | $1,162,841 | $1,515.82 | | |
| ST2 | State School Part 2 | 0.8169543533 | $1,162,841 | $1,162,841 | $949.99 | | |
| | Total Tax Rate: | 7.6592568070 | | | | | |
| | | | | Taxes w/Current Exemptions: | $8,906.51 | | |
| | | | | Taxes w/o Exemptions: | $8,906.51 | | |
Improvement / Building
| Improvement #1: | RESIDENTIAL | State Code: | Y | 3180.9 sqft | Value: | $655,856 |
| Bathrooms: | 3.5 | Bedrooms: | 3 | | Ceiling: | DRYWALL PAINTED | Exterior Wall/Cover: | WOOD SIDING | | Floor Covering: | CERAMIC TILE/CPT 40-60 | Floor Structure: | WOOD W/SUBFLOOR | | Foundation: | CONCRETE | Heating: | RADIANT FLOOR | | Interior Finish: | DRYWALL PAINT | Plumbing Fixture Cnt: | 16 | | Roof Slope: | 12" IN 12" | Roof Structure/Cover: | CJ ASPHALT |
|
| | Type | Description | Class CD | Sub Class CD | Year Built | Area |
| | BAS | BASE/MAIN FLOOR | 5 | 0 | 2001 | 1849.5 |
| | DWN | DOWNSTAIRS LIVING AREA | 5 | 0 | 2001 | 477.4 |
| | OP4 | OPEN PORCH W/CEILING-ROOF | 5 | 0 | 2001 | 57.0 |
| | OP4 | OPEN PORCH W/CEILING-ROOF | 5 | 0 | 2001 | 611.4 |
| | AGR | ATTACHED GARAGE | 5 | 0 | 2001 | 849.0 |
| | UPH | HALF STORY | 5 | 0 | 2001 | 854.0 |
| Improvement #2: | RESIDENTIAL | State Code: | Y | 1088.0 sqft | Value: | $131,856 |
| Bathrooms: | 1 | Bedrooms: | 1 | | Ceiling: | DRYWALL PAINTED | Exterior Wall/Cover: | WOOD SIDING | | Floor Covering: | CARPET/VINYL 80-20 | Floor Structure: | WOOD W/SUBFLOOR | | Foundation: | WOOD BLOCKS | Heating: | WALL HEAT ELECTRIC | | Interior Finish: | DRYWALL PAINT | Plumbing Fixture Cnt: | 5 | | Roof Slope: | 12" IN 12" | Roof Structure/Cover: | CJ ASPHALT |
|
| | Type | Description | Class CD | Sub Class CD | Year Built | Area |
| | BAS | BASE/MAIN FLOOR | 3 | 0 | 1945 | 896.0 |
| | UPH | HALF STORY | 3 | 0 | 1945 | 192.0 |
| | OWC | OPEN WOOD PORCH W/STEPS/ROOF/C | 3 | 0 | 1945 | 120.0 |
Sketch
Property Image
Land
| 1 | HS | HOMESITE | 1.0000 | 43560.00 | 0.00 | 0.00 | 1.00 | $340,000 | $0 |
| 2 | 91 | UNDEVELOPED LAND-METES AND BOUNDS | 4.6300 | 201682.80 | 0.00 | 0.00 | 1.00 | $35,129 | $0 |
Roll Value History
| 2026 | N/A | N/A | N/A | N/A | N/A |
| 2025 | $787,712 | $375,129 | $0 | $1,162,841 | $1,162,841 |
| 2024 | $770,591 | $360,000 | $0 | $1,130,591 | $1,130,591 |
| 2023 | $780,663 | $350,000 | $0 | $1,130,663 | $1,130,663 |
| 2022 | $716,020 | $310,000 | $0 | $1,026,020 | $1,026,020 |
| 2021 | $630,534 | $260,000 | $0 | $890,534 | $890,534 |
| 2020 | $614,936 | $240,000 | $0 | $854,936 | $854,936 |
| 2019 | $503,285 | $175,000 | $0 | $678,285 | $678,285 |
| 2018 | $446,753 | $175,000 | $0 | $621,753 | $621,753 |
| 2017 | $449,360 | $250,000 | $0 | $699,360 | $699,360 |
| 2016 | $455,070 | $250,000 | $0 | $705,070 | $705,070 |
| 2015 | $460,784 | $253,350 | $0 | $714,134 | $714,134 |
| 2014 | $466,495 | $253,350 | $0 | $719,845 | $719,845 |
| 2013 | $472,209 | $253,350 | $0 | $725,559 | $725,559 |
| 2012 | $497,979 | $253,350 | $0 | $751,329 | $751,329 |
| 2011 | $503,702 | $281,500 | $0 | $785,202 | $785,202 |
| 2010 | $514,303 | $281,500 | $0 | $795,803 | $795,803 |
| 2009 | $535,782 | $309,650 | $0 | $845,432 | $845,432 |
| 2008 | $538,338 | $309,650 | $0 | $847,988 | $847,988 |
| 2007 | $545,363 | $247,720 | $0 | $793,083 | $793,083 |
Deed and Sales History
| 1 | 05/17/2019 | EZ | Easement | SWANSON, STEPHEN L | TOWN OF COUPEVILLE | | | $100.00 | 41140 | 4475783 |
| 2 | 08/23/1999 | WD | Warranty Deed | ARCHIBALD, BRUCE | SWANSON, STEPHEN L | | | $210,000.00 | 93603 | 99020436 |
| 3 | 01/01/1900 | OTHER | Other - Misc. Documents | Unknown | ARCHIBALD, BRUCE | | | $0.00 | 0 | 0 |
Payout Agreement
| No payout information available.. |