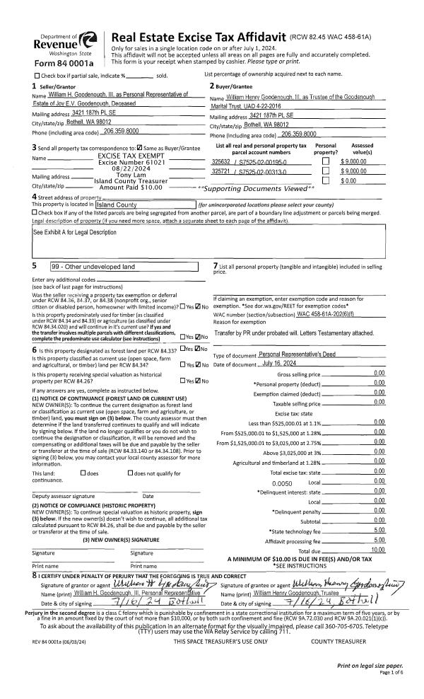
Property
Account |
| Property ID: | 801184 | Abbreviated Legal Description: | SWANTOWN RIDGE #2 LOT 1 OH-SP 99-2.8287.02.0000C-0 V3 SP P253 AF#99014266 |
| Geographic ID: | S8287-02-0000C-1 | Agent Code: | |
| Type: | Real | | |
| Tax Area: | 100 - APPRAISER-OH Schl Dist, in OH | Land Use Code | 11 |
| Open Space: | N | DFL | N |
| Historic Property: | N | Remodel Property: | N |
| Multi-Family Redevelopment: | N | | |
| Township: | | Section: | |
| Range: | |
Location |
| Address: | 1780 SW SUNNYSIDE AVE OAK HARBOR, WA 98277 | Mapsco: | |
| Neighborhood: | Cycle 1 | Map ID: | 97 |
| Neighborhood CD: | 1 |
Owner |
| Name: | FAGG, MICHELLE M | Owner ID: | 294911 |
| Mailing Address: | MARK T FAGG 1780 SW SUNNYSIDE AVE OAK HARBOR, WA 98277 | % Ownership: | 100.0000000000% |
| | | Exemptions: | |
Taxes and Assessment Details
Values
| (+) Improvement Homesite Value: | + | $0 | |
| (+) Improvement Non-Homesite Value: | + | $308,281 | |
| (+) Land Homesite Value: | + | $0 | |
| (+) Land Non-Homesite Value: | + | $200,000 | |
| (+) Curr Use (HS): | + | $0 | $0 |
| (+) Curr Use (NHS): | + | $0 | $0 |
| | | -------------------------- | |
| (=) Market Value: | = | $508,281 | |
| (–) Productivity Loss: | – | $0 | |
| | | -------------------------- | |
| (=) Subtotal: | = | $508,281 | |
| (+) Senior Appraised Value: | + | $0 | |
| (+) Non-Senior Appraised Value: | + | $508,281 | |
| | | -------------------------- | |
| (=) Total Appraised Value: | = | $508,281 | |
| (–) Senior Exemption Loss: | – | $0 | |
| (–) Exemption Loss: | – | $0 | |
| | | -------------------------- | |
| (=) Taxable Value: | = | $508,281 | |
Taxing Jurisdiction
| Owner: | FAGG, MICHELLE M | | |
| % Ownership: | 100.0000000000% | | |
| Total Value: | $508,281 | | |
| Tax Area: | 100 - APPRAISER-OH Schl Dist, in OH |
| CF | Conservation Futures | 0.0316035091 | $508,281 | $508,281 | $16.06 | | |
| CEM1 | Cemetery #1 | 0.0040320932 | $508,281 | $508,281 | $2.05 | | |
| COH | City of Oak Harbor | 2.3001546061 | $508,281 | $508,281 | $1,169.12 | | |
| OAKBOND | City of Oak Harbor BOND | 0.1926904192 | $508,281 | $508,281 | $97.94 | | |
| HOBOND | Hospital BOND | 0.1910887512 | $508,281 | $508,281 | $97.13 | | |
| HOGEN | Hospital GEN | 0.3902502903 | $508,281 | $508,281 | $198.36 | | |
| CE | County Current Expense | 0.3708482477 | $508,281 | $508,281 | $188.50 | | |
| ISLANDEMS | Hospital GEN (EMS) | 0.5000000000 | $508,281 | $508,281 | $254.14 | | |
| LIB | Library Sno-Isle GEN | 0.3153421757 | $508,281 | $508,281 | $160.28 | | |
| NWHIDPRMT | P & R N Whidbey GEN | 0.2004466701 | $508,281 | $508,281 | $101.88 | | |
| SCH201MO | School 201 Enrichment | 1.8559231640 | $508,281 | $508,281 | $943.33 | | |
| ST | State School | 1.3035497053 | $508,281 | $508,281 | $662.57 | | |
| ST2 | State School Part 2 | 0.8169543533 | $508,281 | $508,281 | $415.24 | | |
| | Total Tax Rate: | 8.4728839852 | | | | | |
| | | | | Taxes w/Current Exemptions: | $4,306.60 | | |
| | | | | Taxes w/o Exemptions: | $4,306.60 | | |
Improvement / Building
| Improvement #1: | RESIDENTIAL | State Code: | Y | 1866.0 sqft | Value: | $308,281 |
| Bathrooms: | 2.5 | Bedrooms: | 4 | | Ceiling: | DRYWALL PAINTED | Exterior Wall/Cover: | CEMENT FIBER | | Floor Covering: | CARPET/VINYL 80-20 | Floor Structure: | WOOD W/SUBFLOOR | | Foundation: | CONCRETE | Heating: | FHA GAS | | Interior Finish: | DRYWALL PAINT | Plumbing Fixture Cnt: | 11 | | Roof Slope: | 8" IN 12" | Roof Structure/Cover: | CJ ASPHALT |
|
| | Type | Description | Class CD | Sub Class CD | Year Built | Area |
| | BAS | BASE/MAIN FLOOR | 3 | 0 | 2000 | 1190.0 |
| | AGR | ATTACHED GARAGE | 3 | 0 | 2000 | 498.0 |
| | UPS | UPPER STORY | 3 | 0 | 2000 | 676.0 |
| | OWC | OPEN WOOD PORCH W/STEPS/ROOF/C | 3 | 0 | 2000 | 156.0 |
Sketch
Property Image
Land
| 1 | 13 | SQ (06001-08000) | 0.0000 | 0.00 | 0.00 | 0.00 | 1.00 | $200,000 | $0 |
Roll Value History
| 2026 | N/A | N/A | N/A | N/A | N/A |
| 2025 | $308,281 | $200,000 | $0 | $508,281 | $508,281 |
| 2024 | $311,983 | $190,000 | $0 | $501,983 | $501,983 |
| 2023 | $300,873 | $190,000 | $0 | $490,873 | $490,873 |
| 2022 | $275,800 | $190,000 | $0 | $465,800 | $465,800 |
| 2021 | $242,726 | $125,000 | $0 | $367,726 | $367,726 |
| 2020 | $236,554 | $120,000 | $0 | $356,554 | $356,554 |
| 2019 | $176,587 | $140,000 | $0 | $316,587 | $316,587 |
| 2018 | $177,106 | $130,000 | $0 | $307,106 | $307,106 |
| 2017 | $153,584 | $120,000 | $0 | $273,584 | $273,584 |
| 2016 | $155,458 | $90,000 | $0 | $245,458 | $245,458 |
| 2015 | $157,330 | $65,000 | $0 | $222,330 | $222,330 |
| 2014 | $159,204 | $55,000 | $0 | $214,204 | $214,204 |
| 2013 | $161,077 | $55,000 | $0 | $216,077 | $216,077 |
| 2012 | $162,949 | $50,000 | $0 | $212,949 | $212,949 |
| 2011 | $191,462 | $50,000 | $0 | $241,462 | $241,462 |
| 2010 | $200,624 | $50,000 | $0 | $250,624 | $250,624 |
| 2009 | $209,180 | $75,000 | $0 | $284,180 | $284,180 |
| 2008 | $189,503 | $90,000 | $0 | $279,503 | $279,503 |
| 2007 | $189,884 | $90,000 | $0 | $279,884 | $279,884 |
Deed and Sales History
| 1 | 06/22/2020 | QCD | Quit Claim Deed | KOORN, MICHELLE | FAGG, MICHELLE M | | | $0.00 | 43527 | 4489729 |
| 2 | 06/05/2008 | WD | Warranty Deed | COOK, MICHELLE J | KOORN, MICHELLE | | | $305,000.00 | 81497 | 4230480 |
| 3 | 08/28/2006 | DECREE | Divorce Decree/Legal Separation | COOK, DARIN D | COOK, MICHELLE J | | | $0.00 | 63606 | 4179506 |
| 4 | 04/20/2005 | ESTSEPPROP | Establish Separate Property | COOK, DARIN D | COOK, DARIN D | | | $0.00 | 51776 | 4132498 |
| 5 | 04/20/2005 | WD | Warranty Deed | MARSHALL, TOMMY L | COOK, DARIN D | | | $243,000.00 | 51775 | 4132497 |
| 6 | 05/27/2004 | WD | Warranty Deed | WILLIAMS, BRUCE G | MARSHALL, TOMMY L | | | $215,000.00 | 42280 | 4101902 |
| 7 | 05/26/2004 | ESTSEPPROP | Establish Separate Property | MARSHALL, TOMMY L | MARSHALL, TOMMY L | | | $0.00 | 42279 | 4101903 |
| 8 | 02/25/2000 | WD | Warranty Deed | HOMESTEAD NW DEV CO, | WILLIAMS, BRUCE G | | | $168,500.00 | 732 | 20003729 |
| 9 | 01/01/1900 | OTHER | Other - Misc. Documents | Unknown | HOMESTEAD NW DEV CO, | | | $0.00 | 0 | 0 |
Payout Agreement
| No payout information available.. |