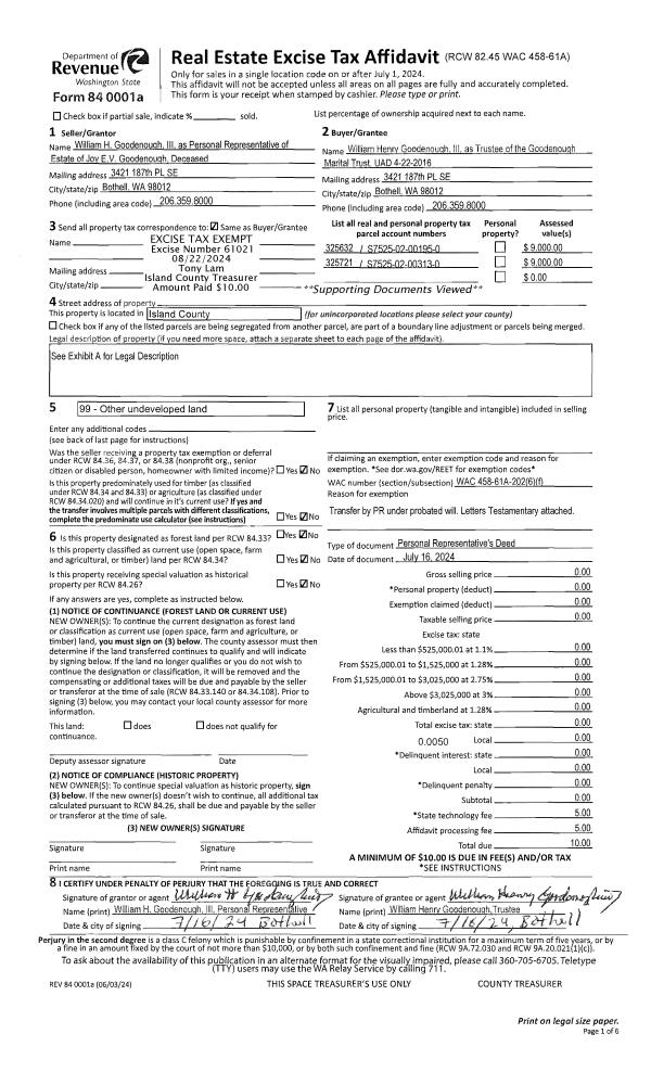
Property
Account |
| Property ID: | 801185 | Abbreviated Legal Description: | SWANTOWN RIDGE #2 LOT 2 OH-SP 99-2.8287.02.0000C-0 V3 SP P253 AF#99014266 |
| Geographic ID: | S8287-02-0000C-2 | Agent Code: | |
| Type: | Real | | |
| Tax Area: | 100 - APPRAISER-OH Schl Dist, in OH | Land Use Code | 11 |
| Open Space: | N | DFL | N |
| Historic Property: | N | Remodel Property: | N |
| Multi-Family Redevelopment: | N | | |
| Township: | | Section: | |
| Range: | |
Location |
| Address: | 1760 SW SUNNYSIDE AVE OAK HARBOR, WA 98277 | Mapsco: | |
| Neighborhood: | Cycle 1 | Map ID: | 97 |
| Neighborhood CD: | 1 |
Owner |
| Name: | JOHNSON, PETER ORVILLE | Owner ID: | 297573 |
| Mailing Address: | HEIDI JOHNSON 1760 SW SUNNYSIDE AVE OAK HARBOR, WA 98277 | % Ownership: | 100.0000000000% |
| | | Exemptions: | |
Taxes and Assessment Details
Values
| (+) Improvement Homesite Value: | + | $0 | |
| (+) Improvement Non-Homesite Value: | + | $335,869 | |
| (+) Land Homesite Value: | + | $0 | |
| (+) Land Non-Homesite Value: | + | $200,000 | |
| (+) Curr Use (HS): | + | $0 | $0 |
| (+) Curr Use (NHS): | + | $0 | $0 |
| | | -------------------------- | |
| (=) Market Value: | = | $535,869 | |
| (–) Productivity Loss: | – | $0 | |
| | | -------------------------- | |
| (=) Subtotal: | = | $535,869 | |
| (+) Senior Appraised Value: | + | $0 | |
| (+) Non-Senior Appraised Value: | + | $535,869 | |
| | | -------------------------- | |
| (=) Total Appraised Value: | = | $535,869 | |
| (–) Senior Exemption Loss: | – | $0 | |
| (–) Exemption Loss: | – | $0 | |
| | | -------------------------- | |
| (=) Taxable Value: | = | $535,869 | |
Taxing Jurisdiction
| Owner: | JOHNSON, PETER ORVILLE | | |
| % Ownership: | 100.0000000000% | | |
| Total Value: | $535,869 | | |
| Tax Area: | 100 - APPRAISER-OH Schl Dist, in OH |
| CF | Conservation Futures | 0.0316035091 | $535,869 | $535,869 | $16.94 | | |
| CEM1 | Cemetery #1 | 0.0040320932 | $535,869 | $535,869 | $2.16 | | |
| COH | City of Oak Harbor | 2.3001546061 | $535,869 | $535,869 | $1,232.58 | | |
| OAKBOND | City of Oak Harbor BOND | 0.1926904192 | $535,869 | $535,869 | $103.26 | | |
| HOBOND | Hospital BOND | 0.1910887512 | $535,869 | $535,869 | $102.40 | | |
| HOGEN | Hospital GEN | 0.3902502903 | $535,869 | $535,869 | $209.12 | | |
| CE | County Current Expense | 0.3708482477 | $535,869 | $535,869 | $198.73 | | |
| ISLANDEMS | Hospital GEN (EMS) | 0.5000000000 | $535,869 | $535,869 | $267.93 | | |
| LIB | Library Sno-Isle GEN | 0.3153421757 | $535,869 | $535,869 | $168.98 | | |
| NWHIDPRMT | P & R N Whidbey GEN | 0.2004466701 | $535,869 | $535,869 | $107.41 | | |
| SCH201MO | School 201 Enrichment | 1.8559231640 | $535,869 | $535,869 | $994.53 | | |
| ST | State School | 1.3035497053 | $535,869 | $535,869 | $698.53 | | |
| ST2 | State School Part 2 | 0.8169543533 | $535,869 | $535,869 | $437.78 | | |
| | Total Tax Rate: | 8.4728839852 | | | | | |
| | | | | Taxes w/Current Exemptions: | $4,540.35 | | |
| | | | | Taxes w/o Exemptions: | $4,540.35 | | |
Improvement / Building
| Improvement #1: | RESIDENTIAL | State Code: | Y | 2369.6 sqft | Value: | $335,869 |
| Bathrooms: | 2.5 | Bedrooms: | 5 | | Ceiling: | DRYWALL PAINTED | Exterior Wall/Cover: | CEMENT FIBER | | Floor Covering: | CARPET/VINYL 80-20 | Floor Structure: | WOOD W/SUBFLOOR | | Foundation: | CONCRETE | Heating: | FHA GAS | | Interior Finish: | DRYWALL PAINT | Plumbing Fixture Cnt: | 12 | | Roof Slope: | 6" IN 12" | Roof Structure/Cover: | CJ ASPHALT |
|
| | Type | Description | Class CD | Sub Class CD | Year Built | Area |
| | BAS | BASE/MAIN FLOOR | 3 | 0 | 2001 | 1216.0 |
| | AGR | ATTACHED GARAGE | 3 | 0 | 2001 | 400.0 |
| | UPS | UPPER STORY | 3 | 0 | 2001 | 1153.6 |
| | OWC | OPEN WOOD PORCH W/STEPS/ROOF/C | 3 | 0 | 2001 | 100.0 |
Sketch
Property Image
Land
| 1 | 13 | SQ (06001-08000) | 0.0000 | 0.00 | 0.00 | 0.00 | 1.00 | $200,000 | $0 |
Roll Value History
| 2026 | N/A | N/A | N/A | N/A | N/A |
| 2025 | $335,869 | $200,000 | $0 | $535,869 | $535,869 |
| 2024 | $339,953 | $190,000 | $0 | $529,953 | $529,953 |
| 2023 | $331,785 | $190,000 | $0 | $521,785 | $521,785 |
| 2022 | $304,137 | $190,000 | $0 | $494,137 | $494,137 |
| 2021 | $267,686 | $125,000 | $0 | $392,686 | $392,686 |
| 2020 | $261,114 | $120,000 | $0 | $381,114 | $381,114 |
| 2019 | $201,208 | $140,000 | $0 | $341,208 | $341,208 |
| 2018 | $201,798 | $130,000 | $0 | $331,798 | $331,798 |
| 2017 | $181,357 | $120,000 | $0 | $301,357 | $301,357 |
| 2016 | $183,542 | $90,000 | $0 | $273,542 | $273,542 |
| 2015 | $185,726 | $55,000 | $0 | $240,726 | $240,726 |
| 2014 | $187,912 | $55,000 | $0 | $242,912 | $242,912 |
| 2013 | $190,098 | $55,000 | $0 | $245,098 | $245,098 |
| 2012 | $192,281 | $50,000 | $0 | $242,281 | $242,281 |
| 2011 | $198,672 | $50,000 | $0 | $248,672 | $248,672 |
| 2010 | $205,971 | $50,000 | $0 | $255,971 | $255,971 |
| 2009 | $214,874 | $75,000 | $0 | $289,874 | $289,874 |
| 2008 | $215,410 | $90,000 | $0 | $305,410 | $305,410 |
| 2007 | $218,117 | $90,000 | $0 | $308,117 | $308,117 |
Deed and Sales History
| 1 | 12/26/2020 | QCD | Quit Claim Deed | JOHNSON, PETER | JOHNSON, PETER ORVILLE | | | $0.00 | 46393 | 4506796 |
| 2 | 05/10/2016 | WD | Warranty Deed | FUNK, MACK L | JOHNSON, PETER | | | $294,000.00 | 24413 | 4399787 |
| 3 | 11/24/2009 | WD | Warranty Deed | MORA, CARLOS R | FUNK, MACK L | | | $279,000.00 | 92974 | 4264739 |
| 4 | 08/23/2002 | TRUSTEED | Trustee's Deed | SECRETARY OF VETERAN'S AFFAIRS | MORA, CARLOS R | | | $192,700.00 | 23526 | 4030395 |
| 5 | 05/02/2002 | WD | Warranty Deed | PRINCIPAL RESIDENTIAL MORTGAGE | SECRETARY OF VETERAN'S AFFAIRS | | | $0.00 | 21664 | 4018712 |
| 6 | 04/26/2002 | TRUSTEED | Trustee's Deed | PETERSON, RONALD Y | PRINCIPAL RESIDENTIAL MORTGAGE | | | $180,667.00 | 21663 | 4018711 |
| 7 | 03/02/2001 | WD | Warranty Deed | HOMESTEAD, | PETERSON, RONALD Y | | | $198,577.00 | 10707 | 20026706 |
| 8 | 03/07/2000 | OTHER | Other - Misc. Documents | Unknown | HOMESTEAD, | | | $0.00 | 0 | 0 |
Payout Agreement
| No payout information available.. |