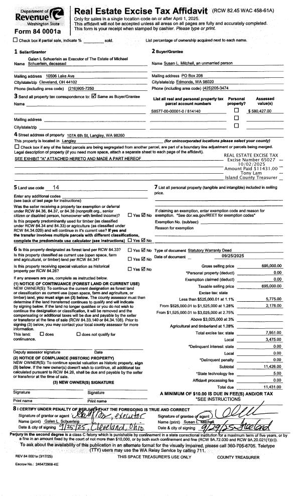
Property
Account |
| Property ID: | 801232 | Abbreviated Legal Description: | E/2 S/2 SE NW TGW EZ AF#93017620 AF#93018645 TGW & SUB EZ AF#94007416 AF#94007417 |
| Geographic ID: | R23132-306-2310 | Agent Code: | |
| Type: | Real | | |
| Tax Area: | 319 - APPRAISER-Cpvl Schl Dist, outside Cpvl, vacant & 50 acres or less | Land Use Code | 88 |
| Open Space: | N | DFL | Y |
| Historic Property: | N | Remodel Property: | N |
| Multi-Family Redevelopment: | N | | |
| Township: | 31 | Section: | 32 |
| Range: | R2 |
Location |
| Address: | | Mapsco: | |
| Neighborhood: | Cycle 2 | Map ID: | 528 |
| Neighborhood CD: | 2 |
Owner |
| Name: | GARBODEN, PATRICK N | Owner ID: | 193663 |
| Mailing Address: | BEVERLY J GARBODEN 28619 RAVENS PRAIRIE DR KATY, TX 77494-3225 | % Ownership: | 100.0000000000% |
| | | Exemptions: | |
Taxes and Assessment Details
Values
| (+) Improvement Homesite Value: | + | $0 | |
| (+) Improvement Non-Homesite Value: | + | $0 | |
| (+) Land Homesite Value: | + | $0 | |
| (+) Land Non-Homesite Value: | + | $0 | |
| (+) Curr Use (HS): | + | $0 | $0 |
| (+) Curr Use (NHS): | + | $265,161 | $1,532 |
| | | -------------------------- | |
| (=) Market Value: | = | $265,161 | |
| (–) Productivity Loss: | – | $263,629 | |
| | | -------------------------- | |
| (=) Subtotal: | = | $1,532 | |
| (+) Senior Appraised Value: | + | $0 | |
| (+) Non-Senior Appraised Value: | + | $1,532 | |
| | | -------------------------- | |
| (=) Total Appraised Value: | = | $1,532 | |
| (–) Senior Exemption Loss: | – | $0 | |
| (–) Exemption Loss: | – | $0 | |
| | | -------------------------- | |
| (=) Taxable Value: | = | $1,532 | |
Taxing Jurisdiction
| Owner: | GARBODEN, PATRICK N | | |
| % Ownership: | 100.0000000000% | | |
| Total Value: | $265,161 | | |
| Tax Area: | 319 - APPRAISER-Cpvl Schl Dist, outside Cpvl, vacant & 50 acres or less |
| CF | Conservation Futures | 0.0316035091 | $1,532 | $1,532 | $0.05 | | |
| CEM2 | Cemetery #2 | 0.0095056933 | $1,532 | $1,532 | $0.01 | | |
| HOBOND | Hospital BOND | 0.1910887512 | $1,532 | $1,532 | $0.29 | | |
| HOGEN | Hospital GEN | 0.3902502903 | $1,532 | $1,532 | $0.60 | | |
| CE | County Current Expense | 0.3708482477 | $1,532 | $1,532 | $0.57 | | |
| CR | County Roads | 0.4584763726 | $1,532 | $1,532 | $0.70 | | |
| ISLANDEMS | Hospital GEN (EMS) | 0.5000000000 | $1,532 | $1,532 | $0.77 | | |
| LIB | Library Sno-Isle GEN | 0.3153421757 | $1,532 | $1,532 | $0.48 | | |
| LIBCAP | Library Sno-Isle BOND (Cap Fac Imp Area) | 0.0543427938 | $1,532 | $1,532 | $0.08 | | |
| POCOUP | Port of Coupeville GEN | 0.1093371703 | $1,532 | $1,532 | $0.17 | | |
| POCOUPIDD | Port of Coupeville IDD | 0.3409740022 | $1,532 | $1,532 | $0.52 | | |
| COUPSDTECH | School 204 CP (TECH) | 0.7545480007 | $1,532 | $1,532 | $1.16 | | |
| SCH204MO | School 204 Enrichment | 0.6716186034 | $1,532 | $1,532 | $1.03 | | |
| ST | State School | 1.3035497053 | $1,532 | $1,532 | $2.00 | | |
| ST2 | State School Part 2 | 0.8169543533 | $1,532 | $1,532 | $1.25 | | |
| | Total Tax Rate: | 6.3184396689 | | | | | |
| | | | | Taxes w/Current Exemptions: | $9.68 | | |
| | | | | Taxes w/o Exemptions: | $9.68 | | |
Improvement / Building
Sketch
| No sketches available for this property. |
Property Image
Land
| 1 | 35 | AC (10.00-30.99) | 1.4000 | 60984.00 | 0.00 | 0.00 | 1.00 | $36,828 | $203 |
| 2 | 35 | AC (10.00-30.99) | 7.7300 | 336718.80 | 0.00 | 0.00 | 1.00 | $203,343 | $1,152 |
| 3 | 35 | AC (10.00-30.99) | 0.9500 | 41382.00 | 0.00 | 0.00 | 1.00 | $24,990 | $177 |
Roll Value History
| 2026 | N/A | N/A | N/A | N/A | N/A |
| 2025 | $0 | $265,161 | $1,532 | $1,532 | $1,532 |
| 2024 | $0 | $250,000 | $1,542 | $1,542 | $1,542 |
| 2023 | $0 | $240,000 | $1,479 | $1,479 | $1,479 |
| 2022 | $0 | $200,000 | $1,479 | $1,479 | $1,479 |
| 2021 | $0 | $170,000 | $1,479 | $1,479 | $1,479 |
| 2020 | $0 | $150,000 | $1,479 | $1,479 | $1,479 |
| 2019 | $0 | $150,000 | $1,427 | $1,427 | $1,427 |
| 2018 | $0 | $125,000 | $1,407 | $1,407 | $1,407 |
| 2017 | $0 | $100,000 | $1,407 | $1,407 | $1,407 |
| 2016 | $0 | $100,000 | $1,018 | $1,018 | $1,018 |
| 2015 | $0 | $111,384 | $1,018 | $1,018 | $1,018 |
| 2014 | $0 | $111,384 | $1,018 | $1,018 | $1,018 |
| 2013 | $0 | $111,384 | $1,018 | $1,018 | $1,018 |
| 2012 | $0 | $111,384 | $1,018 | $1,018 | $1,018 |
| 2011 | $0 | $131,040 | $1,018 | $1,018 | $1,018 |
| 2010 | $0 | $131,040 | $1,018 | $1,018 | $1,018 |
| 2009 | $0 | $201,600 | $1,018 | $1,018 | $1,018 |
| 2008 | $0 | $83,059 | $1,018 | $1,018 | $1,018 |
| 2007 | $0 | $78,059 | $1,018 | $1,018 | $1,018 |
Deed and Sales History
| 1 | 11/01/1999 | WD | Warranty Deed | AMBER ENTERPRISES INC, | GARBODEN, PATRICK N | | | $62,538.00 | 94682 | 99026192 |
| 2 | 08/03/1999 | SEG | DNU - Segregation | Unknown | AMBER ENTERPRISES INC, | | | $0.00 | 68389 | 0 |
Payout Agreement
| No payout information available.. |