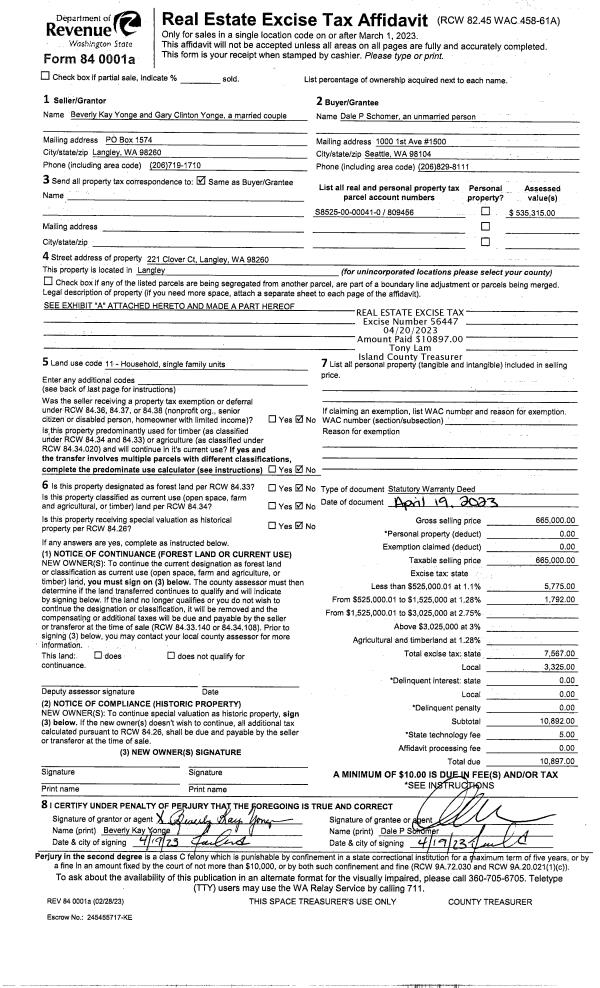
Property
Account |
| Property ID: | 801272 | Abbreviated Legal Description: | NE NW NE SW EX W50' TGW EZ AF#96014151 |
| Geographic ID: | R23334-255-1830 | Agent Code: | |
| Type: | Real | | |
| Tax Area: | 112 - APPRAISER-OH Schl Dist, outside OH, improved, greater than 1 acre | Land Use Code | 11 |
| Open Space: | N | DFL | N |
| Historic Property: | N | Remodel Property: | N |
| Multi-Family Redevelopment: | N | | |
| Township: | | Section: | |
| Range: | |
Location |
| Address: | 1348 BLACKBERRY LN OAK HARBOR, WA 98277 | Mapsco: | |
| Neighborhood: | Cycle 6 | Map ID: | 655 |
| Neighborhood CD: | 6 |
Owner |
| Name: | BOESCH, TED | Owner ID: | 283806 |
| Mailing Address: | KIMBERLY BOESCH 1348 BLACKBERRY LN OAK HARBOR, WA 98277 | % Ownership: | 100.0000000000% |
| | | Exemptions: | |
Taxes and Assessment Details
Values
| (+) Improvement Homesite Value: | + | $0 | |
| (+) Improvement Non-Homesite Value: | + | $444,051 | |
| (+) Land Homesite Value: | + | $0 | |
| (+) Land Non-Homesite Value: | + | $250,000 | |
| (+) Curr Use (HS): | + | $0 | $0 |
| (+) Curr Use (NHS): | + | $0 | $0 |
| | | -------------------------- | |
| (=) Market Value: | = | $694,051 | |
| (–) Productivity Loss: | – | $0 | |
| | | -------------------------- | |
| (=) Subtotal: | = | $694,051 | |
| (+) Senior Appraised Value: | + | $0 | |
| (+) Non-Senior Appraised Value: | + | $694,051 | |
| | | -------------------------- | |
| (=) Total Appraised Value: | = | $694,051 | |
| (–) Senior Exemption Loss: | – | $0 | |
| (–) Exemption Loss: | – | $0 | |
| | | -------------------------- | |
| (=) Taxable Value: | = | $694,051 | |
Taxing Jurisdiction
| Owner: | BOESCH, TED | | |
| % Ownership: | 100.0000000000% | | |
| Total Value: | $694,051 | | |
| Tax Area: | 112 - APPRAISER-OH Schl Dist, outside OH, improved, greater than 1 acre |
| CF | Conservation Futures | 0.0316035091 | $694,051 | $694,051 | $21.93 | | |
| CEM1 | Cemetery #1 | 0.0040320932 | $694,051 | $694,051 | $2.80 | | |
| FIRE2 | Fire & Rescue Dist #2 N Whidbey GEN | 0.5475949600 | $694,051 | $694,051 | $380.06 | | |
| HOBOND | Hospital BOND | 0.1910887512 | $694,051 | $694,051 | $132.63 | | |
| HOGEN | Hospital GEN | 0.3902502903 | $694,051 | $694,051 | $270.85 | | |
| CE | County Current Expense | 0.3708482477 | $694,051 | $694,051 | $257.39 | | |
| CR | County Roads | 0.4584763726 | $694,051 | $694,051 | $318.21 | | |
| ISLANDEMS | Hospital GEN (EMS) | 0.5000000000 | $694,051 | $694,051 | $347.03 | | |
| LIB | Library Sno-Isle GEN | 0.3153421757 | $694,051 | $694,051 | $218.86 | | |
| NWHIDPRMT | P & R N Whidbey GEN | 0.2004466701 | $694,051 | $694,051 | $139.12 | | |
| SCH201MO | School 201 Enrichment | 1.8559231640 | $694,051 | $694,051 | $1,288.11 | | |
| ST | State School | 1.3035497053 | $694,051 | $694,051 | $904.73 | | |
| ST2 | State School Part 2 | 0.8169543533 | $694,051 | $694,051 | $567.01 | | |
| | Total Tax Rate: | 6.9861102925 | | | | | |
| | | | | Taxes w/Current Exemptions: | $4,848.73 | | |
| | | | | Taxes w/o Exemptions: | $4,848.73 | | |
Improvement / Building
| Improvement #1: | RESIDENTIAL | State Code: | Y | 2384.0 sqft | Value: | $444,051 |
| Bathrooms: | 3.5 | Bedrooms: | 4 | | Ceiling: | DRYWALL PAINTED | Exterior Wall/Cover: | CEMENT FIBER | | Floor Covering: | HARDWOOD/CARP 80-20 | Floor Structure: | WOOD W/SUBFLOOR | | Foundation: | CONCRETE | Heating: | FHA GAS | | Interior Finish: | DRYWALL PAINT | Plumbing Fixture Cnt: | 14 | | Roof Slope: | 5" IN 12" | Roof Structure/Cover: | CJ ASPHALT |
|
| | Type | Description | Class CD | Sub Class CD | Year Built | Area |
| | BAS | BASE/MAIN FLOOR | 3 | 0 | 2007 | 1148.0 |
| | AGR | ATTACHED GARAGE | 3 | 0 | 2007 | 528.0 |
| | UPS | UPPER STORY | 3 | 0 | 2007 | 1236.0 |
| | OWC | OPEN WOOD PORCH W/STEPS/ROOF/C | 3 | 0 | 2007 | 136.8 |
| | DGR | DETACHED GARAGE | 3 | 0 | 2007 | 576.0 |
| | CPD | OPEN CARPORT DIRT FLOOR | 3 | 0 | 2007 | 184.0 |
Sketch
Property Image
Land
| 1 | 18 | AC (02.01-03.00) | 2.1200 | 92347.20 | 0.00 | 0.00 | 1.00 | $250,000 | $0 |
Roll Value History
| 2026 | N/A | N/A | N/A | N/A | N/A |
| 2025 | $444,051 | $250,000 | $0 | $694,051 | $694,051 |
| 2024 | $449,140 | $230,000 | $0 | $679,140 | $679,140 |
| 2023 | $454,230 | $220,000 | $0 | $674,230 | $674,230 |
| 2022 | $398,618 | $210,000 | $0 | $608,618 | $608,618 |
| 2021 | $350,605 | $160,000 | $0 | $510,605 | $510,605 |
| 2020 | $341,548 | $140,000 | $0 | $481,548 | $481,548 |
| 2019 | $262,304 | $200,000 | $0 | $462,304 | $462,304 |
| 2018 | $247,232 | $170,000 | $0 | $417,232 | $417,232 |
| 2017 | $248,598 | $150,000 | $0 | $398,598 | $398,598 |
| 2016 | $254,061 | $120,000 | $0 | $374,061 | $374,061 |
| 2015 | $225,809 | $100,000 | $0 | $325,809 | $325,809 |
| 2014 | $228,290 | $100,000 | $0 | $328,290 | $328,290 |
| 2013 | $230,772 | $90,000 | $0 | $320,772 | $320,772 |
| 2012 | $233,253 | $108,000 | $0 | $341,253 | $341,253 |
| 2011 | $235,735 | $120,000 | $0 | $355,735 | $355,735 |
| 2010 | $241,674 | $120,000 | $0 | $361,674 | $361,674 |
| 2009 | $251,789 | $155,000 | $0 | $406,789 | $406,789 |
| 2008 | $254,615 | $145,000 | $0 | $399,615 | $399,615 |
| 2007 | $142,518 | $101,500 | $0 | $244,018 | $244,018 |
Deed and Sales History
| 1 | 01/29/2018 | WD | Warranty Deed | CRIST, JOHN | BOESCH, TED | | | $420,000.00 | 32839 | 4438565 |
| 2 | 01/18/2016 | WD | Warranty Deed | PIMPER, GREGORY D | CRIST, JOHN | | | $375,000.00 | 22988 | 4393325 |
| 3 | 09/12/2007 | WD | Warranty Deed | ENCINAS CONSTRUCTION INC, | PIMPER, GREGORY D | | | $412,915.00 | 73142 | 4211991 |
| 4 | 10/03/2005 | WD | Warranty Deed | JACKSON, JAYCEE P/GLENDA G | ENCINAS CONSTRUCTION INC, | | | $86,500.00 | 55066 | 4150015 |
| 5 | 08/17/1999 | BLA | DNU - Boundary Line Adjustment | Unknown | JACKSON, JAYCEE P/GLENDA G | | | $0.00 | 68406 | 99005200 |
Payout Agreement
| No payout information available.. |