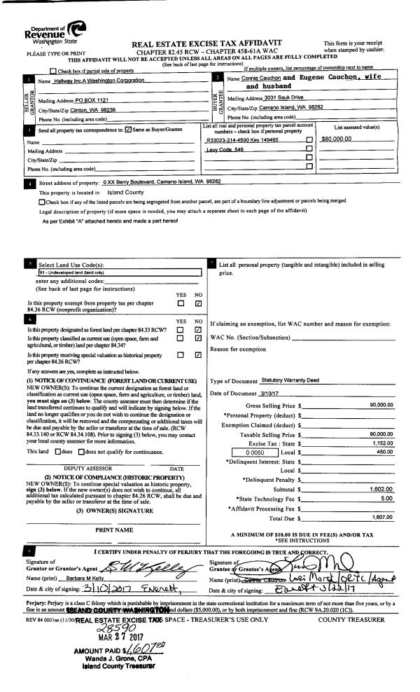
Property
Account |
| Property ID: | 80156 | Abbreviated Legal Description: | 170 - IN NW NE SW:BG SE CR NW NE SW N190' W100' TPB W120' N136' E TP W OF TPB S TPB SUB EZ |
| Geographic ID: | R23114-235-1850 | Agent Code: | |
| Type: | Real | | |
| Tax Area: | 510 - APPRAISER-Stan/Cam Schl Dist, improved & 1 acre or less | Land Use Code | 11 |
| Open Space: | N | DFL | N |
| Historic Property: | N | Remodel Property: | N |
| Multi-Family Redevelopment: | N | | |
| Township: | 31 | Section: | 14 |
| Range: | R2 |
Location |
| Address: | 1024 FALCON RD CAMANO ISLAND, WA 98282 | Mapsco: | |
| Neighborhood: | Cycle 5 | Map ID: | 481 |
| Neighborhood CD: | 5 |
Owner |
| Name: | VARGAS, TRINA | Owner ID: | 299016 |
| Mailing Address: | 1024 FALCON RD CAMANO ISLAND, WA 98282 | % Ownership: | 100.0000000000% |
| | | Exemptions: | |
Taxes and Assessment Details
Values
| (+) Improvement Homesite Value: | + | $0 | |
| (+) Improvement Non-Homesite Value: | + | $219,971 | |
| (+) Land Homesite Value: | + | $0 | |
| (+) Land Non-Homesite Value: | + | $240,000 | |
| (+) Curr Use (HS): | + | $0 | $0 |
| (+) Curr Use (NHS): | + | $0 | $0 |
| | | -------------------------- | |
| (=) Market Value: | = | $459,971 | |
| (–) Productivity Loss: | – | $0 | |
| | | -------------------------- | |
| (=) Subtotal: | = | $459,971 | |
| (+) Senior Appraised Value: | + | $0 | |
| (+) Non-Senior Appraised Value: | + | $459,971 | |
| | | -------------------------- | |
| (=) Total Appraised Value: | = | $459,971 | |
| (–) Senior Exemption Loss: | – | $0 | |
| (–) Exemption Loss: | – | $0 | |
| | | -------------------------- | |
| (=) Taxable Value: | = | $459,971 | |
Taxing Jurisdiction
| Owner: | VARGAS, TRINA | | |
| % Ownership: | 100.0000000000% | | |
| Total Value: | $459,971 | | |
| Tax Area: | 510 - APPRAISER-Stan/Cam Schl Dist, improved & 1 acre or less |
| CF | Conservation Futures | 0.0316035091 | $459,971 | $459,971 | $14.54 | | |
| EMS1 | Fire & Rescue Dist #1 Camano GEN (EMS) | 0.3677864386 | $459,971 | $459,971 | $169.17 | | |
| FIRE1 | Fire & Rescue Dist #1 Camano GEN | 1.2502910536 | $459,971 | $459,971 | $575.10 | | |
| FIRE1BOND | Fire & Rescue Dist #1 Camano BOND | 0.1570001679 | $459,971 | $459,971 | $72.22 | | |
| CE | County Current Expense | 0.3708482477 | $459,971 | $459,971 | $170.58 | | |
| CR | County Roads | 0.4584763726 | $459,971 | $459,971 | $210.89 | | |
| LCIB | Library Sno-Isle BOND (Camano Island) | 0.0396325772 | $459,971 | $459,971 | $18.23 | | |
| LIB | Library Sno-Isle GEN | 0.3153421757 | $459,971 | $459,971 | $145.05 | | |
| SCH205_401 | School 205-401 Enrichment | 1.2698420524 | $459,971 | $459,971 | $584.09 | | |
| SCH205BOND | School 205-401 BOND | 0.9396497583 | $459,971 | $459,971 | $432.21 | | |
| ST | State School | 1.3035497053 | $459,971 | $459,971 | $599.60 | | |
| ST2 | State School Part 2 | 0.8169543533 | $459,971 | $459,971 | $375.78 | | |
| | Total Tax Rate: | 7.3209764117 | | | | | |
| | | | | Taxes w/Current Exemptions: | $3,367.46 | | |
| | | | | Taxes w/o Exemptions: | $3,367.46 | | |
Improvement / Building
| Improvement #1: | RESIDENTIAL | State Code: | Y | 1160.0 sqft | Value: | $219,971 |
| Bathrooms: | 1 | Bedrooms: | 3 | | Ceiling: | DRYWALL PAINTED | Exterior Wall/Cover: | PLY/HARDBOARD T-111 | | Floor Covering: | CARPET/VINYL 60-40 | Floor Structure: | WOOD W/SUBFLOOR | | Foundation: | CONCRETE | Heating: | BASEBOARD ELECTRIC | | Interior Finish: | DRYWALL PAINT | Plumbing Fixture Cnt: | 6 | | Roof Slope: | 10" IN 12" | Roof Structure/Cover: | CJ ALUMINIUM HEAVY |
|
| | Type | Description | Class CD | Sub Class CD | Year Built | Area |
| | BAS | BASE/MAIN FLOOR | 3 | 0 | 1973 | 725.0 |
| | OWP | OPEN WOOD PORCH W/STEPS | 3 | 0 | 1973 | 90.0 |
| | OWP | OPEN WOOD PORCH W/STEPS | 3 | 0 | 1973 | 383.5 |
| | OWC | OPEN WOOD PORCH W/STEPS/ROOF/C | 3 | 0 | 1973 | 137.5 |
| | UPH | HALF STORY | 3 | 0 | 1973 | 435.0 |
| | UTY | STORAGE/UTILITY | 3 | 0 | 1973 | 208.0 |
| | DGR | DETACHED GARAGE | 3 | 0 | 1973 | 576.0 |
Sketch
Property Image
Land
| 1 | 15 | SQ (12001-21780) | 0.3700 | 16117.20 | 0.00 | 0.00 | 1.00 | $240,000 | $0 |
Roll Value History
| 2026 | N/A | N/A | N/A | N/A | N/A |
| 2025 | $219,971 | $240,000 | $0 | $459,971 | $459,971 |
| 2024 | $227,333 | $220,000 | $0 | $447,333 | $447,333 |
| 2023 | $230,165 | $210,000 | $0 | $440,165 | $440,165 |
| 2022 | $210,977 | $210,000 | $0 | $420,977 | $420,977 |
| 2021 | $181,236 | $150,000 | $0 | $331,236 | $331,236 |
| 2020 | $176,878 | $120,000 | $0 | $296,878 | $296,878 |
| 2019 | $126,978 | $160,000 | $0 | $286,978 | $286,978 |
| 2018 | $127,360 | $130,000 | $0 | $257,360 | $257,360 |
| 2017 | $114,066 | $100,000 | $0 | $214,066 | $214,066 |
| 2016 | $115,674 | $100,000 | $0 | $215,674 | $215,674 |
| 2015 | $106,714 | $65,000 | $0 | $171,714 | $171,714 |
| 2014 | $107,992 | $65,000 | $0 | $172,992 | $172,992 |
| 2013 | $109,272 | $41,600 | $0 | $150,872 | $150,872 |
| 2012 | $110,550 | $41,600 | $0 | $152,150 | $152,150 |
| 2011 | $111,832 | $52,000 | $0 | $163,832 | $163,832 |
| 2010 | $119,642 | $52,000 | $0 | $171,642 | $171,642 |
| 2009 | $117,692 | $90,000 | $0 | $207,692 | $207,692 |
| 2008 | $119,545 | $72,225 | $0 | $191,770 | $191,770 |
| 2007 | $121,413 | $72,225 | $0 | $193,638 | $193,638 |
Deed and Sales History
| 1 | 04/19/2021 | WD | Warranty Deed | KUECKELHAN, WOLFGANG | VARGAS, TRINA | | | $410,000.00 | 47918 | 4517288 |
| 2 | 06/09/2017 | WD | Warranty Deed | GEYER, STEPHEN M | KUECKELHAN, WOLFGANG | | | $265,000.00 | 30037 | 4425446 |
| 3 | 07/01/1983 | WD | Warranty Deed | OPGENORTH, CARL & | GEYER, STEPHEN M | | | $45,000.00 | 32040 | 412470 |
| 4 | 01/01/1979 | OTHER | Other - Misc. Documents | Unknown | OPGENORTH, CARL & | | | $25,000.00 | 90903 | 348290 |
Payout Agreement
| No payout information available.. |