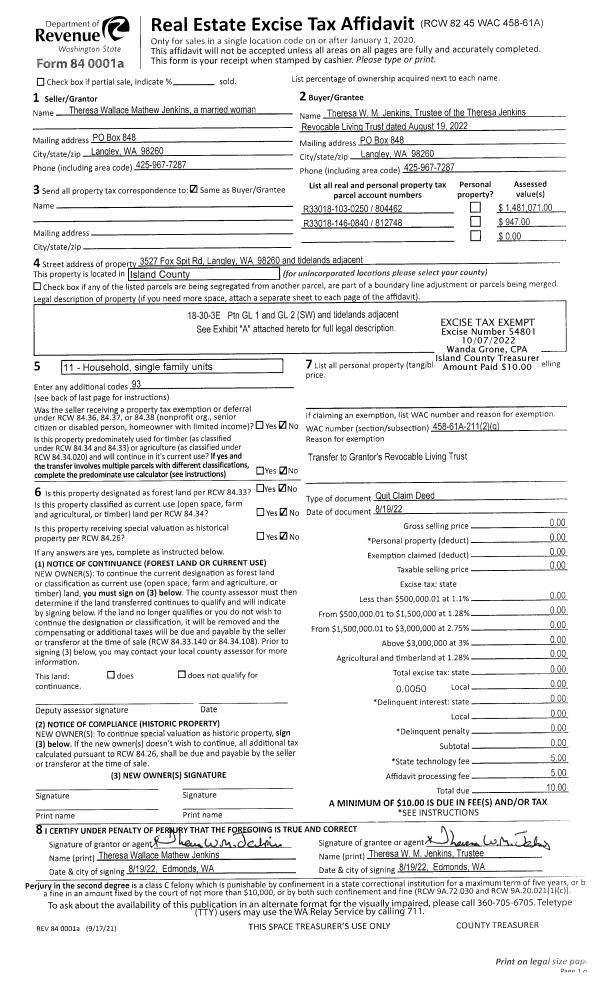
Property
Account |
| Property ID: | 801730 | Abbreviated Legal Description: | LOT 1 SP 4-98.23017.352-4350 V3 SP P259-60 AF#99020664 |
| Geographic ID: | R23017-317-4360 | Agent Code: | |
| Type: | Real | | |
| Tax Area: | 312 - APPRAISER-Cpvl Schl Dist, outside Cpvl, improved, greater than 1 acre | Land Use Code | 11 |
| Open Space: | N | DFL | N |
| Historic Property: | N | Remodel Property: | N |
| Multi-Family Redevelopment: | N | | |
| Township: | 30 | Section: | 17 |
| Range: | R2 |
Location |
| Address: | 3360 OLD COUNTY RD GREENBANK, WA 98253 | Mapsco: | |
| Neighborhood: | Cycle 3 | Map ID: | 387 |
| Neighborhood CD: | 3 |
Owner |
| Name: | HUDE JTWROS, KATRINA | Owner ID: | 304295 |
| Mailing Address: | JOSEPH GROGAN JTWROS PO BOX 240 GREENBANK, WA 98253 | % Ownership: | 100.0000000000% |
| | | Exemptions: | |
Taxes and Assessment Details
Values
| (+) Improvement Homesite Value: | + | $0 | |
| (+) Improvement Non-Homesite Value: | + | $401,504 | |
| (+) Land Homesite Value: | + | $0 | |
| (+) Land Non-Homesite Value: | + | $350,000 | |
| (+) Curr Use (HS): | + | $0 | $0 |
| (+) Curr Use (NHS): | + | $0 | $0 |
| | | -------------------------- | |
| (=) Market Value: | = | $751,504 | |
| (–) Productivity Loss: | – | $0 | |
| | | -------------------------- | |
| (=) Subtotal: | = | $751,504 | |
| (+) Senior Appraised Value: | + | $0 | |
| (+) Non-Senior Appraised Value: | + | $751,504 | |
| | | -------------------------- | |
| (=) Total Appraised Value: | = | $751,504 | |
| (–) Senior Exemption Loss: | – | $0 | |
| (–) Exemption Loss: | – | $0 | |
| | | -------------------------- | |
| (=) Taxable Value: | = | $751,504 | |
Taxing Jurisdiction
| Owner: | HUDE JTWROS, KATRINA | | |
| % Ownership: | 100.0000000000% | | |
| Total Value: | $751,504 | | |
| Tax Area: | 312 - APPRAISER-Cpvl Schl Dist, outside Cpvl, improved, greater than 1 acre |
| CF | Conservation Futures | 0.0316035091 | $751,504 | $751,504 | $23.75 | | |
| CEM2 | Cemetery #2 | 0.0095056933 | $751,504 | $751,504 | $7.14 | | |
| FIRE5 | Fire & Rescue Dist #5 C Whidbey GEN | 1.2008080668 | $751,504 | $751,504 | $902.41 | | |
| FIRE5BOND | Fire & Rescue Dist #5 C Whidbey BOND | 0.1400090713 | $751,504 | $751,504 | $105.22 | | |
| HOBOND | Hospital BOND | 0.1910887512 | $751,504 | $751,504 | $143.60 | | |
| HOGEN | Hospital GEN | 0.3902502903 | $751,504 | $751,504 | $293.27 | | |
| CE | County Current Expense | 0.3708482477 | $751,504 | $751,504 | $278.69 | | |
| CR | County Roads | 0.4584763726 | $751,504 | $751,504 | $344.55 | | |
| ISLANDEMS | Hospital GEN (EMS) | 0.5000000000 | $751,504 | $751,504 | $375.75 | | |
| LIB | Library Sno-Isle GEN | 0.3153421757 | $751,504 | $751,504 | $236.98 | | |
| LIBCAP | Library Sno-Isle BOND (Cap Fac Imp Area) | 0.0543427938 | $751,504 | $751,504 | $40.84 | | |
| POCOUP | Port of Coupeville GEN | 0.1093371703 | $751,504 | $751,504 | $82.17 | | |
| POCOUPIDD | Port of Coupeville IDD | 0.3409740022 | $751,504 | $751,504 | $256.24 | | |
| COUPSDTECH | School 204 CP (TECH) | 0.7545480007 | $751,504 | $751,504 | $567.05 | | |
| SCH204MO | School 204 Enrichment | 0.6716186034 | $751,504 | $751,504 | $504.72 | | |
| ST | State School | 1.3035497053 | $751,504 | $751,504 | $979.62 | | |
| ST2 | State School Part 2 | 0.8169543533 | $751,504 | $751,504 | $613.94 | | |
| | Total Tax Rate: | 7.6592568070 | | | | | |
| | | | | Taxes w/Current Exemptions: | $5,755.94 | | |
| | | | | Taxes w/o Exemptions: | $5,755.94 | | |
Improvement / Building
| Improvement #1: | RESIDENTIAL | State Code: | Y | 980.1 sqft | Value: | $208,081 |
| Bathrooms: | 1 | Bedrooms: | 2 | | Ceiling: | DRYWALL PAINTED | Exterior Wall/Cover: | VINYL | | Floor Covering: | VINYL TILE | Floor Structure: | WOOD W/SUBFLOOR | | Foundation: | CONCRETE | Interior Finish: | DRYWALL PAINT | | Plumbing Fixture Cnt: | 6 | Roof Slope: | 6" IN 12" | | Roof Structure/Cover: | CJ ALUMINIUM HEAVY |   |   |
|
| | Type | Description | Class CD | Sub Class CD | Year Built | Area |
| | BAS | BASE/MAIN FLOOR | 3 | 0 | 2004 | 588.1 |
| | OP3 | OPEN PORCH W/ROOF | 3 | 0 | 2004 | 340.0 |
| | AGR | ATTACHED GARAGE | 3 | 0 | 2004 | 680.0 |
| | UPS | UPPER STORY | 3 | 0 | 2004 | 392.0 |
| | OWP | OPEN WOOD PORCH W/STEPS | 3 | 0 | 2004 | 17.5 |
| Improvement #2: | RESIDENTIAL | State Code: | Y | 658.0 sqft | Value: | $193,423 |
| Bathrooms: | 1 | Bedrooms: | 1 | | Ceiling: | DRYWALL PAINTED | Exterior Wall/Cover: | VINYL | | Floor Covering: | CARPET 100% | Floor Structure: | WOOD W/SUBFLOOR | | Foundation: | SLAB | Heating: | FHA ELECTRIC | | Interior Finish: | DRYWALL PAINT | Plumbing Fixture Cnt: | 6 | | Roof Slope: | 4" IN 12" | Roof Structure/Cover: | CJ ALUMINIUM HEAVY |
|
| | Type | Description | Class CD | Sub Class CD | Year Built | Area |
| | BAS | BASE/MAIN FLOOR | 3 | 0 | 2017 | 658.0 |
| | BIG | BUILT IN GARAGE | 3 | 0 | 2017 | 658.0 |
| | UTY | STORAGE/UTILITY | 3 | 0 | 2017 | 364.0 |
Sketch
Property Image
Land
| 1 | 32 | AC (03.01-09.99) | 5.0000 | 0.00 | 0.00 | 0.00 | 1.00 | $350,000 | $0 |
Roll Value History
| 2026 | N/A | N/A | N/A | N/A | N/A |
| 2025 | $401,504 | $350,000 | $0 | $751,504 | $751,504 |
| 2024 | $405,715 | $340,000 | $0 | $745,715 | $745,715 |
| 2023 | $409,926 | $320,000 | $0 | $729,926 | $729,926 |
| 2022 | $375,007 | $260,000 | $0 | $635,007 | $635,007 |
| 2021 | $329,399 | $230,000 | $0 | $559,399 | $559,399 |
| 2020 | $319,879 | $180,000 | $0 | $499,879 | $499,879 |
| 2019 | $165,241 | $220,000 | $0 | $385,241 | $385,241 |
| 2018 | $159,161 | $170,000 | $0 | $329,161 | $329,161 |
| 2017 | $143,676 | $160,000 | $0 | $303,676 | $303,676 |
| 2016 | $123,070 | $120,000 | $0 | $243,070 | $243,070 |
| 2015 | $124,484 | $130,000 | $0 | $254,484 | $254,484 |
| 2014 | $125,897 | $125,000 | $0 | $250,897 | $250,897 |
| 2013 | $132,215 | $121,500 | $0 | $253,715 | $253,715 |
| 2012 | $133,670 | $121,500 | $0 | $255,170 | $255,170 |
| 2011 | $135,125 | $135,000 | $0 | $270,125 | $270,125 |
| 2010 | $139,817 | $135,000 | $0 | $274,817 | $274,817 |
| 2009 | $147,089 | $195,000 | $0 | $342,089 | $342,089 |
| 2008 | $147,207 | $168,750 | $0 | $315,957 | $315,957 |
| 2007 | $150,960 | $155,000 | $0 | $305,960 | $305,960 |
Deed and Sales History
| 1 | 09/17/2020 | QCD | Quit Claim Deed | HUDE, KATRINA | HUDE JTWROS, KATRINA | | | $0.00 | 53135 | 4545245 |
| 2 | 11/09/1999 | WD | Warranty Deed | OLIN, ROBERT F/JEANE F | HUDE, KATRINA | | | $60,000.00 | 94725 | 99026409 |
| 3 | 01/01/1900 | PACD | Purchaser's Assignment | Unknown | HUDE, KATRINA | | | $0.00 | 0 | 0 |
| 4 | 01/01/1900 | OTHER | Other - Misc. Documents | HUDE, KATRINA | OLIN, ROBERT F/JEANE F | | | $0.00 | 0 | 0 |
Payout Agreement
| No payout information available.. |