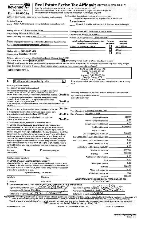
Property
Account |
| Property ID: | 801731 | Abbreviated Legal Description: | LOT 2 SP 4-98.23017.352-4350 V3 SP P259-60 AF#99020664 |
| Geographic ID: | R23017-353-4360 | Agent Code: | |
| Type: | Real | | |
| Tax Area: | 312 - APPRAISER-Cpvl Schl Dist, outside Cpvl, improved, greater than 1 acre | Land Use Code | 11 |
| Open Space: | N | DFL | N |
| Historic Property: | N | Remodel Property: | N |
| Multi-Family Redevelopment: | N | | |
| Township: | 30 | Section: | 17 |
| Range: | R2 |
Location |
| Address: | 3334 OLD COUNTY RD GREENBANK, WA 98253 | Mapsco: | |
| Neighborhood: | Cycle 3 | Map ID: | 387 |
| Neighborhood CD: | 3 |
Owner |
| Name: | WARD, JOHNATHAN W | Owner ID: | 184070 |
| Mailing Address: | JANDELLYN WARD 3334 OLD COUNTY RD GREENBANK, WA 98253-9704 | % Ownership: | 100.0000000000% |
| | | Exemptions: | |
Taxes and Assessment Details
Values
| (+) Improvement Homesite Value: | + | $0 | |
| (+) Improvement Non-Homesite Value: | + | $593,106 | |
| (+) Land Homesite Value: | + | $0 | |
| (+) Land Non-Homesite Value: | + | $350,000 | |
| (+) Curr Use (HS): | + | $0 | $0 |
| (+) Curr Use (NHS): | + | $0 | $0 |
| | | -------------------------- | |
| (=) Market Value: | = | $943,106 | |
| (–) Productivity Loss: | – | $0 | |
| | | -------------------------- | |
| (=) Subtotal: | = | $943,106 | |
| (+) Senior Appraised Value: | + | $0 | |
| (+) Non-Senior Appraised Value: | + | $943,106 | |
| | | -------------------------- | |
| (=) Total Appraised Value: | = | $943,106 | |
| (–) Senior Exemption Loss: | – | $0 | |
| (–) Exemption Loss: | – | $0 | |
| | | -------------------------- | |
| (=) Taxable Value: | = | $943,106 | |
Taxing Jurisdiction
| Owner: | WARD, JOHNATHAN W | | |
| % Ownership: | 100.0000000000% | | |
| Total Value: | $943,106 | | |
| Tax Area: | 312 - APPRAISER-Cpvl Schl Dist, outside Cpvl, improved, greater than 1 acre |
| CF | Conservation Futures | 0.0316035091 | $943,106 | $943,106 | $29.81 | | |
| CEM2 | Cemetery #2 | 0.0095056933 | $943,106 | $943,106 | $8.96 | | |
| FIRE5 | Fire & Rescue Dist #5 C Whidbey GEN | 1.2008080668 | $943,106 | $943,106 | $1,132.49 | | |
| FIRE5BOND | Fire & Rescue Dist #5 C Whidbey BOND | 0.1400090713 | $943,106 | $943,106 | $132.04 | | |
| HOBOND | Hospital BOND | 0.1910887512 | $943,106 | $943,106 | $180.22 | | |
| HOGEN | Hospital GEN | 0.3902502903 | $943,106 | $943,106 | $368.05 | | |
| CE | County Current Expense | 0.3708482477 | $943,106 | $943,106 | $349.75 | | |
| CR | County Roads | 0.4584763726 | $943,106 | $943,106 | $432.39 | | |
| ISLANDEMS | Hospital GEN (EMS) | 0.5000000000 | $943,106 | $943,106 | $471.55 | | |
| LIB | Library Sno-Isle GEN | 0.3153421757 | $943,106 | $943,106 | $297.40 | | |
| LIBCAP | Library Sno-Isle BOND (Cap Fac Imp Area) | 0.0543427938 | $943,106 | $943,106 | $51.25 | | |
| POCOUP | Port of Coupeville GEN | 0.1093371703 | $943,106 | $943,106 | $103.12 | | |
| POCOUPIDD | Port of Coupeville IDD | 0.3409740022 | $943,106 | $943,106 | $321.57 | | |
| COUPSDTECH | School 204 CP (TECH) | 0.7545480007 | $943,106 | $943,106 | $711.62 | | |
| SCH204MO | School 204 Enrichment | 0.6716186034 | $943,106 | $943,106 | $633.41 | | |
| ST | State School | 1.3035497053 | $943,106 | $943,106 | $1,229.39 | | |
| ST2 | State School Part 2 | 0.8169543533 | $943,106 | $943,106 | $770.47 | | |
| | Total Tax Rate: | 7.6592568070 | | | | | |
| | | | | Taxes w/Current Exemptions: | $7,223.49 | | |
| | | | | Taxes w/o Exemptions: | $7,223.49 | | |
Improvement / Building
| Improvement #1: | RESIDENTIAL | State Code: | Y | 3387.9 sqft | Value: | $593,106 |
| Bathrooms: | 2 | Bedrooms: | 3 | | Ceiling: | DRYWALL PAINTED | Exterior Wall/Cover: | CEMENT FIBER | | Floor Covering: | CERAMIC TILE/HWD 40/60 | Floor Structure: | SLAB ABOVE GRADE | | Foundation: | CONCRETE | Heating: | WALL HEAT ELECTRIC | | Interior Finish: | DRYWALL PAINT | Plumbing Fixture Cnt: | 10 | | Roof Slope: | 8" IN 12" | Roof Structure/Cover: | BEAM ASPHALT |
|
| | Type | Description | Class CD | Sub Class CD | Year Built | Area |
| | BAS | BASE/MAIN FLOOR | 4 | 0 | 2006 | 1852.9 |
| | UB8 | BASEMENT UNFINISHED 8" | 4 | 0 | 2006 | 1859.0 |
| | UPS | UPPER STORY | 4 | 0 | 2006 | 1535.0 |
| | OWP | OPEN WOOD PORCH W/STEPS | 4 | 0 | 2006 | 69.9 |
| | OWP | OPEN WOOD PORCH W/STEPS | 4 | 0 | 2006 | 627.6 |
| | DGR | DETACHED GARAGE | 4 | 0 | 2006 | 900.0 |
Sketch
Property Image
Land
| 1 | 32 | AC (03.01-09.99) | 5.0000 | 0.00 | 0.00 | 0.00 | 1.00 | $350,000 | $0 |
Roll Value History
| 2026 | N/A | N/A | N/A | N/A | N/A |
| 2025 | $593,106 | $350,000 | $0 | $943,106 | $943,106 |
| 2024 | $600,063 | $340,000 | $0 | $940,063 | $940,063 |
| 2023 | $607,020 | $320,000 | $0 | $927,020 | $927,020 |
| 2022 | $555,961 | $260,000 | $0 | $815,961 | $815,961 |
| 2021 | $488,947 | $230,000 | $0 | $718,947 | $718,947 |
| 2020 | $476,680 | $180,000 | $0 | $656,680 | $656,680 |
| 2019 | $347,710 | $220,000 | $0 | $567,710 | $567,710 |
| 2018 | $348,630 | $170,000 | $0 | $518,630 | $518,630 |
| 2017 | $333,643 | $160,000 | $0 | $493,643 | $493,643 |
| 2016 | $337,136 | $120,000 | $0 | $457,136 | $457,136 |
| 2015 | $340,631 | $130,000 | $0 | $470,631 | $470,631 |
| 2014 | $344,124 | $125,000 | $0 | $469,124 | $469,124 |
| 2013 | $347,618 | $121,500 | $0 | $469,118 | $469,118 |
| 2012 | $396,833 | $121,500 | $0 | $518,333 | $518,333 |
| 2011 | $401,335 | $135,000 | $0 | $536,335 | $536,335 |
| 2010 | $403,590 | $135,000 | $0 | $538,590 | $538,590 |
| 2009 | $417,768 | $196,597 | $0 | $614,365 | $614,365 |
| 2008 | $428,196 | $166,521 | $0 | $594,717 | $594,717 |
| 2007 | $407,765 | $155,000 | $0 | $562,765 | $562,765 |
Deed and Sales History
| 1 | 06/04/2008 | QCD | Quit Claim Deed | WARD, JOHNATHAN W | WARD, JOHNATHAN W | | | $0.00 | 81546 | 4230909 |
| 2 | 09/18/2000 | WD | Warranty Deed | OLIN, ROBERT F/JEANE F | WARD, JOHNATHAN W | | | $81,875.00 | 3596 | 20016546 |
| 3 | 01/01/1900 | OTHER | Other - Misc. Documents | Unknown | OLIN, ROBERT F/JEANE F | | | $0.00 | 0 | 0 |
Payout Agreement
| No payout information available.. |