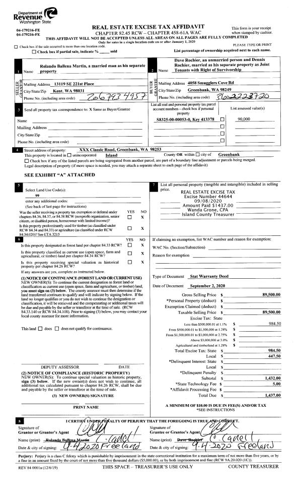
Property
Account |
| Property ID: | 801795 | Abbreviated Legal Description: | LOT 1 SP 79-99.23136.417-0960 V3 SP P268-70 AF#99024343 |
| Geographic ID: | R23136-415-0760 | Agent Code: | |
| Type: | Real | | |
| Tax Area: | 542 - APPRAISER-Stan/Cam Schl Dist, Special Dist, improved, greater than 1 acre | Land Use Code | 11 |
| Open Space: | N | DFL | N |
| Historic Property: | N | Remodel Property: | N |
| Multi-Family Redevelopment: | N | | |
| Township: | 31 | Section: | 36 |
| Range: | R2 |
Location |
| Address: | 2077 CLIFFSIDE TERRACE CAMANO ISLAND, WA 98282 | Mapsco: | |
| Neighborhood: | Cycle 5 | Map ID: | 535 |
| Neighborhood CD: | 5 |
Owner |
| Name: | LANSINGER, JERE R | Owner ID: | 305339 |
| Mailing Address: | 2077 CLIFFSIDE TERRACE CAMANO ISLAND, WA 98282 | % Ownership: | 100.0000000000% |
| | | Exemptions: | |
Taxes and Assessment Details
Values
| (+) Improvement Homesite Value: | + | $0 | |
| (+) Improvement Non-Homesite Value: | + | $167,688 | |
| (+) Land Homesite Value: | + | $0 | |
| (+) Land Non-Homesite Value: | + | $290,000 | |
| (+) Curr Use (HS): | + | $0 | $0 |
| (+) Curr Use (NHS): | + | $0 | $0 |
| | | -------------------------- | |
| (=) Market Value: | = | $457,688 | |
| (–) Productivity Loss: | – | $0 | |
| | | -------------------------- | |
| (=) Subtotal: | = | $457,688 | |
| (+) Senior Appraised Value: | + | $0 | |
| (+) Non-Senior Appraised Value: | + | $457,688 | |
| | | -------------------------- | |
| (=) Total Appraised Value: | = | $457,688 | |
| (–) Senior Exemption Loss: | – | $0 | |
| (–) Exemption Loss: | – | $0 | |
| | | -------------------------- | |
| (=) Taxable Value: | = | $457,688 | |
Taxing Jurisdiction
| Owner: | LANSINGER, JERE R | | |
| % Ownership: | 100.0000000000% | | |
| Total Value: | $457,688 | | |
| Tax Area: | 542 - APPRAISER-Stan/Cam Schl Dist, Special Dist, improved, greater than 1 acre |
| CF | Conservation Futures | 0.0316035091 | $457,688 | $457,688 | $14.46 | | |
| EMS1 | Fire & Rescue Dist #1 Camano GEN (EMS) | 0.3677864386 | $457,688 | $457,688 | $168.33 | | |
| FIRE1 | Fire & Rescue Dist #1 Camano GEN | 1.2502910536 | $457,688 | $457,688 | $572.24 | | |
| FIRE1BOND | Fire & Rescue Dist #1 Camano BOND | 0.1570001679 | $457,688 | $457,688 | $71.86 | | |
| CE | County Current Expense | 0.3708482477 | $457,688 | $457,688 | $169.73 | | |
| CR | County Roads | 0.4584763726 | $457,688 | $457,688 | $209.84 | | |
| LCIB | Library Sno-Isle BOND (Camano Island) | 0.0396325772 | $457,688 | $457,688 | $18.14 | | |
| LIB | Library Sno-Isle GEN | 0.3153421757 | $457,688 | $457,688 | $144.33 | | |
| SCH205_401 | School 205-401 Enrichment | 1.2698420524 | $457,688 | $457,688 | $581.19 | | |
| SCH205BOND | School 205-401 BOND | 0.9396497583 | $457,688 | $457,688 | $430.07 | | |
| ST | State School | 1.3035497053 | $457,688 | $457,688 | $596.62 | | |
| ST2 | State School Part 2 | 0.8169543533 | $457,688 | $457,688 | $373.91 | | |
| | Total Tax Rate: | 7.3209764117 | | | | | |
| | | | | Taxes w/Current Exemptions: | $3,350.72 | | |
| | | | | Taxes w/o Exemptions: | $3,350.72 | | |
Improvement / Building
| Improvement #1: | MANUFACTURED HOME | State Code: | Y | 1829.3 sqft | Value: | $167,688 |
| Bathrooms: | 2 | Bedrooms: | 4 | | Ceiling: | PLASTER PAINTED | Cooling: | EVAP NO DUCT | | Exterior Wall/Cover: | VINYL | Floor Covering: | CARPET 100% | | Floor Structure: | SLAB ON GRADE | Foundation: | SLAB | | Heating: | FHA ELECTRIC | Interior Finish: | PLASTER | | Plumbing Fixture Cnt: | 10 | Roof Slope: | FLAT | | Roof Structure/Cover: | CJ ALUMINIUM HEAVY |   |   |
|
| | Type | Description | Class CD | Sub Class CD | Year Built | Area |
| | BAS | BASE/MAIN FLOOR | 5 | 0 | 1999 | 1829.3 |
| | OWP | OPEN WOOD PORCH W/STEPS | 5 | 0 | 1999 | 297.0 |
| | UTY | STORAGE/UTILITY | 5 | 0 | 1999 | 112.0 |
| | UTY | STORAGE/UTILITY | 5 | 0 | 1999 | 167.0 |
| | UTY | STORAGE/UTILITY | 5 | 0 | 1999 | 448.0 |
Sketch
Property Image
Land
| 1 | 18 | AC (02.01-03.00) | 2.1600 | 94089.60 | 0.00 | 0.00 | 1.00 | $290,000 | $0 |
Roll Value History
| 2026 | N/A | N/A | N/A | N/A | N/A |
| 2025 | $167,688 | $290,000 | $0 | $457,688 | $457,688 |
| 2024 | $172,158 | $280,000 | $0 | $452,158 | $452,158 |
| 2023 | $153,592 | $270,000 | $0 | $423,592 | $423,592 |
| 2022 | $142,597 | $260,000 | $0 | $402,597 | $402,597 |
| 2021 | $100,366 | $180,000 | $0 | $280,366 | $280,366 |
| 2020 | $99,995 | $150,000 | $0 | $249,995 | $249,995 |
| 2019 | $80,875 | $200,000 | $0 | $280,875 | $280,875 |
| 2018 | $82,921 | $150,000 | $0 | $232,921 | $232,921 |
| 2017 | $84,970 | $135,000 | $0 | $219,970 | $219,970 |
| 2016 | $87,017 | $140,000 | $0 | $227,017 | $227,017 |
| 2015 | $87,291 | $63,200 | $0 | $150,491 | $150,491 |
| 2014 | $89,267 | $63,200 | $0 | $152,467 | $152,467 |
| 2013 | $91,244 | $63,200 | $0 | $154,444 | $154,444 |
| 2012 | $93,220 | $63,200 | $0 | $156,420 | $156,420 |
| 2011 | $95,196 | $79,000 | $0 | $174,196 | $174,196 |
| 2010 | $96,701 | $79,000 | $0 | $175,701 | $175,701 |
| 2009 | $95,930 | $130,000 | $0 | $225,930 | $225,930 |
| 2008 | $97,094 | $125,235 | $0 | $222,329 | $222,329 |
| 2007 | $98,237 | $125,235 | $0 | $223,472 | $223,472 |
Deed and Sales History
| 1 | 06/21/2021 | QCD | Quit Claim Deed | LANSINGER, LEE M | LANSINGER, JERE R | | | $0.00 | 53989 | 4548994 |
| 2 | 04/17/2007 | WD | Warranty Deed | CONNELLY, STEPHEN M | LANSINGER, LEE M | | | $301,000.00 | 71351 | 4200566 |
| 3 | 05/24/2006 | WD | Warranty Deed | GENESIS INTERNATIONAL LLC, | CONNELLY, STEPHEN M | | | $235,000.00 | 62366 | 4171852 |
| 4 | 04/05/2006 | WD | Warranty Deed | ZEILERR, JOHN | GENESIS INTERNATIONAL LLC, | | | $153,395.00 | 62365 | 4171951 |
| 5 | 06/06/2001 | WD | Warranty Deed | MOODY, PATRICK F/RENAE J | ZEILERR, JOHN | | | $59,900.00 | 12692 | 190037494 |
| 6 | 01/01/1900 | OTHER | Other - Misc. Documents | Unknown | MOODY, PATRICK F/RENAE J | | | $0.00 | 0 | 0 |
Payout Agreement
| No payout information available.. |