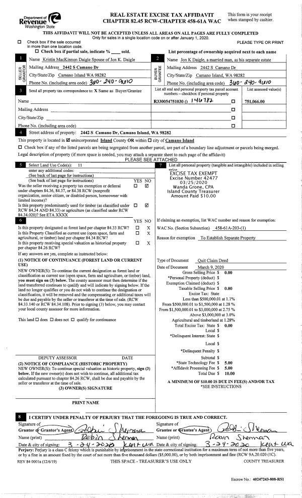
Property
Account |
| Property ID: | 801802 | Abbreviated Legal Description: | PT OF FOLL DESC LY ELY OF COUNTY RD R/W DESC 35D120: 56 - IN GL4: BG NECR GL4 S600' TPB S165' S87*W1129' TO CLN CO RD N24*E180.2' N87*E1058.4' TPB EX RD TGW UNDIV 1/17TH INT IN TRACTS A, B, C, D & E POSSESSION POINT ESTATES II PRD AF#4465609 TGW PT ADJ VA |
| Geographic ID: | R32814-480-4020 | Agent Code: | |
| Type: | Real | | |
| Tax Area: | 712 - APPRAISER-S Whid Schl Dist, outside Langley, improved, greater than 1 acre | Land Use Code | 11 |
| Open Space: | N | DFL | N |
| Historic Property: | N | Remodel Property: | N |
| Multi-Family Redevelopment: | N | | |
| Township: | 28 | Section: | 14 |
| Range: | R3 |
Location |
| Address: | 4291 VICKERS LN CLINTON, WA 98236 | Mapsco: | |
| Neighborhood: | Cycle 4 | Map ID: | 711 |
| Neighborhood CD: | 4 |
Owner |
| Name: | BARD, ALEXANDER GEOFFREY R. | Owner ID: | 306403 |
| Mailing Address: | ALISON JO BARD 4250 WELCOME RD LANGLEY, WA 98260 | % Ownership: | 100.0000000000% |
| | | Exemptions: | |
Taxes and Assessment Details
Values
| (+) Improvement Homesite Value: | + | $0 | |
| (+) Improvement Non-Homesite Value: | + | $1,088,904 | |
| (+) Land Homesite Value: | + | $0 | |
| (+) Land Non-Homesite Value: | + | $350,000 | |
| (+) Curr Use (HS): | + | $0 | $0 |
| (+) Curr Use (NHS): | + | $0 | $0 |
| | | -------------------------- | |
| (=) Market Value: | = | $1,438,904 | |
| (–) Productivity Loss: | – | $0 | |
| | | -------------------------- | |
| (=) Subtotal: | = | $1,438,904 | |
| (+) Senior Appraised Value: | + | $0 | |
| (+) Non-Senior Appraised Value: | + | $1,438,904 | |
| | | -------------------------- | |
| (=) Total Appraised Value: | = | $1,438,904 | |
| (–) Senior Exemption Loss: | – | $0 | |
| (–) Exemption Loss: | – | $0 | |
| | | -------------------------- | |
| (=) Taxable Value: | = | $1,438,904 | |
Taxing Jurisdiction
| Owner: | BARD, ALEXANDER GEOFFREY R. | | |
| % Ownership: | 100.0000000000% | | |
| Total Value: | $1,438,904 | | |
| Tax Area: | 712 - APPRAISER-S Whid Schl Dist, outside Langley, improved, greater than 1 acre |
| CF | Conservation Futures | 0.0316035091 | $1,438,904 | $1,438,904 | $45.47 | | |
| FIRE3 | Fire & Rescue Dist #3 S Whidbey GEN | 1.2004855531 | $1,438,904 | $1,438,904 | $1,727.38 | | |
| HOBOND | Hospital BOND | 0.1910887512 | $1,438,904 | $1,438,904 | $274.96 | | |
| HOGEN | Hospital GEN | 0.3902502903 | $1,438,904 | $1,438,904 | $561.53 | | |
| CE | County Current Expense | 0.3708482477 | $1,438,904 | $1,438,904 | $533.62 | | |
| CR | County Roads | 0.4584763726 | $1,438,904 | $1,438,904 | $659.70 | | |
| ISLANDEMS | Hospital GEN (EMS) | 0.5000000000 | $1,438,904 | $1,438,904 | $719.45 | | |
| LIB | Library Sno-Isle GEN | 0.3153421757 | $1,438,904 | $1,438,904 | $453.75 | | |
| PORTWHID | Port of S Whidbey GEN | 0.1094540357 | $1,438,904 | $1,438,904 | $157.49 | | |
| SCH206BOND | School 206 BOND | 0.3161759235 | $1,438,904 | $1,438,904 | $454.95 | | |
| SCH206MO | School 206 Enrichment | 0.4547169547 | $1,438,904 | $1,438,904 | $654.29 | | |
| ST | State School | 1.3035497053 | $1,438,904 | $1,438,904 | $1,875.68 | | |
| ST2 | State School Part 2 | 0.8169543533 | $1,438,904 | $1,438,904 | $1,175.52 | | |
| SWHIDPRBD | P & R S Whidbey BOND | 0.0152817568 | $1,438,904 | $1,438,904 | $21.99 | | |
| SWHIDPRBD2 | P & R S Whidbey BOND2 | 0.0138911264 | $1,438,904 | $1,438,904 | $19.99 | | |
| SWHIDPRMT | P & R S Whidbey GEN | 0.2053334452 | $1,438,904 | $1,438,904 | $295.46 | | |
| | Total Tax Rate: | 6.6934522006 | | | | | |
| | | | | Taxes w/Current Exemptions: | $9,631.23 | | |
| | | | | Taxes w/o Exemptions: | $9,631.23 | | |
Improvement / Building
| Improvement #1: | RESIDENTIAL | State Code: | Y | 3302.5 sqft | Value: | $1,088,904 |
| Bathrooms: | 3.5 | Bedrooms: | 3 | | Ceiling: | TONGUE & GROOVE | Cooling: | HEAT PUMP/CONV/V | | Exterior Wall/Cover: | WOOD SIDING | Floor Covering: | HARDWOOD 100% | | Floor Structure: | SLAB ON GRADE | Foundation: | CONCRETE | | Interior Finish: | DRYWALL PAINT | Plumbing Fixture Cnt: | 18 | | Roof Slope: | 3" IN 12" | Roof Structure/Cover: | BEAM ALUMINUM HEAVY |
|
| | Type | Description | Class CD | Sub Class CD | Year Built | Area |
| | BAS | BASE/MAIN FLOOR | 7 | 0 | 2015 | 1533.3 |
| | DGR | DETACHED GARAGE | 7 | 0 | 2015 | 1196.0 |
| | DWN | DOWNSTAIRS LIVING AREA | 7 | 0 | 2015 | 1769.2 |
| | OP3 | OPEN PORCH W/ROOF | 7 | 0 | 2015 | 250.0 |
| | OP2 | OPEN PORCH W/STEPS | 7 | 0 | 2015 | 152.0 |
| | OWP | OPEN WOOD PORCH W/STEPS | 7 | 0 | 2015 | 308.0 |
| | OP1 | OPEN PORCH SLAB | 7 | 0 | 2015 | 1695.3 |
Sketch
| No sketches available for this property. |
Property Image
Land
| 1 | 17 | AC (01.01-02.00) | 1.4600 | 63597.60 | 0.00 | 0.00 | 1.00 | $350,000 | $0 |
Roll Value History
| 2026 | N/A | N/A | N/A | N/A | N/A |
| 2025 | $1,088,904 | $350,000 | $0 | $1,438,904 | $1,438,904 |
| 2024 | $1,097,300 | $330,000 | $0 | $1,427,300 | $1,427,300 |
| 2023 | $1,106,294 | $310,000 | $0 | $1,416,294 | $1,416,294 |
| 2022 | $876,817 | $280,000 | $0 | $1,156,817 | $1,156,817 |
| 2021 | $768,582 | $260,000 | $0 | $1,028,582 | $1,028,582 |
| 2020 | $680,935 | $220,000 | $0 | $900,935 | $900,935 |
| 2019 | $415,293 | $250,000 | $0 | $665,293 | $665,293 |
| 2018 | $416,372 | $230,000 | $0 | $646,372 | $646,372 |
| 2017 | $359,293 | $175,000 | $0 | $534,293 | $534,293 |
| 2016 | $362,995 | $155,000 | $0 | $517,995 | $517,995 |
| 2015 | $180,735 | $140,000 | $0 | $320,735 | $320,735 |
| 2014 | $0 | $125,000 | $0 | $125,000 | $125,000 |
| 2013 | $0 | $125,000 | $0 | $125,000 | $125,000 |
| 2012 | $0 | $150,000 | $0 | $150,000 | $150,000 |
| 2011 | $0 | $150,000 | $0 | $150,000 | $150,000 |
| 2010 | $0 | $150,000 | $0 | $150,000 | $150,000 |
| 2009 | $0 | $200,000 | $0 | $200,000 | $200,000 |
| 2008 | $0 | $150,000 | $0 | $150,000 | $150,000 |
| 2007 | $0 | $150,000 | $0 | $150,000 | $150,000 |
Deed and Sales History
| 1 | 10/19/2022 | WD | Warranty Deed | THOMPSON, RICHARD J | BARD, ALEXANDER GEOFFREY R. | | | $2,200,000.00 | 54923 | 4552843 |
| 2 | 12/18/2019 | QCD | Quit Claim Deed | EDWARDS, CAROL S | THOMPSON, RICHARD J | | | $0.00 | 41597 | 4478133 |
| 3 | 12/18/2019 | WD | Warranty Deed | O'NEILL, DAVID J | THOMPSON, RICHARD J | | | $1,300,000.00 | 41595 | 4478131 |
| 4 | 05/20/2013 | WD | Warranty Deed | METZ, LAWRENCE H | O'NEILL, DAVID J | | | $142,000.00 | 11409 | 4340544 |
| 5 | 07/13/2007 | WD | Warranty Deed | MIONE, CHRISTOPHER | METZ, LAWRENCE H | | | $384,500.00 | 72476 | 4207745 |
| 6 | 07/19/2006 | WD | Warranty Deed | DEKEMA, DAVID W | MIONE, CHRISTOPHER | | | $335,000.00 | 632885 | 4177609 |
| 7 | 12/09/2002 | WD | Warranty Deed | RUNACRES, ELIZABETH M | DEKEMA, DAVID W | | | $122,500.00 | 25176 | 4041933 |
| 8 | 05/31/2002 | QCD | Quit Claim Deed | RUNACRES, ELIZABETH M | RUNACRES, ELIZABETH M | | | $0.00 | 22096 | 4021815 |
| 9 | 04/30/2002 | WD | Warranty Deed | BOWER, GARY R | RUNACRES, ELIZABETH M | | | $78,000.00 | 21654 | 4018622 |
| 10 | 04/30/2002 | QCD | Quit Claim Deed | SWANSON, TERRY | BOWER, GARY R | | | $0.00 | 21653 | 4018621 |
| 11 | 12/30/1999 | QCD | Quit Claim Deed | BOWERS, GARY R | SWANSON, TERRY | | | $0.00 | 95354 | 99029475 |
| 12 | 12/09/1999 | SEG | DNU - Segregation | Unknown | BOWERS, GARY R | | | $0.00 | 68501 | 0 |
Payout Agreement
| No payout information available.. |