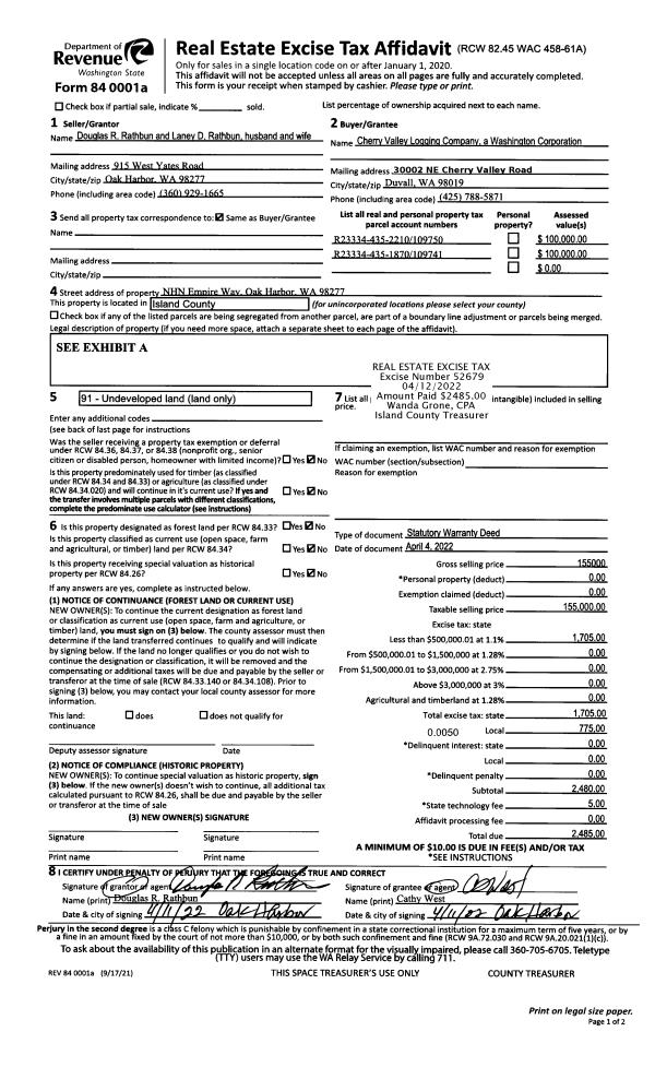
Property
Account |
| Property ID: | 801940 | Abbreviated Legal Description: | LOT 3 SP 80-99.13312.183-4880 & .153-4410 V3 SP P274 AF#99026369 AF#99026369 EX PT TO IS CO AF#4398192 |
| Geographic ID: | R13312-156-4930 | Agent Code: | |
| Type: | Real | | |
| Tax Area: | 112 - APPRAISER-OH Schl Dist, outside OH, improved, greater than 1 acre | Land Use Code | 11 |
| Open Space: | N | DFL | N |
| Historic Property: | N | Remodel Property: | N |
| Multi-Family Redevelopment: | N | | |
| Township: | 33 | Section: | 12 |
| Range: | R1 |
Location |
| Address: | 4113 JONES RD OAK HARBOR, WA 98277 | Mapsco: | |
| Neighborhood: | Cycle 6 | Map ID: | 205 |
| Neighborhood CD: | 6 |
Owner |
| Name: | ANDERSON, MICHAEL | Owner ID: | 302127 |
| Mailing Address: | HEATHER ANDERSON 4113 JONES RD OAK HARBOR, WA 98277 | % Ownership: | 100.0000000000% |
| | | Exemptions: | |
Taxes and Assessment Details
Values
| (+) Improvement Homesite Value: | + | $0 | |
| (+) Improvement Non-Homesite Value: | + | $538,018 | |
| (+) Land Homesite Value: | + | $0 | |
| (+) Land Non-Homesite Value: | + | $300,000 | |
| (+) Curr Use (HS): | + | $0 | $0 |
| (+) Curr Use (NHS): | + | $0 | $0 |
| | | -------------------------- | |
| (=) Market Value: | = | $838,018 | |
| (–) Productivity Loss: | – | $0 | |
| | | -------------------------- | |
| (=) Subtotal: | = | $838,018 | |
| (+) Senior Appraised Value: | + | $0 | |
| (+) Non-Senior Appraised Value: | + | $838,018 | |
| | | -------------------------- | |
| (=) Total Appraised Value: | = | $838,018 | |
| (–) Senior Exemption Loss: | – | $0 | |
| (–) Exemption Loss: | – | $0 | |
| | | -------------------------- | |
| (=) Taxable Value: | = | $838,018 | |
Taxing Jurisdiction
| Owner: | ANDERSON, MICHAEL | | |
| % Ownership: | 100.0000000000% | | |
| Total Value: | $838,018 | | |
| Tax Area: | 112 - APPRAISER-OH Schl Dist, outside OH, improved, greater than 1 acre |
| CF | Conservation Futures | 0.0316035091 | $838,018 | $838,018 | $26.48 | | |
| CEM1 | Cemetery #1 | 0.0040320932 | $838,018 | $838,018 | $3.38 | | |
| FIRE2 | Fire & Rescue Dist #2 N Whidbey GEN | 0.5475949600 | $838,018 | $838,018 | $458.89 | | |
| HOBOND | Hospital BOND | 0.1910887512 | $838,018 | $838,018 | $160.14 | | |
| HOGEN | Hospital GEN | 0.3902502903 | $838,018 | $838,018 | $327.04 | | |
| CE | County Current Expense | 0.3708482477 | $838,018 | $838,018 | $310.78 | | |
| CR | County Roads | 0.4584763726 | $838,018 | $838,018 | $384.21 | | |
| ISLANDEMS | Hospital GEN (EMS) | 0.5000000000 | $838,018 | $838,018 | $419.01 | | |
| LIB | Library Sno-Isle GEN | 0.3153421757 | $838,018 | $838,018 | $264.26 | | |
| NWHIDPRMT | P & R N Whidbey GEN | 0.2004466701 | $838,018 | $838,018 | $167.98 | | |
| SCH201MO | School 201 Enrichment | 1.8559231640 | $838,018 | $838,018 | $1,555.30 | | |
| ST | State School | 1.3035497053 | $838,018 | $838,018 | $1,092.40 | | |
| ST2 | State School Part 2 | 0.8169543533 | $838,018 | $838,018 | $684.62 | | |
| | Total Tax Rate: | 6.9861102925 | | | | | |
| | | | | Taxes w/Current Exemptions: | $5,854.49 | | |
| | | | | Taxes w/o Exemptions: | $5,854.49 | | |
Improvement / Building
| Improvement #1: | RESIDENTIAL | State Code: | Y | 2282.1 sqft | Value: | $538,018 |
| Bathrooms: | 2.5 | Bedrooms: | 3 | | Ceiling: | TONGUE & GROOVE | Exterior Wall/Cover: | WOOD SIDING | | Floor Covering: | HARDWOOD/CARP 60-40 | Floor Structure: | WOOD W/SUBFLOOR | | Foundation: | CONCRETE | Heating: | WALL HEAT ELECTRIC | | Interior Finish: | DRYWALL PAINT | Plumbing Fixture Cnt: | 11 | | Roof Slope: | 6" IN 12" | Roof Structure/Cover: | CJ ALUMINIUM HEAVY |
|
| | Type | Description | Class CD | Sub Class CD | Year Built | Area |
| | BAS | BASE/MAIN FLOOR | 3 | 0 | 2000 | 2282.1 |
| | OP4 | OPEN PORCH W/CEILING-ROOF | 3 | 0 | 2000 | 171.0 |
| | OWC | OPEN WOOD PORCH W/STEPS/ROOF/C | 3 | 0 | 2000 | 343.2 |
| | OWC | OPEN WOOD PORCH W/STEPS/ROOF/C | 3 | 0 | 2000 | 194.7 |
| | oPOL | POLE BARN | 3 | 0 | 2000 | 0.0 |
| | AGR | ATTACHED GARAGE | 3 | 0 | 2000 | 529.4 |
| | OCP | OPEN CARPORT | 3 | 0 | 2000 | 360.0 |
| | UTY | STORAGE/UTILITY | 3 | 0 | 2000 | 700.0 |
| | OCP | OPEN CARPORT | 3 | 0 | 2000 | 700.0 |
| | OCP | OPEN CARPORT | 3 | 0 | 2000 | 812.0 |
Sketch
Property Image
Land
| 1 | 32 | AC (03.01-09.99) | 5.0000 | 217800.00 | 0.00 | 0.00 | 1.00 | $300,000 | $0 |
Roll Value History
| 2026 | N/A | N/A | N/A | N/A | N/A |
| 2025 | $538,018 | $300,000 | $0 | $838,018 | $838,018 |
| 2024 | $544,021 | $280,000 | $0 | $824,021 | $824,021 |
| 2023 | $550,023 | $270,000 | $0 | $820,023 | $820,023 |
| 2022 | $496,237 | $240,000 | $0 | $736,237 | $736,237 |
| 2021 | $426,540 | $175,000 | $0 | $601,540 | $601,540 |
| 2020 | $417,165 | $140,000 | $0 | $557,165 | $557,165 |
| 2019 | $330,824 | $200,000 | $0 | $530,824 | $530,824 |
| 2018 | $331,664 | $175,000 | $0 | $506,664 | $506,664 |
| 2017 | $333,339 | $140,000 | $0 | $473,339 | $473,339 |
| 2016 | $304,865 | $140,000 | $0 | $444,865 | $444,865 |
| 2015 | $307,929 | $120,000 | $0 | $427,929 | $427,929 |
| 2014 | $310,992 | $114,300 | $0 | $425,292 | $425,292 |
| 2013 | $314,057 | $114,300 | $0 | $428,357 | $428,357 |
| 2012 | $317,118 | $114,300 | $0 | $431,418 | $431,418 |
| 2011 | $320,183 | $127,000 | $0 | $447,183 | $447,183 |
| 2010 | $314,658 | $127,000 | $0 | $441,658 | $441,658 |
| 2009 | $330,050 | $127,000 | $0 | $457,050 | $457,050 |
| 2008 | $333,172 | $144,780 | $0 | $477,952 | $477,952 |
| 2007 | $338,568 | $144,780 | $0 | $483,348 | $483,348 |
Deed and Sales History
| 1 | 11/15/2021 | WD | Warranty Deed | BAKER, ERIC | ANDERSON, MICHAEL | | | $780,000.00 | 51076 | 4534527 |
| 2 | 12/04/2020 | QCD | Quit Claim Deed | BAKER, ERIC | BAKER, ERIC | | | $0.00 | 46053 | 4504743 |
| 3 | 02/28/2018 | WD | Warranty Deed | LANG, BRENT S | BAKER, ERIC | | | $570,000.00 | 33131 | 4440083 |
| 4 | 04/12/2016 | WD | Warranty Deed | LANG, BRENT S | LANG, BRENT S | | | $0.00 | 24007 | 4398192 |
| 5 | 06/07/2006 | 5 | DNU - Marriage License/Name Change | LANG, BRENT | LANG, BRENT S | | | $0.00 | 62669 | 4173680 |
| 6 | 10/04/2004 | WD | Warranty Deed | Unknown | LANG, BRENT | | | $110,000.00 | 13835 | 20044692 |
Payout Agreement
| No payout information available.. |