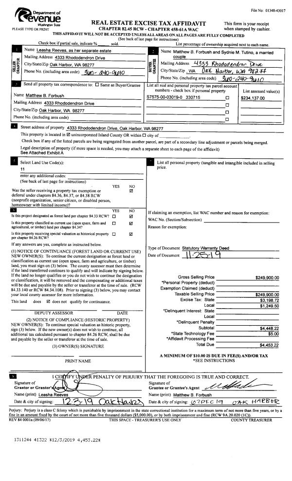
Property
Account |
| Property ID: | 801987 | Abbreviated Legal Description: | S/2 NE SE SW TGW EZ AF#93022334 |
| Geographic ID: | R22905-078-2280 | Agent Code: | |
| Type: | Real | | |
| Tax Area: | 712 - APPRAISER-S Whid Schl Dist, outside Langley, improved, greater than 1 acre | Land Use Code | 11 |
| Open Space: | N | DFL | N |
| Historic Property: | N | Remodel Property: | N |
| Multi-Family Redevelopment: | N | | |
| Township: | 29 | Section: | 05 |
| Range: | R2 |
Location |
| Address: | 5161 CLOUDSTONE LN FREELAND, WA 98249 | Mapsco: | |
| Neighborhood: | Cycle 3 | Map ID: | 295 |
| Neighborhood CD: | 3 |
Owner |
| Name: | HERON, MARIAN | Owner ID: | 182848 |
| Mailing Address: | 5492 RD 8.3 SE OTHELLO, WA 99344-8703 | % Ownership: | 100.0000000000% |
| | | Exemptions: | |
Taxes and Assessment Details
Values
| (+) Improvement Homesite Value: | + | $0 | |
| (+) Improvement Non-Homesite Value: | + | $237,437 | |
| (+) Land Homesite Value: | + | $0 | |
| (+) Land Non-Homesite Value: | + | $390,000 | |
| (+) Curr Use (HS): | + | $0 | $0 |
| (+) Curr Use (NHS): | + | $0 | $0 |
| | | -------------------------- | |
| (=) Market Value: | = | $627,437 | |
| (–) Productivity Loss: | – | $0 | |
| | | -------------------------- | |
| (=) Subtotal: | = | $627,437 | |
| (+) Senior Appraised Value: | + | $0 | |
| (+) Non-Senior Appraised Value: | + | $627,437 | |
| | | -------------------------- | |
| (=) Total Appraised Value: | = | $627,437 | |
| (–) Senior Exemption Loss: | – | $0 | |
| (–) Exemption Loss: | – | $0 | |
| | | -------------------------- | |
| (=) Taxable Value: | = | $627,437 | |
Taxing Jurisdiction
| Owner: | HERON, MARIAN | | |
| % Ownership: | 100.0000000000% | | |
| Total Value: | $627,437 | | |
| Tax Area: | 712 - APPRAISER-S Whid Schl Dist, outside Langley, improved, greater than 1 acre |
| CF | Conservation Futures | 0.0316035091 | $627,437 | $627,437 | $19.83 | | |
| FIRE3 | Fire & Rescue Dist #3 S Whidbey GEN | 1.2004855531 | $627,437 | $627,437 | $753.23 | | |
| HOBOND | Hospital BOND | 0.1910887512 | $627,437 | $627,437 | $119.90 | | |
| HOGEN | Hospital GEN | 0.3902502903 | $627,437 | $627,437 | $244.86 | | |
| CE | County Current Expense | 0.3708482477 | $627,437 | $627,437 | $232.68 | | |
| CR | County Roads | 0.4584763726 | $627,437 | $627,437 | $287.67 | | |
| ISLANDEMS | Hospital GEN (EMS) | 0.5000000000 | $627,437 | $627,437 | $313.72 | | |
| LIB | Library Sno-Isle GEN | 0.3153421757 | $627,437 | $627,437 | $197.86 | | |
| PORTWHID | Port of S Whidbey GEN | 0.1094540357 | $627,437 | $627,437 | $68.68 | | |
| SCH206BOND | School 206 BOND | 0.3161759235 | $627,437 | $627,437 | $198.38 | | |
| SCH206MO | School 206 Enrichment | 0.4547169547 | $627,437 | $627,437 | $285.31 | | |
| ST | State School | 1.3035497053 | $627,437 | $627,437 | $817.90 | | |
| ST2 | State School Part 2 | 0.8169543533 | $627,437 | $627,437 | $512.59 | | |
| SWHIDPRBD | P & R S Whidbey BOND | 0.0152817568 | $627,437 | $627,437 | $9.59 | | |
| SWHIDPRBD2 | P & R S Whidbey BOND2 | 0.0138911264 | $627,437 | $627,437 | $8.72 | | |
| SWHIDPRMT | P & R S Whidbey GEN | 0.2053334452 | $627,437 | $627,437 | $128.83 | | |
| | Total Tax Rate: | 6.6934522006 | | | | | |
| | | | | Taxes w/Current Exemptions: | $4,199.75 | | |
| | | | | Taxes w/o Exemptions: | $4,199.75 | | |
Improvement / Building
| Improvement #1: | RESIDENTIAL | State Code: | Y | 1176.0 sqft | Value: | $237,437 |
| Bathrooms: | 1 | Bedrooms: | 1 | | Ceiling: | TONGUE & GROOVE | Exterior Wall/Cover: | CEMENT FIBER | | Floor Covering: | HARDWOOD 100% | Floor Structure: | WOOD W/SUBFLOOR | | Foundation: | CONCRETE | Heating: | FHA ELECTRIC | | Interior Finish: | DRYWALL PAINT | Plumbing Fixture Cnt: | 7 | | Roof Slope: | 12" IN 12" | Roof Structure/Cover: | CJ ALUMINIUM HEAVY |
|
| | Type | Description | Class CD | Sub Class CD | Year Built | Area |
| | BAS | BASE/MAIN FLOOR | 3 | 0 | 2008 | 840.0 |
| | OWC | OPEN WOOD PORCH W/STEPS/ROOF/C | 3 | 0 | 2008 | 112.2 |
| | OWC | OPEN WOOD PORCH W/STEPS/ROOF/C | 3 | 0 | 2008 | 196.0 |
| | LOF | LOFT | 3 | 0 | 2008 | 336.0 |
Sketch
Property Image
Land
| 1 | 32 | AC (03.01-09.99) | 5.0000 | 0.00 | 0.00 | 0.00 | 1.00 | $390,000 | $0 |
Roll Value History
| 2026 | N/A | N/A | N/A | N/A | N/A |
| 2025 | $237,437 | $390,000 | $0 | $627,437 | $627,437 |
| 2024 | $240,128 | $370,000 | $0 | $610,128 | $610,128 |
| 2023 | $240,968 | $350,000 | $0 | $590,968 | $590,968 |
| 2022 | $220,140 | $350,000 | $0 | $570,140 | $570,140 |
| 2021 | $192,902 | $280,000 | $0 | $472,902 | $472,902 |
| 2020 | $187,450 | $240,000 | $0 | $427,450 | $427,450 |
| 2019 | $129,715 | $280,000 | $0 | $409,715 | $409,715 |
| 2018 | $130,079 | $170,000 | $0 | $300,079 | $300,079 |
| 2017 | $130,797 | $160,000 | $0 | $290,797 | $290,797 |
| 2016 | $132,250 | $150,000 | $0 | $282,250 | $282,250 |
| 2015 | $133,702 | $150,000 | $0 | $283,702 | $283,702 |
| 2014 | $135,156 | $150,000 | $0 | $285,156 | $285,156 |
| 2013 | $136,609 | $150,000 | $0 | $286,609 | $286,609 |
| 2012 | $138,063 | $150,000 | $0 | $288,063 | $288,063 |
| 2011 | $139,516 | $150,000 | $0 | $289,516 | $289,516 |
| 2010 | $145,579 | $150,000 | $0 | $295,579 | $295,579 |
| 2009 | $144,230 | $195,000 | $0 | $339,230 | $339,230 |
| 2008 | $102,267 | $160,000 | $0 | $262,267 | $262,267 |
| 2007 | $0 | $152,500 | $0 | $152,500 | $152,500 |
Deed and Sales History
| 1 | 03/13/2000 | BLA | DNU - Boundary Line Adjustment | Unknown | NELSON, HENRY D | | | $0.00 | 68640 | 99019687 |
| 2 | 12/17/1999 | WD | Warranty Deed | NELSON, HENRY D | HERON, MARIAN | | | $60,000.00 | 42 | 20000192 |
Payout Agreement
| No payout information available.. |