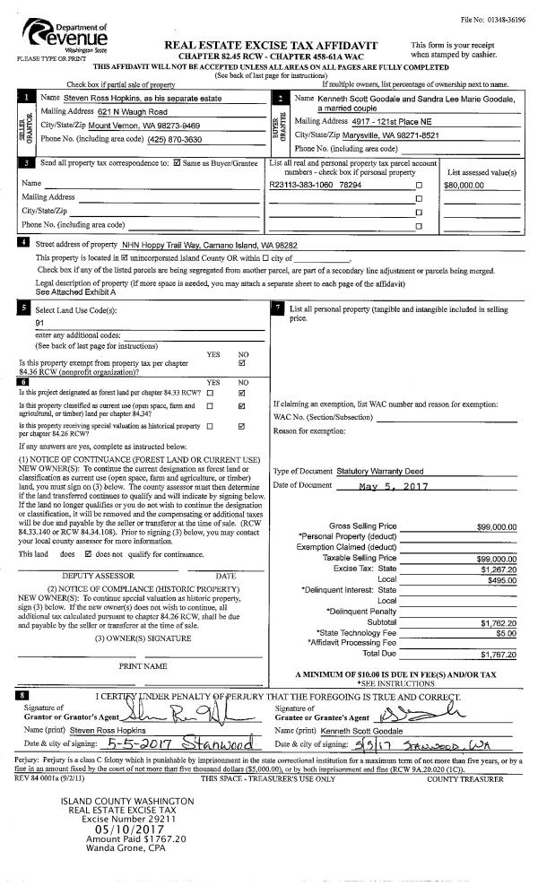
Property
Account |
| Property ID: | 802093 | Abbreviated Legal Description: | LOT 1 SP 18-90.32911.533-4320 V2 SP P302 AF#91010180 TGW: BG SECR LOT 2 SP 18-90 SLY 120' ON ELY LN SD LOT 2 EXT SLY WLY 501' M/L TP 70'SLY OF SWLY CR LOT 1 SP 18-90 NLY TO SWLY CR SD LOT 1 NELY 501' ALG SLY LN SD LOTS 1 & 2 TPB TGW: W83' MEAS ALG N |
| Geographic ID: | R32911-524-4100 | Agent Code: | |
| Type: | Real | | |
| Tax Area: | 712 - APPRAISER-S Whid Schl Dist, outside Langley, improved, greater than 1 acre | Land Use Code | 11 |
| Open Space: | N | DFL | N |
| Historic Property: | N | Remodel Property: | N |
| Multi-Family Redevelopment: | N | | |
| Township: | 29 | Section: | 11 |
| Range: | R3 |
Location |
| Address: | 4310 WITTER RD LANGLEY, WA 98260 | Mapsco: | |
| Neighborhood: | Cycle 4 | Map ID: | 761 |
| Neighborhood CD: | 4 |
Owner |
| Name: | ABEL, RICHARD | Owner ID: | 280618 |
| Mailing Address: | KAREN ABEL 4310 WITTER RD LANGLEY, WA 98260-9546 | % Ownership: | 100.0000000000% |
| | | Exemptions: | |
Taxes and Assessment Details
Values
| (+) Improvement Homesite Value: | + | $0 | |
| (+) Improvement Non-Homesite Value: | + | $590,065 | |
| (+) Land Homesite Value: | + | $0 | |
| (+) Land Non-Homesite Value: | + | $380,000 | |
| (+) Curr Use (HS): | + | $0 | $0 |
| (+) Curr Use (NHS): | + | $0 | $0 |
| | | -------------------------- | |
| (=) Market Value: | = | $970,065 | |
| (–) Productivity Loss: | – | $0 | |
| | | -------------------------- | |
| (=) Subtotal: | = | $970,065 | |
| (+) Senior Appraised Value: | + | $0 | |
| (+) Non-Senior Appraised Value: | + | $970,065 | |
| | | -------------------------- | |
| (=) Total Appraised Value: | = | $970,065 | |
| (–) Senior Exemption Loss: | – | $0 | |
| (–) Exemption Loss: | – | $0 | |
| | | -------------------------- | |
| (=) Taxable Value: | = | $970,065 | |
Taxing Jurisdiction
| Owner: | ABEL, RICHARD | | |
| % Ownership: | 100.0000000000% | | |
| Total Value: | $970,065 | | |
| Tax Area: | 712 - APPRAISER-S Whid Schl Dist, outside Langley, improved, greater than 1 acre |
| CF | Conservation Futures | 0.0316035091 | $970,065 | $970,065 | $30.66 | | |
| FIRE3 | Fire & Rescue Dist #3 S Whidbey GEN | 1.2004855531 | $970,065 | $970,065 | $1,164.55 | | |
| HOBOND | Hospital BOND | 0.1910887512 | $970,065 | $970,065 | $185.37 | | |
| HOGEN | Hospital GEN | 0.3902502903 | $970,065 | $970,065 | $378.57 | | |
| CE | County Current Expense | 0.3708482477 | $970,065 | $970,065 | $359.75 | | |
| CR | County Roads | 0.4584763726 | $970,065 | $970,065 | $444.75 | | |
| ISLANDEMS | Hospital GEN (EMS) | 0.5000000000 | $970,065 | $970,065 | $485.03 | | |
| LIB | Library Sno-Isle GEN | 0.3153421757 | $970,065 | $970,065 | $305.90 | | |
| PORTWHID | Port of S Whidbey GEN | 0.1094540357 | $970,065 | $970,065 | $106.18 | | |
| SCH206BOND | School 206 BOND | 0.3161759235 | $970,065 | $970,065 | $306.71 | | |
| SCH206MO | School 206 Enrichment | 0.4547169547 | $970,065 | $970,065 | $441.11 | | |
| ST | State School | 1.3035497053 | $970,065 | $970,065 | $1,264.53 | | |
| ST2 | State School Part 2 | 0.8169543533 | $970,065 | $970,065 | $792.50 | | |
| SWHIDPRBD | P & R S Whidbey BOND | 0.0152817568 | $970,065 | $970,065 | $14.82 | | |
| SWHIDPRBD2 | P & R S Whidbey BOND2 | 0.0138911264 | $970,065 | $970,065 | $13.48 | | |
| SWHIDPRMT | P & R S Whidbey GEN | 0.2053334452 | $970,065 | $970,065 | $199.19 | | |
| | Total Tax Rate: | 6.6934522006 | | | | | |
| | | | | Taxes w/Current Exemptions: | $6,493.10 | | |
| | | | | Taxes w/o Exemptions: | $6,493.10 | | |
Improvement / Building
| Improvement #1: | RESIDENTIAL | State Code: | Y | 3080.0 sqft | Value: | $590,065 |
| Bathrooms: | 3.5 | Bedrooms: | 3 | | Ceiling: | DRYWALL PAINTED | Exterior Wall/Cover: | CEMENT FIBER | | Floor Covering: | HARDWOOD/CARP 80-20 | Floor Structure: | WOOD W/SUBFLOOR | | Foundation: | CONCRETE | Heating: | WALL HEAT ELECTRIC | | Interior Finish: | DRYWALL PAINT | Plumbing Fixture Cnt: | 15 | | Roof Slope: | 6" IN 12" | Roof Structure/Cover: | CJ ASPHALT |
|
| | Type | Description | Class CD | Sub Class CD | Year Built | Area |
| | BAS | BASE/MAIN FLOOR | 4 | 0 | 1990 | 1592.0 |
| | UPH | HALF STORY | 5 | 0 | 1990 | 604.0 |
| | UPS | UPPER STORY | 5 | 0 | 1990 | 884.0 |
| | BIG | BUILT IN GARAGE | 5 | 0 | 1990 | 675.0 |
| | OWC | OPEN WOOD PORCH W/STEPS/ROOF/C | 5 | 0 | 1990 | 660.0 |
Sketch
Property Image
Land
| 1 | 18 | AC (02.01-03.00) | 0.0000 | 0.00 | 0.00 | 0.00 | 1.00 | $380,000 | $0 |
Roll Value History
| 2026 | N/A | N/A | N/A | N/A | N/A |
| 2025 | $590,065 | $380,000 | $0 | $970,065 | $970,065 |
| 2024 | $596,988 | $360,000 | $0 | $956,988 | $956,988 |
| 2023 | $603,911 | $360,000 | $0 | $963,911 | $963,911 |
| 2022 | $553,110 | $280,000 | $0 | $833,110 | $833,110 |
| 2021 | $486,417 | $260,000 | $0 | $746,417 | $746,417 |
| 2020 | $484,915 | $230,000 | $0 | $714,915 | $714,915 |
| 2019 | $407,181 | $260,000 | $0 | $667,181 | $667,181 |
| 2018 | $408,349 | $230,000 | $0 | $638,349 | $638,349 |
| 2017 | $402,180 | $150,000 | $0 | $552,180 | $552,180 |
| 2016 | $406,804 | $150,000 | $0 | $556,804 | $556,804 |
| 2015 | $361,158 | $121,500 | $0 | $482,658 | $482,658 |
| 2014 | $294,441 | $121,500 | $0 | $415,941 | $415,941 |
| 2013 | $298,217 | $121,500 | $0 | $419,717 | $419,717 |
| 2012 | $301,992 | $121,500 | $0 | $423,492 | $423,492 |
| 2011 | $271,377 | $135,000 | $0 | $406,377 | $406,377 |
| 2010 | $281,436 | $135,000 | $0 | $416,436 | $416,436 |
| 2009 | $301,334 | $169,500 | $0 | $470,834 | $470,834 |
| 2008 | $282,904 | $188,500 | $0 | $471,404 | $471,404 |
| 2007 | $282,517 | $188,500 | $0 | $471,017 | $471,017 |
Deed and Sales History
| 1 | 06/23/2017 | WD | Warranty Deed | FRICK, GUY DAVID | ABEL, RICHARD | | | $698,000.00 | 29951 | 4425166 |
| 2 | 07/24/2015 | WD | Warranty Deed | CHAPIN, NANCY J | FRICK, GUY DAVID | | | $543,000.00 | 20749 | 438389 |
| 3 | 03/28/2013 | PRD | Personal Representatives Deed | CHAPIN, EDWARD G | CHAPIN, NANCY J | | | $0.00 | 10904 | 4336971 |
| 4 | 08/18/2009 | BLA | DNU - Boundary Line Adjustment | CHAPIN, EDWARD G | CHAPIN, EDWARD G | | | $0.00 | 81354 | 4167669 |
| 5 | 06/06/2006 | REC | Real Estate Contract | CHAPIN, EDWARD G | CHAPIN, EDWARD G | | | $20,000.00 | 62767 | 4174287 |
| 6 | 04/04/2000 | BLA | DNU - Boundary Line Adjustment | Unknown | CHAPIN, EDWARD G | | | $0.00 | 68660 | 99017469 |
| 7 | 07/28/1999 | WD | Warranty Deed | CHAPIN, EDWARD G | CHAPIN, EDWARD G | | | $90,000.00 | 93191 | 99018467 |
Payout Agreement
| No payout information available.. |