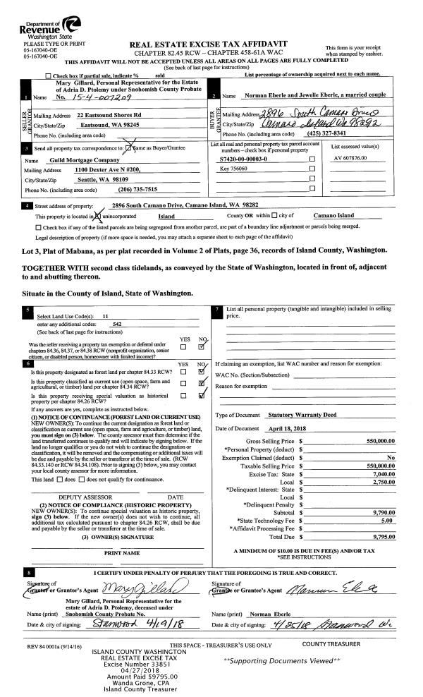
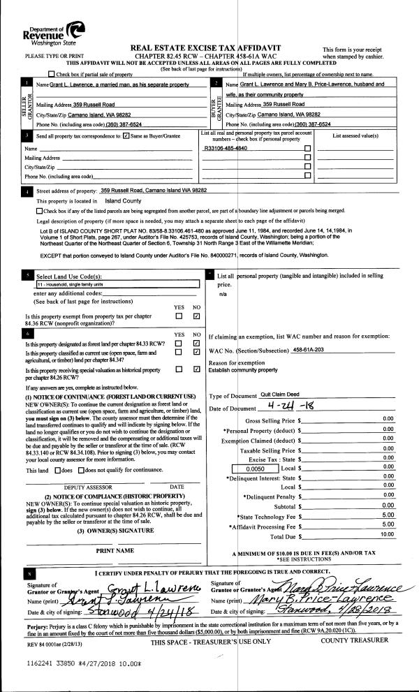
Property
Account |
| Property ID: | 802121 | Abbreviated Legal Description: | LOT 2 OH-SP BLA 99-1.7020.01.00001-0 & 13335.292-3340 V3 SP P293 AF#20000790 |
| Geographic ID: | R13335-298-3380 | Agent Code: | |
| Type: | Real | | |
| Tax Area: | 100 - APPRAISER-OH Schl Dist, in OH | Land Use Code | 61 |
| Open Space: | N | DFL | N |
| Historic Property: | N | Remodel Property: | N |
| Multi-Family Redevelopment: | N | | |
| Township: | 33 | Section: | 35 |
| Range: | R1 |
Location |
| Address: | 32800 SR20 OAK HARBOR, WA 98277 | Mapsco: | |
| Neighborhood: | 4AcOH-highway 20 | Map ID: | 259 |
| Neighborhood CD: | 4AcOHhwy20 |
Owner |
| Name: | NEILON, JAMES A | Owner ID: | 284170 |
| Mailing Address: | 1065 AMERICAN LN COUPEVILLE, WA 98239 | % Ownership: | 100.0000000000% |
| | | Exemptions: | |
Taxes and Assessment Details
Values
| (+) Improvement Homesite Value: | + | $0 | |
| (+) Improvement Non-Homesite Value: | + | $565,552 | |
| (+) Land Homesite Value: | + | $0 | |
| (+) Land Non-Homesite Value: | + | $592,416 | |
| (+) Curr Use (HS): | + | $0 | $0 |
| (+) Curr Use (NHS): | + | $0 | $0 |
| | | -------------------------- | |
| (=) Market Value: | = | $1,157,968 | |
| (–) Productivity Loss: | – | $0 | |
| | | -------------------------- | |
| (=) Subtotal: | = | $1,157,968 | |
| (+) Senior Appraised Value: | + | $0 | |
| (+) Non-Senior Appraised Value: | + | $1,157,968 | |
| | | -------------------------- | |
| (=) Total Appraised Value: | = | $1,157,968 | |
| (–) Senior Exemption Loss: | – | $0 | |
| (–) Exemption Loss: | – | $0 | |
| | | -------------------------- | |
| (=) Taxable Value: | = | $1,157,968 | |
Taxing Jurisdiction
| Owner: | NEILON, JAMES A | | |
| % Ownership: | 100.0000000000% | | |
| Total Value: | $1,157,968 | | |
| Tax Area: | 100 - APPRAISER-OH Schl Dist, in OH |
| CF | Conservation Futures | 0.0316035091 | $1,157,968 | $1,157,968 | $36.60 | | |
| CEM1 | Cemetery #1 | 0.0040320932 | $1,157,968 | $1,157,968 | $4.67 | | |
| COH | City of Oak Harbor | 2.3001546061 | $1,157,968 | $1,157,968 | $2,663.51 | | |
| OAKBOND | City of Oak Harbor BOND | 0.1926904192 | $1,157,968 | $1,157,968 | $223.13 | | |
| HOBOND | Hospital BOND | 0.1910887512 | $1,157,968 | $1,157,968 | $221.27 | | |
| HOGEN | Hospital GEN | 0.3902502903 | $1,157,968 | $1,157,968 | $451.90 | | |
| CE | County Current Expense | 0.3708482477 | $1,157,968 | $1,157,968 | $429.43 | | |
| ISLANDEMS | Hospital GEN (EMS) | 0.5000000000 | $1,157,968 | $1,157,968 | $578.98 | | |
| LIB | Library Sno-Isle GEN | 0.3153421757 | $1,157,968 | $1,157,968 | $365.16 | | |
| NWHIDPRMT | P & R N Whidbey GEN | 0.2004466701 | $1,157,968 | $1,157,968 | $232.11 | | |
| SCH201MO | School 201 Enrichment | 1.8559231640 | $1,157,968 | $1,157,968 | $2,149.10 | | |
| ST | State School | 1.3035497053 | $1,157,968 | $1,157,968 | $1,509.47 | | |
| ST2 | State School Part 2 | 0.8169543533 | $1,157,968 | $1,157,968 | $946.01 | | |
| | Total Tax Rate: | 8.4728839852 | | | | | |
| | | | | Taxes w/Current Exemptions: | $9,811.34 | | |
| | | | | Taxes w/o Exemptions: | $9,811.34 | | |
Improvement / Building
| Improvement #1: | COMMERCIAL | State Code: | F1 | 7500.0 sqft | Value: | $565,552 |
| Bathrooms: | 1 | Ceiling: | SUSPENDED | | Cooling: | VENT/BLOWERS ONLY | Exterior Wall/Cover: | 6" CONC BLK/CON FRAM | | Floor Covering: | CARPET 100% | Floor Structure: | CONCRETE ON GROUND | | Foundation: | SLAB | Heating: | FHA ELECTRIC | | Interior Finish: | OFFICE | Plumbing Fixture Cnt: | 1 | | Roof Structure/Cover: | BEAM BUILT-UP ROCK |   |   |
|
| | Type | Description | Class CD | Sub Class CD | Year Built | Area |
| | BAS | BASE/MAIN FLOOR | 3 | 0 | 1978 | 6500.0 |
| | STG | STORAGE | 3 | 0 | 1978 | 1000.0 |
| | OP1 | OPEN PORCH SLAB | 3 | 0 | 1978 | 325.3 |
| | oPV1 | PV/ASPH 2" | 3 | 0 | 1978 | 16550.0 |
Sketch
Property Image
Land
| 1 | 64 | PERSONAL BUSINESS | 0.6800 | 29620.80 | 0.00 | 0.00 | 1.00 | $592,416 | $0 |
Roll Value History
| 2026 | N/A | N/A | N/A | N/A | N/A |
| 2025 | $565,552 | $592,416 | $0 | $1,157,968 | $1,157,968 |
| 2024 | $585,168 | $592,416 | $0 | $1,177,584 | $1,177,584 |
| 2023 | $614,577 | $592,416 | $0 | $1,206,993 | $1,206,993 |
| 2022 | $509,313 | $592,416 | $0 | $1,101,729 | $1,101,729 |
| 2021 | $509,045 | $592,416 | $0 | $1,101,461 | $1,101,461 |
| 2020 | $551,848 | $592,416 | $0 | $1,144,264 | $1,144,264 |
| 2019 | $549,346 | $533,174 | $0 | $1,082,520 | $1,082,520 |
| 2018 | $549,346 | $444,312 | $0 | $993,658 | $993,658 |
| 2017 | $549,346 | $457,416 | $0 | $1,006,762 | $1,006,762 |
| 2016 | $549,346 | $457,416 | $0 | $1,006,762 | $1,006,762 |
| 2015 | $564,548 | $457,416 | $0 | $1,021,964 | $1,021,964 |
| 2014 | $317,893 | $590,546 | $0 | $908,439 | $908,439 |
| 2013 | $317,893 | $590,546 | $0 | $908,439 | $908,439 |
| 2012 | $317,893 | $590,546 | $0 | $908,439 | $908,439 |
| 2011 | $317,893 | $590,546 | $0 | $908,439 | $908,439 |
| 2010 | $287,746 | $590,546 | $0 | $878,292 | $878,292 |
| 2009 | $295,891 | $668,179 | $0 | $964,070 | $964,070 |
| 2008 | $299,964 | $668,179 | $0 | $968,143 | $968,143 |
| 2007 | $308,109 | $668,179 | $0 | $976,288 | $976,288 |
Deed and Sales History
| 1 | 03/08/2018 | QCD | Quit Claim Deed | NEILON, JAMES A | NEILON, JAMES A | | | $0.00 | 33218 | 4440441 |
| 2 | 03/08/2018 | WD | Warranty Deed | BALDA, JOHN | NEILON, JAMES A | | | $950,000.00 | 33217 | 4440440 |
| 3 | 01/11/2000 | WD | Warranty Deed | Unknown | BALDA, JOHN | | | $84,000.00 | 127 | 20000791 |
Payout Agreement
| No payout information available.. |